Neue Wohnung + Renovierung = neue Küche juhu :)

ElsaM

Mitglied
Beiträge
45
Wohnung ist gekauft und der Umbau geht gerade los. Zu meinem großem Glück gibt es auch eine neue Küche. Waschmaschine und Trockner verschwindet nun endlich im Bad.

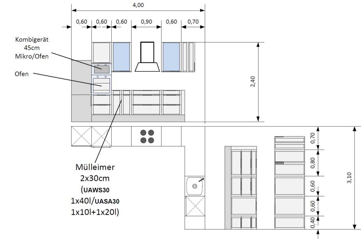
Es wird nun eine Küche von Nobilia . GS (voll integriert), Ofen und unseren eigenständigen Kühlschrank nehmen wir aus der alten Wohnung mit.

Die Tote Ecke wollen wir so lösen, dass wir sie als kleinen Wandschrank aus dem Flur heraus benutzen.

Wir schieben ständig an der Aufteilung der Küche hin und her und haben immer das Gefühl etwas zu vergessen. So gibt es inzwischen ein zweites Schubfach mit über 60cm für die Ofenbleche, die Müll ist von der Spüle mehr in die Raummitte gewandert und der Dunstabzug nicht mehr im Schrank integriert.

Im Möbelhaus hat man uns empfohlenen nicht nur Schubfach er zu nehmen, sondern lieber einen Schrank als Tür zu lassen, um variabel in der Höhe zu sein. Den höchsten Topf den ich habe ist 22cm. Was wäre es tolles Beispiel warum man das doch brauchen könnte?

Was sollte man bei der Dunstabzugshaube beachten? Da haben wir keine Ahnung :-)

Bis jetzt planen wir fast alles selbst, da uns bis jetzt jedes Möbelhaus was aufschwatzen wollte. Wie viel Abstand brauchen wir in der Ecke jeweils bis zu den Schränken, damit diese aufgehen? Aktuell planen wir mit 10cm. Ginge das auch mit 5 oder gar 0? Wir finden da keine genauen Maße bei Nobilia.

Über dem Ofen würde ich gerne erst einmal 45cm leer lassen (Budget zu klein) und später dann eine 45cm Mikrowelle mit Ofen und Dampfunterstützung reinnehmen. Oder den Ofen verkaufen, den großen dann mit Dampfunterstützung und oben nur eine Mikrowelle . Was wäre besser? Oder vielleicht doch anders? Ich möchte langfristig vollintegriert: ein Ofen mit Dampfunterstützung, eine Mikrowelle und am liebsten noch einen Dampfgarer (alternativ mache ich das im Topf mit Einsatz oder im Zaubertopf). Die Frage ist natürlich welche Geräte sind sinnvoll. Einzel oder Kombi und wenn in welcher Kombination. Ich mag keine Geräte draußen stehen haben und die kleinen integrierten Mikrowellen sehen verboten schlecht aus.

Vielleicht hat jemand noch eine andere Idee zur Anordnung der Schränke, insbesondere aus Sicht der Laufwege?

Unsere neue Wohnung in aktueller Planung


Aktuelle Planung der Küche

Besten Dank für eure Hilfe.

Checkliste zur Küchenplanung

Anzahl Personen im Haushalt: 3
Davon Kinder?: 1
Art des Gebäudes?: Neu-/Umbau, Planänderungen möglich
Körpergrössen aller Hauptbenutzer (wegen Arbeitshöhe ) in cm: 186 und 180cm
Brüstungshöhe des Fensters (in cm):
Fensterhöhe (in cm):
Raumhöhe in cm:
320cm
Heizung: Heizkörper wie im Grundriss
Sanitäranschlüsse: variabel an aktueller Wand
Ausführung Kühlgerät: Stand-Alone bis 60 cm Breite
Kühlgerät Größe: bis 178 cm Höhe
Ausführung Tiefkühl (TK)-Gerät: Im Kühlschrank ab 3 Schubladen unten
Dunstabzugshaube: Umluft
Backofen etc. hochgebaut?: Ja
Hochgebauter Geschirrspüler ?: Nein
Kochfeldart: Induktion
Kochfeldbreite ca. (in cm)?: 80cm
Spülenform: 1 Becken mit Abtropffläche
Geplante Heißgeräte: Einbaumikrowelle, Dampfbackofen (DGC) ohne Wasseranschluß
Küchenstil:
Sitzmöglichkeit in der Küche / im Küchenbereich:
Gesonderter Tisch
Sitzmöglichkeit: Für wieviel Personen?: für 6 Personen
Sitzmöglichkeit: Tisch - wenn gesonderter Tisch oder offene Küche: Wird nach Bedarf neu gekauft
Gewünschte o. vorhandene Tischgröße: Ausziehtisch auf min 8 Personen
Wofür soll der Sitzplatz in der Küche genutzt werden? Wie häufig?:
Welche Arbeitshöhe ist angedacht (in cm)?:
95-96cm
Was steht auf der Arbeitsplatte oder soll dort stehen?: Kaffeemaschine, Wasserkocher, Küchenmaschine
Welche weiteren Küchenmaschinen müssen in der Küche untergebracht werden?: Küchenmaschine, Toaster, Handrührgerät, Mixer, Pürierstab
Was soll in der Küche außer den Standards untergebracht werden?: ALLE Vorräte
Welchen Stauraum gibt es sonst noch?: Geschirr/Gläserschrank im Wohn-/Esszimmer
Was/wie wird gekocht? (Alltagsküche, Menüs, Snacks usw): Täglich die Alltagsküche und mit Besuch gerne mehr. Zu Weihnachten bricht der Backwahn aus.
Wie häufig wird gekocht?: (fast) täglich 1x warm
Wird alleine gekocht? Oder auch gemeinsam? Mit und für Gäste?: Täglich alleine und min 1 im Monat mit Gästen
Was stört an der bisherigen Küche und was soll die neue Küche unbedingt können? Warum?: Zu klein.
Welche Mülltrennung soll in der Küche vorgehalten werden?: Biomüll, Gelber Sack Müll, Restmüll
Steht schon ein Küchenhersteller fest oder wird bevorzugt?: Nobilia
Steht schon ein Gerätehersteller fest oder wird bevorzugt?: Ofen, GS und Standkühlschrank schon vorhanden.
Preisvorstellung (Budget): bis 10.000,-
 

Anhänge

  • Wohn.JPG
    Wohn.JPG
    50 KB · Aufrufe: 322
  • Küche.JPG
    Küche.JPG
    68,8 KB · Aufrufe: 312
Hallo und ein herzliches :welcome: im Küchenforum!

Ihr seid beide ziemlich groß, die angegebene Arbeitshöhe erscheint mir mit 95-96 nicht ausreichend. Zur Verdeutlichung: Ich bin 1,68 klein und arbeite, sehr komfortabel, auf 92 cm Höhe. Ich würde also erstmals diesen Punkt überprüfen.


Wenn das geklärt ist, kann man sich über mögliche Küchenmöbelhersteller unterhalten. Oder seid Ihr aus irgendeinem Grund auf Nobilia festgelegt?

Etwas verwirrend finde ich die Aussage: "Die Tote Ecke wollen wir so lösen, dass wir sie als kleinen Wandschrank aus dem Flur heraus benutzen": Wollt Ihr einen Loch in die Wand schlagen, oder wie soll man sich das vorstellen?

Ansonsten plant man für Ecken 5 cm Abstand, damit die Griffe nicht irgendwo schleifen.

Den Müll würde ich nicht links vom Kochfeld planen, sondern unter der Hauptarbeitsfläche, zwischen Kochfeld und Spüle, das ist dort nömlich praktischer. Hier im Forum gibt es dafür sogar eine eigene Bezeichnung (nur im Forum gebräuchlich): * MUPL * (link für Beispiele anklicken).

Da Ihr groß seid, würde ich versuchen, den GSP erhöht einzubauen, damit Ihr Euch nicht zu weit bücken müsst.

Drehtüren würde ich gar keine einbauen, sondern irgendwo (z.B. unter dem MUPL ) einen Auszug im 3er-Raster: Es gibt doch höheren Sachen, wie Ölflaschen, Küchenmaschinen, Weizengläser, Karaffen, megalomanischen Pfeffermühlen... die etwas mehr Platz in die Höhe benötigen.

Übrigens: Wenn Ihr Induktion habt, könnt Ihr den elektrischen Wasserkocher einmotten. Eine Sache weniger auf der Arbeitsplatte .
 
Hallo, danke für die vielen Tipps.

Mit den 95cm sind wir noch am probieren (die haben wir aktuell), wenn ich mir noch etwas auf die aktuelle Arbeitsplatte lege, um es höher zu machen bewegen sich meine Schultern so komisch.... ich muss das noch öfter mal schauen :-)

Mit Nobilia wurde uns das bis jetzt mehrfach durchgerechnet und angeblich sind andere Hersteller dann gleich eine Ecke teurer, was letztlich mit dem Budget problematisch wird. Oder anderes gesagt, gäbe es eine Alternative? Und wenn ja, wo liegen die Vorteile? Wir sind nicht verschlossen gegenüber "Besser" und fragen dann gerne gezielt danach bzw. suchen wo uns das angeboten werden könnte. Von den Größen her haben wir gefühlt bis jetzt alles bekommen, wobei wir wahrscheinlich auch nur Standardmaße kaufen. Bis jetzt waren wir in einem großem Möbelhaus, kleines Küchenstudio um der Ecke und einmal gar Online.

Zur toten Ecke. Die Wand wird so und so neu gezogen, also ist das kein Thema. Auf der anderen Seite ist der Flur und wir lassen einfach ein Loch und machen eine Tür hin. Dann haben wir im Flur einen 0,6x0,9m großen Einbauschrank direkt unter unsern Arbeitsplatte.

Danke für die Angabe mit den 5cm, bis jetzt hatten wir 10cm geplant. Gibt uns 5cm mehr bei den Schubfächern.

Das mit dem MUPL verlegen macht Sinn, er wandert nun Richtung Spüle.

"Drehtüren würde ich gar keine einbauen, sondern irgendwo (z.B. unter dem MUPL) einen Auszug im 3er-Raster: Es gibt doch höheren Sachen, wie Ölflaschen, Küchenmaschinen, Weizengläser, Karaffen, megalomanischen Pfeffermühlen... die etwas mehr Platz in die Höhe benötigen" Das habe ich nicht verstanden. Drehtüren sind keine geplant und MUPL ist bis jetzt auf volle Höhe angedacht, gerade GrünerPunkt braucht sehr viel Platz bei uns.

Auf Grund des Wasseranschlusses, welcher "unten rechts liegt" sollte der GS auch auf der rechten Seite stehen und da sehen wir leider keine Möglichkeit ihn höher zu setzen ohne Arbeitsplatte zu verlieren. Den benutzt man ja wirklich oft, wäre eine tolle Sache mit dem Hochsetzen. Bzw. wir haben da keine Idee, wie das gut ginge auf der rechten Seiten.

Mit dem Wasserkocher könnte man sich überlegen, bis jetzt sind wir es mit so gewohnt, aber noch haben wir nur 2 Herdplatten. Das wird sich zum Glück ja ändern. Nochmals Danke für die vielen Tipps. Planung muss ich dann mal aktualisieren.
 
Ich sehe gerade der Anhang mit der Wohnung funktioniert oben nicht richtig, hier noch einmal. Dann ist das mit dem Flur auch klarer.
Wohn.JPG
 
Och, entschuldigung, ich habe den Text zur bestimmung der optimalen Arbeitshöhe vergessen:
ARBEITSHÖHE ermitteln
3 Methoden haben sich da etabliert:
- abgewinkelter Ellbogen bis Boden messen und 15 cm abziehen
- Höhe Beckenknochen messen
- z. B. Bügelbrett nehmen und in verschiedenen Höhen Probeschnippeln und messen, wenn es einem am bequemsten erscheint, wobei dies der wichtigste Test ist.
Idealerweise ergeben alle 3 Methoden ca. denselben Wert
Ausführlicher in
Optimale Arbeitshöhen beschrieben.
 
Wie hoch ist die Brüstungshöhe des Fensters? Das Zipfel unten musste irgendwie besser zu nutzen sein.

Der gelbe Sack ist bei uns 70l und ist nicht im MUPL , sondern tatsächlich unter der Spüle. Ist er halb voll, wandert er in den Keller und wartet dort auf dem Abholtermin. Ich wollte anfänglich auch einen Mega-Eimer dafür einplanen, jetzt bin ich froh, dass ich den Müll keine drei Wochen in der Küche lagern muss.

Die Frage nach Nobilia habe ich gestellt, weil standardmäßig bei dem Hersteller nur ein niedriges Korpus in 5er-Raster angeboten wird, was für Euch ein Sockel von über 20 cm bedeuten würde. Es gibt von Nobilia auch der Maxi-Korpus (86,5), aber die Schrankwahl ist kleiner als beim Standardprogramm. Für Euch interessant wäre ein sog. 6-rasteriger Korpus 78-80 cm hoch) oder sogar der 90 cm hohen Korpus der Nolte Matrix 900. Hier zur Verdeutlichung:
Was heißt 6rasterig werden:
full




Typische Korpushöhen für 5-rasterig: 65cm, 70 cm, 72 cm, 75cm.

Typische Korpushöhen für 6-rasterig: 78cm, 79,8cm, 86,4cm

In
Korpushöhen - Rastermaße - Auszugs-Innenmaße - Stauraumplanung sind diverse Hersteller mit ihren Standardkorpushöhen verlinkt.

Wenn man dann z. B. einen 78cm hohen Korpus wählt, ergeben sich folgende Maße
- 78 cm Korpushöhe
- 4 cm APL-Höhe
- 10 cm Sockelhöhe
-----------------
= 92 cm Gesamthöhe=Arbeitshöhe

Typische Hersteller wären Schüller , Häcker , Ballerina , Bauformat , Beckermann , Brion, Leicht, Alno usw.
 
Wie hoch ist die Brüstungshöhe des Fensters? Das Zipfel unten musste irgendwie besser zu nutzen sein.
Das weiß ich jetzt gerade gar nicht. Ich denke mal theoretisch kann man die Arbeitsplatte bis ranziehen. Aber aktuell ist da ein Heizkörper, deswegen der Abstand. Wir würden das auch gerne besser nutzen. Ich frage mal die Baumenschen, ob wir nicht einen schmalen hohen Heizkörper auf der anderen Seite nehmen können. Dann haben wir mehr Küche. Auf der anderen Seite habe ich dann ein wenig Bedenken, ob sich dort dann Feuchtigkeit an der Wand sammelt, ist ein Altbau. Müssen wir dann sicherstellen, dass dort die Luft auch zirkulieren kann.

Der gelbe Sack ist bei uns 70l und ist nicht im MUPL, sondern tatsächlich unter der Spüle. Ist er halb voll, wandert er in den Keller und wartet dort auf dem Abholtermin. Ich wollte anfänglich auch einen Mega-Eimer dafür einplanen, jetzt bin ich froh, dass ich den Müll keine drei Wochen in der Küche lagern muss.
Das höt sich nach einer sehr guten Idee an. Wie ist dann der gelbe Sack unter der Spüle befestigt? Einfach reinstellen ist ja auch nicht so toll. Welches System bietet sich da an?

Die Frage nach Nobilia habe ich gestellt, weil standardmäßig bei dem Hersteller nur ein niedriges Korpus in 5er-Raster angeboten wird, was für Euch ein Sockel von über 20 cm bedeuten würde. Es gibt von Nobilia auch der Maxi-Korpus (86,5), aber die Schrankwahl ist kleiner als beim Standardprogramm. Für Euch interessant wäre ein sog. 6-rasteriger Korpus 78-80 cm hoch) oder sogar der 90 cm hohen Korpus der Nolte Matrix 900.
Schon ausprobiert, danke. Wir haben jetzt mit den verschiedenen Methoden gemessen und kommen auf 97cm bis 105cm! Aktuell haben wir größtenteils 95cm (oder weniger) und finden 95cm beide sehr bequem. Schon 98cm wirkt sehr ungewohnt (haben das mal mit Büchern ausprobiert) und oben drauf kommt ja meist noch ein Schneidebrett. Wir da auch etwas scheu, da 95cm für uns nicht zu niedrig ist und bei höher habe ich fast Angst das wir uns nicht daran gewöhnen. Wir werden das die Tage noch weiter probieren.

Wir haben ein Budget, inklusive Einbau von 8.000 Euro, lakierten Fronten in grau und E-Geräte, wobei wir brauchen "nur" Dunstabzug und Kochfeld. Kochfeld wird bei so 700 Euro landen. Welche Küchenherstellern von den genannten lohnt es sich da anzuschauen? Bzw. bei welchen braucht man es dann gleich gar nicht versuchen?

Da fällt mir noch ein. Wir haben aktuell einen sehr guten GS von Neff , welcher maximal eine Front von 72,5cm erlaubt und einen Mindestsockel von 9cm verlangt. Bieten die Firmen dann auch Lösungen dafür an? Bei Nobilia bsp. wird bei den 86,4cm Korpusen oben drauf ein Schubfach gelegt, welches dann en GS gut 15cm nach unten schiebt. Nicht so optimal. Auf der anderen Seite reicht uns dann Angebot an den Maxischränken von Nobilia. Mit einer einfachen Blende unten könnte ich viel besser leben.

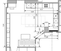
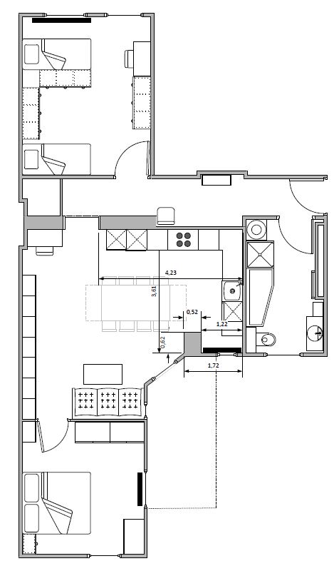
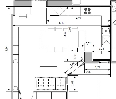
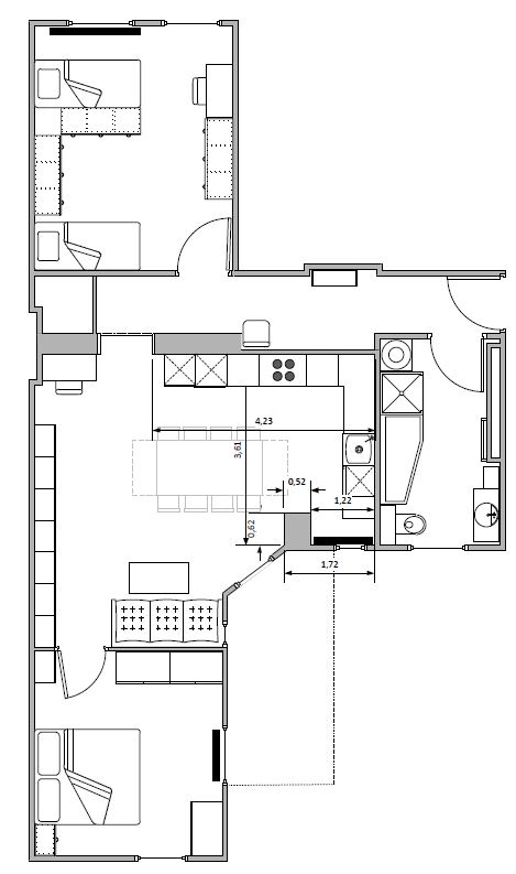
wie lang/breit ist der gesamte Wohn/Ess/Kochbereich?
Wohnung.jpg
Das Maßband sagt 5,54m x 6,45m, wobei es um die Ecke geht.
 
Zuletzt bearbeitet:
danke für den Plan.

Und jetzt wäre es gut, wenn du uns die restliche Möblierung beschreiben könntest. Denn ich kann mir das nicht so ganz vorstellen. Möbel bitte mit Massen.
 
danke für den Plan.

Und jetzt wäre es gut, wenn du uns die restliche Möblierung beschreiben könntest. Denn ich kann mir das nicht so ganz vorstellen. Möbel bitte mit Massen.

Das wird eine Schrankwand aus Modulen a 60x60cm (Ikea Besta). Den genauen Aufbau wissen wir noch nicht. Kaufen wir erst später. Ziel ist es möglichst viel Platz darin zu schaffen. Die zwei eckig/runden Dinger sind zwei Regallautsprecher zum Musik hören.

Dann gibt es ein kleines Sofa ca 2,1m breit und einen Ausziehtisch (auch noch nicht gekauft). Maße sind also noch flexibel. Wie du siehst gibt es vieles noch nicht und kommt erst später, das Budget reicht erst einmal nur für die Küche :-) Hat für uns Priorität.
 
Zuletzt bearbeitet:
@ElsaM
Ich bin gerade dabei deinen Grundriss im Alno anzulegen. Befindet sich planunten rechts in der Küche ein Fenster? Wenn ja, dann bitte die Maße und BRH mitteilen. Was soll der schwarze Strich davor bedeuten?
 
Hallo Mela,

der schwarze Strich ist ein Heizkörper, na aktuellster Planung wird der aber verlegt und steht dann der Küche nicht mehr im Wege.

Die Brüstungshöhe muss ich gestehen haben wir doch tatsächlich vergessen zu messen. Das Fensterbrett ist 60cm breit und das Fenster selbst ca 45cm. Am Donnerstag gehen wir messen. Vielleicht im Moment einfach davon ausgehen, dass es hoch genug ist. Ist geschätzt 90cm plus minus 15cm.

Finde ich super nett, dass du uns helfen willst. Danke.
 
Wenn ihr messt, dann bitte noch die fehlenden Maße nachtragen:
planoben Breite der Tür
wieviel Grad hat der Winkel - einschließe Maße Balkontür
die planuntere Wand mit Tür
 
Wenn ihr messt, dann bitte noch die fehlenden Maße nachtragen:
planoben Breite der Tür
wieviel Grad hat der Winkel - einschließe Maße Balkontür
die planuntere Wand mit Tür
Werden wir alles brav eintragen, danke. Die Maße stimmen bereits in der Zeichnung, werde sie ergänzen und dann hochladen. Am Donnerstag steht dann alles hier.
 
:kiss::kiss: und vergesst das Fenster planunten neben dem Kamin nicht. Breite, Höhe und BRH.

Trotzdem habe ich einmal eine erste Planung gemacht. Euer Budget ist nicht üppig, so dass ich nicht beurteilen kann, ob es für meine Planung ausreicht. Wenn nicht, würde ich vorübergehend auf die DA verzichten, denn eine gute schlägt schon zu Buche. Mein Lüfterbaustein im Umluftbetrieb hat rund 1.800 Euronen gekostet. Er ist sein Geld allerdings wert, da sich nirgends mehr Fett abschlägt.

Noch eine Frage. Planunten der Mauervorsprung, handelt es sich um einen Kamin und ist ein Ofen für die Zukunft geplant?

Nun zur Planung, planrechts unten beginnend:
11 cm Blende
60er tiefenreduizierter Drehtürenschrank (39 cm)
Blende
GSM
60er Spüle mit Abtropfe über GSM
40er MUPL
60er Auszug 3-3 mit Innenschublade wegen Optik
tote Ecke - belebt vom Flur aus - auf Übertiefe achten mit Auszügen, denn alles andere wäre sinnfrei
Oberschränke: 80 - 60 - 80

planoben, ab toter Ecke:
90er Auszug mit Kochfeld
90er Auszug 1-1-2-2
BO - momentan mit Klappfach, allerdings 45 cm hoch damit eine späterer DGC eingeschoben werden kann - auch an die Steckdosen denken
Wange - unten ausgeklinkt wegen Schmutzecken
StandAlone - ich habe etxtra etwas Platz gelassen, damit ihr mit der Wahl beim Neukauf nicht eingeschränkt seid.

Ich habe auch Induktion und benutze nach wie vor den Wasserkocher. Warum? Ich wollte keinen Wasserkessel auf dem Kochfeld stehen haben und finde den Wasserkocher nach wie vor praktisch. Er könnte bei meiner Planung planrechts stehen.
 

Anhänge

  • ElsaM_Mela.KPL
    3,9 KB · Aufrufe: 222
  • ElsaM_Mela.POS
    7,3 KB · Aufrufe: 237
  • ElsaM_Mela_Draufsicht.JPG
    ElsaM_Mela_Draufsicht.JPG
    85,5 KB · Aufrufe: 268
  • ElsaM_Mela_Grundriss.JPG
    ElsaM_Mela_Grundriss.JPG
    25,6 KB · Aufrufe: 243
  • ElsaM_Mela_Kochfeld.JPG
    ElsaM_Mela_Kochfeld.JPG
    78,1 KB · Aufrufe: 256
  • ElsaM_Mela_Spüle.JPG
    ElsaM_Mela_Spüle.JPG
    78,4 KB · Aufrufe: 264
Der Vorsprung sind Steigleitungen, Heizung und Wasser. Von da aus nach oben ging mal ein schmales Bad. Es werden dann Leitung auf bis zu 30 cm Höhe und 10cm im Durchmesser unten an der Wand in Richtung Bad gelegt.

Hinsichtlich Dunstabzugshaube, was wäre da zu empfehlen?

Beim MUPL, welches System bietet sich da im konkreten Fall an? Ich suche immer und scheinbar passen nirgends die Maße richtig. :(

Danke für die Tips :-)
 

Ähnliche Beiträge

Neff Hausgeräte Ballerina Küchen Blum Bewegungstechnologie Weibel - Intelligente Küchenlüftung

Neff Spezial

Blum Zonenplaner

Weibel Abluft-Tuning

Weibel Abluft-Tuning
Zurück
Oben