Agent49
Mitglied
- Beiträge
- 1
L-Küche / Halbinsel in 4,10m x 2,40m Raum - Backofen vor Spülenanschluss
Hi,
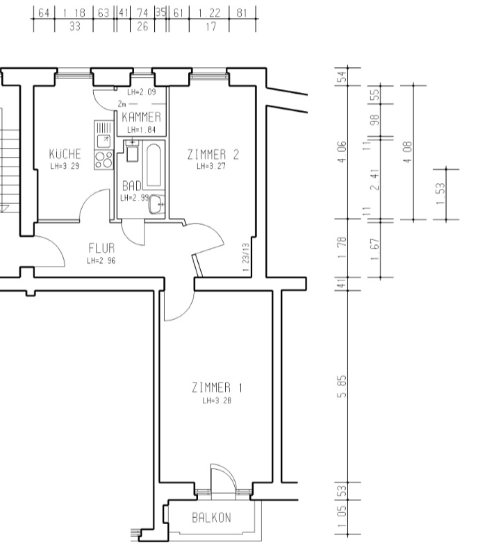
ich ziehe in meine erste eigene Wohnung (60m²) und möchte zunächst meine Küche (10,2m²) gemütlich einrichten. Ich koche recht gerne und freue mich darauf mit meinen Freunden und meiner Familie gemeinsam zu kochen und es in der Küche gemütlich zu haben. Hierfür soll die Halbhinsel einer L-Form dazu dienen, sich beim Kochen besser zu unterhalten und gemeinsam Essen zubereiten zu können.
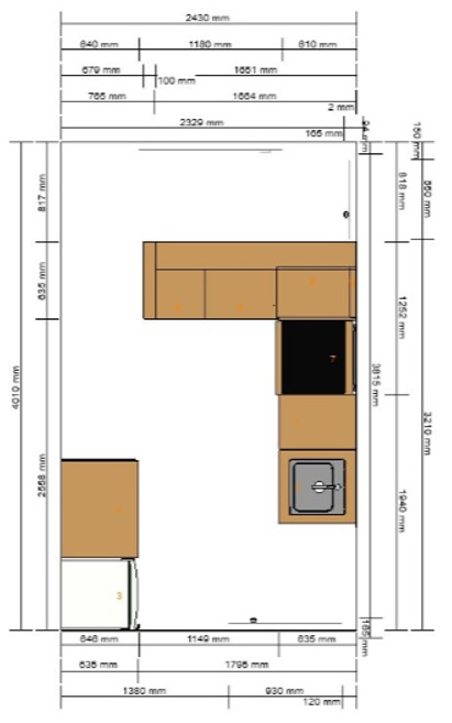
Aufgrund des Grundrisses der Küche (4,10m x 2,40m), der Aschlüsse bzw. des Fließenspiegels an der rechten Wand sowie der Eingangs- und Kammertür stehen mir wandseitig 2,25m und in den Raum reinragend/L-seitig 1,75m zur Verfügung. Die L-Seite besteht aus 37,5cm Unterschränken und 63,5cm Arbeitsplatte mit Überstand in Richtung hinterer Wand, wo zwei Stühle zum sitzen dienen sollen. Auf der linken Seite steht ein freistehender Kühlschrank und ein 80cm breiten Unterschrank mit Arbeitsplatte.
Ich hätte gerne den Herd, wie im Bild (schwarz), links von Geschirrspüler /Spüle. Die Anordnung der Anschlüsse ist jedem anders herum. Darf der Ofen vor dem Spülmaschinenanschluss eingebaut werden?
Mein Budget ist recht klein, so dass ich plane zunächst nur Unterschränke, Arbeitsplatte, Spüle und Einbauherd anzuschaffen. Fronten und Schubladen sollen später kommen. Kühlschrank, Toaster und Waschmaschine (in der Kammer) besitze ich bereits.
Was haltet ihr vom grundsätzlichen Plan?
Achja, das letzte Bild ist nur Inspiration wie mir Fronten und Arbeitsplatten am besten gefalllen, sicherlich nicht mein Budget.
Vielen Dank schonmal für Antworten!
Checkliste zur Küchenplanung
Personenkriterien und Ergonomie
Anzahl Personen im Haushalt: 1
Davon Kinder: keine
Körpergrößen aller Hauptbenutzer in cm (wegen Arbeitshöhe ): 173
Welche Arbeitshöhe ist angedacht (in cm)?: 80
Gebäudekriterien
Art des Gebäudes: Bestandsbau > Umbauten ausgeschlossen, Miete
Brüstungshöhe des Fensters (in cm): 90
Fensterhöhe (in cm): 190
Raumhöhe in cm: 330
Heizung: N. a.
Sanitäranschlüsse: fix
Einbaugerätekriterien
Ausführung Kühlgerät: Stand-Alone bis 60cm Breite
Einbaukühlgerät Größe: N. a.
Ausführung Tiefkühl (TK)-Gerät: Im Kühlschrank bis 2 Schubladen unten
Dunstabzugshaube: keine
Hochgebauter Backofen : nein
Geplante Heißgeräte: Standmikrowelle, Backofen
Hochgebauter Geschirrspüler : nein
Art des Kochfeldes: Induktion
Kochfeldbreite (ca. in cm): 58
Sitzmöglichkeiten
Sitzmöglichkeit in der Küche / im Küchenbereich: Überstehende Arbeitsplatte
Sitzmöglichkeit: Für wieviel Personen?: Für 2 Personen
Sitzmöglichkeit: Tisch - wenn gesonderter Tisch oder offene Küche: Wird nach Bedarf neu gekauft
Gewünschte oder vorhandene Tischgröße:
Wofür soll der Sitzplatz in der Küche genutzt werden und wie häufig: Zum Unterhalten beim Kochen, gemeinsamen Schnippeln/Vorbereiten, kleiner Snack, Bar
Stauraumplanung
Was steht auf der Arbeitsplatte oder soll dort stehen?: Kaffeemaschine, Wasserkocher, Toaster
Welche weiteren Küchenmaschinen müssen in der Küche untergebracht werden: Mixer
Was soll in der Küche außer den Standards untergebracht werden: N. a.
Welchen Stauraum gibt es sonst noch: Speisekammer, Keller
Kochgewohnheiten
Was/wie wird gekocht? (Alltagsküche, Menüs, Snacks usw): Vorwiegend herzhafte und vegetarische Mittag- / Abendessen und Frühstück. Pizza, Pasta, Aufläufe, Eintöpfe. Desserts und Kuchen eher selten.
Wie häufig wird gekocht: Sonstiges (evtl. im Beitragstext benennen)
Wird alleine gekocht? Oder auch gemeinsam? Mit und für Gäste?: Alleine sowie mit und für Gäste.
Spülen und Müll
Spülenform: Noch nicht festgelegt
Welche Mülltrennung soll in der Küche vorgehalten werden: Altpapier, Biomüll, Gelber Sack Müll, Restmüll
Sonstiges
Steht schon ein Küchenhersteller fest oder wird bevorzugt: nein
Steht schon ein Gerätehersteller fest oder wird bevorzugt: Vorschlag: Gorenje für den Backofen
Küchenstil: Klassisch
Was stört an der bisherigen Küche und was soll die neue Küche unbedingt können? Warum?: Bis jetzt nur zusammengewürfelte WG-Küchen. Neue Küche:
- Induktionseinbauherdset
- Möglichkeit beim gemeinsamen Zubereiten der Speisen gegenüber/seitlich zueinander zu stehen
Preisvorstellung (Budget): 1500 - 2500 Euro
Angehängte Dateien
Hi,
ich ziehe in meine erste eigene Wohnung (60m²) und möchte zunächst meine Küche (10,2m²) gemütlich einrichten. Ich koche recht gerne und freue mich darauf mit meinen Freunden und meiner Familie gemeinsam zu kochen und es in der Küche gemütlich zu haben. Hierfür soll die Halbhinsel einer L-Form dazu dienen, sich beim Kochen besser zu unterhalten und gemeinsam Essen zubereiten zu können.
Aufgrund des Grundrisses der Küche (4,10m x 2,40m), der Aschlüsse bzw. des Fließenspiegels an der rechten Wand sowie der Eingangs- und Kammertür stehen mir wandseitig 2,25m und in den Raum reinragend/L-seitig 1,75m zur Verfügung. Die L-Seite besteht aus 37,5cm Unterschränken und 63,5cm Arbeitsplatte mit Überstand in Richtung hinterer Wand, wo zwei Stühle zum sitzen dienen sollen. Auf der linken Seite steht ein freistehender Kühlschrank und ein 80cm breiten Unterschrank mit Arbeitsplatte.
Ich hätte gerne den Herd, wie im Bild (schwarz), links von Geschirrspüler /Spüle. Die Anordnung der Anschlüsse ist jedem anders herum. Darf der Ofen vor dem Spülmaschinenanschluss eingebaut werden?
Mein Budget ist recht klein, so dass ich plane zunächst nur Unterschränke, Arbeitsplatte, Spüle und Einbauherd anzuschaffen. Fronten und Schubladen sollen später kommen. Kühlschrank, Toaster und Waschmaschine (in der Kammer) besitze ich bereits.
Was haltet ihr vom grundsätzlichen Plan?
Achja, das letzte Bild ist nur Inspiration wie mir Fronten und Arbeitsplatten am besten gefalllen, sicherlich nicht mein Budget.
Vielen Dank schonmal für Antworten!
Checkliste zur Küchenplanung
Personenkriterien und Ergonomie
Anzahl Personen im Haushalt: 1
Davon Kinder: keine
Körpergrößen aller Hauptbenutzer in cm (wegen Arbeitshöhe ): 173
Welche Arbeitshöhe ist angedacht (in cm)?: 80
Gebäudekriterien
Art des Gebäudes: Bestandsbau > Umbauten ausgeschlossen, Miete
Brüstungshöhe des Fensters (in cm): 90
Fensterhöhe (in cm): 190
Raumhöhe in cm: 330
Heizung: N. a.
Sanitäranschlüsse: fix
Einbaugerätekriterien
Ausführung Kühlgerät: Stand-Alone bis 60cm Breite
Einbaukühlgerät Größe: N. a.
Ausführung Tiefkühl (TK)-Gerät: Im Kühlschrank bis 2 Schubladen unten
Dunstabzugshaube: keine
Hochgebauter Backofen : nein
Geplante Heißgeräte: Standmikrowelle, Backofen
Hochgebauter Geschirrspüler : nein
Art des Kochfeldes: Induktion
Kochfeldbreite (ca. in cm): 58
Sitzmöglichkeiten
Sitzmöglichkeit in der Küche / im Küchenbereich: Überstehende Arbeitsplatte
Sitzmöglichkeit: Für wieviel Personen?: Für 2 Personen
Sitzmöglichkeit: Tisch - wenn gesonderter Tisch oder offene Küche: Wird nach Bedarf neu gekauft
Gewünschte oder vorhandene Tischgröße:
Wofür soll der Sitzplatz in der Küche genutzt werden und wie häufig: Zum Unterhalten beim Kochen, gemeinsamen Schnippeln/Vorbereiten, kleiner Snack, Bar
Stauraumplanung
Was steht auf der Arbeitsplatte oder soll dort stehen?: Kaffeemaschine, Wasserkocher, Toaster
Welche weiteren Küchenmaschinen müssen in der Küche untergebracht werden: Mixer
Was soll in der Küche außer den Standards untergebracht werden: N. a.
Welchen Stauraum gibt es sonst noch: Speisekammer, Keller
Kochgewohnheiten
Was/wie wird gekocht? (Alltagsküche, Menüs, Snacks usw): Vorwiegend herzhafte und vegetarische Mittag- / Abendessen und Frühstück. Pizza, Pasta, Aufläufe, Eintöpfe. Desserts und Kuchen eher selten.
Wie häufig wird gekocht: Sonstiges (evtl. im Beitragstext benennen)
Wird alleine gekocht? Oder auch gemeinsam? Mit und für Gäste?: Alleine sowie mit und für Gäste.
Spülen und Müll
Spülenform: Noch nicht festgelegt
Welche Mülltrennung soll in der Küche vorgehalten werden: Altpapier, Biomüll, Gelber Sack Müll, Restmüll
Sonstiges
Steht schon ein Küchenhersteller fest oder wird bevorzugt: nein
Steht schon ein Gerätehersteller fest oder wird bevorzugt: Vorschlag: Gorenje für den Backofen
Küchenstil: Klassisch
Was stört an der bisherigen Küche und was soll die neue Küche unbedingt können? Warum?: Bis jetzt nur zusammengewürfelte WG-Küchen. Neue Küche:
- Induktionseinbauherdset
- Möglichkeit beim gemeinsamen Zubereiten der Speisen gegenüber/seitlich zueinander zu stehen
Preisvorstellung (Budget): 1500 - 2500 Euro
Angehängte Dateien
Anhänge
-
wohnung.jpg64,2 KB · Aufrufe: 221 -
Küche-Übersicht.jpg48,6 KB · Aufrufe: 258 -
Grundriss.jpg44 KB · Aufrufe: 218 -
IMG_20190731_194130.jpg50,6 KB · Aufrufe: 225 -
IMG_20190731_194323.jpg67,7 KB · Aufrufe: 209 -
IMG_20190731_194344.jpg44,6 KB · Aufrufe: 208 -
dark-wood-white-kitchen_060716_03-800x533.jpg86,4 KB · Aufrufe: 229
