Küchenplanung für Neubau

Chris812801

Mitglied
Beiträge
18
Hallo liebe Forengemeinde,

wir sind aktuell in der Planungsphase unserer Küche für einen Neubau. Wir haben uns auch schon die ein oder andere Küchen planen lassen, so dass wir ungefähr schon wissen, was wir möchten. Vielleicht können wir mit Eurer Hilfe die ganze Planung noch etwas optimieren...

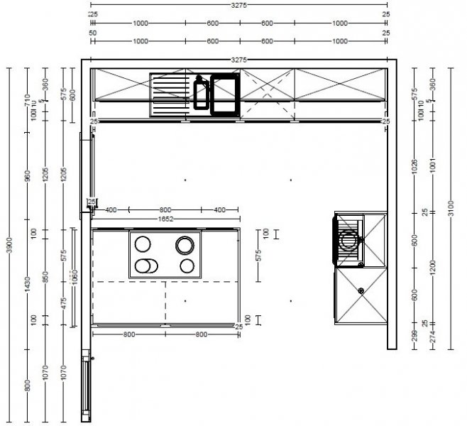
Wir möchten auf der Küchenwand mit 3,30m (Rohbaumaß) eine Aufteilung der Unterschrankzeile 100/60/60/100 cm, Oberschränke passend dazu. Da wir ein 6er Raster bevorzugen wäre uns hier eine Aufteilung 1/2/3 der Schubladenhöhen ganz lieb. In Anhang findet sich zu dieser Wand dazu mal eine Skizze, um das Ganze besser dar zu stellen. Wir möchten also eine weiß Hochglanz Front mit aufgesetzten Griffen.

Zwischen der Tür zum HWR und der Terrassentür soll eine Kochinsel stehen. Die Maß wären hier so 1,1m x 1,60m. Also 4x80er Auszüge, die Rückseite schmaler.
Die Arbeitsplatte soll ein Granit Nero Assoluto sein.

An der 3,10m Wand soll ein einzeln stehender Schrank für Kühlschrank, Backofen und Mikrowelle stehen. Die Wangen sollen hier zumindest im Sichtbereich aus dem Essbereich in glänzend sein. Das gilt auch für die Kochinsel.

Ich hoffe ich konnte jetzt erst einmal einen groben Überblick zu unserer Planung geben.
Es werden ja sicherlich Fragen von Euch kommen, die ich dann gerne im nächsten Beitrag beantworten werde.


Die Installation des Alno Küchenplaners funktioniert leider auf unserem Rechner nicht, so dass ich mit den zwei Dateien nicht dienen kann.


Meine Fragen wären jetzt:
Gibt es hier Optimierungspotential?
Was wird so eine Küche kosten? Kommen wir hier mit unserem geplanten Budget hin?
Wo können sich kosten reduzieren lassen ohne die Anmutung der Küche großartig zu ändern?


Checkliste zur Küchenplanung von Chris812801

Anzahl Personen im Haushalt : 2
Davon Kinder? : keine
Körpergrössen aller Hauptbenutzer (wegen Arbeitshöhe ) in cm : 183cm und 167cm
Art des Gebäudes? : Neu-/Umbau, Planänderungen möglich
Brüstungshöhe des Fensters (in cm) : gibt es nicht
Fensterhöhe (in cm) : gibt es nicht
Raumhöhe in cm: : 255 - 257 cm
Heizung : Fussbodenheizung
Sanitäranschlüsse : variabel an aktueller Wand
Ausführung Kühlgerät? : Integriert im Hochschrank (60cm)
Kühlgerät Größe : bis 140 cm Höhe
Ausführung Tiefkühl (TK)-Gerät : Nicht erforderlich bzw. steht woanders
Dunstabzugshaube? : Umluft
Hochgebauter Backofen ? : Ja
Hochgebauter Geschirrspüler ? : nein
Kochfeldart? : Ceran (herkömmlich)
Kochfeldbreite ca. (in cm)? : 80
Spülenform: : 1 Becken ohne Abtropffläche
Weitere geplante Heißgeräte : Einbaumikrowelle
Küchenstil? : modern
Sitzmöglichkeit in der Küche / im Küchenbereich als : Gesonderter Tisch
Sitzmöglichkeit: Für wieviel Personen? : für 6 Personen
Sitzmöglichkeit: Tisch - wenn gesonderter Tisch oder offene Küche : Vorhandener Tisch
Gewünschte o. vorhandene Tischgröße : 170cm - 250cm
Wofür soll der Sitzplatz in der Küche genutzt werden? Wie häufig? : täglich
Welche Arbeitshöhe ist angedacht (in cm)? : 90cm
Was steht auf der Arbeitsplatte oder soll dort stehen? : Kaffeemaschine, Wasserkocher, Messerblock, Küchenmaschine, Toaster
Welche weiteren Küchenmaschinen müssen in der Küche untergebracht werden? : Küchenmaschine, Wasserkocher, Toaster, Mixer, Pürierstab
Was soll in der Küche außer den Standards untergebracht werden? : Geschirr komplett (nichts in Ess-/Wohnzimmer)
Welchen Stauraum gibt es sonst noch? : Hauswirtschaftsraum
Was/wie wird gekocht? (Alltagsküche, Menüs, Snacks usw) : Alltagsküche, Snacks, ab und zu mal aufwendigere Menüs
Wie häufig wird gekocht? : (fast) täglich 1x warm
Wird alleine gekocht? Oder auch gemeinsam? Mit und für Gäste? : Meistens alleine
Was stört an der bisherigen Küche und was soll die neue Küche unbedingt können? Warum? : Bisher nichts, bis auf die Frontenfarbe...
Steht schon ein Küchenhersteller fest oder wird bevorzugt? : Häcker , Schüller , Ballerina (6er Raster)
Steht schon ein Gerätehersteller fest oder wird bevorzugt? : Neff , Siemens
Preisvorstellung (Budget) : bis 10.000,-
 

Anhänge

  • Küchengrundriss.jpg
    Küchengrundriss.jpg
    72 KB · Aufrufe: 252
  • Küchenrückwand.jpg
    Küchenrückwand.jpg
    28,6 KB · Aufrufe: 199
  • Küchenplan.jpg
    Küchenplan.jpg
    58 KB · Aufrufe: 229
  • KüchePlan2.jpg
    KüchePlan2.jpg
    27,8 KB · Aufrufe: 231
Zuletzt bearbeitet:
AW: Küchenplanung für Neubau

Hi Chris,

:welcome: im Küchenforum.
Spontan würde ich sagen Hochschränke hinten rechts in die Zeile zu integrieren und größer zu wählen. Dann die Insel auf 2m verbreitern. Manchen im Forum würde die GSP im Weg stehen in der Mitte. Dann auf jedenfall noch den MUPL einplanen.
Ihr scheint bewußt 1-2-3 gewählt zu haben trotzdem braucht man 3er recht selten, ich würde bsp unter dem Kochfeld auf 1-1-2-2 gehen, dann kann da Besteck und Schopflöffel, Pfannenwender Folien etc. rein. Dann noch die Frage was ihr im HRW habt, ggf die Küche spiegeln, damit ihr nicht immer um die Insel laufen müßt, um da hin zu kommen.

10.000€ halte ich für sehr sportlich, Ballerina ist eine etwas teurere Marke, Lack ist teuer eine Alternative wäre Schichtstoff glänzend. Günstiger als eine Granit APL ist zB auch eine steinähnliche APLs aus Schichtstoff. Dann sind klar auch die Geräte ein Faktor, wenn ihr zB das Kochen an die Wand setzt sind Wandhauben auch günstiger als Inselhauben.

LG, Muckelina
 
AW: Küchenplanung für Neubau

Hallo Danke für die Antwort. Die Aufteilung 1-1-2-2 finde ich eigentlich auch gar nicht so schlecht. Danke für die Anregung.

Die Küche zu spiegeln, darüber haben wir uns schon unterhalten. Da vor der Kochinsel die Essecke stehen wird, müssten wir uns bei Vollbelegung immer zwischen Tisch und Kochinsel durchquetschen. Daher haben wir bewusst den Durchgang auf dieser Seite. Im HWR wird die ganze Haustechnik stehen, ein zusätzlicher Kühlschrank, Waschmaschine, etc.

Wie meinst Du das mit der Kochinsel auf 2m verbreitern? Wir haben nur 3,3m Raumbreite. Wenn an der anderen Wand noch der Hochschrank mit Kühlschrank und Backofen steht hätten wir ja gerade mal 60cm als Durchgang. Das wäre aber eindeutig zu wenig.

Eine Schichtstoff Arbeitsplatte kommt auf gar keinen Fall in Frage. Ich habe bisher noch keine einzige Schichtstoff Arbeitsplatte gefunden, die mir optisch zusagt.
Nero Assoluto ist der einzige Stein, den ich mir gefallen lassen wurde. Ich muss dazu sagen, dass ein dunkler Grau/Schwarz Ton bei uns gesetzt ist. Würden wir ein Holzdekor wollen, wäre es sicherlich einfacher etwas zu finden.

Welcher Gesamtpreis schwebt Dir denn eher vor, wenn Du sagst, dass das Vorhaben schon recht sportlich ist.

LG Chris
 
AW: Küchenplanung für Neubau

Ich habe Muckelinas Planung einmal umgesetzt... Allerdings könnte es mit dem Platz knapp werden für Spülenzeile, ggf. müsste man auf einen 50er Spülenschrank zurückgreifen.

Steht das Haus schon?
 

Anhänge

  • chris.POS
    6,5 KB · Aufrufe: 187
  • chris.KPL
    3,9 KB · Aufrufe: 167
  • chris.jpg
    chris.jpg
    42 KB · Aufrufe: 197
  • chris - grundriss.JPG
    chris - grundriss.JPG
    30,3 KB · Aufrufe: 183
AW: Küchenplanung für Neubau

Hallo Conny,

nein, das Haus steht noch nicht. Aber wir schließen die Planungen für den Grundriss bald ab. Der Bauantrag muss endlich mal eingereicht werden.

Bei Deiner gezeigten Variante würde uns glaube ich etwas viel Stellfläche für Küchengeräte verloren gehen (hinten rechts). Hier würden mindestens 4 Geräte stehen.
 
AW: Küchenplanung für Neubau

Dafür ist in deiner Planung die Kochinsel zu klein... ;-) Da ist das arbeiten wirklich nur auf das Kochen beschränkt. Selbst zum Anrichten ist der Platz knapp.
 
AW: Küchenplanung für Neubau

Meinst Du? Kann ich mir eben noch nicht so richtig vorstellen. Wir sind zwei Personen und kochen auch nicht die großen Mengen, geschweige denn oft...
 
AW: Küchenplanung für Neubau

Dieser frei stehende Wandstummel, wie lang und welche Wandstärke hat er? Ist er tragend?
 
AW: Küchenplanung für Neubau

Wie willst du auf 40cm etwas arbeiten? Simuliere dir das einmal.
 
AW: Küchenplanung für Neubau

Danke Conny :rose:.
@Chris: Conny hat absolut recht 40 cm neben dem Kochfeld ist wirklich sehr wenig, dort stellt man viele Sachen auf, die man später auch zum Kochen benötigt und schnibbelt ggf auch noch, da ist das sehr wenig, dann mind. 2m breit oder ggf auch 2,30. Welche Geräte habt ihr den zu verstauen? Bis auf die Kaffeemaschine könnte man selten genutze Geräte ja auch in den HWR stellen und bei Bedarf rausholen, Schneidemaschinen kann man auch in Schubladen integrieren, weil so groß ist die Küche nicht.
Also bzgl Preis, ich bin kein Verkäufer habe nur Preise bei Freunden und hier im Forum mitbekommen, klar spielt es noch eine Rolle wieviel das Studio kostet Lage etc. grob schätzen würde ich 14 (ohne Gewähr!)
LG, Muckelina
 
AW: Küchenplanung für Neubau

@ Conny/Muckelina: Der Wandstummel ist ca. 1m lang und 17,5 cm dick. Ob tragend oder nicht kann ich gar nicht sagen. Wieso?

Warum sollte ich direkt neben dem Kochfeld arbeiten? Ich habe doch auf der anderen Seite genug Arbeitsfläche (insg. 160x60cm) wo ich schnibbeln kann... und auf der anderen Seite von der Insel auch nochmal (160x50cm).
Was stellt ihr denn so dort auf bzw. für was nutzt ihr diese Fläche genau?

Die Töpfe stehen beim Kochen auf dem Kochfeld, daneben vielleicht etwas Besteck oder nen Kochlöffel und ne Flasche Öl.

Aktuell haben wir in unserer Küche noch weniger Arbeitsfläche (ca. die Hälfte). Das geht gerade noch so...
 
AW: Küchenplanung für Neubau

Schau mal auf die Inselmaße... Da hast du rechts und links vom Kochfeld 40cm eingeplant. ;-) ...und 40cm neben dem Kochfeld ist einfach zu wenig um vernünftig darauf zu arbeiten, auch wenn du gegenüber mehr Platz hast.

Wenn wir planen, spielen wir mit den Möglichkeiten...
 

Anhänge

  • chris - grundriss.JPG
    chris - grundriss.JPG
    17,9 KB · Aufrufe: 186
AW: Küchenplanung für Neubau

Welche 40cm gemeint sind ist mir schon klar...
Aber die Frage nach dem, was ihr an der Stelle aufstellt oder arbeiten wollt würde mich interessieren.
 
AW: Küchenplanung für Neubau

Meine Halbinsel ist mein Hauptarbeitsplatz, auch wenn die Spüe in der Wandzeile ist. Es ist einfach toll auf einer Insel zu arbeiten.
 
AW: Küchenplanung für Neubau

Wenn man die Insel auf 1,8m verbreitern würde, wäre noch ein Durchgang von ca. 80-85cm vorhanden. Ist dann schon etwas wenig, oder?
 
AW: Küchenplanung für Neubau

Ein Durchgang von 85 wäre absolutes min., da es ABER der einzige Zugang zur Küche ist und hier auch KS und BO stehen, die mam ja öffnen will wäre es für mich zu eng.
 
AW: Küchenplanung für Neubau

Das denke ich nämlich auch. Wenn der Backofen aufgeklappt ist, muss man auch noch einigermaßen vorbei kommen...
 
AW: Küchenplanung für Neubau

Eine Insel macht man doch deshalb, weil man mit dem Gesicht in den Raum arbeiten möchte statt an der Wand. Zwei Mal 40cm reicht dafür einfach nicht aus, da kann man weder Gemüse schneiden noch Teige ausrollen oder Backofengerichte vorbereiten.

Außerdem ist an der Insel der Kopf frei, ich persönlich mag es überhaupt nicht an Wandzeilen mit Hängeschränken vor der Stirn zu arbeiten.

Connys Plan ist gut :top: Eventuell auch mit Spüle auf der Insel statt an der Wand, das ist immer Geschmackssache.
 
AW: Küchenplanung für Neubau

Und wenn man das Kochfeld Richtung Wand verschiebt? Aufteilung 20/60 cm.
Auf den freistehenden Hochschrank wollen wir eigentlich nicht verzichten.
 
AW: Küchenplanung für Neubau

20cm zur Wand ist leider auch nicht viel...

Ich habe noch einmal geschoben... Dazu sollte der Küchengrundriss 330cm Breite (kein Rohbaumaß) bekommen, sonst wird es knapp.

Die Küche hat in meiner Planung eine Schiebetür bekommen, die frei stehende Wand im Wohnzimmer habe ich um 25cm gekürzt. Das verschafft dem Tisch mehr Luft.
Einen direkten Zugang von der Küche zum Esszimmer gibt es jetzt nicht mehr, aber so weit ist der Umweg zum Tisch ja nicht, das sind nur wenige Schritte, die man mehr laufen muss....

Das Budget, wird aber auf keinen Fall eingehalten werden können, schon gar nicht mit Granit...

Kochen habe ich in der Wandzeile geplant. Den Dunstabzug habe ich als Lüfterbaustein angedacht. Die Umluftbox könnte dann im HWR platziert werden. Kochen an der Wand ist im Bezug auf Querströmungen günstiger als auf einer Insel. Die Unterschränke übertief, die Wandschränke etwas von der Wand abgerückt.
Wenn das für euch nun ein absolutes nogo wäre, könnte man das Kochfeld aber auch mit auf die "Insel packen und die Wandzeile noch einmal überarbeiten... ;-)

In dieser Planung hättest du sehr viel Stauraum und auch der Müll unter der APL, fehlt in meiner Planung nicht...

full
 

Anhänge

  • chris grundriss.JPG
    chris grundriss.JPG
    26 KB · Aufrufe: 200
  • chris1.jpg
    chris1.jpg
    35,8 KB · Aufrufe: 187
  • chris2.jpg
    chris2.jpg
    42,2 KB · Aufrufe: 181
  • chris3.jpg
    chris3.jpg
    35,7 KB · Aufrufe: 193
  • chris4.jpg
    chris4.jpg
    37,8 KB · Aufrufe: 194
  • chris2.POS
    10,5 KB · Aufrufe: 175
  • chris2.KPL
    3,9 KB · Aufrufe: 184

Ähnliche Beiträge

Neff Hausgeräte Ballerina Küchen Blum Bewegungstechnologie Weibel - Intelligente Küchenlüftung

Neff Spezial

Blum Zonenplaner

Weibel Abluft-Tuning

Weibel Abluft-Tuning
Zurück
Oben