Küchenplanung für Neubau EFH

Rethgif

Mitglied
Beiträge
6
Hallo zusammen,

ich bin wirklich froh dieses Forum gefunden zu haben, weil ich mitten in der Planung für die Küche von unserem EFH stecke und dabei auch gerade feststecke.
Wir sind mit unserem Grundriss der Küche schon bei einem Küchenplaner gewesen, waren aber mit der Ergebnis nicht zufrieden. Ob das am Planer lag oder an unserem Grundriss kann ich nicht beurteilen. Nachdem ich mir jetzt 2 Nächte mit dem Alno -Planer um die Ohren geschlagen habe, finde ich unseren Grundriss gar nicht mehr so toll. Ich verteufele sogar die vielen geplanten Fenster. :stocksauer: Da das Haus noch nicht gebaut ist, sind aber bei den Fenstern und bei einigen anderen Dingen noch Änderungen möglich. Müsste ich halt mit dem Architekten besprechen.

Zu unserem Vorhaben:
Wir sind noch zu Zweit, aber planen aber schon mal für die Zeit zu 4. mit 2 Kindern, denn den Hausbau sollte man ja schon mal für die Zukunft planen.
Die Küche soll tendenziell eher rustikal aussehen. Viel Holz oder Holzlook (Budgetfrage) und eine schwarze Naturstein-Arbeitsplatte .
Zusätzlichen Lagerraum haben wir noch in der Schleuse und im Keller, wo u.a. eine Gefriertruhe stehen wird. Daher soll in der Küche nur ein kleines Gefrierfach im Kühlschrank integriert sein.

Zu meinem momentan größtem Problem:
Wo soll das Kochfeld hin? Der Küchenplaner, der uns zunächst einen Entwurf gemacht hat, hat einfach mal die gelieferten Grundrissmaße ignoriert (ohne uns darauf hinzuweisen) und in der U-Form dem den Herd an die Wand links oben neben das Fenster gepackt, obwohl dort definitiv kein Herd hinpasst. Das haben wir aber erst festgestellt, nachdem wir den Alno Küchenplaner benutzt haben.
Ich denke, wenn ich weiß, wo der Herd am besten platziert werden sollte, komme ich weiter. Aber so stecke ich momentan fest.

Würde mich super freuen, wenn eure Meinungen und Hilfestellungen mich hier weiterbringen könnten.

Viele Grüße

Marc

Grundriss Küche.jpgGrundriss EG.jpgAnhang anzeigen Grundriss küche.KPLAnhang anzeigen Grundriss küche.POS





Checkliste zur Küchenplanung von Rethgif

Anzahl Personen im Haushalt : 2
Davon Kinder? : keine
Körpergrössen aller Hauptbenutzer (wegen Arbeitshöhe ) in cm : 176
Art des Gebäudes? : Neu-/Umbau, Planänderungen möglich
Brüstungshöhe des Fensters (in cm) : ?
Fensterhöhe (in cm) : ?
Raumhöhe in cm: : 250
Heizung : Fussbodenheizung
Sanitäranschlüsse : vollkommen variabel
Ausführung Kühlgerät? : Integriert im Hochschrank (60cm)
Kühlgerät Größe : noch unbekannt
Ausführung Tiefkühl (TK)-Gerät : Im Kühlschrank als kleines Fach oben
Dunstabzugshaube? : Abluft
Hochgebauter Backofen ? : Ja
Hochgebauter Geschirrspüler ? : nein
Kochfeldart? : Induktion
Kochfeldbreite ca. (in cm)? : 60
Spülenform: : Noch nicht festgelegt
Weitere geplante Heißgeräte : Standmikrowelle
Küchenstil? : klassisch
Sitzmöglichkeit in der Küche / im Küchenbereich als : Gesonderter Tisch
Sitzmöglichkeit: Für wieviel Personen? : für 4 Personen
Sitzmöglichkeit: Tisch - wenn gesonderter Tisch oder offene Küche : Wird nach Bedarf neu gekauft
Gewünschte o. vorhandene Tischgröße : so wie es passt
Wofür soll der Sitzplatz in der Küche genutzt werden? Wie häufig? : Frühstück
Welche Arbeitshöhe ist angedacht (in cm)? : 95
Was steht auf der Arbeitsplatte oder soll dort stehen? : Messerblock, Küchenmaschine, Toaster, Brotbehälter, Obstschale
Welche weiteren Küchenmaschinen müssen in der Küche untergebracht werden? : Küchenmaschine, Wasserkocher, Schneidemaschine (z. B. in Schublade), Handrührgerät, Mixer, Pürierstab, Eierkocher
Was soll in der Küche außer den Standards untergebracht werden? : Sonstiges (evtl. im Beitragstext benennen)
Welchen Stauraum gibt es sonst noch? : Geschirr/Gläserschrank im Wohn-/Esszimmer, Speisekammer, Hauswirtschaftsraum, Keller
Was/wie wird gekocht? (Alltagsküche, Menüs, Snacks usw) : Alltagsküche, Snacks... wird sich später mit Kindern im Haus vermutlich eh ändern.
Wie häufig wird gekocht? : (fast) täglich 1x warm
Wird alleine gekocht? Oder auch gemeinsam? Mit und für Gäste? : Mit Frau zusammen
Was stört an der bisherigen Küche und was soll die neue Küche unbedingt können? Warum? : sie soll schön sein und natürlich funktionell => keine besonderen Wünsche
Steht schon ein Küchenhersteller fest oder wird bevorzugt? : nein
Steht schon ein Gerätehersteller fest oder wird bevorzugt? : NEFF bevorzugt
Preisvorstellung (Budget) : bis 10.000,-
 
AW: Küchenplanung für Neubau EFH

Ich habe jetzt mal einen Entwurf fertig gemacht, der uns schon mal deutlich besser gefällt als der vom Küchenstudio .
Was uns noch nicht gefällt ist die dominante Abzugshaube und der Spritzschutz am Kochfeld, der sehr beschränkt durch die Fenster ist.
Würde mich freuen hier eine Meinung von euch zu bekommen.

Viele Grüße

Marc
 

Anhänge

  • Plan3.POS
    8,1 KB · Aufrufe: 157
  • Plan3.KPL
    3,9 KB · Aufrufe: 164
  • Küche2.jpg
    Küche2.jpg
    39,5 KB · Aufrufe: 184
  • Küche1.jpg
    Küche1.jpg
    37,8 KB · Aufrufe: 208
AW: Küchenplanung für Neubau EFH

:welcome:

im Küchenforum.

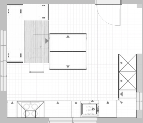
Schön, dass du dich bereits in den Alno -Planer eingearbeitet hast. Deine Gestaltung ist sehr liebevoll.

Bitte lade aber zukünftig einen Grundriss deiner Planung mit hoch. Kannst du unter Planen mit Strg+Alt+S speichern. Nicht jeder hat den Alnoplaner installiert oder möchte sich die Planung herunterladen um einen ersten Blick darauf zu werfen.
Ich lade ihn einmal für dich hoch.

Folgende Anmerkungen hätte ich zu deiner Planung.

Schön, dass du versucht hast tote Ecken einzuplanen. Eine tote Ecke hat in aller Regel 65 x 65 cm damit die Schränke geöffnet werden können. Du findest diese unter
- Unterschränke
- x-Raster

Dann schreibst du "geplante Arbeitshöhe : 95 cm". Im Alno hast du bei den Fenstern aber eine Brüstungshöhe vom 90 cm bei den Fenstern und mit 86 cm Arbeitshöhe geplant.
Ab 90 cm kannst du mit 6 Raster planen. Das bedeutet eine Strauraumebene mehr.
Die Arbeitshöhe wird dann durch die Anpassung des Sockels erreicht.

Selbstverständlich kannst du vor einem Fenster kochen, wenn eine Deckenhaube installiert wird.
- Blenden
- Eckblende für Unterschränke, das unterste Feld

Der Unterschrank mit dem Hers ist viel zu nahe an der Eckbankgruppe. So kann keiner vorbei um sich zu setzen.
-
 

Anhänge

  • Rethgif_Grundriss.JPG
    Rethgif_Grundriss.JPG
    54,5 KB · Aufrufe: 149
AW: Küchenplanung für Neubau EFH

Mela,
es gibt Hersteller die haben ein 12 cm Raster. Die können bei 72 cm Korpushöhe 6 Raster ermöglichen und somit muß ein 6 er Raster nicht unbedingt ab 90 cm Arbeitshöhe losgehen.

Nur mal so;-)
 
AW: Küchenplanung für Neubau EFH

Hallo,

das obere Heißgerät kommt mir aber seeeeehr hoch vor.;-)
So auf die Schnelle...... da gibt es so einiges zu optimieren. :-)
 
Zuletzt bearbeitet:
AW: Küchenplanung für Neubau EFH

Vielen Dank schon mal für eure Meinungen und Tipps. Ich versuche weiter zu basteln.
Das mit mit toten Ecken im Planer finde ich komisch. Die Unterschrankblende lässt sich schlecht anpassen. Da muss ich die eine Reihe 5 cm von der Wand abrücken, damit alles wieder gerade wird.

Viele Grüße

Marc
 
AW: Küchenplanung für Neubau EFH

;-) evt. hast Du die Ecke 'falsch' rum eingepasst ... - wenn sie richtig steht, ist nix komisches an der Toten Ecke ;D
 
AW: Küchenplanung für Neubau EFH

Ja genau. Daran lag es. :-[
Hab es jetzt komplett überarbeitet.
- Tote Ecken (hoffentlich richtig verbaut)
- Fenster auf 110cm gesetzt
- Unterschränke auf 99 cm (Ist das bei Körpergröße 1,75 cm ok? Laut der Regel "Arme anwinkeln und 15 cm abziehen, müsste es genau richtig sein)
- Backofen und Micro angepasst
- Herd und Tisch angepasst

Ich lade hier nochmal die aktuellen Daten hoch.

Gibt es sonst noch Anmerkungen, Meinungen oder Tipps?

Grüße

Marc
 

Anhänge

  • küche 1.jpg
    küche 1.jpg
    46,5 KB · Aufrufe: 166
  • küche 2.jpg
    küche 2.jpg
    48,8 KB · Aufrufe: 182
  • küchenplan.JPG
    küchenplan.JPG
    36,9 KB · Aufrufe: 161
  • Plan3.KPL
    4,1 KB · Aufrufe: 158
  • Plan3.POS
    10,9 KB · Aufrufe: 167
AW: Küchenplanung für Neubau EFH

Hallo Marc,

das Kochfeld so ganz am Rand ist nicht nur unpraktisch sondern auch gefährlich.;-)
Das geht so irgendwie gar nicht. Denke hier an "Absturzgefahr" und Pfannenstiele, die da überstehen könnten.

Die Spüle ist arg in der Ecke, habe ich zwar auch so, schöner und praktischer wäre es, wenn die Spüle da aus der Ecke rausgeholt wird.

Diese Hängeschränke da um die Ecke rum ist natürlich reine Geschmackssache, aber als schön empfinde ich das so nicht.

Ebenso die Abschrägung bei dem Hochschrank . Geschmackssache ;-)

Wie ich schon in meinem letzten Beitrag hier bei deiner Planung angesprochen habe empfinde ich das obere Heißgerät als evtl. zu hoch.
 
AW: Küchenplanung für Neubau EFH

Hallo Magnolia,
mit der Spüle das sollte kein Problem sein. Die tausche ich einfach mit der Spülmaschine rechts daneben.
Hängeschränke übers Eck sind wirklich Geschmacksache. Ich finde es nicht schlecht und nicht besonders gut, aber meiner Frau gefällt es. Und das ist ja fast die Hauptsache. :tounge:
Mit dem Herd das ist halt mein größtes Sorgenkind. Wie soll ich den verschieben, wenn sonst überall Fenster sind und ich ja schließlich ne Abzugshaube brauche. Die sollte aber natürlich nicht verhindern, dass man das Fenster noch öffnen kann....
Wenn hier jemand Rat weiß, wäre ich super dankbar.

Viele Grüße

Marc
 
AW: Küchenplanung für Neubau EFH

Hallo Marc,

eine Möglichkeit wäre das Kochen vor dem Fenster wie bei Vanessa.

Schaust Du hier mal rein: Bacchanalien in Schlaraffia - Fertiggestellte Küchen - Schreinerküche Apfelfurnier & HG Lack weiss

Ja, das Problem der vielen Fenster hatte ich auch. **stöhn**:stocksauer:

PS: Das zweite Heißgerät wie ich schon schrieb finde ich zu hoch.

PPS: Ich persönlich wollte auch den Schrank "Müll-direkt-unter-der APL" nicht bei mir missen.

Ich finde, das ist eigentlich vom Raum her eine große Küche und trotzdem ist da irgendwie zu wenig Stauraum :(
 
Zuletzt bearbeitet:
AW: Küchenplanung für Neubau EFH

1. ist das Haus ja noch garnicht gebaut, also kann man an den Fenster ja auch noch was ändern.

2. warum wollt ihr in der Küche nochmal einen normalen Esstisch stellen, wenn ihr doch direkt neben der Küche euer riesen Esszimmer habt?

in dieser Küche wäre Platz für eine Halbinsel mit Sitplätzen auf Arbeitsplatten -Höhe.

3. von der Grundregel: Ellebogen minus 15cm halte ich nur was für eine grobe Orientierung. Die passende Höhe sollte wirklich ausgetestet werden.

4. vor einem Fenster kocht es sich prima - vorallem mit übertiefer APL
5. in eurer riesen Küche fehlt mir eine übertiefe Arbeitsfläche zum backen, Strudelteig ausziehen, Nudeln zubereiteten etc.pp.


Grundsätzliches zu eurer Hausplanung: warum ist am nord-Ostende des Hauses der Baukörper vielfach abgestuft und nicht auf einer Linie? (das ist teurer und was tut ihr mit dem Gartenstück da oben?) Wenn ihr das WoZi auf gleiche Höhe mit dem Arbeitszimmer ziehen würdet entstünde zwischen Küche/Essen eine schön grösse, geschützte Terrasse, welche man auch prima überdachen könnte und um vieles nutzbarere würde.

Andererseits böte sich das Arbeitszimmer von den Laufwegen her als ideale Küche an (kurzer Weg in Keller, Garage, Schleuse) auf der anderen Seite bevorzuge ich die Küche allerdings auch direkt an die Terrasse grenzen, damit man die kurzen Wege in den Garten hat und diesen im Auge haben kann - grade mit Kindern angenehm :cool:
 
AW: Küchenplanung für Neubau EFH

Hallo Vanessa,

danke für deine Antwort.
Ich werde mal auch jeden deiner Punkte einzeln eingehen:

1. Gott sei dank. Hab auch gerade mit dem Architekten telefoniert und der sagte auch, dass das verschieben der Fenster kein Problem wäre.

2. Ich teile deine Meinung zu 100%, aber meine Frau zu 0%.:knuppel: Die Diskussion hatten wir schon mehrfach. Ich habe aufgegeben. Sie hatte früher bei ihren Eltern so einen Tisch und sie möchte auch in Zukunft sowas haben. Auf einem Hocker an der Arbeitsplatte zu sitzen ist keine Alternative. Ein gemeinsamer Hausbau besteht ja immer aus Kompromissen mit dem Partner. Meine wichtigsten Bereiche sind die Sauna, das Wohnzimmer und die komplette Haustechnik (Automatisierung). Hier hat meine Meinung mehr Gewicht (bilde ich mir ein :cool:) und in der Küche hat meine Frau das letzte Wort.

3. Haben ja noch einige Besuche in Küchenstudios vor uns und werden es dort mal testen. Interessanterweise hat bei unserem ersten Besuch (der mit dem klassischem: "Unterschreiben sie jetzt sofort, der Preis gilt nur jetzt" endete) hat der Verkäufer nicht mal nach der Höhe gefragt...

4. Aber nur einer übertiefen Arbeitsplatte, also mit Abstand zum Fenster, oder? Wenn ich mir nachdem wir die Pfanne in Betrieb hatten mal unsere geflieste Rückwand anschaue, dann möchte ich das nicht am Fenster haben...:rolleyes:


5. Ich schau mal, ob ich das eingebaut bekomme.


Der Grundriss vom Haus ist wirklich das Ergebnis von vielen Wochen intensiver Beratung und Gespräche mit dem Architekten. Jede Ecke und jeder Winkel hat irgendwo seinen Grund für uns. Ich gehe mal auf ein paar Punkte ein:
- Küche ist jetzt dort und nicht "im Arbeitszimmer" wegen der Terrasse und weil die Küchenfenster jetzt nach vorne zur Straße gehen
- unsere Terrasse ist überdacht (s. anghängte Grafik)
- der seitliche Versatz des Arbeitszimmers macht für das Schlafzimmer oben Sinn. Dadurch können wir aus dem Bett durch die Fenster Richtung Osten schauen und da haben wir einen wunderschönen Ausblick. :cool:

Viele Grüße

Marc
 

Anhänge

  • 19-11-2012 12-24-24.jpg
    19-11-2012 12-24-24.jpg
    37 KB · Aufrufe: 169
AW: Küchenplanung für Neubau EFH

Ich habe einmal geschoben und die Brüstungshöhe in Arbeitshöhe gesetztk so dass die Arbeitsfläche in die Fensterband käuft und diese ersetzt.

Kochen vor den Fenster dürfte doch keine Problem sein, da sich Glas hervorragend reinigen lässt. Es ist doch egal ob du die Nischenverkleidung oder eine Fenster reinigst.

Beginnend planoben rechts:
Wange oder seitliche Verkleidung
60er Vorratsschrank mit Innenauszügen
BO mit Mikrowellenfachen
Kühli
15er Klapptür für Backbleche oder/und Geschirrtücher
tote Ecke

Planlinks:
SpüMa
60er Spüle 3-3
40er Auszug 3-3 für Müll unter der Arbeitsfläche
90er Auszug 3-3 wegen Optik mit Innenschublade
tote Ecke

Planunten:
100er Auszug 1-1-2-2 mit Kochfeld linksbündig
60er Auszug 1-1-2-2
oder 2 x 80 Auszug 1-1-2-2 mit Kochfeld mittig
mit Decken-DA
Seitliche Verkleidung oder Wange

Eckbank wie von dir eingezeichnet.

Ich kann deine Frau gut verstehen! Ich bin auch ein Fan von Wohnküchen und habe selber eine.
 

Anhänge

  • Rethgif_Mela.KPL
    3,9 KB · Aufrufe: 153
  • Rethgif_Mela.POS
    10,2 KB · Aufrufe: 137
  • Rethgif_Mela_Draufsicht.jpg
    Rethgif_Mela_Draufsicht.jpg
    51,3 KB · Aufrufe: 165
  • Rethgif_Mela_Grundriss.JPG
    Rethgif_Mela_Grundriss.JPG
    36,4 KB · Aufrufe: 151
  • Rethgif_Mela_Herd.jpg
    Rethgif_Mela_Herd.jpg
    55,7 KB · Aufrufe: 163
  • Rethgif_Mela_HS.jpg
    Rethgif_Mela_HS.jpg
    50 KB · Aufrufe: 161
  • Rethgif_Mela_Spüle.jpg
    Rethgif_Mela_Spüle.jpg
    55,1 KB · Aufrufe: 151
AW: Küchenplanung für Neubau EFH

Ich habe mal die Hochschränke von der planoberen Seite entfernt.

Tischlösung jetzt an eine Vorbereitungsinsel angedockt. Als Tischbein könnte ich mir hier einen 4-rasterigen Unterschrank mit Drehtür vorstellen, quasi als Mittelsäule, damit keine Tischbeine das Reinrutschen in die Bänke stören. Dort dann Platz fürs Fondue und Raclette oder so ... halt das, was man nicht häufig braucht.

Die Hochschränke von mir mal ausnahmsweise nur so in Höhe 170 bis 190 cm.

Kühlschrank und Backofen /Mikrowelle .

Daneben dann noch ein ca. 25er Element mit Drehtür für Handtücher/senkrecht eingestellte nicht benötigte Backbleche etc.

tote Ecke

60er GSP
60er Spülenschrank innen mit dem typischen Abstellbrett für küchentypische Putzmittel und einem Auszug für Gelber Sack Müll, evtl. noch Altpapier oder so.
30er Bio/Restmüll unter der APL direkt unter der APL ... der zweite Auszug unten ist Stauraum:
full

90er Auszugsunterschrank
90er Auszugsunterschrank für Kochfeld
30er Auszugsunterschrank, insbesondere Gewürze, Öle/Essig

Als Vorbereitungsinsel 2x120er Auszugsunterschränke, die auch viel Stauraum bieten. Zur küchenabgewandten Seite könnten z. B. auch die Frühstückssachen untergebracht werden, incl. Toaster etc. In der planlinken Wange über dem Tisch dann 2 oder 3 Steckdosen, dann kann man schnell den Toaster aus dem Auszug holen und hat ihn am Frühstückstisch.
Oder auf der Insel mal die Küchenmaschine oder den Handmixer nutzen usw.

Die Fenster planunten habe ich zu einem ca. 160 cm breitem Fenster/Doppelfenster zusammengefaßt.
 

Anhänge

  • kf_rethgif_20121121_kb_var1.POS
    13,1 KB · Aufrufe: 144
  • kf_rethgif_20121121_kb_var1_Ansicht1.jpg
    kf_rethgif_20121121_kb_var1_Ansicht1.jpg
    117,5 KB · Aufrufe: 153
  • kf_rethgif_20121121_kb_var1_Ansicht2.jpg
    kf_rethgif_20121121_kb_var1_Ansicht2.jpg
    141,5 KB · Aufrufe: 150
  • kf_rethgif_20121121_kb_var1_Ansicht3.jpg
    kf_rethgif_20121121_kb_var1_Ansicht3.jpg
    137,2 KB · Aufrufe: 146
  • kf_rethgif_20121121_kb_var1_Ansicht4.jpg
    kf_rethgif_20121121_kb_var1_Ansicht4.jpg
    84,5 KB · Aufrufe: 149
  • kf_rethgif_20121121_kb_var1_Ansicht5.jpg
    kf_rethgif_20121121_kb_var1_Ansicht5.jpg
    145,1 KB · Aufrufe: 155
  • kf_rethgif_20121121_kb_var1_Ansicht6.jpg
    kf_rethgif_20121121_kb_var1_Ansicht6.jpg
    164,8 KB · Aufrufe: 152
  • kf_rethgif_20121121_kb_var1_Grundriss.jpg
    kf_rethgif_20121121_kb_var1_Grundriss.jpg
    81,9 KB · Aufrufe: 157
  • kf_rethgif_20121121_kb_var1.kpl
    3,9 KB · Aufrufe: 143

Ähnliche Beiträge

Neff Hausgeräte Ballerina Küchen Blum Bewegungstechnologie Weibel - Intelligente Küchenlüftung

Neff Spezial

Blum Zonenplaner

Weibel Abluft-Tuning

Weibel Abluft-Tuning
Zurück
Oben