Küche mit drei Türen - zwei Vorschläge

fuzzy

Mitglied
Beiträge
7
Hallo,

wir bauen demnächst ein Haus und sind nun an der Küchenplanung .
Bei Recherchen im Internet sind wir zum Glück auf diese Seite gestoßen und würden uns nun sehr freuen, wenn wir hier noch ein paar Tipps bekommen würden.
Leider haben wir im Möbelhaus nur unbefriedigende Antworten erhalten und uns deshalb selbst an die Planung gemacht. Zwei Vorschläge haben wir nun erarbeitet (grob) und können uns nicht entscheiden, was besser ist.
Beim ersten Plan befürchte ich fast, dass die Wege sich etwas in die Länge ziehen. Beim zweiten Plan ist alles enger zusammen, hoffentlich nicht zu eng!
Vielleicht ist noch erwähnenswert, dass unser vorhandener Bosch -Retro-Kühlschrank mitgenommen wird, wir brauchen somit keinen Einbaukühlschrank.
Uns geht es momentan erst einmal um das "Grobe", also um die Aufteilung generell.

Welchen Vorschlag findet ihr besser?
Oder fällt euch etwas verbesserungswürdiges auf?

Vielen Dank im Voraus für eure Hilfe!

fuzzy


Checkliste zur Küchenplanung von fuzzy

Anzahl Personen im Haushalt : 3
Davon Kinder? : 1
Körpergrössen aller Hauptbenutzer (wegen Arbeitshöhe ) in cm : 168, 195
Art des Gebäudes? : Neu-/Umbau, Planänderungen möglich
Brüstungshöhe des Fensters (in cm) : 100
Fensterhöhe (in cm) : 114
Raumhöhe in cm: : 244
Heizung : Fussbodenheizung
Sanitäranschlüsse : vollkommen variabel
Ausführung Kühlgerät? : Stand-Alone bis 75 cm Breite
Kühlgerät Größe : bis 140 cm Höhe
Ausführung Tiefkühl (TK)-Gerät : Im Kühlschrank als kleines Fach oben
Dunstabzugshaube? : Umluft
Hochgebauter Backofen ? : Ja
Hochgebauter Geschirrspüler ? : nein
Kochfeldart? : Induktion
Kochfeldbreite ca. (in cm)? : 78
Spülenform: : 1 Becken mit Abtropffläche
Weitere geplante Heißgeräte : Standmikrowelle
Küchenstil? : klassisch
Sitzmöglichkeit in der Küche / im Küchenbereich als : Überstehende Arbeitsplatte
Sitzmöglichkeit: Für wieviel Personen? : für 2 Personen
Sitzmöglichkeit: Tisch - wenn gesonderter Tisch oder offene Küche : Keine
Gewünschte o. vorhandene Tischgröße : Tisch ist separat in Esszimmer
Wofür soll der Sitzplatz in der Küche genutzt werden? Wie häufig? : Trinken, lesen, kleine Snacks
Welche Arbeitshöhe ist angedacht (in cm)? : 91
Was steht auf der Arbeitsplatte oder soll dort stehen? : Kaffeemaschine, Wasserkocher, Messerblock, Allesschneider, Brotbehälter, Obstschale
Welche weiteren Küchenmaschinen müssen in der Küche untergebracht werden? : Küchenmaschine, Toaster, Handrührgerät, Mixer, Pürierstab, Eierkocher
Was soll in der Küche außer den Standards untergebracht werden? : Sonstiges (evtl. im Beitragstext benennen)
Welchen Stauraum gibt es sonst noch? : Geschirr/Gläserschrank im Wohn-/Esszimmer, Speisekammer, Hauswirtschaftsraum, Keller
Was/wie wird gekocht? (Alltagsküche, Menüs, Snacks usw) : Alltagsküche
Wie häufig wird gekocht? : (fast) täglich 1x warm
Wird alleine gekocht? Oder auch gemeinsam? Mit und für Gäste? : Hauptsächlich wird alleine gekocht, ca. 1x wöchentlich für Gäste
Was stört an der bisherigen Küche und was soll die neue Küche unbedingt können? Warum? : -
Preisvorstellung (Budget) : bis 10.000,-
 

Anhänge

  • Haus_Küche_alte_Lösung_1.JPG
    Haus_Küche_alte_Lösung_1.JPG
    41,4 KB · Aufrufe: 1.718
  • Haus_Küche_7.JPG
    Haus_Küche_7.JPG
    42,7 KB · Aufrufe: 531
AW: Küche mit drei Türen - zwei Vorschläge

Hallo, :welcome:
hast du mal
Was wir benötigen


gelesen? Es wäre nett, wenn der Grundriss mit Fensterabständen, Türabständen etc. vermaßt wäre.

Außerdem ein Gesamtplan, damit man sieht, welche Wege wohin gehen. Vorzugsweise als Grundrisszeichnung mit wenigstens ein paar Außenmaßen.

Soll es wirklich ein Kühlschrank ohne Möbelumbau sein? Und dann nur 140 cm hoch? Gibt es den schon?

Die Arbeitshöhe von 91 cm würde ich auch nochmal überprüfen:
ARBEITSHÖHE ermitteln
3 Methoden haben sich da etabliert:
- Ellbogen abwinkeln und von dort 15 cm runtermessen
- Höhe Beckenknochen messen
- z. B. Bügelbrett nehmen und in verschiedenen Höhen Probeschnippeln und messen, wenn es einem am bequemsten erscheint.
Idealerweise ergeben alle 3 Methoden ca. denselben Wert

Die einzelnen Eck-Hängeschränke sollte man auf jeden Fall vermeiden. Die sehen aus, als wenn sie übrig geblieben wären und man sie deshalb halt aufgehängt hat :kiss:
 
AW: Küche mit drei Türen - zwei Vorschläge

Owei ... so etwas überlese ich immer :kiss: Trotzdem ... wie groß ist der denn?
 
AW: Küche mit drei Türen - zwei Vorschläge

Danke für die schnelle, nette Antwort und fürs Willkommen heißen! :-)

Natürlich habe ich "was wir benötigen" gelesen. ;-) Aber mir ging es fürs erste nur mal um die "Grobplanung", also generell die Anordnung der Küchenzeilen etc... Dachte, da wären die Fenster-Maße etc. noch relativ unwichtig. :-[
Kann aber natürlich gerne noch den Grundriss einstellen. (siehe Anhang)

Die Kühlschrank-Maße sind 63x68x128 !

Auf die Arbeitshöhe von 91 cm bin ich gekommen, da unsere jetzige Küche die Höhe hat und wir damit eigentlich sehr gut klar kommen.
Haben aber gerade trotzdem noch den Ellbogen-Check gemacht. Mit dem Ergebnis, dass bei mir 90 cm und bei meinem Mann 100 cm rauskommen. Da ich aber mehr in der Küche arbeite, ist 91 cm ein guter Kompromiss denke ich! ;D

Danke für den Tip mit den Eckhängeschränken!
Ich hab nur etwas Bedenken, ob uns der Stauraum ohne Hängeschränke reicht. Irgendwie kann man doch nie genug davon haben. Aber klar, es soll natürlich auch noch gut aussehen! Schwierig...

Habt ihr Ideen?

Welchen Vorschlag findet ihr generell besser? Oder fällt euch was noch besseres ein?
Mit dem Grundriss ist das irgendwie gar nicht so einfach... :(

1000 Dank,
fuzzy
 

Anhänge

  • Grundriss EG_AUSSCHNITT.jpg
    Grundriss EG_AUSSCHNITT.jpg
    35,6 KB · Aufrufe: 305
AW: Küche mit drei Türen - zwei Vorschläge

Ich bin eben am überlegen, ob es da nicht von Vorteil wäre, Esszimmer und Küche zu tauschen, war so ein spontaner Gedanke beim kurzen Blick auf den Grundriss.

Küche wäre zur Nähe der Terrasse, der Blick (beim Arbeiten, zum Snack, Zeitung lesen, Kind im Auge....) auf die Terrasse könnte ich mir schön vorstellen.

Auch denke ich, könnte man Arbeitsfläche und Stauraum so vieleicht optimieren.

Was haltet ihr von dem Gedanken?
 
AW: Küche mit drei Türen - zwei Vorschläge

Hmm ... da sind scheinbar offene Durchgänge ins Wohnzimmer, Sigi. Ob das dann so gut ist? und viele Türen wären da auch.

@fuzzy, was ist denn an den Fensterpositionen noch zu ändern?
 
AW: Küche mit drei Türen - zwei Vorschläge

Danke für die neuen Antworten.

Mit Zimmertausch das geht leider nicht... wie schon geschrieben, ist das Esszimmer zum Wohnzimmer halb offen. Außerdem haben wir vom Esszimmer aus einen super schönen Blick nach draußen in den Garten, den wir auch beibehalten wollen.
Der Blick in der Küche dagegen ist auf die Straße, was hier aber nicht stört.

Da uns schon die Baugenehmigung vorliegt, wird sich an den Fenstern nix mehr ändern lassen, leider. Könnte sogar sein, dass die Wände mit Fenstern schon gebaut werden... (Fertighaus)

Schlimm? :rolleyes:

Viele Grüße
fuzzy
 
AW: Küche mit drei Türen - zwei Vorschläge

... die gute Nachricht - auch nach Erteilung der Baugenehmigung kann man die Fenster noch schieben - oder etwas in der Grösse Variieren

Bitte stell doch den Grundriss vom GANZEN Stock ein - ihr kennt den Plan, wir müssen uns zurechtfinden
 
AW: Küche mit drei Türen - zwei Vorschläge

Ich hätte euch sehr gerne den kompletten Grundriss eingestellt. Leider kann ich aber nur Fotos mit einer Auflösung von bis zu 800x600 einstellen. Und mit der Auflösung erkennt man gar nix mehr. Sorry. :(
Hab aber dafür die umliegenden Zimmer in dem Screenshot beschriftet. Hoffe so ist das auch ok.

Wie findet ihr denn unsere zwei Vorschläge?

Viele Grüße und danke
fuzzy
 

Anhänge

  • Haus_Küche_alte_Lösung_11111.JPG
    Haus_Küche_alte_Lösung_11111.JPG
    43,6 KB · Aufrufe: 304
AW: Küche mit drei Türen - zwei Vorschläge

Stelle trotzdem mal vom PLAN ein ganzes Foto ein, ist egal, wenn man die Masse dort nicht lesen kann - es geht nur um die Raumaufteilung und die Grössenverhältnisse.

Ich finde die Küche *hüstel* nicht wirklich gelungen. Da ist ein Raum mit 3 Türen und einem Kaminschacht entstanden, der schwierig zu möblieren ist.

Versuche mal die Prioritäten für eure Küche der Wichtigkeit nach Aufzulisten, damit wir wissen, wo die Reise hin soll.

Sitzplätze in der Küche, wenn der Esstisch direkt daneben steht, finde ich z.B. entbehrlich - wenn es sich bei der Planung ergibt, ja klar; aber auf Teufel komm raus :-\ und dafür an vielen anderen Stellen Kompromisse eingehen?
 
AW: Küche mit drei Türen - zwei Vorschläge

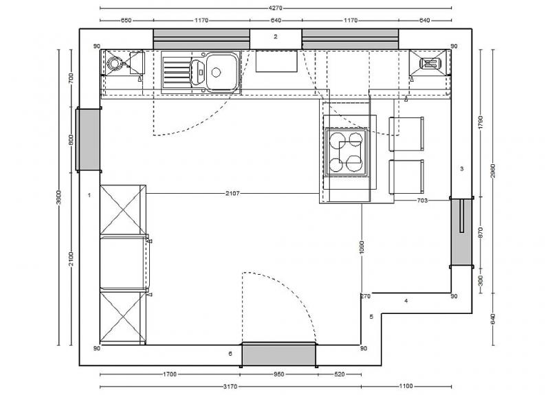
Ich habe mal versucht zu planen:

Plan oben von links :
60ziger Unterschrank mit Auszügen, SpüMa, 60ziger Spülenschrank,
3x60ziger (ggf. durch2x90zig zu ersetzen) Seitenschrank mit Herd und
Mikro (Mikro evtl. hinter Drehtüre)
Aufsatzschrank (als Stauraum), zw. Fenster offenes Regal (zur Auflockerung).

Planunten Kühlschrank sepparat gestellt, ggf. Schränke als Stauraum.

Insel mit übertiefen Schränken 2x90, mittig 1x80 mit Kochstelle, Arbeitsplatte vorgezogen mit 3 Sitzplätzen für den Kaffee, kurzen Snack....ebenfalls könnte ich mir vorstellen, die Inselauch als Buffet zu nutzen, wenn mal Gäste geladen sind, da ja wohl zum Esszimmer eine Schiebetüre besteht.
 

Anhänge

  • Küche_Fuzzi_Vorschlag_Snow_Grundriss.JPG
    Küche_Fuzzi_Vorschlag_Snow_Grundriss.JPG
    40 KB · Aufrufe: 294
  • Küche_Fuzzi_Vorschlag_Snow_Bild 1.jpg
    Küche_Fuzzi_Vorschlag_Snow_Bild 1.jpg
    42,9 KB · Aufrufe: 306
  • Küche_Fuzzi_Vorschlag_Snow_Bild 2.jpg
    Küche_Fuzzi_Vorschlag_Snow_Bild 2.jpg
    39,1 KB · Aufrufe: 284
  • Küche_Fuzzi_Vorschlag_Snow_Bild 3.jpg
    Küche_Fuzzi_Vorschlag_Snow_Bild 3.jpg
    38,8 KB · Aufrufe: 278
  • Küche_Fuzzi_Vorschlag_Snow_Bild 4.jpg
    Küche_Fuzzi_Vorschlag_Snow_Bild 4.jpg
    37,1 KB · Aufrufe: 304
  • PLAN1.KPL
    4,1 KB · Aufrufe: 219
  • PLAN1.POS
    7,1 KB · Aufrufe: 220
AW: Küche mit drei Türen - zwei Vorschläge

Sigi, da sind aber die Durchgänge nur noch etwas für Stangenbohnen ;-)

Bei der langen Fensterzeile ohne Hängeschränke würde es sich anbieten, den Kühlschrank statt des BO-Schrankes rechts zu setzen. Damit steht er in keiner Konkurrenz zu anderen hohen Schränken und ist auch besser eingebunden und vom Esszimmer besser zu erreichen.

Die Insel nur mit 60 cm tiefen Unterschränken und etwas weniger breit.
 
AW: Küche mit drei Türen - zwei Vorschläge

@:Nice-nofret: Vanessa da würde ich dir zustimmen wollen. Einen Essplatz in der doch dann beengten Küche wäre auch m. E. entbehrlich.

Was mich noch an Fuzzi´s Planung stören würden, hmmm...es sieht so irgenwie lieblos "dahingeklatscht" aus. Fuzzi bitte nicht mißverstehen!
 
AW: Küche mit drei Türen - zwei Vorschläge

hm..Kerstin, stimmt schon...nur für schlanke Leut;-) Wo würdest dann du den BO platzieren.

Vanessa hats ja schon erwähnt...wenn da der Wunsch nach Sitzplatz in der Küche wäre!!
 
AW: Küche mit drei Türen - zwei Vorschläge

Beide Deiner Varianten zerstückeln die Arbeitsbereiche der Küche und schaffen ungünstige Wege- und Bewegungsflächen.

Auch mein nachfolgender Vorschlag schafft eine unangenehme Situation: das Fenster lässt sich nicht vollständig öffnen (zum Fensterputzen reicht's aber) und stößt an die Dunstabzugshaube an.

Allerdings würden Dir folgende Vorteile entstehen:
  • Stauraum im Gerätecenter
  • zusammenhängende Arbeitsfläche
  • Abstellflächen für Kaffeemaschine, Toaster, Wasserkocher usw.
  • kommunikative Kochlösung (am Essplatz)
  • der vorh. Kühlschrank ist in die Küche integriert
  • Arbeitsbereiche können beleuchtet werden
  • Mikrowelle versteckt über dem Backofen
  • Das Budget wird eingehalten
  • keine Überschneidung der Arbeitsbereiche
 

Anhänge

  • fuzzy_1.jpg
    fuzzy_1.jpg
    62,1 KB · Aufrufe: 343
  • fuzzy_2.jpg
    fuzzy_2.jpg
    61,8 KB · Aufrufe: 300
  • fuzzy_3.jpg
    fuzzy_3.jpg
    58,1 KB · Aufrufe: 311
  • fuzzy_4.jpg
    fuzzy_4.jpg
    49,1 KB · Aufrufe: 311
  • fuzzy_5.jpg
    fuzzy_5.jpg
    46,2 KB · Aufrufe: 298
  • fuzzy_6.jpg
    fuzzy_6.jpg
    55,4 KB · Aufrufe: 315
Zuletzt bearbeitet:
AW: Küche mit drei Türen - zwei Vorschläge

:-\ genau das meinte ich mit "schecht geschnittenem Raum": hier ist in 14qm von Planki ein Küchenentwurf, mit einem Raumangebot, wie Du es in einer 6qm Küche finden könntest...

.. und das ist jetzt nicht als Vorwurf an Planki gemeint.
 
AW: Küche mit drei Türen - zwei Vorschläge

Hier noch mal so, wie ich Kerstin verstanden habe:



BO in Unterschrank in der Fensterfront integriert, Kühlschrank planrechts.

ggf. planunten 2 Seitenschränke als Stauraum.???
 

Anhänge

  • PLAN2.KPL
    4,1 KB · Aufrufe: 210
  • PLAN2.POS
    6,6 KB · Aufrufe: 202
  • Küche_Fuzzi_Vorschlag_Snow_Grundriss1.JPG
    Küche_Fuzzi_Vorschlag_Snow_Grundriss1.JPG
    39,5 KB · Aufrufe: 259
AW: Küche mit drei Türen - zwei Vorschläge

:-\ genau das meinte ich mit "schecht geschnittenem Raum": hier ist in 14qm von Planki ein Küchenentwurf, mit einem Raumangebot, wie Du es in einer 6qm Küche finden könntest...

Ja, man sollte die meisten Architekten mal mit dem Mist, den die planen konfrontieren. Leider haben nur die Innenarchitekten etwas "Küche" in ihrer Ausbildung (nen halben Schein), während die Architekten i.d.R. keine Ahnung von Ergonomie, Arbeitsbereichen, Wegebreiten, Bewegungsflächen usw. haben.
Ich habe mir nun schon in den letzten 20 Jahren graue Haare wachsen lassen müssen, an denen die Architekten eine Hauptschuld haben. Viele Küchen-Grundrisse der Architekten halten nicht einmal den einfachsten Grundregeln stand, geschweige denn, einer der Küchennutzer "erwirbt" evtl. noch eine Behinderung, die ihn an den Rollstuhl fesselt - eine Vorstellung für schlaflose Nächte.

.. und das ist jetzt nicht als Vorwurf an Planki gemeint.

...und noch ein graues Haar mehr. Immer druff! :knuppel:
 
AW: Küche mit drei Türen - zwei Vorschläge

rechts bzw. links der Fenster lassen sich keine Seitenschränke einplanen, da diese dann nahezu unmittelbar an die Fensterleibung grenzen. Üblicherweise bleiben Hänge- und Seitenschränke möglichst 150 mm von Fenster- und Türleibungen entfernt!
 

Ähnliche Beiträge

Neff Hausgeräte Ballerina Küchen Blum Bewegungstechnologie Weibel - Intelligente Küchenlüftung

Neff Spezial

Blum Zonenplaner

Weibel Abluft-Tuning

Weibel Abluft-Tuning
Zurück
Oben