Stauraum für zentrale Küche mit drei Türen auf 11qm

Kato

Mitglied
Beiträge
8
Hallo zusammen!

Wir benötigen Bitte Eure Hilfe. Wir sind dabei, unsere erste Küche zu planen. Wir ziehen in 4 Wochen in eine Mietswohnung (das dies mit den Lieferzeiten nicht mehr hinhauen wird, ist uns bewusst).

In den letzten zwei Wochen haben wir uns einen Überblick verschafft. Wir möchten relativ gute Geräte haben, die wir längere Zeit nutzen möchten. Ob es die Küche mit in die nächste Bleibe schafft, sei mal dahingestellt.

Daher der Gedanke, in bessere Geräte zu investieren und dafür an den Küchenschränken zu "sparen". Da wir noch jung sind, möchten wir unser hart verdientes Geld lieber in schöne Urlaube, als in teure Möbel stecken ;-)

Die Küche liegt zentral in der Wohnung (älteres Haus). So führen gleich drei Räume zu der Küche. Das macht es leider nicht sehr einfach, möglichst viel Stauraum unterbringen.

Hier genau kämt ihr ins Spiel :-)

Besten Dank vorab!

Viele Grüße

Kato




Checkliste zur Küchenplanung von Kato

Anzahl Personen im Haushalt : 2
Davon Kinder? : keine
Körpergrössen aller Hauptbenutzer (wegen Arbeitshöhe ) in cm : 168 + 170
Art des Gebäudes? : Bestandsbau, Umbauten ausgeschlossen
Brüstungshöhe des Fensters (in cm) : 84
Fensterhöhe (in cm) : 100?
Raumhöhe in cm: : 270
Heizung : Heizkörper wie im Grundriss
Sanitäranschlüsse : fix
Ausführung Kühlgerät? : Stand-Alone bis 60 cm Breite
Kühlgerät Größe : noch unbekannt
Ausführung Tiefkühl (TK)-Gerät : Im Kühlschrank bis 2 Schubladen unten
Dunstabzugshaube? : Umluft
Hochgebauter Backofen ? : Nein
Hochgebauter Geschirrspüler ? : nein
Kochfeldart? : Induktion
Kochfeldbreite ca. (in cm)? : 60
Spülenform: : 1 Becken mit Abtropffläche
Weitere geplante Heißgeräte : Standmikrowelle
Küchenstil? : modern
Sitzmöglichkeit in der Küche / im Küchenbereich als : Überstehende Arbeitsplatte
Sitzmöglichkeit: Für wieviel Personen? : für 2 Personen
Sitzmöglichkeit: Tisch - wenn gesonderter Tisch oder offene Küche : Wird nach Bedarf neu gekauft
Gewünschte o. vorhandene Tischgröße : 80x50
Wofür soll der Sitzplatz in der Küche genutzt werden? Wie häufig? : täglich essen
Welche Arbeitshöhe ist angedacht (in cm)? : 95
Was steht auf der Arbeitsplatte oder soll dort stehen? : Wasserkocher, Messerblock, Toaster
Welche weiteren Küchenmaschinen müssen in der Küche untergebracht werden? : Küchenmaschine, Handrührgerät, Mixer, Pürierstab, Eierkocher
Was soll in der Küche außer den Standards untergebracht werden? : ALLE Vorräte, Getränkekisten, Geschirr komplett (nichts in Ess-/Wohnzimmer)
Welchen Stauraum gibt es sonst noch? : Keller
Was/wie wird gekocht? (Alltagsküche, Menüs, Snacks usw) : Alltagsküche
Wie häufig wird gekocht? : (fast) täglich 1x warm
Wird alleine gekocht? Oder auch gemeinsam? Mit und für Gäste? : 1-2
Was stört an der bisherigen Küche und was soll die neue Küche unbedingt können? Warum? : zu wenig Arbeitsfläche, zu wenig Stauraum- die neue soll es "besser machen"
Steht schon ein Küchenhersteller fest oder wird bevorzugt? : nein
Steht schon ein Gerätehersteller fest oder wird bevorzugt? : nein
Preisvorstellung (Budget) : bis 5.000,-
 

Anhänge

  • Kato2.POS
    6,4 KB · Aufrufe: 281
  • Kato2.KPL
    3,9 KB · Aufrufe: 281
  • Grundriss.jpg
    Grundriss.jpg
    46,4 KB · Aufrufe: 342
  • Küche.jpg
    Küche.jpg
    52,3 KB · Aufrufe: 366
AW: Stauraum für zentrale Küche mit drei Türen auf 11qm

Hallo Kato, herzlich Willkommen hier im Forum! :welcome:

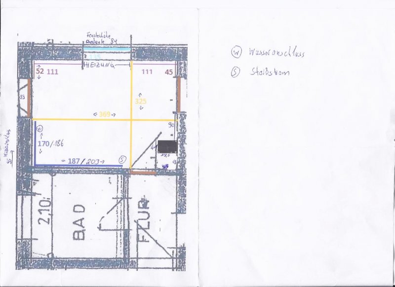
Ich hab mich gerade mal mit euren Raum beschäftigt. Die Maßangaben im Grundriss stimmen nicht so ganz mit der Raumgröße überein. Messfehler? ...und auch nicht alle Angaben konnte ich entziffern.
Wie sind die Angaben 170/186cm und 187/203cm zu verstehen? Einmal bis zum Türrahmen und einmal mit Türrahmen?
Das Fenster soll laut Grundriss genau in der Mitte sitzen und rechts und links davon 111cm Wand. Demnach müsste der Raum 357cm lang sein und nicht 369cm, oder die Wandstücke müssten 117cm breit sein, auch die Raumbreite stimmt nicht mit den Einzelangaben überein.

Auch die Maße, die du im Alnoplaner verwendet hast, stimmen nicht mit den Grundrissmaßen überein.

Ohne genaue Maßangaben können wir nicht planen. ;-) Bitte reiche sie nach!

Desweiteren möchte ich dich bitten, zukünftig Planungsansichten und den Alnogrundriss mit hochzuladen. Nicht alle hier im Forum, arbeiten mit dem Alnoplaner, insbesondere die Profis nicht. Außerdem mag nicht jeder erst, die Dateien auf seinen Rechner ziehen, um kurz über die Planung zu schauen. ;-)
 

Anhänge

  • Kato.JPG
    Kato.JPG
    35,7 KB · Aufrufe: 272
  • kato.KPL
    3,9 KB · Aufrufe: 270
  • kato.POS
    2,5 KB · Aufrufe: 255
AW: Stauraum für zentrale Küche mit drei Türen auf 11qm

Hallo Conny,

vielen Dank für Deine Antwort.

Die Maßangaben aus dem Grundriss stimmen leider nicht. Dort fehlt zB die Nische unten rechts, in der wunderbar ein Vorratsschrank passen würde. Der Grundriss dient zur Veranschaulichung der Aufteilung der Wohnung (wg den Laufwegen). Sorry, dass hätte ich besser erwähnen sollen :/ War spät gestern ;-)


Die L-förmige blaue Linie (unten links in der Ecke) ist der Küchenbereich mit den Anschlüssen, der teilweise gekachelt ist. Die zwei Angaben bedeuten:

170/186
170: Bis zum Rand der Kacheln sind es 170 cm. So lange sollte die Küchenzeile mindestens sein, damit man keine unverputze Wand sehen kann.
186: Bis zum Türrahmen sind es 186 cm. Länger darf die Küche auf keinen Fall sein.

187/203
187: Bis zum Rand der Kacheln sind es 187 cm.
203: Bis zum Türrahmen sind es 203 cm.

Die Renovierungsarbeiten sind die Tage abgeschlossen. Dann werde ich alles noch mal nachmessen (in der Küche wurden die Werkzeuge + Material gelagert).

Fragen:

Mit Planungsansicht ist ein Bild aus der 3D-Sicht eines Küchenplaners gemeint?
Mit welcher freeware könnte ich einen exakten Grundriss der Wohnung zeichnen, damit dieser besser leserlich ist?
:cool:
Danke & Gruß

Kato
 
AW: Stauraum für zentrale Küche mit drei Türen auf 11qm

Ja genau, die Planungsansichten kannst du im Vollbildmodus herstellen, unter Vollbild speichern. Vom Alnogrundriss machst du am besten einen Screeshot oder bei Windows7, kannst du auch das Snipping Tool benutzen.

Eine geeignete Freeware kann ich dir leider nicht nennen, ich bin relativ PC-blond...:cool:
Ich habe meine Grundrissanschicht mit Alno und dem Snipping Tool gemacht. Ansonsten geht auch Papier und Bleistift. Du solltest nur leserlich schreiben...:knuppel: ;D ;-)

Stimmt denn das Nischenmaß von 69cm, zwischen Kamin und Wand, aus deinem Alonplan? Gibt es den Kühlschrank schon, bzw. habt ihr euch schon für einen entschieden?
Wäre es eine Option, die Küchentüre auszuhängen?
 
AW: Stauraum für zentrale Küche mit drei Türen auf 11qm

Mit der F4-Taste kannst Du jedes Objekt im Alno -Planer anpassen und kreativ einsetzten als beliebiges Möbelstück.
 
AW: Stauraum für zentrale Küche mit drei Türen auf 11qm

Hallo!

Hier sind die Bilder der bisherigen Planung:


Die Nische neben der Tür/ Kamin ist 69 cm. Da sehen wir einen Vorratsschrank.

Es ist eine Kühl-Gefrier-Kombination geplant. Es ist auf der anderen Seite der Nische genug Platz und es gibt eine Steckdose.

Bisher sind wir davon ausgegangen, die Türen nicht auszuhängen. Wir möchten gerne nach dem Kochen einfach die Türen zu machen und auslüften. Das war uns bisher mit der offenen Wohnküche nicht möglich.

Aber ich bin offen wir alles ;-)

Schätze ich verschone Euch dann mit meiner schönen Handschrift und schreibe mit paint & co ;D

Danke, die F4 Taste habe ich dank des Tutorials bereits genutzt. Sag bloß, man sieht das nicht ;-) Eine Heizung habe ich allerdings nicht gefunden :/

Gruß

Kato
 

Anhänge

  • Küchenzeile.jpg
    Küchenzeile.jpg
    42,3 KB · Aufrufe: 313
  • L-Küchenzeile.jpg
    L-Küchenzeile.jpg
    59,2 KB · Aufrufe: 339
  • Blick zum Fenster.jpg
    Blick zum Fenster.jpg
    51,9 KB · Aufrufe: 321
  • Blick auf Nische.jpg
    Blick auf Nische.jpg
    50,3 KB · Aufrufe: 332
  • Blick vom Fenster auf Küchenzeile.jpg
    Blick vom Fenster auf Küchenzeile.jpg
    34,3 KB · Aufrufe: 315
Zuletzt bearbeitet von einem Moderator:
AW: Stauraum für zentrale Küche mit drei Türen auf 11qm

Heizkörper findest Du bei den Wandstücken ;-)
 
AW: Stauraum für zentrale Küche mit drei Türen auf 11qm

Aha- danke Dir! :top:

Heizung baue ich ein, sobald ich die genauen Maße habe.

Gruß

Kato
 
AW: Stauraum für zentrale Küche mit drei Türen auf 11qm

Wie breit ist die Tür, die zum Flur führt?
Welche Maße und Position hat die Heizung?
Wird es noch einen richtigen Esstisch geben? Wenn ja, wo?

Die Sitzplätze die du jetzt eingeplant hast, sind aber nicht sehr komfortabel...:cool:
 
AW: Stauraum für zentrale Küche mit drei Türen auf 11qm

Wie breit ist die Tür, die zum Flur führt?
Ca. 90 cm + Rahmen. Wird nachgemessen.

Welche Maße und Position hat die Heizung?
Mittig unter dem Fenser. Ca. 135 cm.

Wird es noch einen richtigen Esstisch geben? Wenn ja, wo?
Sehr gute Frage! Wir haben einen Esstisch, der aber nur zu besonderen Menüs genutzt werden soll. WAHRSCHEINLICH wird er in das Wohnzimmer kommen. In der Küche soll nur Platz für zwei sein, so dass man da morgens gescheit Frühstücken kann. Hier suchen wir nach einer Lösung/ Idee...
Die Sitzplätze die du jetzt eingeplant hast, sind aber nicht sehr komfortabel...:cool:
Da stimme ich Dir zu- fürchterlich. Der Gedanke dabei war, dass man an der Wand des Fensters eine Arbeitsplatte installiert, an der man auch essen kann. Schöner fände ich eine Art Insel, die eine hohe Seite hat, an die man sich stellen kann (zum Schnippseln) und eine niedrige Seite/ Tischanbau zum Sitzen auf normalen bequemen Stühlen. Die darf dann leider auch nicht zu groß sein.

Eigentlich ist die Küche mit ca 11 qm ja keine winzige Küche- nur schöne lange Stellwände fehlen uns dort :(
 
AW: Stauraum für zentrale Küche mit drei Türen auf 11qm

Ja, eine kleine Insel wäre schön, durch die vielen Türen ist das aber nicht zu realisieren... Die APL ist zum sitzen nicht tief genug, da ist ja auch noch die Heizung, die in den Raum steht...;-)

Mir fehlt noch die genaue Position des Fensters. Hast du die oder musst du sie auch erst messen?
Die Tür zum Wohnzimmer, öffnet die in das Wohnzimmer?
Der Schornstein, ist der wie in der Alnoansicht gemauert oder verputzt?
 
AW: Stauraum für zentrale Küche mit drei Türen auf 11qm

Das Fenster ist in der Mitte der Wand. Links und rechts davon waren 111 cm Stellfläche. Rechts vom Fenster verlaufen dünne Rohre. Ich meine diese habe ich nicht bei der Stellfläche berücksichtigt. Ich vermesse das aber alles noch mal die Tage nach :read:. Die Handwerker sollten dann fertig sein.

Die Tür öffnet sich zum Wohnzimmer. Man geht dort zwei Stufen hinauf. Nur die Tür vom Flur öffnet in die Küche.

Der Schornstein ist verputzt. Habe diesen in der Alnoansicht mit den Ziegeln deutlicher herausheben wollen.

Danke & Gruß

Kato
 
AW: Stauraum für zentrale Küche mit drei Türen auf 11qm

Ich hab deine Planung jetzt mal ein bisschen optimiert. Um einen breiten Unterschrank stellen zu können, habe ich den BO in den Hochschrank gepackt. :rose: Dazu muss ein Elektriker, eine einzelnd abgesicherte Steckdose in die Nische legen. Die könnte vom Herdanschluss abgezweigt werden und Aufputz über dem Türrahmen verlegt werden.
Um die nötige Ellenbogenfreiheit zu erhalten und damit die Tür nicht mit der BO-Tür kollidieren kann, wäre es besser, die Tür zum Flur auszuhängen. Für eine einheitliche Optik, habe ich Hochschrank und Kühlschrank eingekoffert. :cool: Das funktioniert natürlich auch ohne... ;-) Wenn der Platz zum öffen vom Kühlschrank reicht, dann könnte man auch den Kühlschrank in die Nische stellen.

Den Sitzplatz habe ich vor das Fenster gebaut. Dazu habe ich die APL-Höhe, der BH vom Fenster angepasst und die APL die Fensteraibung laufen lassen. Das ergibt einen schönen und bequemen Schnibbelplatz auf leicht erhöhten Stühlen.

Die Koch- und Spülzeile habe ich im 6er Raster geplant. Dazu würde ich den Hersteller Bauformat oder Schüller empfehlen. Das sind günstige aber gute Hersteller, die auch ein 5er Raster mit 71,5cm Korpushöhe, für die Schränke in der Fensterzeile anbieten.

Verplant habe ich...

- Wange
- 90cm Kochfeldschrank im Raster 1-1-2-2, falls das Budget überschritten wird, kann man auch im Raster 1-2-3 planen
- 45cm Auszugschrank im Raster 1-1-2-2
- tote Ecke
- 60cm Spülenschrank
- GSP

darüber 2 x 90cm breite Faltklappenschränke, alternativ welche mit Drehtüren

Fensterzeile

- Blende
- 100cm Unterschrank mit Drehtüre in Hängeschranktiefe
- überstehende APL als Tisch
- 100cm Unterschrank mit Drehtüren in Hängeschranktiefe
- Blende
- Kühlschrank mit Abkofferung und Hängeschrak über dem Kühlschrank.
- BO-Hochschrank mit Mikrowelle hinter einer Lifttür, ebenfalls abgekoffert, unter dem Bo dann ein hoher Auszug für die Getränkekiste. Dort finden vielleicht auch die Backbleche, noch ein schmales Plätzchen.
 

Anhänge

  • Kato.jpg
    Kato.jpg
    36,1 KB · Aufrufe: 310
  • Kato1.jpg
    Kato1.jpg
    43,9 KB · Aufrufe: 335
  • Kato2.jpg
    Kato2.jpg
    36,2 KB · Aufrufe: 324
  • Kato3.jpg
    Kato3.jpg
    53 KB · Aufrufe: 331
  • kato1.KPL
    3,9 KB · Aufrufe: 270
  • kato1.POS
    7,7 KB · Aufrufe: 266
  • kato grundriss.JPG
    kato grundriss.JPG
    31,7 KB · Aufrufe: 308
AW: Stauraum für zentrale Küche mit drei Türen auf 11qm

...und hier noch mal eine Planungsansicht ohne abgekofferten Kühlschrank.
 

Anhänge

  • Kato4.jpg
    Kato4.jpg
    41,7 KB · Aufrufe: 298
AW: Stauraum für zentrale Küche mit drei Türen auf 11qm

Conny, recht herzlichen Dank :clap:

Das sind ja ganz neue Ideen :2daumenhoch: Toll!

Wir diskutieren Deinen Lösungsvorschlag morgen mal in Ruhe.

Ich wünsche eine angenehme Nacht.

Lieben Gruß

Kato
 
AW: Stauraum für zentrale Küche mit drei Türen auf 11qm

Conny hat das gut geplant! :2daumenhoch:

Noch schöner als nebeneinander zu sitzen finde ich aber, wenn man sich gegenüber sitzen kann.
Daher mein Vorschlag: die Arbeitsplatte zwischen den Schränken an der Fensterwand in Schranktiefe durchlaufen lassen, und einen normalen 120x80cm Tisch drunter reinschieben. Wenn Gäste da sind, kann er auch mal weiter rausgezogen werden und reicht dann für wenigstens 4 Leute. Dann werden die Durchgänge zwar eng, aber das ist ja nur vorübergehend. Oder man trägt den Tisch gleich in ein anderes Zimmer.

Ganz andere Frage: Das "Kinderzimmer" ist ja auch über das "Schlafzimmer" erreichbar. Da könntet ihr den Durchgang zur Küche doch auch schließen und die Wand komplett als Küchenwand nutzen?
 

Anhänge

  • kato_mcaV1_A1.jpg
    kato_mcaV1_A1.jpg
    58 KB · Aufrufe: 305
  • kato_mcaV1.POS
    8,5 KB · Aufrufe: 259
  • kato_mcaV1.KPL
    3,9 KB · Aufrufe: 257
  • kato_mcaV1_G.JPG
    kato_mcaV1_G.JPG
    38,8 KB · Aufrufe: 319
AW: Stauraum für zentrale Küche mit drei Türen auf 11qm

Ja, das finde ich gut, auch mit der Tischerweiterung.

Ich könnte mir aber vorstellen, dass das Kinderzimmer so etwas wie Arbeits- oder Gästezimmer ist und da fände ich ein Betreten durch das Schlafzimmer nicht so gut.

Die Küchentür würde ich auch aushängen und den Solokühlschrank eher in die schon vorhandene Nische schieben.
 
AW: Stauraum für zentrale Küche mit drei Türen auf 11qm

Danke Euch für Eure Ideen.
Derzeit sind wir bei einigen :kfb: und sichten deren Planungen.

Kreative Vorschläge finde ich bislang nur in diesem Forum :top:

Also wenn ihr noch welche auf Lager habt- nur raus damit!

Btw: Das Büro/Kinderzimmer wollen wir über die Küche erreichen, da wir nicht immer erst durch das Schlafzimmer laufen möchten. Eher stelle ich nen Schrank zwischen die Verbindungstür zwischen Büro und Schlafzimmer ;-)

Gruß

Kato
 

Ähnliche Beiträge

Neff Hausgeräte Ballerina Küchen Blum Bewegungstechnologie Weibel - Intelligente Küchenlüftung

Neff Spezial

Blum Zonenplaner

Weibel Abluft-Tuning

Weibel Abluft-Tuning
Zurück
Oben