- Beiträge
- 49
AW: Jetzt ist es passiert*Küche nach lfm gekauft*
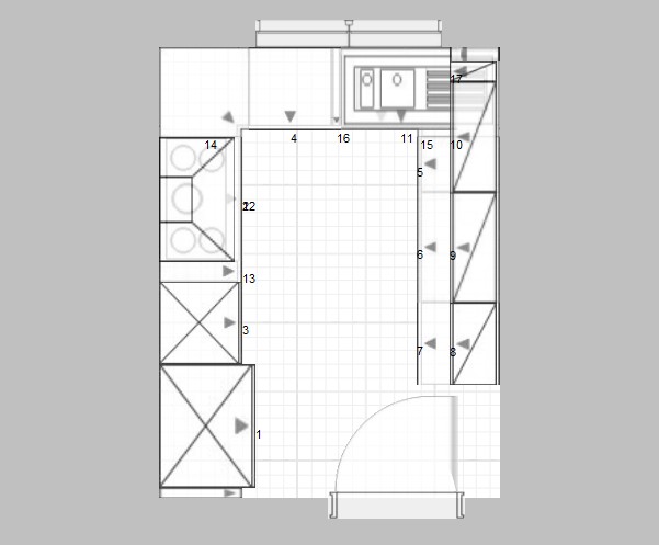
Also ich meine den Beitrag 45
Wobei ich den 100 er US gegen einen 80 er tauschen würde dann ist das Kochfeld weiter rechts,und ich bekomme noch einen 30 US zwischen den 80 er und den BO
@ menorca: Perfekt genau so wars geplant und berechnet, wobei da ja das Augenmerk auf dem Le mans , den 80 er Eckschrank rechts hinten und dem Apotheker lag, hauptsache teuer
und nicht nützlich wie ich jetzt weis
Also ich meine den Beitrag 45
Wobei ich den 100 er US gegen einen 80 er tauschen würde dann ist das Kochfeld weiter rechts,und ich bekomme noch einen 30 US zwischen den 80 er und den BO
@ menorca: Perfekt genau so wars geplant und berechnet, wobei da ja das Augenmerk auf dem Le mans , den 80 er Eckschrank rechts hinten und dem Apotheker lag, hauptsache teuer
