Pistelpit
Mitglied
- Beiträge
- 4
Hallo zusammen,
zunächst ein großes Kompliment an das Forum. Es ist sicher nicht selbstverständlich, sich immer wieder um die Küchenplanung anderer Gedanken zu machen und die meist laienhaften (ihr werdet es gleich sehen
) Planungen in stets höflicher Form zu kritisieren ohne dabei müde zu werden. Vielen Dank dafür!
Wir planen seit einiger Zeit den Bau eines EFH. Die ersten Entwürfe unseres Bauplaners stehen und wir wagen uns so langsam an das Thema Küche.
Wie auch viele andere Forenteilnehmer mussten wir recht schnell feststellen, dass das gar nicht so einfach ist.-
Das Haus wird geradlinig und mit zwei Vollgeschossen sowie versetztem Pultdach für unsere ländliche Umgebung recht modern werden.
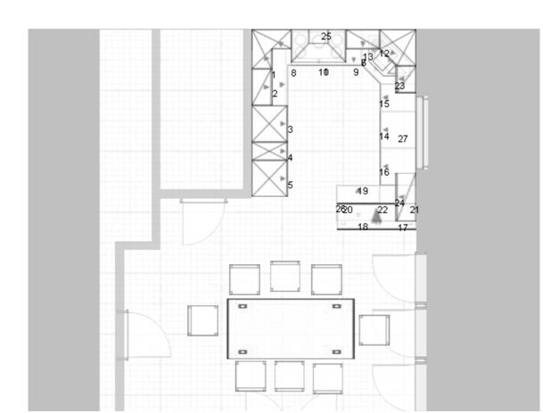
Die Grundrisse gefallen uns gut, können aber bei Bedarf auch nochmals verändert werden. Vor allem die Anordnung der Fenster im Koch-Essbereich und die endgültige Größe der Speis sind noch offen.
Grundsätzlich kochen wir sehr gerne und wollen unsere Küche aus diesem Grund auch nicht zu klein werden lassen bzw. an der falschen Stelle sparen.
Im Moment sind wir zu zweit, planen aber bereits mit 2 Kindern...
Aufgrund der Wohnraumlüftung ist im Moment noch offen ob Dunstabzug über Um- oder Abluft erfolgt.
Eine Überlegung von uns war es auch, einen Teil der Arbeitsplatte aus Stein (wg. guten Eigenschaften bei Teigherstellung bzw. Backen) zu planen.
Die Küche ist im Moment mit 270x270x330 geplant (im Bild schlecht zu erkennen).
Für sämtliche Anregungen wie auch Kritikpunkte sind wir dankbar!
MfG Martina & Peter
Checkliste zur Küchenplanung von Pistelpit
Anzahl Personen im Haushalt : 2
Davon Kinder? : 2
Körpergrössen aller Hauptbenutzer (wegen Arbeitshöhe ) in cm : beide 173 cm
Art des Gebäudes? : Bestandsbau, (kleinere) Umbauten möglich
Brüstungshöhe des Fensters (in cm) : offen
Fensterhöhe (in cm) : offen
Raumhöhe in cm: : 250 cm
Heizung : Fußbodenheizung
Sanitäranschlüsse : vollkommen variabel
Ausführung Kühlgerät? : Integriert im Hochschrank
Kühlgerät Größe : noch unbekannt
Ausführung Tiefkühl (TK)-Gerät : Im Kühlschrank bis 2 Schubladen unten
Dunstabzugshaube? : Umluft
Hochgebauter Backofen ? : Ja
Hochgebauter Geschirrspüler ? : wenn möglich
Kochfeldart? : Induktion
Kochfeldbreite ca. (in cm)? : 80cm
Spülenform: : Noch nicht festgelegt
Weitere geplante Heißgeräte : Einbaumikrowelle
Küchenstil? : klassisch
Sitzmöglichkeit in der Küche / im Küchenbereich als : Keine
Sitzmöglichkeit: Für wieviel Personen? : nein
Sitzmöglichkeit: Tisch - wenn gesonderter Tisch oder offene Küche : Keine
Gewünschte o. vorhandene Tischgröße : keine
Wofür soll der Sitzplatz in der Küche genutzt werden? Wie häufig? : keiner
Welche Arbeitshöhe ist angedacht (in cm)? : 90cm (jetzt ermittelt 95)
Was steht auf der Arbeitsplatte oder soll dort stehen? : Kaffeevollautomat, Wasserkocher, Messerblock, Brotbehälter
Welche weiteren Küchenmaschinen müssen in der Küche untergebracht werden? : Küchenmaschine, Toaster, Mixer, Pürierstab
Was soll in der Küche außer den Standards untergebracht werden? : Geschirr komplett (nichts in Ess-/Wohnzimmer)
Welchen Stauraum gibt es sonst noch? : Speisekammer, Keller
Was/wie wird gekocht? (Alltagsküche, Menüs, Snacks usw) : Alltagsküche mit Luft nach oben
Wie häufig wird gekocht? : (fast) täglich 1x warm
Wird alleine gekocht? Oder auch gemeinsam? Mit und für Gäste? : allein aber auch zu zweit
Was stört an der bisherigen Küche und was soll die neue Küche unbedingt können? Warum? : Nicht vergleichbar. Bisher 3m Zeile in kl. Wohnung
Preisvorstellung (Budget) : bis 15.000,-€
zunächst ein großes Kompliment an das Forum. Es ist sicher nicht selbstverständlich, sich immer wieder um die Küchenplanung anderer Gedanken zu machen und die meist laienhaften (ihr werdet es gleich sehen
Wir planen seit einiger Zeit den Bau eines EFH. Die ersten Entwürfe unseres Bauplaners stehen und wir wagen uns so langsam an das Thema Küche.
Wie auch viele andere Forenteilnehmer mussten wir recht schnell feststellen, dass das gar nicht so einfach ist.-
Das Haus wird geradlinig und mit zwei Vollgeschossen sowie versetztem Pultdach für unsere ländliche Umgebung recht modern werden.
Die Grundrisse gefallen uns gut, können aber bei Bedarf auch nochmals verändert werden. Vor allem die Anordnung der Fenster im Koch-Essbereich und die endgültige Größe der Speis sind noch offen.
Grundsätzlich kochen wir sehr gerne und wollen unsere Küche aus diesem Grund auch nicht zu klein werden lassen bzw. an der falschen Stelle sparen.
Im Moment sind wir zu zweit, planen aber bereits mit 2 Kindern...
Aufgrund der Wohnraumlüftung ist im Moment noch offen ob Dunstabzug über Um- oder Abluft erfolgt.
Eine Überlegung von uns war es auch, einen Teil der Arbeitsplatte aus Stein (wg. guten Eigenschaften bei Teigherstellung bzw. Backen) zu planen.
Die Küche ist im Moment mit 270x270x330 geplant (im Bild schlecht zu erkennen).
Für sämtliche Anregungen wie auch Kritikpunkte sind wir dankbar!
MfG Martina & Peter
Checkliste zur Küchenplanung von Pistelpit
Anzahl Personen im Haushalt : 2
Davon Kinder? : 2
Körpergrössen aller Hauptbenutzer (wegen Arbeitshöhe ) in cm : beide 173 cm
Art des Gebäudes? : Bestandsbau, (kleinere) Umbauten möglich
Brüstungshöhe des Fensters (in cm) : offen
Fensterhöhe (in cm) : offen
Raumhöhe in cm: : 250 cm
Heizung : Fußbodenheizung
Sanitäranschlüsse : vollkommen variabel
Ausführung Kühlgerät? : Integriert im Hochschrank
Kühlgerät Größe : noch unbekannt
Ausführung Tiefkühl (TK)-Gerät : Im Kühlschrank bis 2 Schubladen unten
Dunstabzugshaube? : Umluft
Hochgebauter Backofen ? : Ja
Hochgebauter Geschirrspüler ? : wenn möglich
Kochfeldart? : Induktion
Kochfeldbreite ca. (in cm)? : 80cm
Spülenform: : Noch nicht festgelegt
Weitere geplante Heißgeräte : Einbaumikrowelle
Küchenstil? : klassisch
Sitzmöglichkeit in der Küche / im Küchenbereich als : Keine
Sitzmöglichkeit: Für wieviel Personen? : nein
Sitzmöglichkeit: Tisch - wenn gesonderter Tisch oder offene Küche : Keine
Gewünschte o. vorhandene Tischgröße : keine
Wofür soll der Sitzplatz in der Küche genutzt werden? Wie häufig? : keiner
Welche Arbeitshöhe ist angedacht (in cm)? : 90cm (jetzt ermittelt 95)
Was steht auf der Arbeitsplatte oder soll dort stehen? : Kaffeevollautomat, Wasserkocher, Messerblock, Brotbehälter
Welche weiteren Küchenmaschinen müssen in der Küche untergebracht werden? : Küchenmaschine, Toaster, Mixer, Pürierstab
Was soll in der Küche außer den Standards untergebracht werden? : Geschirr komplett (nichts in Ess-/Wohnzimmer)
Welchen Stauraum gibt es sonst noch? : Speisekammer, Keller
Was/wie wird gekocht? (Alltagsküche, Menüs, Snacks usw) : Alltagsküche mit Luft nach oben
Wie häufig wird gekocht? : (fast) täglich 1x warm
Wird alleine gekocht? Oder auch gemeinsam? Mit und für Gäste? : allein aber auch zu zweit
Was stört an der bisherigen Küche und was soll die neue Küche unbedingt können? Warum? : Nicht vergleichbar. Bisher 3m Zeile in kl. Wohnung
Preisvorstellung (Budget) : bis 15.000,-€
Anhänge
-
Küche Entwurf 9.KPL4,1 KB · Aufrufe: 166
-
Küche Entwurf 9.POS13,5 KB · Aufrufe: 172
-
Positionsliste.jpg44,8 KB · Aufrufe: 191 -
KochEsskmpl.jpg38,7 KB · Aufrufe: 191 -
Draufsicht mit Pos.JPG22,6 KB · Aufrufe: 193 -
Ansicht v. Süden.jpg15,2 KB · Aufrufe: 206 -
Ansicht1.jpg39,8 KB · Aufrufe: 185 -
Ansicht2.jpg41,1 KB · Aufrufe: 187 -
Ansicht3.jpg42,5 KB · Aufrufe: 192 -
GrundrissEG.jpg18,4 KB · Aufrufe: 231
Zuletzt bearbeitet:



