(Halb-) Insel-Küche in sehr breitem Raum mit wenig Tiefe

TeFu

Mitglied
Beiträge
8
Titel des Themas: (Halb-) Insel-Küche in sehr breitem Raum mit wenig Tiefe

Hallo zusammen,

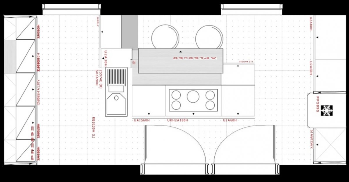
nachdem ich nun viel und intensiv im Forum gelesen habe und mir mit Hilfe des ALNO -Planers bereits diverse Gedanken um die Planung unserer neuen Küche gemacht habe, möchte ich jetzt die Gelegenheit nutzen und euch hier mal drauf schauen zu lassen. Vielleicht gibt es ja noch Möglichkeiten/ Ideen, auf die ich gar nicht gekommen bin.

Den Raum für unsere Küche gibt es bisher noch nicht, er wird erst im Zuge des anstehenden Umbaus entstehen. Es werden hierzu zwei kleinere Räume (ein Teil der jetzigen Küche --> linker Bereich im Grundriss bis zum Wandvorsprung) zusammengelegt. Da ein Träger eingezogen werden muss bleibt ein Wandvorsprung als Auflage von ca 34 cm Breite und 60 cm Tiefe in den Raum (durch den auch Abwasserleitungen vom OG laufen) an der Fensterwand stehen.

Problematisch ist, dass die beiden Fenster unterschiedlich groß sind und vor allem eine unterschiedliche Brüstungshöhe (91 cm und 79 cm) haben. Daher habe ich erstmal versucht so zu planen, dass keine Arbeitsfläche am Fenster benötigt wird. Die Fenster sollen möglichst auch nicht verändert werden, da sonst das Außenbild des Hauses gestört ist.

Eingang zur Küche vom Esszimmer aus soll eine breite Schiebetür (Durchgangsmaß ca. 230-250 cm) sein, die überwiegend offen sein wird. Die Türblätter werden in der Wand verschwinden. Leider habe ich im ALNO-Planer keine Schibetüren gefunden, daher die Variante mit zwei normalen Türen nebeneinander.

Wichtig ist mir außerdem eine hochgebauter GS, sowie ein hoher BO. Auch den MUPL finde ich ganz fantastisch ;-). Bisher könnte ich mir vorstellen ihn in den Schrank links neben dem Kochfeld unterzubringen (nicht unter der Spüle, da dann der Weg so "weit" ist vom Esszimmer aus).
Leider habe ich es mit dem ALNO-Planer nicht hinbekommen den GS hochzubauen. Er befindet sich i der Planung in dem Schrank rechts neben dem BO. Über dem GS kann ich mir einen Schrank vorstellen, in dem die Mikrowelle unzerkommen könnte (gerne auch mit Schranktür o.ä.).

Da wir ansonsten keinen große Abstellraum im EG haben, wäre es super, wenn ein Schrank (gerne in der Schrankwand auf der linken Seite) vorhanden wäre für Staubsauger und Putzmittel.

Die Schrankwand auf der linken Seite hätte ich gerne deckenhoch bzw. so eingekoffert, dass es zu ist und ich das Fett-Putzen auf den Schränken vermeiden kann ;-).

Da der Raum ja nur eine Tiefe von 267 cm hat, ist uns bewusst, dass einige der Laufwege/ Abstände relativ klein/ schmal sind. Damit können wir uns aber arrangieren, bisher haben wir in unserer sehr kleinen Küche ähnliche Anstände.

Auch die beiden Sitzplätze am Fenster sind so ok, auch wenn uns klar ist, dass immer einer aufstehen muss, wenn jemand den inneren Stuhl nutzen möchte.

Noch nicht ganz zufrieden stellt mich die Pultplatte auf der Halbinsel. Diese ist eigentlich nur da gelandet, weil man in ihrem Rand Steckdosen unterbringen kann, für die ich sonst in der Nähe des Kochfeldes keine andere Lösung gefunden habe (die versenkbaren Varianten gefallen mir nicht wirklich...).

So, ich hoffe, dass ich nun an alles wichtige gedacht habe und freue mich auf eure Meinungen und Anregungen!

Checkliste zur Küchenplanung

Personenkriterien und Ergonomie
Anzahl Personen im Haushalt:
4
Davon Kinder: 2
Körpergrößen aller Hauptbenutzer in cm (wegen Arbeitshöhe ): 170, 175
Welche Arbeitshöhe ist angedacht (in cm)?: 91-93

Gebäudekriterien
Art des Gebäudes:
Neu-/Umbau > Planänderungen möglich, Bestandsbau > (kleinere) Umbauten möglich, Eigentum
Brüstungshöhe des Fensters (in cm): linkes Fenster 91, rechtes Fenster 79
Fensterhöhe (in cm): links 120, rechts 110
Raumhöhe in cm: 250
Heizung: Fußbodenheizung
Sanitäranschlüsse: vollkommen variabel

Einbaugerätekriterien
Ausführung Kühlgerät:
Stand-Alone bis 75cm Breite
Einbaukühlgerät Größe: N. a.
Ausführung Tiefkühl (TK)-Gerät: Nicht erforderlich bzw. steht woanders
Dunstabzugshaube: Umluft
Hochgebauter Backofen : ja
Geplante Heißgeräte: Standmikrowelle, Backofen
Hochgebauter Geschirrspüler : ja
Art des Kochfeldes: Induktion
Kochfeldbreite (ca. in cm): 90


Sitzmöglichkeiten
Sitzmöglichkeit in der Küche / im Küchenbereich: Arbeitsplatte in Tischhöhe
Sitzmöglichkeit: Für wieviel Personen?: Für 2 Personen
Sitzmöglichkeit: Tisch - wenn gesonderter Tisch oder offene Küche: Keiner
Gewünschte oder vorhandene Tischgröße:

Wofür soll der Sitzplatz in der Küche genutzt werden und wie häufig: Frühstück, für die Kinder zum zugucken/ unterhalten beim Kochen

Stauraumplanung
Was steht auf der Arbeitsplatte oder soll dort stehen?: Kaffeemaschine, Wasserkocher, Messerblock, Toaster, Obstschale
Welche weiteren Küchenmaschinen müssen in der Küche untergebracht werden: Handrührgerät, Pürierstab
Was soll in der Küche außer den Standards untergebracht werden: ALLE Vorräte, Getränkekisten, Staubsauger/Wischer etc., Geschirr komplett (nichts in Ess-/Wohnzimmer)
Welchen Stauraum gibt es sonst noch: Keller


Kochgewohnheiten
Was/wie wird gekocht? (Alltagsküche, Menüs, Snacks usw): Alltagsküche, Küche für Kinder, selten aufwändiger (Menü/ Buffet)
Wie häufig wird gekocht: (fast) täglich 1x warm
Wird alleine gekocht? Oder auch gemeinsam? Mit und für Gäste?: meist alleine oder mit Hilfe der (kleinen) Kinder


Spülen und Müll
Spülenform: Noch nicht festgelegt
Welche Mülltrennung soll in der Küche vorgehalten werden: Altglas, Altpapier, Biomüll, Gelber Sack Müll, Restmüll


Sonstiges
Steht schon ein Küchenhersteller fest oder wird bevorzugt: nein
Steht schon ein Gerätehersteller fest oder wird bevorzugt: nein
Küchenstil: Grifflose Küche
Was stört an der bisherigen Küche und was soll die neue Küche unbedingt können? Warum?: die alte Küche ist 24 Jahre alt und wurde beim Hauskauf übernommen, ist recht klein (daher wird beim Umbau nun der Raum vergrößert) , hat aber ihren Zweck erfüllt
Preisvorstellung (Budget): 15000-20000


Angehängte Dateien
 

Anhänge

  • Grundriss Zimmer.jpg
    Grundriss Zimmer.jpg
    125,2 KB · Aufrufe: 525
  • Grundriss.jpg
    Grundriss.jpg
    166,3 KB · Aufrufe: 318
  • Küche2.KPL
    3,6 KB · Aufrufe: 183
  • Küche2.POS
    9 KB · Aufrufe: 175
  • Grundriss Küche2.jpg
    Grundriss Küche2.jpg
    77,5 KB · Aufrufe: 341
  • Küche2.jpg
    Küche2.jpg
    67,5 KB · Aufrufe: 392
Hallo und herzlich willkommen!

Deine Planung halte ich -sorry- für recht unpraktisch: Von der Spüle (aufpassen, dass Du nach rechts die Küche nicht flutest) gehst Du nach links zur (kleinen) Arbeitsfläche, von da um die Spüle und die Ecke herum zum Kochfeld. Du stehst beim Kochen mit dem Rücken zum Esszimmer, wer auf den Hockern sitzt, muss sich zwischen Insel und Wand einfädeln und dann aufpassen, dass er keine Spritzer aus der heißen Pfanne abbekommt.
Hm... nicht so töfte...
Ist die Schiebetür fix an der eingezeichneten Stelle? Wenn sie weiter planlinks läge, könnte man planrechts von der Schiebetür eine schöne Küche planen. Am Wandvorsprung eine reine Arbeitsinsel mit Sitzplätzen planlinks. An der planlinken Wand Stauraum in Form von HSs.
Wenn Ihr groß umbaut, warum kommt die Küche dann nicht in den Bereich `Wohnzimmer`? Nahe am Eingang, kurze Wege vom Einkauf, kurze Wege auf die Terrasse. Wohnzimmer dann als kuschelige Ecke in den Küchenbereich: rechts vom Wandvorsprung Sofa- und Fernsehecke, links vielleicht eine Art Bibliothek?
 
Danke für die schnelle und ehrliche Antwort!

Die Spüle soll nicht ganz am Rand der Arbeitsfläche sein (ist vielleicht in der Planung nicht so gut zu erkennen bzw. nicht gelungen), eben um die Flutung der Küche zu vermeiden. Die Arbeitsfläche links neben der Spüle soll eigentlich weniger als solche benutzt werden. Es war eher an die Fläche links und rechts vom Kochfeld gedacht. Vom linken Bereich neben dem Kochfeld käme man dann eben auch an die Spüle ohne um die Ecke gehen zu müssen.

Die Schiebetür kann leider nicht noch weiter nach links, da in diesem Bereich eine Stütze stehen bleiben muss, auf der ein Träger aufliegt. Die (gedachte) Verlängerung des Wandvorsprunges an der Fensterwand ist momentan noch eine komplette Wand, die im Zuge des Umbaus weg kommt.

Komplette Veränderung der Nutzung, also Küche in Wohnzimmer kommt nicht in Frage. Es soll so bei den Räumen bleiben, wie es auf dem Plan zu sehen ist.
 
Hallo,
ich finde den Ansatz, den extrem breiten Raum li/re mit 2 Zeilen zu verkürzen und mittig eine große Insel zu stellen erst mal gut. An der jetzigen Anordnung würde mich stören, daß man beim Kochen mit dem Rücken zum Wohnbereich und sehr nah am Durchgang steht.
Tropfbereich nach hinten ist hier eine gute Idee, das spart Platz auf der begrenzten Insellänge!
VG,
Jens
 
Ja, das man beim Kochen mit dem Rücken zum Wohnbereich steht, gefällt mir auch nicht ganz so gut. Erste Überlegung war mal Spüle und Kochfeld zu tauschen, aber da es bei uns im Spülbereich eher mal chaotisch aussieht, als auf der Kochfläche und man dann ja vom Wohnbreich drauf blickt, ist dann diese Lösung entstanden. Optimal ist es nicht, aber ich könnte vermutlich damit leben.
 
Vielleicht wäre es eine Alternative, die Insel als Arbeits-und Spülinsel zu nutzen und die Spüle da zu platzieren, wo jetzt die Stühle sind. Kochbereich dann auf der rechten (dann durchlaufenden) Wandzeile, dafür den Kühler in der Hochschrankzeile links integriert. Das ergibt insgesamt mehr Arbeitsfläche bei noch akzeptablen Wegen.
VG,
Jens
 
Dann wäre aber der Kühlschrank sehr weit weg vom Kochfeld. Ich hätte ihn gerne eher in der Nähe, weil ich doch immer noch eine Kleinigkeit daraus brauche (Schuss Milch oder ein bisschen Butter o.ä. beim Kochen). Auch die Spüle an der schmalen Stelle , wo jetzt die Stühle stehen stelle ich mir nicht so praktisch/ zu eng zum arbeiten vor. Außerdem finde ich eine räumliche Nähe von GS und Spüle sehr sinnvoll und die wäre dann nicht mehr gegeben...
 
Welches Fenster hat welches Brüstungsmaß? Welchen Abstand hat die Fensterflügel-Unterkante zum Fußboden? Werden die Fenster noch ausgetauscht?
 
Das planlinke Fenster hat eine Brüstungshöhe von 91 cm, das planrechte von 79 cm. Fensterflügelunterkante ist jeweils 2-3 cm mehr.
Fenster sollen eigentlich erstmal nicht ausgetauscht werden.
 
@Evelin : Genau, bisher gibt es die FBH noch nicht. Soll im Zuge des Umbaus in Wohn-, Esszimmer und Küche realisiert werden.

Und ja, Dunstabzug soll als Muldenlüftung eingebaut werden.
 
Meine Küche ist auch aus der Zusammenlegung zweier Räume entstanden, etwas verwinkelter als hier. Vielleicht kannst Du änlich wie bei mir eine tiefe Spülenhalbinsel in der Mitte und Kochzeile planrechts planen. Ich bin sehr happy mit der Konstellation,
 
Danke, Isabella für deine Antwort. Ich befürchte mit deiner Lösung werde ich nicht auf ausreichend Stauraum kommen :(. Denn dabei müsste mindestens der Schrank neben dem Kühlschrank weichen, da mir sonst die Arbeitsfläche neben der Kochfläche zu wenig wäre.
 
Ja, jetzt bin ich zu Hause und kann die Grundrisse vergleichen: Deine Räumlichkeiten sind doch anders, breiter und weniger tief.
 
ich glaube, das ist einer der schwierigsten Grundrisse für eine Küche. Warum sollen die beiden Räume zusammengelegt werden, wenn es am Ende nur viel Lauferei ist? Wäre man bereit, das Fenster planrechts zu ändern, würde sich doch dieser Raum für ein Küche anbieten und man könnte den alten Küchenraum für etas anderes nutzen.

Mich würde doch mal ein Bild der Außenfront interessieren, wenn die Fenstermaße so wichtig sind.

Die andee Frage ist natürlich, warum kann die Küche nicht planunten in Terassennähe sein?
 
Zuletzt bearbeitet:
Ja, der Grundriss ist schwierig, das sehe ich ein. Aber es muss doch trotzdem möglich sein eine sinnvolle Küchenlösung zu finden, oder?

Die beiden Räume sollen zusammengelegt werden, weil ich mir schon immer eine größere Küche wünsche und es ansonsten zwei recht kleine Räume bleiben würden, für die bei unseren Gegebenheiten keine passende Nutzung zu finden ist. Das haben wir bei den Umbauplänen schon ausreichend durchgespielt. Auch benötige ich viel Stauraum in der Küche, den ein kleinerer Raum wohl nicht hergeben würde.

Planunten am Ausgang zur Terasse möchten wir das Wohnzimmer auf jeden Fall behalten, denn sonst würde jeder Besuch direkt als erstes in der Küche stehen. Das möchte ich nicht, dafür ist es viel zu oft chaotisch bei uns in der Küche... Auch den Blick in den Garten möchte ich weiterhin vom Wohnzimmer aus haben.

Von der Außenseite habe ich momentan kein Bild. Es sind auf dieser Hausseite (Straßenseite) insgesamt vier Fenster. Das Fenster ganz rechts (im Grundrissplan das planlinke Fenster) gehört zu einem später gemachten Anbau des Hauses und hat daher die anderen Maße. Die anderen drei Fenster (Fenster im Grundriss planrechts, sowie zwei weitere Fenster) gehören zum Altbau des Hauses. Würden wir jetzt das eine Fenster ändern, wären von der Straße aus drei verschiedene Fenstertypen/- größen zu sehen. Eine Änderung aller Fenster ist nicht gewünscht, da nur mit sehr großem Aufwand realisierbar.

Vielleicht hat ja doch noch jemand eine andere gute Idee, wie man eine sinnvolle Küchenplanung in diesem schwierigen Raum umsetzen könnte.
Vielen Dank schonmal im Voraus!
 

Ähnliche Beiträge

Neff Hausgeräte Ballerina Küchen Blum Bewegungstechnologie Weibel - Intelligente Küchenlüftung

Neff Spezial

Blum Zonenplaner

Weibel Abluft-Tuning

Weibel Abluft-Tuning
Zurück
Oben