Fertig ohne Bilder G-Küche im EFH-Neubau - kann-so, optimieren oder doch neu planen?

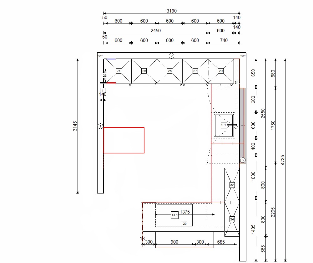
Die bereits bestellte Deckenlöcher mit Kaiser-Dosen sind an den im am Threadanfang geposteten Grundrisse „angeixte“ Kreise, 10 Stück 4-eckig angeordnet?
Korrekt, das sind die Positionen für die Deckenstrahler.

(...), ich hätte gehofft, Du postest eine Grundrissskizze mit Kästchen, die Tisch, Sofa und restliche Möblierung andeuten. Und ich habe die Info über die geplante Ausstattung (Bodenbelag, Fenster- und Türenmaterial und -farbe) nicht gefunden oder übersehen.

Okay, war mir nicht bewusst, dass das notwendig ist.

Die Wandscheibe hinter der Kochinsel ist tragend (?) aber das Higboard kann woandershin? Leider sind die Ausführungen für mich nicht verständlich.

Das war dann ein Missverständnis. Planrechts neben der Kochinsel ist ein Highboard platziert, keine halbhohe Mauer!

Das Highboard können wir auch woanders hinstellen.
 
Hallo Walnuß,

ich glaube wir haben einen Bug in der Forensoftware gefunden.
Mein Account ist Walnuss und seit 2017 inaktiv. Dein Account ist Walnuß und brandneu, aber irgendwie schaffst du es von beiden Accounts hier zu schreiben?!

Ich habe mein Passwort zurückgesetzt.

Viele Grüße
Walnuss
 
Ich habe den Bug korrigiert. Eigentlich ist das ß in Nutzernamen verboten aber irgendwie hat sich was überschnitten.
Ich habe den neueren Benutzer und Ersteller dieses Themas jetzt in Walnuss1 umbenannt. Bitte beim nächsen Login beachten.
Ich hoffe es klappt alles weil ich nun los muss. Den Rest kann ich heute abend erledigen.

Danke fürs melden :-)
 
Korrekt, das sind die Positionen für die Deckenstrahler
Ok, das muss man bei der Planung beachten. Die sind schätzungsweise 70 cm von der Wand entfernt, oder?
Okay, war mir nicht bewusst, dass das notwendig ist.
Naja, notwendig ist nichts, aber wenn man einen Allraum einrichtet, ist man gut beraten, den gesamten Raum anzuschauen. Für mich musst Du Dir jetzt keine extra Mühe machen, ich habe momentan noch weniger Zeit als sonst und planen erstellen tue ich so oder so nicht. Ich versuche immer nur, Anregungen zu geben.
Das war dann ein Missverständnis. Planrechts neben der Kochinsel ist ein Highboard platziert, keine halbhohe Mauer!
In einer der Planungen sah es wie eine Wand aus, deswegen meine Frage. gut so.

Ist der geplante Bodenbelag durchgehend gleich oder gibt es einen Belagwechsel irgendwo?
 
L u. Halbinsel ginge auch.
Theorethisch könnte die planuntere Wand noch mit Trockenbau verlängert werden.
 

Anhänge

  • küfo.jpg
    küfo.jpg
    100,8 KB · Aufrufe: 229
So meinte ich das. Die Insel könnte 80 bis 90 cm tief werden.
Danke für die Idee! Und glaube mir, ich bin die seit bestimmt 2 Jahren immer mal wieder durchgegangen und auf eine Mindestbreite von 3,90 m gekommen, Jetzt nur 3,20m. Hieße: 60 cm APL - Laufweg 120 cm - Insel 80 cm - zur Wand 60 cm. Das ist alles dann leider sehr eng. Und wir wollen APL Tiefe 70 und wenn, dann Insel >100 cm Tiefe.
 
Hallo,
wie gefällt dir die Idee von Bibbi?
Oder grundsätzlich der Gedanke die Hochschränke planunten zu machen, egal ob jetzt G oder L mit Insel.
Positiv daran finde ich nämlich, dass die Arbeitsbereiche nicht durch die Hochschrankwand getrennt sind. Lg
 
L u. Halbinsel ginge auch.
Theorethisch könnte die planuntere Wand noch mit Trockenbau verlängert werden.
Bibbi, danke für Deinen Vorschlag! Das mit der Halbinsel ist eine gute Idee, um ohne Ecke auszukommen.

Bekommen wir die Küchenfläche denn noch etwas besser ausgenutzt? Das Wohn-/Esszimmer ist 5,20 m breit. Die Breite brauchen wir im Essbereich nicht, deshalb dachten wir, die Halbinsel könnte weiter in den Raum rein.

Was würdest Du für das Küchenfenster planoben vorschlagen? Wie bekommen wir das hin, dass eine Zeile mit Spüle und Vorbereitungsfläche vor dem Fenster ist?

PS. Ich habe einen bereinigten Grundriss des gesamten Erdgeschosses inkl. Position Esstisch und Couch hochgeladen, so kann man sich besser vorstellen, wie das Erdgeschoss funktionieren soll.
 
Für L plus Halbinsel habe ich noch ein Bild gefunden. Wobei mir die Anordnung von Bibi deutlich besser gefällt, weil die Halbinsel dort mit einer Funktion belegt ist und die HS besser zugänglich sind. Aber vielleicht kann man es irgendwie weiter entwickeln.
 

Anhänge

  • 46FAB5A5-A665-4FC6-BB9A-71A328A9511C.jpeg
    46FAB5A5-A665-4FC6-BB9A-71A328A9511C.jpeg
    84,5 KB · Aufrufe: 242
Zuletzt bearbeitet:
Wir sind alle Eure Anregungen mal durchgegangen und haben einige davon in einem neuen Planungstermin mit Küchenstudio #3 aufgegriffen:

  • Schüller next125, Korpushöhe 87,5 cm, APL jetzt auf 94,5 cm
  • Sideboard kommt woanders hin => Nur Kochinsel, von 3 Seiten erreichbar
  • U- statt G-Form
  • Symmetrie der Hochschränke aufgelöst
  • Aus 2 mach 1: Entfall des linken Rolladenschranks
  • GSP wandert von der Fensterseite in einen Hochschrank und wird um 3 Raster hochgesetzt
  • linke Seite bleibt ein in der Tiefe reduzierter Unterschrank als Stellfläche für Backofen und Mikrowelle
Auf die beiden Küchen-Ecken wollen wir nicht verzichten, und auch eine L-Form passt nicht, da wir an der Spüle vor dem Fenster festhalten wollen.

Next125 hat leider eine etwas eingeschränkte Auswahl an Lackfarben, gezeigt wird Lavaschwarz, das in Natur eher Graphit als Schwarz ist, für uns eventuell zu dunkel. Auch unentschieden ist die Frage, ob wir bei hochglanz bleiben oder zu matt wechseln.

Ist das für Euch jetzt eine kleine Verbesserung?
Küche Kochinsel Hochschränke.jpg
Küche Fensterzeile mit Spüle.jpg
Küche einzelner Unterschrank.jpg
 
Zuletzt bearbeitet:
Also mir persönlich gefällt das viel besser als deine erste Planung.
2 kleine Anmerkungen hätte ich
- das kleine Kasterl links wirkt für mich wie ein Störfaktor, braucht ihr das wirklich?
- ich bin mir nicht sicher, wenn du den Geschirrspüler öffnest, kannst du dann noch bequem bei der Spüle stehen?
Lg
 
Also mir persönlich gefällt das viel besser als deine erste Planung.
2 kleine Anmerkungen hätte ich
- das kleine Kasterl links wirkt für mich wie ein Störfaktor, braucht ihr das wirklich?
(...)
Lg
Ja, das kleine Kasterl macht das unruhiger, stimmt. "Form vs. Function". Keine Ahnung, ob wir den beibehalten. Letztlich muss es für uns nicht nur schön (für Gäste) sondern auch praktisch sein.

- ich bin mir nicht sicher, wenn du den Geschirrspüler öffnest, kannst du dann noch bequem bei der Spüle stehen?
Lg
Mmh, der geöffnete Geschirrspüler verdeckt den planlinken 60-er Unterschrank , wenn er ganz geöffnet ist. Aus dem Unterschrank könnte man auch einen 70er oder 80er draus machen, dann sitzt die Spüle etwas weiter rechts.

Was eher fraglich ist: Der Backofen ganz links, ca. 10 cm von der planunteren Wand entfernt. Ist das praktisch bzw. akzeptabel?

Wir nutzen den Backofen so gut wie nie zum Kuchenbacken, nur ab und an zum Backen von Gemüse, Kartoffelspalten oder mal ein Braten, also seltener.
 
Ja, es ist definitiv besser und passt dennoch zu den bestehenden Spots. Bei Next125 unbedingt eine Suppenkelle mit ins Küchenstudio mitnehmen und die Innenhöhe der einfachen Schubladen testen.

Korpushöhe 87,5 cm, APL jetzt auf 94,5 cm - wenn die Arbeitsplatte 2 cm hat, ist der Sockel dann 5 cm. Das geht zwar, aber Ihr solltet mal im Küchenstudio vor einem Unterschrank mit dem kleinen Sockel stehen und probieren wie es für Euch ist, den unteren Auszug zu öffnen. Und ein Saugroboter kommt nicht drunter. Nur damit Ihr das mal gehört habt.

Den Sideboard steht nur im Weg, ich würde ihn weglassen.
 
@Alwa wir haben z.b. eine große Suppenkelle die nicht hineinpasst. Dieser Tipp ist also durchaus wertvoll.
Auch ist es sinnvoll generell einen Zollstock mitzunehmen um gewisse Höhen, Tiefen und Breiten auszumessen.
 
Schon besser, aber mich überzeugt es noch nicht ganz. Ich versuche es daher noch mal. Ausgehend von der letzten Planung mit der HS Wand und der Spüle unterm Fenster, warum nicht das Kochfeld auch in die Zeile legen? Ihr habt da ausreichend Platz dafür. Könnt den Dunstabzug frei wählen ohne den Platzverlust in den Schränken in Kauf zu nehmen und sogar ggf. Abluft realisieren.

Für die Abstellfläche gegenüber den beiden Heißgeräten und ggf. auch für den Kühlschrank würde ich die Halbinsel mit Sitzgelegenheit an die linke Seite verorten. So sind die Sitzplätze auch fern von Fettspritzern. Wenn ihr an den Sitzplätzen auch eine Kleinigkeit essen oder Frühstücken wollt, dann ist da auch mehr Abstellfläche. Außerdem ist der Zugang zum Kühlschrank vom Esstisch aus viel direkter als über die Ecke. Und schließlich wenn die Halbinsel links ist, kommst du gar nicht in die Versuchung einen Kasterl aufzustellen.
 

Anhänge

  • 578951D4-6A85-402B-956D-EA7A8A746568.jpeg
    578951D4-6A85-402B-956D-EA7A8A746568.jpeg
    131 KB · Aufrufe: 198
  • DD31A690-3561-494A-AA91-5D46D1E01F3F.jpeg
    DD31A690-3561-494A-AA91-5D46D1E01F3F.jpeg
    172,1 KB · Aufrufe: 201
Schon besser, aber mich überzeugt es noch nicht ganz. Ich versuche es daher noch mal. Ausgehend von der letzten Planung mit der HS Wand und der Spüle unterm Fenster, warum nicht das Kochfeld auch in die Zeile legen? Ihr habt da ausreichend Platz dafür. Könnt den Dunstabzug frei wählen ohne den Platzverlust in den Schränken in Kauf zu nehmen und sogar ggf. Abluft realisieren.

Was genau überzeugt Dich noch nicht? Warum sollte es anstatt des U besser ein L plus Halbinsel sein?

Wie antworte ich Dir jetzt, ohne dass es so klingt wie "wer will findet Wege, wer nicht will, der findet Gründe"?

Ja, das Kochfeld können wir an die Wand legen, die ist ja lang genug. Warum haben wir das bisher nicht in Erwägung gezogen? Die letzte Möglichkeit für Wandschränke wäre damit verbaut. Außerdem ist die Blickrichtung beim Kochen dann wieder zur Wand, das haben wir jetzt in der Küche und sind neugierig wie es wäre, beim Kochen in Richtung Esstisch zu schauen.

Für die Abstellfläche gegenüber den beiden Heißgeräten und ggf. auch für den Kühlschrank würde ich die Halbinsel mit Sitzgelegenheit an die linke Seite verorten. So sind die Sitzplätze auch fern von Fettspritzern. Wenn ihr an den Sitzplätzen auch eine Kleinigkeit essen oder Frühstücken wollt, dann ist da auch mehr Abstellfläche. Außerdem ist der Zugang zum Kühlschrank vom Esstisch aus viel direkter als über die Ecke. Und schließlich wenn die Halbinsel links ist, kommst du gar nicht in die Versuchung einen Kasterl aufzustellen.

Das sind in der Tat ein paar gute Argumente. Leider verlängern sich dann bei Deiner Lösung auch die Laufwege in die und aus der Küche, wir müssten uns zwischen Insel links und Esstisch-Stühlen rechts vorbeischlängeln.

Wie wäre es denn, wenn wir anstelle des "Kasterls" einen kleinen Tisch für 2 hinstellen oder einen kleinen Küchenblock, siehe Skizze.
 

Anhänge

  • Grundriss next125 mit zus Küchenblock.jpg
    Grundriss next125 mit zus Küchenblock.jpg
    85,2 KB · Aufrufe: 152

Ähnliche Beiträge

Neff Hausgeräte Ballerina Küchen Blum Bewegungstechnologie Weibel - Intelligente Küchenlüftung

Neff Spezial

Blum Zonenplaner

Weibel Abluft-Tuning

Weibel Abluft-Tuning
Zurück
Oben