Fertig ohne Bilder G-Küche im EFH-Neubau - kann-so, optimieren oder doch neu planen?

Wenn euch die Hängeschränke so wichtig sind, dann ist es wohl tatsächlich die letzte Möglichkeit. Ich habe gut und gerne drauf verzichtet und in letzter Zeit sind hier im Forum auch zahlreiche schöne Küchen ohne Hängeschränke präsentiert worden. Ohne Hängeschränke sieht es moderner und zugleich wohnlicher und nicht so küchig aus. Aber Geschmäcker sind verschieden.

Ich hatte euch aber darüberhinaus noch einige Funktionale Aspekte genannt wie freie Wahl des Kochfeldes, größere Kochfläche, freie Wahl des Dunstabzugs, Abluft und keinen Stauraumverlust. Denn all diese Einschränkungen habt ihr mit dem gewählten im Kochfeld integrierten Dunstabzug. Ferner hab ich auch gesagt, dass Sitzplätze direkt am Kochfeld nicht so prickelnd sind. Außerdem ist die Fläche in der Ecke nicht besonders komfortable, deshalb hätte ich persönlich die Ecke aufgelöst. In der Summe gefällt mir daher die aktuelle Planung des Kochfeldes nicht. Es sind somit begründete Zweifel und nicht nur Geschmackssache.

Die Kochrichtung ist natürlich was anderes, wenn dies eine höhere Priorität als alles andere hat, dann habt ihr diese Entscheidung zumindestens bewusst getroffen und dann soll es so sein. Ich gebe nur zu bedenken, dass man ja nicht ständig Besuch hat, welchen man unterhalten muss. Im Alltag, ihr seid ein 2 Personen Haushalt, ist es denke ich relativ egal ob man auf leere Stühle oder auf die Wand schaut. Wenn ich Gäste bewirte, dann sind meine Vorbereitungen soweit fortgeschritten, dass ich nur noch die letzten Handgriffe machen und dann Anrichten muss. So eine Halbinsel als freie Fläche ist dafür übrigens auch sehr gut geeignet. Wenn Besuch da ist, mache ich am Kochfeld so wenig wie möglich. Ihr habt auch 2 Heißgeräte, damit lässt sich viel machen und das Kochfeld wird dadurch auch deutlich weniger in Anspruch genommen.

Und ob Kasterl oder Tisch, in Verbindung mit einem U würde ich mir den Weg nicht zu stellen. Ich denke, dass man für sowas eher ein Gefühl bekommt, wenn die Küche steht. Dann kann man auch wegen der Größe ausprobieren und mit Umzugskartons einen Tusch simulieren. Dann seht ihr ob euch das gefällt oder nicht.
 
Traumküchegesucht, danke für Deine Überlegungen. Wir lassen das über´s Adventswochenende mal sacken und ich kommentiere nicht, vielleicht lösen sich ja dann ein paar emotionale Blockaden, die aktuell verhindern, das gut zu finden. ;-)
 
Ein Kommentar erwarte ich auch nicht. Im Gegenteil ich finde es wichtig sich Zeit zu nehmen. Es ist euch auch keiner Böse, wenn ihr nicht alle Ratschläge annehmen bzw. umsetzen würdet. Es geht einfach darum in viele Richtungen zu denken und Entscheidungen bewusst zu treffen. Es muss euch gefallen und nicht jemandem aus dem Forum. Habt ein schönes Adventswochenende!
 
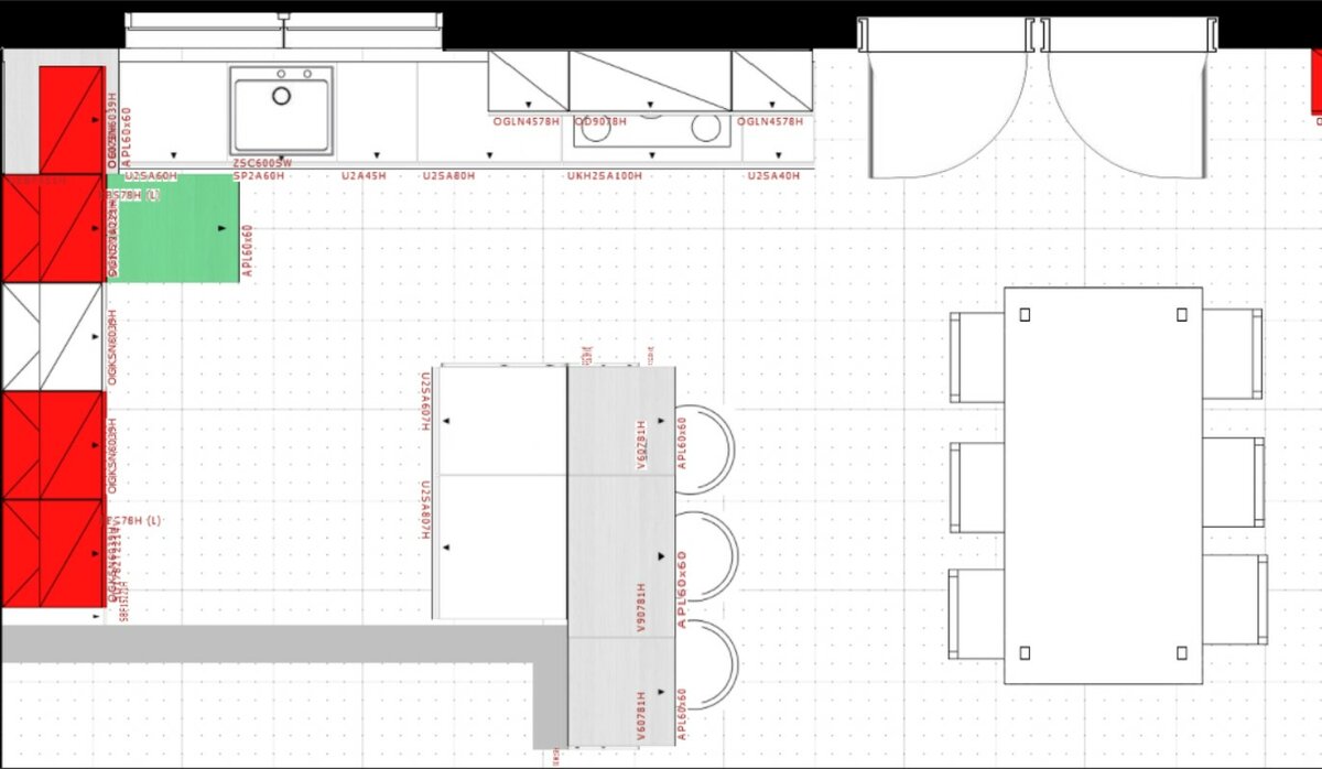
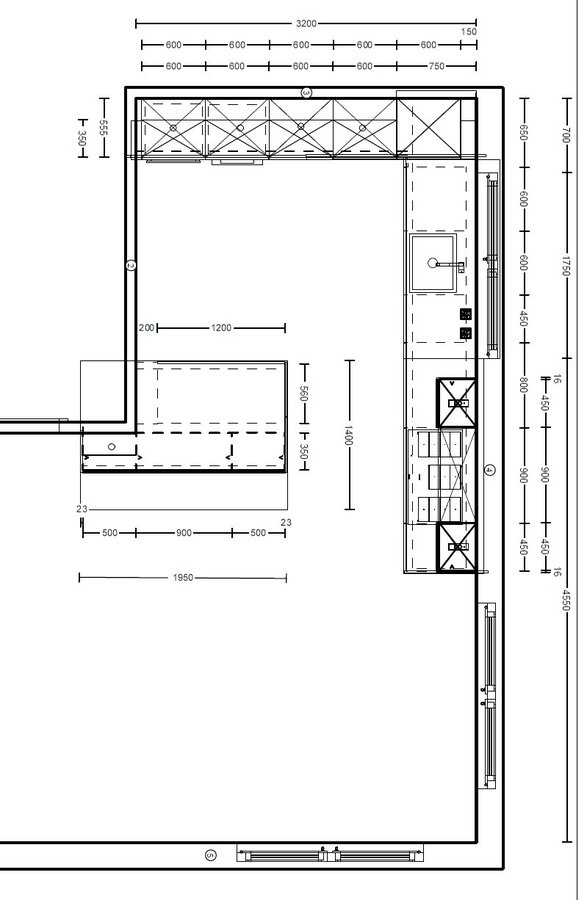
Wir haben die letzten Wochen genutzt, um unsere Planung zu überdenken und auch das Thema Küchengeometrie neu zu denken. Voraussichtlich wird es jetzt ein L mit einer funktionslosen Halbinsel mit Sitzgelegenheit auf der gegenüberliegenden Seite, so wie von @Traumküchegesucht und @isabella vorgeschlagen.

Da die Halbinsel aufgrund der schmalen Küchennische (3,20 m) nur 1,40 - 1,50 m breit sein wird, überlegen wir, die Insel auf der planrechten Seite nach unten zu verlängern.

Wie findet ihr die Idee mit der verlängerten Insel?

Fronten:

Wir planen weiterhin mit zwei Farben. Neben LEICHT und Schüller next125 haben wir jetzt noch entdeckt, dass Ballerina ein schönes Walnussfurnier in beiden Maserungsrichtungen anbietet.

Aktuell lassen wir uns zwei Küchen planen:
1. Ballerina (6810 oder 6815 Walnuss) für die Hochschränke + Häcker Systemat für den Rest (AV 7030 Black Star)
2. Ballerina (6810 oder 6815 Walnuss) + Ballerina (XL/GL 4641 Smart -Glas)

Das Steinfurnier von Häcker Systemat (AV 7030 Black Star) hat uns echt beeindruckt, wir haben es neulich in einem Küchenstudio live gesehen, sehr schöner Look, klar, gefällt sicherlich nicht jedem. Noch haben wir keine Preise, aber der KFB hat uns mal die internen Verrechnungsfaktoren der Steinfront vs. Lack gezeigt und ich vermute, das wird einen mittleren vierstelligen Betrag draufpacken müssten. Deutlich günstiger würde wohl Ballerina mit dem Smart-Glas.

Gibt es von Spezialistenseite Erfahrungswerte zur Steinfurnier-Front (Schiefer mit Schutzschicht) und zum Smart-Glas (Plexiglas mit Schutzschicht), was Praxistauglichkeit betrifft?
 

Anhänge

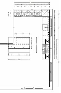
  • 2022-01-18 Grundriss.jpg
    2022-01-18 Grundriss.jpg
    89,8 KB · Aufrufe: 269
  • 2022-01-18 Blickrichtung von oben.jpg
    2022-01-18 Blickrichtung von oben.jpg
    68,6 KB · Aufrufe: 263
  • 2022-01-18 Blickrichtung Ost.jpg
    2022-01-18 Blickrichtung Ost.jpg
    85,3 KB · Aufrufe: 267
  • 2022-01-18 PLAN.KPL
    3,6 KB · Aufrufe: 96
  • 2022-01-18 PLAN.POS
    13,5 KB · Aufrufe: 112
Die Fortführung ums Eck nimmt Dir Platz im Essbereich, die Insel rutscht damit auch etwa 70 cm zu weit weg vom planlinken L und keiner wird sich um den Strafplatz mit Gesicht zur Wand und Rücken zum Esstisch und auch noch mitten im Eingangsbereich reißen. Beim Reinkommen ist dieser Zipfel auch immer im Weg. Ich rate unbedingt ab.
 
Im ertsen Moment erscheint die Idee reizvoll,
ABER
Isabella hat recht. Außerdem ist dann der Abstand zu der HS Zeile zu weit. Die Halbinsel ist nicht mehr Bestandteil der Küche sondern eine Sperre am Eingang.
Schiebe sie wieder nach links, so dass sie gegenüber deiner Hauptarbeitsfläche ist. Es ist sehr praktisch, wenn man aufwendiger kocht oder gerade viel Platz braucht, mal eben etwas hinter sich abstellen zu können, sei es die Waage, das Kochrezept, vorbereitete Zutaten... Oder ihr stellt euch zum gemeinsamen schnibbeln zusammen an die Insel.
 
isabella, charlie, Eure Argumente sind komplett nachvollziehbar. Gerade der zu große Abstand zur Hochschrankzeile.

Genug Platz in Richtung Esszimmer wäre in jedem Fall, ohne dass etwas zu eng wird. Die Idee ist uns gekommen, weil wir die typischen Vollinseln ("Flugzeugträger ") vor Augen haben. Die Verlängerung der Insel war vor allem ein Design-Aspekt, um die Insel vom Essbereich aus eleganter zu gestalten.

Aufgrund des unpraktischen Abstands zu den Hochschränken bleiben wir dann wohl voraussichtlich bei der kurzen Variante und stellen die Insel wieder weiter nach links, so dass max. 1,20 - 1,40 m zwischen Insel und Hochschrankzeile sind.

Hat denn noch jemand aus dem Forum Erfahrung zum Steinfurnier von Häcker ?
Oder - derzeit unsere zweite Wahl - zu Ballerina Smartglas seidenmatt?
 
Der Zipfel über Eck fände ich nicht elegant (woher käme die Eleganz?), der Sitzplatz an der Stelle mit Gesicht zur Wand ist definitiv nicht elegant. Es würde einfach komisch aussehen und sich komisch anfühlen.

In den fertiggestellten Küchen gibt es jemand mit Smartglas-Fronten, ich weiß nicht mehr wer. Bisher nichts Negatives gehört. Steinfurnier ist sicher an und für sich schön, wie putzt man das?
 
Ich finde es sehr schön, dass ihr euch Zeit genommen und auch über Alternativen nachgedacht habt. Ich finde die Planung jetzt deutlich offener. Die Arbeitshalbinsel würde ich glaube ich auch nicht so weit raus ziehen. Es macht nichts, dass sie nicht so breit sein wird. 140 oder 150 cm ist aus meiner Sicht genau richtig, um 2 schöne Sitzplätze einzurichten. Außerdem, wenn die Halbinsel nicht so an der Ecke klebt, kannst du vielleicht noch eine Wandleuchte über der Halbinsel oder ein dekoratives Bild aufhängen und damit die Küche etwas wohnlicher gestalten. Wenn die Halbinsel jedoch so in der Ecke gequetscht ist, wird es schwieriger dort an der Wand ein gestalterisches Element stimmig zu platzieren. Ich würde euch jedenfalls eine oder zwei Steckdosen in diesem Bereich empfehlen zum Beispiel für Handy aufladen oder um eine Tischleuchte einzustecken oder beim Buffet einen Speisewärmer anzuschließen.

Die Steinfronten habe ich auch live gesehen, sie haben mir gut gefallen. Erfahrung habe ich damit aber keine.
 
Übrigens sollte man Steinfurnier möglichst grifflos planen.
Und gerne mit einer 2. Farbe(z.BSP Hochschrankwand in Holz)kombinieren.
 
Übrigens sollte man Steinfurnier möglichst grifflos planen.
Und gerne mit einer 2. Farbe(z.BSP Hochschrankwand in Holz)kombinieren.
Ja, es wird wohl grifflos, allerdings ohne Griffmulde(n), die gibt es nur in 6 Raster (78), dafür mit Tip-on / Serv-on und eventuell mit einer Griffleiste oben an den Schubläden. Wir sind uns jedoch nicht sicher, ob das wesentlich praktischer ist als Schubladen-Tip-on.

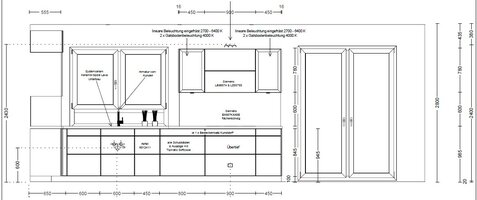
2. Farbe : Du hattest mein 3D-Ansicht gesehen? Da ist ja Holz und Schiefer kombiniert. Wir sind allerdings noch am Hin- und Her-Experimentieren, wie wir die Hochschrankwand (Holz) mit Glaselementen / -türen / - schränken etwas auflockern können, ohne dass wir auf Funktion und Platz verzichten müssen. So, wie es in der aktuellen 3D-Ansicht ist, mit Glasoberschränken in der obersten Reihe, wie ein KFB es vorgeschlagen hat, ist jedenfalls noch nicht der Weisheit letzter Schluss. Vielleicht hat jemand eine Idee?
 
(...) Die Arbeitshalbinsel würde ich glaube ich auch nicht so weit raus ziehen. Es macht nichts, dass sie nicht so breit sein wird. 140 oder 150 cm ist aus meiner Sicht genau richtig, um 2 schöne Sitzplätze einzurichten. (...)
Die Idee, die Insel rauszuziehen, ist uns gekommen, weil ja die planobere Küchenzeile weiter in den Raum hineinragt als die Insel. Wir haben uns gefragt, ob das evtl. unharmonisch aussieht, da es eine eher ungewohnte Küchenform ist, wenn die Insel mehr oder weniger auf der Hälfte der Zeile sitzt. Andererseits nur deshalb die Arbeitsfläche verkürzen wollen wir auch nicht.
 
Glaselementen / -türen / - schränken etwas auflockern können,
Das ist Geschmacksache,ich wüsste nicht,was ich mit schwarzen Glasflächen knapp unter der Decke anfangen sollte.
Außerdem gehört "Auflockern "nicht zu meinem Planungs Wortschatz.
Gerade edles Frontmaterial benötigt aus meiner Sicht keine zusätzliche Unruhe.
 
Eine Küche ist in aller Regel im echten Leben mehr als genug 'belebt' ... da braucht man keine 'Auflockerung' - das ist was für einen Showroom oder für Ordnungsfanatiker. Falls Du in diese Kategorien gehörts - go for it.
 
Von uns ein kleines Update. Wir haben die Küche jetzt beauftragt. Eure Einwände aus den Beiträgen #45 bis #51 haben wir lange diskutiert, sind aber letztlich bei unserem Entwurf geblieben und leben jetzt mit einem recht großen Abstand zwischen den Hochschränken und der Halbinsel (ca. 1,80 m). Unser Esszimmer ist mit 5,20 m recht tief, so dass für den Tisch und die Stühle dennoch großzügig Platz ist.

Die Küche ist eine Kombination aus
  • Ballerina mit Walnuss-Furnier grifflos mit Tip-on (Hochschränke und Hängeschrank) sowie
  • Häcker Systemat 84,5 cm grifflos mit Tip-on ohne Griffmulden mit Schieferfurnier-Front AV7030.
  • APL 4 cm (2+2cm) "Nero Assoluto" aus Indien.
Was noch?
  • 84,5 cm Korpus, Gesamthöhe 95 cm, Sockel 6,5 cm
  • APL 70 cm tief
  • Oberschränke teilweise mit Schwarzglas und Beleuchtung
  • 2 x übertiefe Unterschränke in der Insel und unter dem Kochfeld als Sonderkonstruktion
  • Tiefe der Halbinsel 140 cm mit 35 cm Überstand zum Sitzen Richtung Esszimmer
  • MUPL 45 cm.
  • Hochgebauter GS
  • Kombi-Dampfgarer
  • Backofen mit Mikrowelle und Pyrolyse
  • Spüle von Systemceram (Keramik)
  • Siemens Induktionsfeld 90 cm
  • Lüfterbaustein im Oberschrank
Hier mal ein paar Ansichten und der Grundriss. Wir warten jetzt auf die Fertigstellung des Rohbaus und das Aufmaß-Nehmen. Einzug voraussichtlich im August, sofern es nicht noch schlimme Lieferengpässe geben sollte.

Einen großen Dank noch mal an alle, die sich hier mit Ihrer Zeit, ihren kreativen Ideen und auch Bedenken und Kritik beteiligt haben! So hatte ich mir das anfangs erhofft.

Und beim nächsten Haus komme ich gleich hier bei Euch vorbei, noch bevor wir uns auf unseren Grundriss fixiert haben, dann wird es nächstes Mal vielleicht ein Zweizeiler mit Flugzeugträger . ;-)

PS. Wir haben zwar jetzt einen Vertrag, aber bis zum Aufmaß sind Eure Kritik und Eure Ideen natürlich weiterhin willkommen.
 

Anhänge

  • Küche Vertrag Zeile.jpg
    Küche Vertrag Zeile.jpg
    74,4 KB · Aufrufe: 154
  • Küche Vertrag Rückwand.jpg
    Küche Vertrag Rückwand.jpg
    67 KB · Aufrufe: 158
  • Küche Vertrag Ansicht 03.jpg
    Küche Vertrag Ansicht 03.jpg
    85,9 KB · Aufrufe: 170
  • Küche Vertrag Ansicht 02.jpg
    Küche Vertrag Ansicht 02.jpg
    79,9 KB · Aufrufe: 165
  • L-Kuecke_mit_Halbinsel.jpg
    L-Kuecke_mit_Halbinsel.jpg
    59,1 KB · Aufrufe: 168
Zuletzt bearbeitet:

Ähnliche Beiträge

Neff Hausgeräte Ballerina Küchen Blum Bewegungstechnologie Weibel - Intelligente Küchenlüftung

Neff Spezial

Blum Zonenplaner

Weibel Abluft-Tuning

Weibel Abluft-Tuning
Zurück
Oben