Altes Haus (1928) sucht neue Küche

Murmel

Mitglied
Beiträge
13
Liebe Forenmitglieder,

zuerst einmal: DANKE. Danke für eure vielen vielen Beiträge, die mich schon seit einiger Zeit Tag&Nacht mit unzähligen (hilfreichen!) Infos versorgen. Ich fühle mich in meinem Küchenplanungschaos schon allein dadurch nicht mehr ganz so verloren. Bisher habe ich nur in Mietwohnungen gewohnt, in denen die Küche bereits vorhanden war.
Ich bin also etwas überfordert :rolleyes:

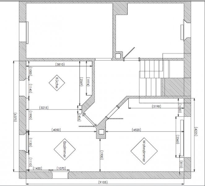
Zusatzinfo Fenster: Die Fenster sind aus dem Jahr 1993 und werden innerhalb der nächsten 10 Jahre sowieso ausgewechselt, deshalb die Überlegung, im Rahmen des Küchenkaufs zumindest das Küchenfenster zu erneuern und eines mit festgestelltem Unterlicht zu nehmen, was für meine Vorstellung „Spüle unterm Fenster“ hilfreich wäre.

Erklärung zu meinem Alno -Entwurf:
1. Ich bin absoluter Beginner, verzeiht mir bitte das “Zusammengestöpsel“
2. Deshalb bekomme ich die Spüle auch irgendwie nicht in den passenden Unterschrank hinein (zudem muss ich erst noch lernen, mich im generierten Raum zu bewegen…sehr verwirrend..)
3. Auch die schräge Wand rechts mit angrenzender Tür kann ich leider nicht im Planer umsetzen, ich hoffe die reale Anordnung ist aus dem Wohnungsgrundriss trotzdem ersichtlich

Aktuelle Gedanken:
- Spülmaschine statt Backofen erhöhen, da ich diese täglich ein- und ausräume, den Backofen jedoch nicht.
- Arbeitsplattentiefe von 70cm? (nur die Arbeitsplatte richtung Esszimmer wird 1m breit)
- Abluft oder Umluft?!
- Oberschränke ja oder nein? (Der Stauraum würde mir auch ohne genügen)


Wir haben in den nächsten Wochen Küchenberatungstermine, ich halte euch auf dem Laufenden!

Vielen Dank für eure Anregungen/Kritik/Meinungen.



Checkliste zur Küchenplanung von Murmel

Anzahl Personen im Haushalt : 2
Davon Kinder? : (noch) keine
Körpergrössen aller Hauptbenutzer (wegen Arbeitshöhe ) in cm : 170 183
Art des Gebäudes? : Neu-/Umbau, Planänderungen möglich
Brüstungshöhe des Fensters (in cm) : 94
Fensterhöhe (in cm) : 140
Raumhöhe in cm: : 260
Heizung : Keine Heizung
Sanitäranschlüsse : vollkommen variabel
Ausführung Kühlgerät? : Integriert im Hochschrank (60cm)
Kühlgerät Größe : noch unbekannt
Ausführung Tiefkühl (TK)-Gerät : Eigenständiges Gerät bis 72 cm Höhe
Dunstabzugshaube? : Abluft
Backofen etc. hochgebaut? : Wenn möglich
Hochgebauter Geschirrspüler ? : wenn möglich
Kochfeldart? : Induktion
Kochfeldbreite ca. (in cm)? : 80
Spülenform: : 1,5 Becken mit Abtropffläche
Weitere geplante Heißgeräte : Standmikrowelle, Backofen , Dampfgarer
Küchenstil? : modern
Sitzmöglichkeit in der Küche / im Küchenbereich als : ja: als Küchenarbeitsplatz
Sitzmöglichkeit: Für wieviel Personen? : 1
Sitzmöglichkeit: Tisch - wenn gesonderter Tisch oder offene Küche : -
Gewünschte o. vorhandene Tischgröße : im EZ vorhanden 140x100cm
Wofür soll der Sitzplatz in der Küche genutzt werden? Wie häufig? : Kleiner Arbeitssitzplatz in Küche, sondern im angrenzenden EZ
Welche Arbeitshöhe ist angedacht (in cm)? : ca 94
Was steht auf der Arbeitsplatte oder soll dort stehen? : Kaffeemaschine, Wasserkocher, Küchenmaschine, Brotbehälter, Obstschale
Welche weiteren Küchenmaschinen müssen in der Küche untergebracht werden? : Toaster, Schneidemaschine (z. B. in Schublade), Handrührgerät, Pürierstab
Was soll in der Küche außer den Standards untergebracht werden? : ALLE Vorräte, Geschirr komplett (nichts in Ess-/Wohnzimmer)
Welchen Stauraum gibt es sonst noch? : Keller
Was/wie wird gekocht? (Alltagsküche, Menüs, Snacks usw) : Alltagsküche
Wie häufig wird gekocht? : täglich 1x warm
Wird alleine gekocht? Oder auch gemeinsam? Mit und für Gäste? : Gemeinsam
Was stört an der bisherigen Küche und was soll die neue Küche unbedingt können? Warum? : Ausreichend Stauraum und Arbeitsfläche sind am wichtigsten
Steht schon ein Küchenhersteller fest oder wird bevorzugt? : Häcker , Leicht, Nolte
Steht schon ein Gerätehersteller fest oder wird bevorzugt? : Siemens studioline
Preisvorstellung (Budget) : bis 15.000,-
 

Anhänge

  • Plan4 1.jpg
    Plan4 1.jpg
    43,3 KB · Aufrufe: 371
  • Plan4 3.jpg
    Plan4 3.jpg
    34,5 KB · Aufrufe: 342
  • Plan4 4.jpg
    Plan4 4.jpg
    31,4 KB · Aufrufe: 345
  • PLAN4.KPL
    3,9 KB · Aufrufe: 266
  • PLAN4.POS
    7,8 KB · Aufrufe: 257
  • grundriss EG.jpg
    grundriss EG.jpg
    67,5 KB · Aufrufe: 378
  • grundriss alno.jpg
    grundriss alno.jpg
    23 KB · Aufrufe: 325
Zuletzt bearbeitet:
AW: Altes Haus (1928) sucht neue Küche

Was hat sich der Architekt nur bei dieser unglaublich unpraktischen und platzraubenden Kamin-Türen-Konstruktion gedacht. :-X

Bitte häng noch einen Alno -Grundriss an, so kann man die Position der Möbel und die Abstände besser beurteilen. ;-)
 
AW: Altes Haus (1928) sucht neue Küche

Macaron, ich habe wirklich keine Ahnung was sich der Architekt gedacht hat. Vielleicht nicht viel in den Wirren des zweiten Weltkriegs.. jedenfalls beschäftigt uns diese Ecke sehr intensiv, der Erbauer gerät so immerhin nicht in Vergessenheit..

Grundriss aus dem Alno -Planer ist hinzugefügt, alles rot :-[
 
AW: Altes Haus (1928) sucht neue Küche

Wahrscheinlich waren das alles mal kleine Zimmer und so konnte der Kamin für 2 Zimmer genutzt werden...
 
AW: Altes Haus (1928) sucht neue Küche

Macaron, ich habe wirklich keine Ahnung was sich der Architekt gedacht hat. Vielleicht nicht viel in den Wirren des zweiten Weltkriegs..
...aehm... WW2 kam doch etwas später als 1928... das waren noch die roaring twenties, kurz bevor die Weltwirtschaftskrise 1929 alles änderte. Damals waren offene Grundrisse noch nicht en vogue, bzw. die Bedürfnisse waren einfach anders. Wenn ich mir anschaue, was der Architekt in meiner Wohnung Bj. 1990 alles verbrochen hat, obwohl zu dem Zeitpunkt sogar der kalte Krieg vorbei war...
 
AW: Altes Haus (1928) sucht neue Küche

Conny, richtig!! Mensch, sowas bescheuertes, ich hab die Wände ja selbst (nicht alleine, aber ich war ordentlich dabei!) rausgestemmt....
Logische Erklärung, die mir jetzt gar nicht eingefallen wäre.

Anbei nun die erste Planung aus unserem ersten Beratungsgespräch
(Sorry wegen der Fehler, ich bekomme es nicht besser hin.
Die Tür und die korrekte Neigung der "komischen Mauer" links ist mir abhanden gekommen. An die Wandblende links sind im Plan eigentlich noch zwei Regalböden. Und die darunter zusammengestöpselte Ecke ist die halbtote Ecke (halb genutzt durch 60 tiefen Schrank von vorne), die ich jetzt nicht anders abbilden konnte.)

Ich habe das ganze (ohne Seitenschrankhöhe) mit Kartons und Umzugsvlies nachgebaut (siehe Bild) und muss sagen, dass mir 1,90m innerhalb der U-Form zu weitläufig sind und mir das ganze auch zu sehr ins Esszimmer reicht.
 

Anhänge

  • Grundriss entwurf  S1.jpg
    Grundriss entwurf S1.jpg
    21,9 KB · Aufrufe: 293
  • IMG_3383.jpg
    IMG_3383.jpg
    69,9 KB · Aufrufe: 314
  • Plan S1 1.jpg
    Plan S1 1.jpg
    43,9 KB · Aufrufe: 295
  • Plan S1 2.jpg
    Plan S1 2.jpg
    46,1 KB · Aufrufe: 305
AW: Altes Haus (1928) sucht neue Küche

Isabella, du hast natürlich Recht!! Ich verbinde das Haus nur so sehr damit, weil der Bau 1928 begonnen und während des Krieges dann je nachdem was gerade verfügbar war weitergebaut wurde. Wir haben hier ein kleines Abenteuerhaus, das viele Überraschungen birgt (gestern haben wir beim Abtragen des Wohnzimmer-Mauerwerks ein von beiden Seiten zugemauertes Fenster gefunden....)
 
AW: Altes Haus (1928) sucht neue Küche

Ich hab mal ein bisschen umgeplant... Hab die Insel frei in den Raum gestellt, leider passt nur eine 75cm tiefe Insel in den Raum, aber als reine Arbeitsinsel sollte das passen.
Die beiden übertiefen Inselschränke sind wahre Stauraumwunder, Hier mal ein Beispiel aus meiner Küche...


- -

Müll unter der APL (MUPL ) darf natürlich auch nicht fehlen und den erhöten GSP habe ich auch untergebracht.
 

Anhänge

  • murmel-conny.KPL
    3,9 KB · Aufrufe: 265
  • murmel-conny.POS
    10,4 KB · Aufrufe: 282
  • murmel.jpg
    murmel.jpg
    36,6 KB · Aufrufe: 289
  • murmel1.jpg
    murmel1.jpg
    40,4 KB · Aufrufe: 284
  • murmel2.jpg
    murmel2.jpg
    39 KB · Aufrufe: 276
  • murmel grundriss.JPG
    murmel grundriss.JPG
    24 KB · Aufrufe: 461
AW: Altes Haus (1928) sucht neue Küche

Hi Conny,

danke für deinen kreativen Vorschlag! Da hab ich gedacht, ich hätte gedanklich schon alle möglichen Varianten durch.... wirklich schön!
Die Ecklösung mit dem Rolloschrank finde ich sehr ansprechend und vor allem die erhöhte Spülmaschine gefällt mir.

Ich habs dann auch gleich mal mit Kartons nachgebaut :-)
Leider fällt dann eine optische Abtrennung zum Esszimmer weg, was für mich ein wichtiger Aspekt ist.

Aktuell sieht es wohl so aus, dass entweder das Kochfeld Richtung Esszimmer platziert werden muss (wollte ich gerne vermeiden) oder es eben keine erhöhte Spülmaschine gibt.
 
AW: Altes Haus (1928) sucht neue Küche

Hallo Murmel,

ich würde ausgehend von deinem Plan #6, planoben 3 Hochschränke platzieren (Kühli, BO, GSP) und links davon das Kochfeld mittig oder relativ mittig auf den verbleibenden ca. 1,90 cm

auf den planlinken Schenkel des U verzichten und

planunten eine großzügige Halbinsel mit Spüle vorsehen (ca. 2,20 breit und etwa 1,10 tief) und eine Spüle ohne Abtropfe nehmen.
 
Zuletzt bearbeitet:
AW: Altes Haus (1928) sucht neue Küche

Warum ist die optische Abtrennung durch eine feste Halbinsel für dich wichtig? Connys Inselvariante läßt dem Esstisch Luft. Man hat 2 Bahnen um in den Küchenbereich vorzustoßen. Was also ist der individuelle Vorteil einer Halbinsel?
 
AW: Altes Haus (1928) sucht neue Küche

Hallo Kerstin,

die Halbinsel ist für mich wie gesagt eine schöne Trennung zum EZ hin, die Insel in Connys Vorschlag ist zwar ein schöner Ansatz, wirkt für mich jedoch leider mit 75cm etwas "mickrig" und passt deshalb vom Gefühl her nicht.

Seit gestern ist jetzt noch die Idee einer durch Trockenbau erstellen Vorratskammer aufgekommen (mein Mann möchte "etwas besonderes, das nicht jeder hat").... es wird nicht einfacher. (Aktuell brauchen wir etwas Pause, hatten jetzt zwei weitere erste Beratungstermine bei verschiedenen Studios und beide waren unglaublich ernüchternd. Bei einem keinerlei Beratung sondern nur Verkauf mit kaum Auskunft, bei dem anderen kein Interesse an unseren Ideen, dafür umso mehr Luxus-Geräte mit astronomischen Preisen....ich glaube, wir müssen noch ein wenig nach einem für uns passenden :kfb: suchen)
 
Zuletzt bearbeitet:
Aktualisierung Ideen

Soooo, wir sind inzwischen etwas weiter gekommen..
Ich habe versucht, es im Alnoplaner abzubilden, bitte verzeiht mir die ein oder andere "Stückelei":rolleyes:

Ergänzungen:
- die detaillierte Aufteilung der Schränke steht noch aus
- der Hochschrank ganz rechts soll ein Besenschrank werden, da er durch die schräge Mauer sowieso nur teilweise nutzbar ist
- statt eines Aufsatzrolloschranks habe ich jetzt einen normalen Hängeschrank neben Backofen und Dampfgarer platziert, mal schauen was das preislich ausmacht


Kritik erwünscht :danke:


LieGrü
 

Anhänge

  • 3.jpg
    3.jpg
    58,9 KB · Aufrufe: 318
  • 2.jpg
    2.jpg
    47,5 KB · Aufrufe: 303
  • 1.jpg
    1.jpg
    46,6 KB · Aufrufe: 312
  • Maiplanung aktuell.POS
    11,3 KB · Aufrufe: 297
  • Maiplanung aktuell.KPL
    3,9 KB · Aufrufe: 250
  • Grundriss Mai.jpg
    Grundriss Mai.jpg
    29,5 KB · Aufrufe: 272
Zuletzt bearbeitet:
AW: Altes Haus (1928) sucht neue Küche

Lädst du zu deiner Planung bitte noch den Alnogrundriss mit hoch... :rose:

Mit der Hochschrankwand Plan rechts, sieht das U schon viel harmonischer aus, als in der Eingangsplanung. Den Hängeschrank würde ich weglassen und die U-Schränke im Raster 3-3 würde ich mindestens im Raster 1-2-3 planen, besser aber noch im Raster 1-1-2-2.
 
AW: Altes Haus (1928) sucht neue Küche

Grundriss hab ich gerade hinzugefügt :-)
Mitte nächsten Monats wollen wir uns auf einen Hersteller (und damit auch auf ein Raster) festlegen.
Zur Auswahl stehen bisher Leicht und Nolte (heute hat uns unser :kfb: angerufen und noch einen weiteren 6rasterigen Hersteller vorgeschlagen, der vom Budget her auch passen könnte. Aber ich hab den Namen leider schon wieder vergessen :stocksauer:).
Bei Nolte gefallen mir die Oberflächen sehr gut. Bei Leicht bewegen wir uns aktuell in der Linie "Kanto", da gibt es leider nicht so viel Auswahl, jedoch 6 Raster.
Der :kfb: hat uns gesagt, dass wir in dieser Planung allein durch die Anzahl der Schränke einen hohen Möbelwert haben und wir deshalb schauen müssen, wie wir finanziell hinkommen, selbst wenn wir "nur" Mittelklassegeräte nehmen. An unserem Budget von 15.000 ist nichts mehr zu rütteln, da wir noch ein ganzes Haus haben, das fertig saniert werden will.
(In das Küchenstudio , das uns ein erstes Angebot über 22.000 gemacht hat (obwohl ich unser Maximalbudget genannt hatte), gehe ich nicht mehr. Als ich die E-Geräte über 10.000€ aufgelistet gesehen hatte, hab ich ihn gefragt, ob er mir überhaupt zugehört hat. Die Antwort war ein Lächeln.. Danke, aber nein Danke..)
 
AW: Altes Haus (1928) sucht neue Küche

Ich habe versucht, die Anzahl deiner US zu reduzieren und habe an der HS nichts geändert.

Planoben rechts beginnend
80er US 1-1-2-2
90er US 2-2-2 für Kochfeld
80er US 1-1-2-2
tote Ecke
GSP
60er US für Spüle
tote Ecke
50er US 3-3 für MUPL und Flaschen
100er US 1-1-2-2
Blende

Auf der Halbinselrückseite mindertiefe US
Blende
2 x 80er mit Türen
verlängerte AP als Sitzplatz.

Den Abstand zwischen Halbinsel und Kochfeldseite habe ich etwas verringert. Jetzt ist er 130 cm, dass ist etwas besser. Ich habe 135cm habe das Kochfeld auch an der Wand und arbeite meist gegenüber.

Zwischen Insel und HS Seite ist dann etwas mehr Platz. Einen Oberschrank würde ich nur rechts vom Fenster mit Lifttür vorsehen, auch nicht besonders hoch, vielleicht 65 cm.

Den Sitzplatz habe ich auf die andere Seite, um auf der Küchenseite grössere US zu setzen. Ich wüsste sonst nicht, wo einen MUPL sinnvoll zu platzieren. Ausserdem könnte der eine Inselplatz so auch als "Guckerplatz" fungieren.

Ich bin mit nicht sicher, ob die Spüle wegen dem Fenster so plaziert werden kann.

LG
Evelin
 

Anhänge

  • Murmel1.JPG
    Murmel1.JPG
    36,9 KB · Aufrufe: 268
  • Murmel2.jpg
    Murmel2.jpg
    46,9 KB · Aufrufe: 265
  • Murmel3.jpg
    Murmel3.jpg
    44,5 KB · Aufrufe: 276
  • Murmel_Evelin_PLAN1.kpl
    3,9 KB · Aufrufe: 255
  • Murmel_Evelin_PLAN1.POS
    10,6 KB · Aufrufe: 259
AW: Altes Haus (1928) sucht neue Küche

Hallo Evelin,

vielen Dank für deinen Entwurf!

Es wäre super, wenn du (;-)oder wer sich auch sonst dazu berufen fühlt gerne) mir Antworte auf ein paar Fragen dazu geben könntest, die sich mir als Küchenneuling so stellen:
- ist die große Anzahl an 1er Schubladen sinnvoll? (Für was werden die genutzt? Aktuell habe ich in meiner "Übergangsküche" nur zwei solche Auszüge)
- welchen Vorteil hat es, den Hängeschrank an der Fensterseite zu platzieren? (allein vom Optischen her gefällt er mir nämlich links des DAH besser)
- das Alltagsgeschirr soll Platz in den Schränken Richtung EZ finden, ist der Weg in der aktuellen Planung vom GS zu diesen Schränken evtl. zu weit?

Dankeschön!
LieGrü
 
AW: Altes Haus (1928) sucht neue Küche

Zum Angucken, wie Stauraum genutzt werden kann:
Gerbera mit ganz vielen übertiefen Auszügen
Stauraumnutzung von doppelkeks und die Küche dazu
Küche von Moiree
Küche von KerstinB und nach dem Umzug (hier kann man gut sehen, was man alles alleine in Schubladen unterbringen kann)
Küche von Jelena
Küche von Ulla
Nekos Küche
Darlas Küche
Magnolias Küche
Vanessas Küche
Hemerocallis Küche
Littlequeenies Küche
Angelikas Küche
Küche von atmos
Küche von biggimaus
Küche von Bodybiene
Küche von Missjenny
Küche von Conny (auch übertiefe Auszüge)
Küche von träumerle
Muckelinas Küche (interessante Variante mit aufgesetzten Griffen)
Mr. Woms (Esthers) ;-) Schreinerküche
Küche von Ullmann


In Schubladen kann man nicht nur Besteck unterbringen ... wenn du oben die Stauraum-Bilder meiner Küche anklickerst, siehst du, was alles möglich ist.

Der Hänger an der Position, wo Evelin ihn gesetzt hat, ist wesentlich besser zugänglich, weil z. T. noch über der normalen APL.

Wg. GSP-Position, du stehst vor der Spüle und entleerst, kannst auf der Halbinsel zwischenlagern und das Geschirr auf die Inselrückseite einstellen. Wobei du auch nochmal genau prüfen solltest, gerade Teller etc. auch in Auszügen unterzubringen (siehe Fotos oben). Dazu entweder von Inselrückseite auch Auszugsunterschränke oder wenigstens die normalen Teller etc. auf Küchenseite unterbringen und die tiefenreduzierten Drehtürschränke insbesonder für Serviergeschirr, Tischdeko, Kerzen, Vasen etc. vorhalten.
 
AW: Altes Haus (1928) sucht neue Küche

Ich habe 4.40 m Schubladen. In 2 x 1m Schubladen befinden sich Besteck, Kochutensilien und in der oberen Schublade, neben dem Besteck Salz, Pfeffer, Paprika, Kümmel, Chillipulver. Die brauche ich ständig.

In den anderen 2 x 1 m sind Alufolie, Backpapierrolle, Frischhaltefolie, Sandwichbeutel, Waage, Taschenlampe, Schreibkram, Meterband, Brettchen, Geschirrhandtücher, Servietten, Pillen (wir sind neu und grau :'(), Mixstab oder wie das heisst, also alles was flach ist.

In der 40er Innenschublade habe ich Tee, Cacao, Kaffeebohnen.

Und dann habe ich noch eine 1.5 cm Schublade, wo Süsskram drin ist. Das würde auch in eine Schublade passen.

In meiner Küche sind all die Dinge, die ich täglich benutze, in unmittelbarer Nähe des Geschirrspülers. Dh, kein Geschirr auf der Inselrückseite, das wäre mir zuviel Gelaufe. Wenn ich meinen GSP entleere, stehe ich fast die ganze Zeit auf ein und derselben Stelle und drehe mich nur zum Einräumen.

Auf der Rückseite meiner Insel habe ich einem 85 cm breiten, 2er Auszug für Vorräte wie zB Dosen, Nudeln. Das ist im 1. Auszug. Darunter Backutensilien, Schüsseln, Ausstechkram, elekr Gewürzmühle, Nudelholz, Messbecher, usw. Im unteren Auszug Dinge, die ich eigentlich entsorgen könnte :-\. Mehl, Zucker, Nüsse und sonstige Backwaren habe ich in einem Auszug in einem HS in der Küche, weil ich das ständig brauche.

Der andere 85er US auf der Rückseite hat einige sehr grosse Plastikteile, zB zum Kuchentransportieren, anderer Plastikkram. Geschirr als solches ist bei mir komplett innerhalb der Küche.

Ob der OS jetzt neben dem Fenster oder neben der DAH hängt, musst du selbst entscheiden. Ich wollte den OS nicht neben der DAH.

LG
Evelin
 
AW: Altes Haus (1928) sucht neue Küche

Ich würde den Hängeschrank ja ganz weg lassen.

LG
Sabine
 

Ähnliche Beiträge

Neff Hausgeräte Ballerina Küchen Blum Bewegungstechnologie Weibel - Intelligente Küchenlüftung

Neff Spezial

Blum Zonenplaner

Weibel Abluft-Tuning

Weibel Abluft-Tuning
Zurück
Oben