Elenaeh
Mitglied
- Beiträge
- 3
Titel des Themas: Tipps zu offener Wohnküche
Liebes Forum,
wir haben eine Doppelhaushälfte gekauft und brauchen Unterstützung bei der Küchenplanung
Wir kochen gerne und daher ist uns eine praktische Küche sehr wichtig. Da es sich um eine Wohnküche handelt, wollen wir, dass sie sich aber auch gut in den Raum integriert. Wir mögen Natürlichkeit, Gemütlichkeit, aber auch Elemente moderner Einrichtungen.
Kurz zum Raum: es ist eine offene Wohnküche. Die Wohnküche hat insgesamt nur eine Tür: um in das Wohnzimmer zu gelangen, muss man durch die Küche gehen. Als Tür zur Wohnküche planen wir aktuell eine Schiebetür (in den Entwürfen als Rundbogen eingezeichnet, ging schneller als eine Schiebetür hineinzunehmen.) Küchenmaschinen haben wir folgende: Getreidemühle aus Holz, Brotbackautomat in schwarz, Mixer schwarz, Messerblock aus Holz, Brotbox aus weißer Keramik, Holzbrett zum Schneiden des Brotes.
Die hochgebaute Spülmaschine stellt uns vor die Frage, ob wir die Spüle direkt links neben den Hochschrank platzieren oder eine Eckspüle nehmen. Hat mit den Varianten jemand Erfahrung?
Große Fragen kommen beim Bodenbelag und den Fronten sowie Arbeitsplatten auf. Wir haben Holzfenster (Lärche) und würden dies gern in der Küche wieder aufgreifen. Im Wohn- und Essbereich werden Parkettdielen in Eiche gelegt. Zum einen sind wir unschlüssig, ob wir diese auch in der Küche verlegen (Feuchtigkeit, Wasserflecken?) oder doch Fliesen (wahrscheinlich in grau nehmen sollten, dann hätten wir aber einen Bodenwechsel). Was denkt ihr? Welche Erfahrungen habt ihr mit Parkettdielen in der Küche gemacht?
Das Holzfenster kann natürlich auch über die Elemente in der Küche wieder aufgegriffen werden. Als Arbeitsplatten würden wir sehr ungern MDF-Arbeitsplatten nehmen. In unserer jetztigen Auswahl stehen Massivholz und Keramik (anthrazit mit Struktur). Aktuell haben wir uns für Keramik entschieden, weil es viel pflegeleichter ist (heiße Töpfe, kein Problem mit Wasser, Säuren etc.).
Womit wir zu den Fronten kommen. Da haben wir zwei Entwürfe: Entweder: weiß lackierte Holzfronten (teilweise mit Massivholz, die Maserung ist ganz leicht zu erkennen, keine Astlöcher) von Nobilia und Keramikarbeitsplatte. Das Lärchenfenster könnte in holzfarbenen Accessoires (Getreidemühle, Pfefferstreuer, Spülmittelflasche) wieder aufgegriffen werden. Hier fragen wir uns, ob wir mit dieser Variante auf jeden Fall Parkett nehmen sollten um genug warme Holzfarben in der Küche zu haben. Oder ob nicht doch Fliesen gehen? Oder Alternativ keine Keramikplatte, sondern eine Massivholzplatte.
Die zweite Idee für die Fronten ist MDF, matt in hellgrau lackiert und wieder mit der Keramikarbeitsplatte kombinieren. Holzakkzente sollen über holzfarbene (vielleicht Funierholzfronten von Nolte , weil uns folierte nicht so gefallen und wir Angst haben, dass diese schneller kaputt gehen). Diese sollen für die Oberschränke und den mittleren Schrank in der Insel verwendet werden. Als Bodenbelg würden wir hier graue Fliesen verwenden.
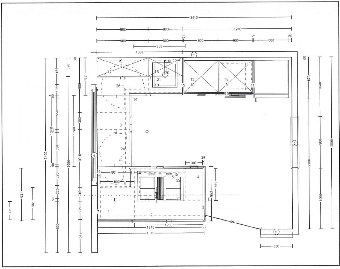
Die ungefähre Positionierung der Schränke mussten wir leider schon festlegen, da wir die Einbaustrahler schon setzen mussten (Position in dem Bild Grundiss EG Licht eingezeichnet).
Wir denken aber noch an folgende Anpassungen:
- Anordnung der Hochschränke ändern (Kühlschrank nach ganz rechts usw.)
- Der Hochschrank neben der Arbeitsplatte (mit der Spülmaschine) könnte auch nur ca. 160 hoch werden und mit einer Arbeitsplatte versehen werden um dort einen Lautsprecher oder Küchengeräte hinzustellen.
- Der niedrigere Hochschrank in Kombination mit weniger hohen Hängeschränken könnte den Übergang zwischen Arbeitsplatte und Hochschränken ein wenig harmonischer? gestalten.
- Die Breite Insel könnte von 1870 auf 2000 mm anwachsen, die Tiefe von 953 auf rund 1050 mm um mehr Arbeitsfläche zu haben und den letzten Spot (leider schon gesetzt) noch über die Arbeitsfläche zu bringen.
Was wir also suchen
- Erfahrung mit Bodenbelägen in der Küche und Kindern
- Erfahrung mit Anordnung der Geräte und Schränke
- Designvorschläge für die Küche
Danke für eure Ideen, Erfahrungen und Tipps!
Liebe Grüße
Elena und Moritz
Checkliste zur Küchenplanung
Personenkriterien und Ergonomie
Anzahl Personen im Haushalt: 4
Davon Kinder: 2
Körpergrößen aller Hauptbenutzer in cm (wegen Arbeitshöhe ): 1,62; 1,82
Welche Arbeitshöhe ist angedacht (in cm)?: 91
Gebäudekriterien
Art des Gebäudes: Neu-/Umbau > Planänderungen nicht möglich
Brüstungshöhe des Fensters (in cm): 147
Fensterhöhe (in cm): 68
Raumhöhe in cm: 245
Heizung: Fußbodenheizung
Sanitäranschlüsse: vollkommen variabel
Einbaugerätekriterien
Ausführung Kühlgerät: Stand-Alone bis 60cm Breite
Einbaukühlgerät Größe: N. a.
Ausführung Tiefkühl (TK)-Gerät: Nicht erforderlich bzw. steht woanders
Dunstabzugshaube: Abluft
Hochgebauter Backofen : ja
Geplante Heißgeräte: Dampfgarer ohne Wasseranschluß, Backofen
Hochgebauter Geschirrspüler : ja
Art des Kochfeldes: Induktion
Kochfeldbreite (ca. in cm): 80
Sitzmöglichkeiten
Sitzmöglichkeit in der Küche / im Küchenbereich: Keine
Sitzmöglichkeit: Für wieviel Personen?: N. a.
Sitzmöglichkeit: Tisch - wenn gesonderter Tisch oder offene Küche: N. a.
Gewünschte oder vorhandene Tischgröße:
Wofür soll der Sitzplatz in der Küche genutzt werden und wie häufig:
Stauraumplanung
Was steht auf der Arbeitsplatte oder soll dort stehen?: Messerblock, Küchenmaschine, Brotbehälter, Sonstiges (evtl. im Beitragstext benennen)
Welche weiteren Küchenmaschinen müssen in der Küche untergebracht werden: Pürierstab
Was soll in der Küche außer den Standards untergebracht werden: Geschirr komplett (nichts in Ess-/Wohnzimmer)
Welchen Stauraum gibt es sonst noch: Speisekammer, Keller
Kochgewohnheiten
Was/wie wird gekocht? (Alltagsküche, Menüs, Snacks usw): Mittagessen, Alltagsküche
Wie häufig wird gekocht: (fast) täglich 1x warm
Wird alleine gekocht? Oder auch gemeinsam? Mit und für Gäste?: Für Familie, gerne auch, wenn Freunde und Gäste da sind
Spülen und Müll
Spülenform: Noch nicht festgelegt
Welche Mülltrennung soll in der Küche vorgehalten werden: Altpapier, Biomüll, Gelber Sack Müll, Restmüll
Sonstiges
Steht schon ein Küchenhersteller fest oder wird bevorzugt: Nobilia, Nolte
Steht schon ein Gerätehersteller fest oder wird bevorzugt: Miele , AEG
Küchenstil: Klassisch
Was stört an der bisherigen Küche und was soll die neue Küche unbedingt können? Warum?: viel Arbeitsfläche (am Stück), gute Arbeitswege. Hochgebaute Spülmaschine. Mehrere gleichzeitig in der Küche arbeiten können. Die Küche sollte Natürlichkeit, Gemütlichkeit, Leichtigkeit, Wärme ausstrahlen, die sich in den Raum integriert. Zwischen Klassisch und Landhaus
Preisvorstellung (Budget): 15.000-20.000
Angehängte Dateien
Liebes Forum,
wir haben eine Doppelhaushälfte gekauft und brauchen Unterstützung bei der Küchenplanung
Kurz zum Raum: es ist eine offene Wohnküche. Die Wohnküche hat insgesamt nur eine Tür: um in das Wohnzimmer zu gelangen, muss man durch die Küche gehen. Als Tür zur Wohnküche planen wir aktuell eine Schiebetür (in den Entwürfen als Rundbogen eingezeichnet, ging schneller als eine Schiebetür hineinzunehmen.) Küchenmaschinen haben wir folgende: Getreidemühle aus Holz, Brotbackautomat in schwarz, Mixer schwarz, Messerblock aus Holz, Brotbox aus weißer Keramik, Holzbrett zum Schneiden des Brotes.
Die hochgebaute Spülmaschine stellt uns vor die Frage, ob wir die Spüle direkt links neben den Hochschrank platzieren oder eine Eckspüle nehmen. Hat mit den Varianten jemand Erfahrung?
Große Fragen kommen beim Bodenbelag und den Fronten sowie Arbeitsplatten auf. Wir haben Holzfenster (Lärche) und würden dies gern in der Küche wieder aufgreifen. Im Wohn- und Essbereich werden Parkettdielen in Eiche gelegt. Zum einen sind wir unschlüssig, ob wir diese auch in der Küche verlegen (Feuchtigkeit, Wasserflecken?) oder doch Fliesen (wahrscheinlich in grau nehmen sollten, dann hätten wir aber einen Bodenwechsel). Was denkt ihr? Welche Erfahrungen habt ihr mit Parkettdielen in der Küche gemacht?
Das Holzfenster kann natürlich auch über die Elemente in der Küche wieder aufgegriffen werden. Als Arbeitsplatten würden wir sehr ungern MDF-Arbeitsplatten nehmen. In unserer jetztigen Auswahl stehen Massivholz und Keramik (anthrazit mit Struktur). Aktuell haben wir uns für Keramik entschieden, weil es viel pflegeleichter ist (heiße Töpfe, kein Problem mit Wasser, Säuren etc.).
Womit wir zu den Fronten kommen. Da haben wir zwei Entwürfe: Entweder: weiß lackierte Holzfronten (teilweise mit Massivholz, die Maserung ist ganz leicht zu erkennen, keine Astlöcher) von Nobilia und Keramikarbeitsplatte. Das Lärchenfenster könnte in holzfarbenen Accessoires (Getreidemühle, Pfefferstreuer, Spülmittelflasche) wieder aufgegriffen werden. Hier fragen wir uns, ob wir mit dieser Variante auf jeden Fall Parkett nehmen sollten um genug warme Holzfarben in der Küche zu haben. Oder ob nicht doch Fliesen gehen? Oder Alternativ keine Keramikplatte, sondern eine Massivholzplatte.
Die zweite Idee für die Fronten ist MDF, matt in hellgrau lackiert und wieder mit der Keramikarbeitsplatte kombinieren. Holzakkzente sollen über holzfarbene (vielleicht Funierholzfronten von Nolte , weil uns folierte nicht so gefallen und wir Angst haben, dass diese schneller kaputt gehen). Diese sollen für die Oberschränke und den mittleren Schrank in der Insel verwendet werden. Als Bodenbelg würden wir hier graue Fliesen verwenden.
Die ungefähre Positionierung der Schränke mussten wir leider schon festlegen, da wir die Einbaustrahler schon setzen mussten (Position in dem Bild Grundiss EG Licht eingezeichnet).
Wir denken aber noch an folgende Anpassungen:
- Anordnung der Hochschränke ändern (Kühlschrank nach ganz rechts usw.)
- Der Hochschrank neben der Arbeitsplatte (mit der Spülmaschine) könnte auch nur ca. 160 hoch werden und mit einer Arbeitsplatte versehen werden um dort einen Lautsprecher oder Küchengeräte hinzustellen.
- Der niedrigere Hochschrank in Kombination mit weniger hohen Hängeschränken könnte den Übergang zwischen Arbeitsplatte und Hochschränken ein wenig harmonischer? gestalten.
- Die Breite Insel könnte von 1870 auf 2000 mm anwachsen, die Tiefe von 953 auf rund 1050 mm um mehr Arbeitsfläche zu haben und den letzten Spot (leider schon gesetzt) noch über die Arbeitsfläche zu bringen.
Was wir also suchen
- Erfahrung mit Bodenbelägen in der Küche und Kindern
- Erfahrung mit Anordnung der Geräte und Schränke
- Designvorschläge für die Küche
Danke für eure Ideen, Erfahrungen und Tipps!
Liebe Grüße
Elena und Moritz
Checkliste zur Küchenplanung
Personenkriterien und Ergonomie
Anzahl Personen im Haushalt: 4
Davon Kinder: 2
Körpergrößen aller Hauptbenutzer in cm (wegen Arbeitshöhe ): 1,62; 1,82
Welche Arbeitshöhe ist angedacht (in cm)?: 91
Gebäudekriterien
Art des Gebäudes: Neu-/Umbau > Planänderungen nicht möglich
Brüstungshöhe des Fensters (in cm): 147
Fensterhöhe (in cm): 68
Raumhöhe in cm: 245
Heizung: Fußbodenheizung
Sanitäranschlüsse: vollkommen variabel
Einbaugerätekriterien
Ausführung Kühlgerät: Stand-Alone bis 60cm Breite
Einbaukühlgerät Größe: N. a.
Ausführung Tiefkühl (TK)-Gerät: Nicht erforderlich bzw. steht woanders
Dunstabzugshaube: Abluft
Hochgebauter Backofen : ja
Geplante Heißgeräte: Dampfgarer ohne Wasseranschluß, Backofen
Hochgebauter Geschirrspüler : ja
Art des Kochfeldes: Induktion
Kochfeldbreite (ca. in cm): 80
Sitzmöglichkeiten
Sitzmöglichkeit in der Küche / im Küchenbereich: Keine
Sitzmöglichkeit: Für wieviel Personen?: N. a.
Sitzmöglichkeit: Tisch - wenn gesonderter Tisch oder offene Küche: N. a.
Gewünschte oder vorhandene Tischgröße:
Wofür soll der Sitzplatz in der Küche genutzt werden und wie häufig:
Stauraumplanung
Was steht auf der Arbeitsplatte oder soll dort stehen?: Messerblock, Küchenmaschine, Brotbehälter, Sonstiges (evtl. im Beitragstext benennen)
Welche weiteren Küchenmaschinen müssen in der Küche untergebracht werden: Pürierstab
Was soll in der Küche außer den Standards untergebracht werden: Geschirr komplett (nichts in Ess-/Wohnzimmer)
Welchen Stauraum gibt es sonst noch: Speisekammer, Keller
Kochgewohnheiten
Was/wie wird gekocht? (Alltagsküche, Menüs, Snacks usw): Mittagessen, Alltagsküche
Wie häufig wird gekocht: (fast) täglich 1x warm
Wird alleine gekocht? Oder auch gemeinsam? Mit und für Gäste?: Für Familie, gerne auch, wenn Freunde und Gäste da sind
Spülen und Müll
Spülenform: Noch nicht festgelegt
Welche Mülltrennung soll in der Küche vorgehalten werden: Altpapier, Biomüll, Gelber Sack Müll, Restmüll
Sonstiges
Steht schon ein Küchenhersteller fest oder wird bevorzugt: Nobilia, Nolte
Steht schon ein Gerätehersteller fest oder wird bevorzugt: Miele , AEG
Küchenstil: Klassisch
Was stört an der bisherigen Küche und was soll die neue Küche unbedingt können? Warum?: viel Arbeitsfläche (am Stück), gute Arbeitswege. Hochgebaute Spülmaschine. Mehrere gleichzeitig in der Küche arbeiten können. Die Küche sollte Natürlichkeit, Gemütlichkeit, Leichtigkeit, Wärme ausstrahlen, die sich in den Raum integriert. Zwischen Klassisch und Landhaus
Preisvorstellung (Budget): 15.000-20.000
Angehängte Dateien
Anhänge
-
Grundriss EG bemaßt.jpg75,9 KB · Aufrufe: 260 -
Grundriss EG Licht.PNG293,2 KB · Aufrufe: 276 -
Küche mit Maßen.PNG548,8 KB · Aufrufe: 259 -
1.PNG837,3 KB · Aufrufe: 264 -
2.PNG1,4 MB · Aufrufe: 275 -
3.PNG1,2 MB · Aufrufe: 274 -
4.PNG894,6 KB · Aufrufe: 248 -
1.PNG1,1 MB · Aufrufe: 243 -
2.PNG1,8 MB · Aufrufe: 255 -
3.PNG1,9 MB · Aufrufe: 240
