Planung einer offenen Küche 3,40x2,68x3,40

Sonne12

Mitglied
Beiträge
7
Liebes Forum,
wir sind gerade am Anfang unserer Planung einer offenen Küche und gerade etwas überfordert. Durch Zufall bin ich im Internet auf Eure Seite gestoßen und total begeistert
welche Tipps ihr habt.

Nun zu unserer Planung:
Zur Zeit ist es noch eine geschlossene Küche, d.h. man geht durch den Flur links in die
Küche und gerade aus in das Esszimmer. Von der Küche selbst geht auch noch eine Fneutür
in das Esszimmer. Unsere neue Küche ist 23 Jahre alt und es wird Zeit für eine Veränderung.
Wir werden die Wand zum Esszimmer wegmachen (ist nur eine dünne eingezogene Wand)
und die Tür zum Flur auch. Somit haben wir eine Fläche in U-Form. In dem Esszimmer
stehen außer der Tisch-Bank Kombination noch ein Sideboard mit Geschirr und ein neuer
Schrank mit Gläsern.

Bitte entschuldigt meinen "einfachen" Grundriss. Einen Plan/Grundriss habe ich nicht gefunden und hoffe das tut es auch. ;-)
Wir hatten diese Woche unseren ersten Termin im Küchenstudio . Dort wurde uns eine
Küche in U-Form geplant. Ich habe versucht diese im Küchenplaner in etwa nach zu planen.
Ich bin irgendwie noch nicht 100% von dieser Planung überzeugt und hoffe auf Vorschläge.
Der Wasser und Starkstromanschluß ist zur Zeit auf der rechten Seite. Kann aber auch nach
Bedarf geändert werden denke ich.

Unsere neue Küchen hätten wir gerne grifflos, in Hochglanz Magnolia, mit einer Arbeitsplatte
in anthrazit (siehe Planer). Den Kühlschrank Marke Bosch haben wir schon und hätten ihn gerne in die Küche integriert.

Meine Planung im Alno -Planer ist leider total unprofessionell. Tut mir leid, ich hoffe ich bekomme das auch noch besser hin.

Vielen Dank schon mal vorab für eure Hilfe und Unterstützung.:top:

Viele Grüße
Andrea


Checkliste zur Küchenplanung von Sonne12

Anzahl Personen im Haushalt : 4
Davon Kinder? : 2
Körpergrössen aller Hauptbenutzer (wegen Arbeitshöhe ) in cm : 185
Art des Gebäudes? : Bestandsbau, Umbauten ausgeschlossen
Brüstungshöhe des Fensters (in cm) : 99
Fensterhöhe (in cm) : 110
Raumhöhe in cm: : 255
Heizung : Fussbodenheizung
Sanitäranschlüsse : variabel an aktueller Wand
Ausführung Kühlgerät? : Stand-Alone bis 75 cm Breite Ergänzung aus dem threadverlauf: freistehende Kühl-Gefrierkombi in Edelstahl, h 185cm, t und b 60cm ist vorhanden
Kühlgerät Größe : bis 175 cm Höhe
Ausführung Tiefkühl (TK)-Gerät : Im Kühlschrank bis 2 Schubladen unten
Dunstabzugshaube? : Abluft
Hochgebauter Backofen ? : Ja
Hochgebauter Geschirrspüler ? : ja
Kochfeldart? : Induktion
Kochfeldbreite ca. (in cm)? : 90
Spülenform: : Noch nicht festgelegt
Weitere geplante Heißgeräte : Standmikrowelle
Küchenstil? : grifflos
Sitzmöglichkeit in der Küche / im Küchenbereich als : Keine
Sitzmöglichkeit: Für wieviel Personen? : nein
Sitzmöglichkeit: Tisch - wenn gesonderter Tisch oder offene Küche : Vorhandener Tisch
Gewünschte o. vorhandene Tischgröße : 1,80
Wofür soll der Sitzplatz in der Küche genutzt werden? Wie häufig? : Essen, Beisammensein
Welche Arbeitshöhe ist angedacht (in cm)? :
Was steht auf der Arbeitsplatte oder soll dort stehen? : Wasserkocher, Allesschneider, Toaster, Brotbehälter, Obstschale
Welche weiteren Küchenmaschinen müssen in der Küche untergebracht werden? : Handrührgerät, Pürierstab, Eierkocher
Was soll in der Küche außer den Standards untergebracht werden? : Getränkekisten, Geschirr komplett (nichts in Ess-/Wohnzimmer)
Welchen Stauraum gibt es sonst noch? : Geschirr/Gläserschrank im Wohn-/Esszimmer
Was/wie wird gekocht? (Alltagsküche, Menüs, Snacks usw) : Alltag, Snacks
Wie häufig wird gekocht? : (fast) täglich 1x warm
Wird alleine gekocht? Oder auch gemeinsam? Mit und für Gäste? : Alleine und für Gäste
Was stört an der bisherigen Küche und was soll die neue Küche unbedingt können? Warum? : Wird nach 23 Jahren Zeit für eine neue in offener Form.
Preisvorstellung (Budget) : bis 15.000,-
 
Zuletzt bearbeitet von einem Moderator:
AW: Planung einer offenen Küche 3,40x2,68x3,40

:welcome:

es ist leider nichts zu sehen von Alno oder vermasstem Küchengrundriss oder eine Geschossskizze;-)

Würdest Du das bitte noch vervollständigen?
 
AW: Planung einer offenen Küche 3,40x2,68x3,40

Hallo,

das fängt ja schon gut an. Schon das Datei anhängen hat nicht gleich geklappt.
Aber jetzt .... :cool:

Schöne Grüße
Andrea
 

Anhänge

  • PLAN2.POS
    5,6 KB · Aufrufe: 274
  • PLAN2.KPL
    4,1 KB · Aufrufe: 241
  • Grundriss.pdf
    48,1 KB · Aufrufe: 359
AW: Planung einer offenen Küche 3,40x2,68x3,40

Was ich noch vergessen habe ... wir haben eine freistehende Kühl-Gefrierkombi in Edelstahl, Höhe 185, Tiefe und Breite 60 die integriert werden soll.

Gruß
Andrea
 
AW: Planung einer offenen Küche 3,40x2,68x3,40

Hallo Andrea,

der/die Alleinekoch ist 185cm groß?

Folgendes zur optimalen Arbeitshöhe :

ARBEITSHÖHE ermitteln
3 Methoden haben sich da etabliert:
- Ellbogen abwinkeln und von dort 15 cm runtermessen
- Höhe Beckenknochen messen
- z. B. Bügelbrett nehmen und in verschiedenen Höhen Probeschnippeln und messen, wenn es einem am bequemsten erscheint.
Idealerweise ergeben alle 3 Methoden ca. denselben Wert

Und weil ich in deinem Plan gleich zwei Eckschränke sehe, zum Lesen: Tote Ecken sind gute Ecken
 
AW: Planung einer offenen Küche 3,40x2,68x3,40

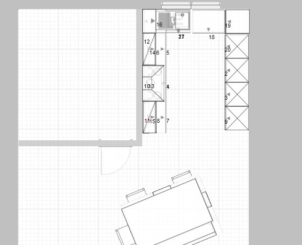
Das war eine gute Idee. :top: Das hätte ich nicht vermutet. Werde es später gleich mal abändern. Was mich im Moment noch stört ist, das der 90er Unter- und Oberschrank fast direkt mit der Wand links abschließen. Ich glaube nicht, daß das so gut aussehen wird. Was denkt ihr? Gibt es noch andere Vorschläge außer dieser U-Form? ???
 
AW: Planung einer offenen Küche 3,40x2,68x3,40

Bei 268cm Raumbreite bietet sich das U schon an: zwischen normaltiefen (60cm) Zeilen bleibt ein Anstand von 148cm, was für einen reinen Zweizeiler schon etwas zu weit ist (90 - 120cm). Daher kann man den Platz am Fenster gut für die Spüle nutzen.

Ist der Raum unterhalb der Küche in deinem Grundriss wirklich reiner Essraum, oder wird das gleichzeitig auch Wohnzimmer?

Ansonsten kann man sich natürlich überlegen, ob man die Küche nicht noch weiter nach planunten erweitert und dann doch anders aufteilt.
 
AW: Planung einer offenen Küche 3,40x2,68x3,40

Danke Menorca für deine guten Tipps.:-) Habe jetzt die Eckschränke weg gelassen und die rechte Seite mit einem Aufsatzschrank mit Jalousie etwas optimiert. Die Arbeitshöhe wäre bei 91 cm.
Waren heute auch noch mal im Küchenstudio und haben jetzt folgendes Angebot einer Nobilia Küche grifflos, in Lack Hochglanz Magnolie:
Aufteilung siehe Plan.
links: 2x80er Unterschrank mit 2 Auszügen, 90er Unterschrank mit innenliegender Schublade und 2 Auszügen, Oberschränke unten Glas/oben Front, 4x Regal
Mitte: 60er Spülenunterschrank mit Abfalltrennung 2-fach, 80er Unterschrank mit 2 Schubladen und 1 Auszug
rechts: 60er Aufsatzschrank mit Jalousie 60 tief, Vorrats-Hochschrank 168,50 cm mit Auszugskörben, Hochschrank für GSP + 1 Auszug, Hochschrank für BO + Mikrowelle + 1 Auszug
Elektrogeräte von Siemens :
BO ähnlich HB76GB560 jedoch ohne CookControl, dafür mit 3er-Vollauszug
Kochfeld Induktion EH845EC11
GSP SN66M084EU
Dunstabzugshaube kopffrei (genaue Type weiß ich hier nicht)
Blanco Spüle Silgranit mit Abtropffläche
Armatur BlancoFilo-S in Edelstahl gebürstet
Arbeitsplatte Schichtstoff 38 mm
einschl. Verkleidung für Abluftrohr Abzugshaube
4 LED-Strahler

Gesamtpreis einschl. Lieferung und Montage 12.000,-- Eur

Habe noch kein Vergleichsangebot. Ist das ein fairer Preis? Würde mich über ein Feedback freuen.

LG Sonne12
 

Anhänge

  • PLAN5.POS
    8,6 KB · Aufrufe: 264
  • PLAN5.KPL
    4,1 KB · Aufrufe: 247
AW: Planung einer offenen Küche 3,40x2,68x3,40

Hallo Sonne,

ich habe meine netten 5 Minuten und hänge dir Bilder und Grundriss deiner Planung an. Bitte in Zukunft selber machen, falls es neue Pläne gibt (Alnohilfe Kap.3).:rose:


Ein paar Punkte zum Nachdenken habe ich noch:

Der wichtigste Arbeitsplatz ist der zwischen Kochfeld und Spüle, und der würde bei euch größer werden, wenn du ganz auf die Abtropffläche verzichtest. So wichtig ist sie nicht, wenn man alles in die Geschirrspülmaschine stellt.

Die Hängeschränke sollten mit 10cm Abstand zur DAH hängen, einmal der nicht mehr eingequetschten Optik wegen und zum anderen zum leichteren Putzen der DAH Rückseite.

Schöne breite Unterschränke habt ihr geplant :2daumenhoch:. Das scheint eine interessante Einteilung zu sein bei Nobilia grifflos. Hast du mit den Innenhöhen der Schränke einmal eine Stauraumplanung gemacht?

Manche hier mögen ja die Optik von Jalousieschranken nicht, und auch diese nicht-ganz-hohen Hochschränke nicht: wenn hoch, dann richtig und am besten eingekoffert. Ich finde das Geschmacksache. Man neigt immer dazu, obendrauf etwas abzustellen wenn es die Möglichkeit gibt.

Insgesamt lässt es sich in dieser Küche gut arbeiten. Der Preis ist okay bis vielleicht noch etwas verhandelbar (reines Bauchgefühl).

Zu den Geräten kann ich nichts sagen. Besser, du verlinkst sie auf die Herstellerseite, dann können die Gerätekenner schnell einen Blick drauf werfen. Einen mittleren Internetpreis kannst du ja ergoogeln.
 

Anhänge

  • kf_Sonne12_eigenPlan5_A1.jpg
    kf_Sonne12_eigenPlan5_A1.jpg
    43 KB · Aufrufe: 427
  • kf_Sonne12_eigenPlan5_A2.jpg
    kf_Sonne12_eigenPlan5_A2.jpg
    39,1 KB · Aufrufe: 297
  • kf_Sonne12_eigenPlan5_A3.jpg
    kf_Sonne12_eigenPlan5_A3.jpg
    42,9 KB · Aufrufe: 297
  • kf_Sonne12_eigenPlan5_A4.jpg
    kf_Sonne12_eigenPlan5_A4.jpg
    36,9 KB · Aufrufe: 282
  • kf_Sonne12_eigenPlan5_G.JPG
    kf_Sonne12_eigenPlan5_G.JPG
    45,5 KB · Aufrufe: 260
AW: Planung einer offenen Küche 3,40x2,68x3,40

Hallo Sonne

Zusätzlich zu Menorcas Anmerkungen:

- die Herdseite würde ich in übertiefe planen (70-80cm tiefe APL), am besten auch die Unterschränke übertief) das ist beim Arbeiten deutlich komfortabler und bietet zusätzlich Stauraum.

Ausserdem würde ich Herdseite mit Hochschränken tauschen und die Seitenschränke einkoffern. Mit gefiele der Blick vom Esstisch auf die Seitenschränke nicht mit dem eben nicht alleine stehenden 'Stand alone' .. so ein Gestoppsel passt in meinen Augen schlecht zu der cleanen grifflosen Optik.
 
AW: Planung einer offenen Küche 3,40x2,68x3,40

Die Herdseite übertief ist eine Option: man gewinnt Stauraum und Arbeitsflächentiefe (das ist wirklich sehr angenehm), muss dafür der 80cm US am Fenster gegen einen 60cm US tauschen. Der Zeilenabstand wird entsprechend geringer.

Die Hochschrankseite und die Kochseite zu tauschen bringt ein neues Problem: das Fenster sitzt nicht mittig, und das Wandstück links neben dem Fenster hat keine 65cm Breite. Dann passt der Jalousieschrank nicht mehr in voller Tiefe, und nur Hängertief geht einfach viel weniger rein.
 
AW: Planung einer offenen Küche 3,40x2,68x3,40

Die Herdseite übertief ist eine Option, die ich überdenken werde. Die Herdseite mit den Hochschränken zu tauschen, hatten wir auch schon durchgeplant. Wir haben aber vor, über den Hochschränken bis ca. 195 Höhe eine Steinwand mit Mauerverblendern zu machen und den Stand-alone somit etwas zu integrieren. Wir haben diese Mauer im Wohnzimmer und das sieht schon toll aus. Farblich natürlich auf die Front abgestimmt. Wir haben die Verblender im Küchenstudio schon mal zu der Front gehalten und ich denke das passt. Die Hochschränke haben wir extra mit nur einem Einlegeboden, nicht zu hoch genommen, damit sie nicht zu kastig wirken. Ich muss noch mal nachfragen, ob zwischen DAH und Hochschränken noch Platz ist. Das kann durchaus sein. Werde auch versuchen noch etwas nachzuverhandeln, um evtl. die Hochschränke mit Glasboden und 2-teilig.Licht zu versehen. Würde lt. Verkäufer nochmals insg. 500 Eur kosten. Das sollte doch drin sein, oder?
Ich versuche das später mal mit der Wand im Alnoplaner darzustellen und melde mich dann wieder.

Aber schon mal vielen Dank an der Stelle für eure Ideen. :top:

LG Sonne12
 
AW: Planung einer offenen Küche 3,40x2,68x3,40

Hier noch ein Paar Screenshots. Dann kann man sich das besser vorstellen. Die Wand mit den Natursteinverblendern soll nicht so rechteckig sein, sondern verläuft dann neben dem Kühlschrank schräg nach unten.

LG Sonne12
 

Anhänge

  • Hochschränke.jpg
    Hochschränke.jpg
    40,5 KB · Aufrufe: 368
  • Fensterseite.jpg
    Fensterseite.jpg
    35,9 KB · Aufrufe: 273
  • Küchenzeile.jpg
    Küchenzeile.jpg
    36 KB · Aufrufe: 268
  • Küche.jpg
    Küche.jpg
    34,7 KB · Aufrufe: 300

Ähnliche Beiträge

Neff Hausgeräte Ballerina Küchen Blum Bewegungstechnologie Weibel - Intelligente Küchenlüftung

Neff Spezial

Blum Zonenplaner

Weibel Abluft-Tuning

Weibel Abluft-Tuning
Zurück
Oben