Offene Mittelklasse-Küche in einem Neubau

Frank78

Mitglied
Beiträge
9
Hallo zusammen,

aufgrund meiner Schwägerin, die mir heute mitgeteilt hat, dass Sie wegen der Tipps hier aus dem Forum gleich das EG ihres Neubaus umgeplant hat, habe ich mich soeben bei euch registriert.
Wir bauen ein Einfamilienhaus, das für vier Kinderzimmer ausgelegt sein soll. Entsprechend der zu erwartenden "Action" im Wohn- und Essraum möchten wir deshalb eine offene Küche bzw. eine Wohnküche planen lassen - der erste Besuch beim Küchenbauer ergab jetzt erstmal, dass die Planung einer Küche nicht so trivial ist wie angenommen...daher bin ich jetzt hier.
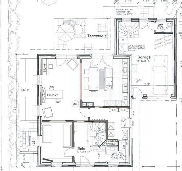
Ich würde gern wissen, worauf man bei einer Planung in der lt. Zeichnung angegebenen Größenordnung besonders achten sollte bzw. was auch ein "no-go" wäre.
[...] Oh Mann, ich habe gerade den Frageboden unten durchgearbeitet - da braucht man ja quasi nichts mehr in den Text zu schreiben... ;-)
Die Brüstungshöhe der Fenster ist unbekannt. Die Wahl der Abzugshaube gehört doch zur Küchenplanung ?

EG-Zoom.jpg

Vielen Dank schon im Voraus für die Hilfe!

Frank


Checkliste zur Küchenplanung von Frank78

Anzahl Personen im Haushalt : 4
Davon Kinder? : 2
Körpergrössen aller Hauptbenutzer (wegen Arbeitshöhe ) in cm : 189, 168
Art des Gebäudes? : Neu-/Umbau, Planänderungen möglich
Brüstungshöhe des Fensters (in cm) : 90
Fensterhöhe (in cm) :
Raumhöhe in cm: : 267
Heizung : Fussbodenheizung
Sanitäranschlüsse : vollkommen variabel
Ausführung Kühlgerät? : Integriert im Hochschrank (60cm)
Kühlgerät Größe : noch unbekannt
Ausführung Tiefkühl (TK)-Gerät : Im Kühlschrank bis 2 Schubladen unten
Dunstabzugshaube? : Umluft
Backofen etc. hochgebaut? : Ja
Hochgebauter Geschirrspüler ? : wenn möglich
Kochfeldart? : Induktion
Kochfeldbreite ca. (in cm)? : 80-90
Spülenform: : Noch nicht festgelegt
Weitere geplante Heißgeräte : Standmikrowelle, Backofen
Küchenstil? : Landhaus
Sitzmöglichkeit in der Küche / im Küchenbereich als : Tresen in Barhöhe
Sitzmöglichkeit: Für wieviel Personen? : für 2 Personen
Sitzmöglichkeit: Tisch - wenn gesonderter Tisch oder offene Küche : Wird nach Bedarf neu gekauft
Gewünschte o. vorhandene Tischgröße : 180x90 cm
Wofür soll der Sitzplatz in der Küche genutzt werden? Wie häufig? : Täglich, natürlich zum Essen, aber auch zum Malen, Spielen, diskutieren etc. pp.
Welche Arbeitshöhe ist angedacht (in cm)? :
Was steht auf der Arbeitsplatte oder soll dort stehen? : Kaffeevollautomat, Wasserkocher, Toaster
Welche weiteren Küchenmaschinen müssen in der Küche untergebracht werden? : Küchenmaschine, Handrührgerät, Mixer, Pürierstab, Eierkocher
Was soll in der Küche außer den Standards untergebracht werden? : Sonstiges (evtl. im Beitragstext benennen)
Welchen Stauraum gibt es sonst noch? : Geschirr/Gläserschrank im Wohn-/Esszimmer
Was/wie wird gekocht? (Alltagsküche, Menüs, Snacks usw) : Alltagsküche, seltener Menüs
Wie häufig wird gekocht? : (fast) täglich 1x warm
Wird alleine gekocht? Oder auch gemeinsam? Mit und für Gäste? : auch gemeinsam mit zwei Personen
Was stört an der bisherigen Küche und was soll die neue Küche unbedingt können? Warum? : Es Stören: Schelchte Scharniere, keine Dämpfung, nicht überall Auszüge, DEkor löst sich

Eigenschaften der neuen: überall Auszüge, Selbstreinigung des Ofens, pflegeleicht, belastbar, hohe Gesamtqualität
Steht schon ein Küchenhersteller fest oder wird bevorzugt? : Ballerina hört sich gut an
Steht schon ein Gerätehersteller fest oder wird bevorzugt? : Wahrscheinlich Neff (P/L-Verhältnis), ansonsten Miele
Preisvorstellung (Budget) : bis 15.000,-
 
AW: Offene Mittelklasse-Küche in einem Neubau

:welcome:

im Küchen-Forum!

Toll, dass dich deine Schwägerin an uns verwiesen hat. Habe wir ihre Küche hier geplant?

Auch hier taucht mir wieder die Frage auf, warum dieser schräge Eingang bei einem sonst geradlinig geplanten Haus?

Ich bitte dich um etwas Geduld, denn momentan ist hier viel los und wir Planerinnen haben auch noch ein RL.
 
AW: Offene Mittelklasse-Küche in einem Neubau

Hallo Mela,

vielen Dank für die freundliche Begrüßung!

Meine Schwägerin hatte hier eine Planung aus dem Küchenstudio hochgeladen, und die wurde hier so verbessert und geändert, bis in dem Haus nachher sogar eine Tür um zwei Meter versetzt wurde. Ich kann sie ja mal nach dem Usernamen fragen!

Der schräge Eingang dient wohl dazu, dass weder in Küche noch Flur eine Ecke weit hineinragt - aber den hat unser Architekt schon im ersten Entwurf so gesetzt. Ich frage ihn mal danach.

Eilig habe ich es nicht besonders, denn mit dem Bau wurde noch gar nicht angefangen - vor April/Mai 2015 wird das wohl nichts mit dem Kücheneinbau...ich wüsste nur gern, ob ich auch Änderungen am Haus wegen der Küche vornehmen sollte.
:-)

Gruß,
Frank
 
Zuletzt bearbeitet:
AW: Offene Mittelklasse-Küche in einem Neubau

Morgen am späten Nachmittag haben wir den ersten richtigen Termin in einem Küchenstudio - das Ergebnis gebe ich hier dann an. Gibt es branchenspezifische Empfehlungen für den Gesprächseinstieg?
 
AW: Offene Mittelklasse-Küche in einem Neubau

OT

Nur so eine Frage ;-)

1.)
Warum macht Ihr die doppelflüglige Terrassen-Türe im Esszimmer nicht mittig oder sogar noch besser wegen dem "offen-stehen-lassen" gleich 3-flüglig ? Die Vitrine o.ä. könnte man ja ggf. dann anders stellen.

EDIT
PS: Generell finde ich ist das rechte Fenster im EZ zu arg "an die Wand geklatscht". Sollten da später mal Fenstertextil hin, sind diese
ca. 20 cm (?) einfach zu knapp.

2.)
Treppenhaus
Die Abschrägung ist mir schon klar wegen dem Wäscheschacht. Allerdings würde ich das, was ich auf der einen Seite mache ebenfalls auf der anderen Seite machen. Das gibt m.M. nach später weniger (optische) Probleme wenn die Wand zum Beispiel mit Wandleuchen bestück werden soll.
 
Zuletzt bearbeitet:
AW: Offene Mittelklasse-Küche in einem Neubau

@Magnolia:
Zu 1: Das liegt an der Symmetrie von außen, und das WZ-Fenster geht wegen der Garage nicht weiter nach außen.
Zu 2: Mmh - muss ich mir mal in der Simulation ansehen, hat bisher noch niemand angesprochen...

Falls noch mehr Interesse am ganzen Haus besteht: klick
 
AW: Offene Mittelklasse-Küche in einem Neubau

Hallo Frank,

bei der Fensterbrüstungshöhe sind jetzt 90 cm eingetragen, im Text schreibst du aber, dass du sie nicht kennst.
Ihr solltet bei euren Körpergrößen sicherstellen, dass ihr nach Fussbodenheizung und Estrich auf eine Brüstungshöhe kommt, dass die Arbeitsplatte mit minimum 94 cm Arbeitshöhe in das Fenster gelegt werden kann. Genau könnt ihr eure ideale Arbeitshöhe mit Gemüseschnippeln auf dem Bügelbrett ausprobieren.

Genaue Maße, z.B. für die Position des "Küchenfensters" wären nochmal wichtig.

Plant ihr noch mehr Kinder (4 Kinderzimmer)? Auch mit den beiden bereits vorhandenen solltet ihr Schichtstoff als Frontmaterial wählen, damit eure Küche möglichst lange schön aussieht.:-)
Wenn sich bei eurer jetzigen Küche das Dekor löst, habt ihr wahrscheinlich eine Folienfront.

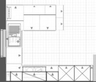
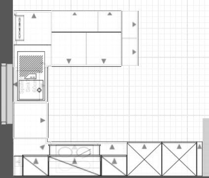
Ich habe mal ein bisschen geplant (bin allerdings nicht die beste). Bei einer U-Küche lässt sich kein hochgestellter Geschirrspüler planen. Bei einem 1-Zeiler + Halbinsel kann man zwar den GSP hochstellen, aber eigentlich fehlt dann Arbeitsfläche, um mal einen Plätzchenteig auszurollen, obwohl ich die APL auf der Kochfeldseite übertief geplant habe.
Das Kochfeld habe ich mit 80 cm Breite und den Kühlschrank möglichst groß geplant - für eine Großfamilie.

LG, Blumenlady
 

Anhänge

  • Unbenannt1.JPG
    Unbenannt1.JPG
    27,9 KB · Aufrufe: 246
  • Unbenannt2.JPG
    Unbenannt2.JPG
    29,9 KB · Aufrufe: 235
  • Unbenannt3.JPG
    Unbenannt3.JPG
    29,2 KB · Aufrufe: 232
  • Unbenannt4.JPG
    Unbenannt4.JPG
    27,7 KB · Aufrufe: 264
  • Unbenannt5.JPG
    Unbenannt5.JPG
    31,1 KB · Aufrufe: 231
AW: Offene Mittelklasse-Küche in einem Neubau

Oh wow - vielen Dank! :2daumenhoch: Das muss ich morgen Abend mal meiner Frau zeigen - sie schläft "schon"...

In den Bildern sieht die Küche doch ein bissschen klein aus für eine Familie mit (bis zu) vier Kindern - sollte man ihr mehr Patz einräumen? Würde eine L-Küche mit Insel passen, wenn man etwas mehr Platz hat?

In den Katalogen hatten wir bis jetzt immer lackiertes MDF für die Front im Blick - über "Schichtstoff " muss ich mich mal informieren. Bei unserer jetzigen Küche sieht es nach Furnier aus - und das löst sich jetzt nach nur 30 Jahren Familiennutzung...:-)

Die Brüstungshöhe musste ich angeben, sonst ging es nicht weiter - sie ist noch variabel.

Der Tipp mit dem Bügelbrett ist super!
 
AW: Offene Mittelklasse-Küche in einem Neubau

Ganz ehrlich: ich finde die Küche auch zu klein für eine Großfamilie, besonders, wenn das Haus ansonsten großzügig bemessen ist.
Das geht natürlich, wenn man noch einen Keller mit Tiefkühlschrank, Zweitkühlschrank und Lagerfläche für Gänsebräter und co hat, aber ich hatte den Eindruck, ihr plant ohne Keller.
Als Großfamile sollte man zusätzlich zum Backofen einen Dampfgarer in der Küche einplanen - der frißt allerdings auch Stauraum.
Sinnvoll wäre es deshalb einerseits eine ganze Wand mit Hochschränken, incl. Backofen , Dampfgarer, Mikro, Kühlschrank und GSP, zu nehmen und die Insel zu vergrößern.
Anderseits bin ich kein Fan von Kochen auf der (Halb-)Insel (Abluft wird deutlich teurer) und habe selber gerne Ablageflächen sowohl neben dem GSP, als auch neben dem Kühlschrank - was bei einer Hochschrank -Gerätewand nicht geht.

Ich würde dir empfehlen, einmal in den "fertiggestellten Küchen" die gößeren Küchen daraufhin anzuschauen.

LG, Blumenlady
 
AW: Offene Mittelklasse-Küche in einem Neubau

Hallo Frank,

mir kommt die Küche für 6 Personen auch etwas klein vor. Wenn ich mir den Grundriss anschaue, habe ich den Eindruck, dass sehr viel Platz für die Diele/Flur vorgesehen ist. Obwohl es ja meist so ist, dass sich das Leben in der Küche abspielt.

LG
Evelin
 
AW: Offene Mittelklasse-Küche in einem Neubau

ich habe jetzt die Kommentare zu eurem Hausdesign gelesen. Nicht nur wir hier glauben, dass die Küche um eine Dose Ravioli zu holen etwas weit weg.

Ich frage mich, ob die Treppe an anderer Stelle eine effizientere Flur/Dielegestaltung ermöglichen würde und dabei auch für die Küche mehr Raum zur Verfügung wäre.

Ich würde mir ein Spielzimmer wünschen, dass ich 'im Auge' halten kann, dh, entweder Tür von der Küche oder eine Nischenrückwand als Fenster, wenn die Wand zum Büro/Spielzimmer nicht mit Hochschränken verplant ist.

Auch stimme ich den Kommentaren bezüglich der Badgestaltung zu. Zwei Bäder wären auf jeden Fall praktisch, beide mit Dusche, eins mit Wanne. Ein Bad wäre ein 'ensuite Bad' vom Elternschlafzimmer aus begehbar, dass Andere planunten von links begehbar für die kids.

LG
Evelin
 
AW: Offene Mittelklasse-Küche in einem Neubau

Hallo,
ich habe jetzt auch euer ganzes Haus angesehen, ihr plant ja doch mit Keller!
Dadurch, dass ihr zwei Hauseingänge plant => viel Flur/Diele und das Treppenhaus mittig ist und ein großer Abstellraum im EG, fehlen der Küche 60 cm Breite, die sich wirklich gut machen würden.
Mit 60(40) cm mehr Breite, also etwa 3,85 m, könntet ihr eine großzügige L-Küche plus Insel planen! Das wäre mein persönlicher "Traum" für eine große Famile.
Braucht ihr wirklich ein Spielzimmer im EG? Spielen werden die kleinen Kinder bei Mama in der Küche/Esszimmer. Bei meiner Schwägerin war so ein geplantes Zimmer letztlich Gästezimmer mit Klavier.

Im OG würde ich übrigens lieber 2 Bäder einbauen, statt einem großen, besonders falls ihr auch Töchter habt (haben wollt)!

LG, Blumenlady
 
AW: Offene Mittelklasse-Küche in einem Neubau

Gerade ist hier ein ellenlanger Text bei einer automatischen Seitenaktualisierung verschwunden - wie komme ich an das, was immer rechts unten als "Gespeichert" während des Tippens eingeblendet wird? In der Hilfe steht nichts dazu.
 
AW: Offene Mittelklasse-Küche in einem Neubau

Die Treppe liegt nahe der Haustür, um das Haus irgendwann in zwei Wohnungen aufteilen zu können.
Das "Spielzimmer" im EG ist mein Büro - der seit der Kindheit bekannte Architekt deutet Computerspiele an...
Das Auftrennen des OG-Bades muss ich mir mal überlegen - passt dann noch eine Wanne? Habt ihr gesehen, dass wir in jeder Etage ein Bad mit Dusche haben (also zusammen drei)?

Zur Küche:
Mal schauen, ob wir da noch irgendwie die Breite erhöhen können. Eine größere Länge (vom Büro übertragen) bringt nicht viel, was? Bei der aktuellen Aufteilung geht geht L+Insel nicht? Nimmt man eigentlich ggf. quasi immer eine Kochinsel, oder sind auch Spülinseln oder vollflächige Arbeitsinseln verbreitet?

Zur ersten Beratung heute:
Hat über zwei Stunden gedauert, und so richtig fertig waren wir trotzdem nicht. Das Gespräch mit der Dame war sehr angenehm. Als klar war, welchen Standard wir erwarten, passte die genannte Preisspanne gefühlt ganz gut - zumindest war es kein hier oft so genannter "Mondpreis". Insgesamt hat sich keine meiner Befürchtungen bestätigt, ich war positiv überrascht. Darf man Namen von Studios hier nennen?
Das kleine Studio bestellt Küchen bei Häcker und Geräte bei Siemens /Neff und Miele - irgendwelche Bedenken zum Küchenhersteller? Wir waren bei der höheren Serie, den Namen habe ich vegessen.

Neue Erkenntnisse:
Der Knopf auf dem Neff-Kochfeld gefällt uns gut. Ein bündiger Einbau wäre schön.
Die versenkbaren Knöpfe in den Siemens-Öfen sind ganz schön wackelig, die von Miele sind besser. Ohne Drehknöpfe will uns die Bedienung gar nicht gefallen - die Neff-Variante mit einem geht gerade noch.
Mit Pyrolyse fällt bei Neff der sich drehende Griff und die Klappenversenkung weg.
Das Gefrierfach im Küchenkühlschrank wird doch etwas größer (um 40l). Eine NullGradZone kommt rein.
Die Miele-Spülmaschine sieht ohne Sonderzeugs von innen aus wie vor 20 Jahren.
Auch in Massivholzplatten sollte man keine Spüle versenken.
Bei lackierten Fronten muss man mit scharfen Reinigern aufpassen.
Spülbecken bekommen immer Flecken.
Auch Umluftabzüge können gut funktionieren.
Tote Ecken in der Küche sind nicht schlimm.
Unten sollten überall Auszüge sein.
Über einen Dampfgarer sollte man zumindest nachdenken.


Gruß,
Frank
 
Zuletzt bearbeitet:
AW: Offene Mittelklasse-Küche in einem Neubau

Das war dann wohl die Häcker Systemat ;-)

Reine Arbeitsinseln oder Spülinseln haben gegenüber der Kochinsel große Vorteile :kiss:
 
AW: Offene Mittelklasse-Küche in einem Neubau

Ja genau, es war die Häcker Systemat. Eine gute Wahl bei einem Budget um 13k€?
 
AW: Offene Mittelklasse-Küche in einem Neubau

Ich finde den Küchenraum auch nicht ideal. War mir schon im Hausbauforum aufgefallen.

Wenn ich es richtig verstanden habe, dann ist Arbeits/Spielzimmer wirklich als Arbeitszimmer gedacht. Kann das, wenn es ruhig sein soll, nicht in den Keller wandern? Da ist doch auch schon ein Raum angedacht.

Und, wenn ich es ebenfalls richtig verstanden habe, dann gibt es auch ein Wandklavier und noch recht kleine Kinder.

Ich finde es da ja immer gut, wenn Küche und Hauptaufenthaltsraum Richtung Terrasse orientiert sind.

Und habe mal geschoben, und weil es so schön paßte, gleich mal den Grundriss von Robecks Küchenplanung gewählt.

Da ist die Küche als L mit einer Arbeitsinsel ausgeführt.

Haupttisch dann mit Bank an der Arbeitsinsel angebaut.

Die dunkel gezeichneten Wände habe ich alle mal mit 18 cm geplant.

Zwischen Koch- und Familienbereich einfach nur einen Unterzug ohne große Türen.

Die Schleuse von der Garage ... da solltet ihr vor allem an Garderobe etc. denken. Schuhe in 200 cm Pax tiefenreduziert, Pax 150er Schiebetürenschrank und 100er Schrank für Jacken, Mützen, Taschen usw.

Die Ecke am Schacht kann man dann noch zum Hinstellen von Staubsauger/Wischer nutzen.

Im schon Fast-Flurbereich noch ein paar Haken, da kann auch mal die Küchenschürze hängen und die gerade gängigste Jacken von jedem.

Planunten links dann ein Couch/Fernsehzimmer. Und im Familienbereich des großen Raums der Ofen, 2 Lesesessel, PC-Platz auch für die Kinder, das Wandklavier.

Der Nordansicht habe ich ein Fenster geklaut und die Tür von der Garage dafür mittig unter das Gaubenfenster gelegt.

Dies alles unter der Voraussetzung, dass Treppe/Kamin nicht groß schiebbar sind.
 

Anhänge

  • frank78_20140504_EG-Vorschlag.jpg
    frank78_20140504_EG-Vorschlag.jpg
    72,7 KB · Aufrufe: 221
  • Frank78_20140504_AnsichtSuNzuVorschlag.jpg
    Frank78_20140504_AnsichtSuNzuVorschlag.jpg
    41 KB · Aufrufe: 220
AW: Offene Mittelklasse-Küche in einem Neubau

Hallo und vielen Dank für die Arbeit!

Das Büro im Keller ist für meine Frau - wir brauchen zwei. Da der Spitzboden als Ausbaureserve für Kind 4 gedacht ist, muss eins der Büros ins Erdgeschoss...

Die offene Küche hatten wir in den Süden gesetzt, damit es dort den ganzen Tag hell ist. Dass der Raum dafür etwas knapp ist, das finden wir mittlerweile auch, denn in unserer aktuellen Wohnung ist die gemeinsame Fläche von Küche und Esszimmer größer. Nur woher den Platz nehmen, wenn ein Büro gesetzt ist?
 
AW: Offene Mittelklasse-Küche in einem Neubau

Könnten dann nicht 2 Büros im Keller realisiert werden?

Würde dir denn grundsätzlich sonst die Aufteilung gefallen? Licht dann halt vor allem im Familienbereich.
 

Ähnliche Beiträge

Neff Hausgeräte Ballerina Küchen Blum Bewegungstechnologie Weibel - Intelligente Küchenlüftung

Neff Spezial

Blum Zonenplaner

Weibel Abluft-Tuning

Weibel Abluft-Tuning
Zurück
Oben