Unbeendet Neue Küche in Neubau

Letsirk

Mitglied
Beiträge
14
Liebe Community,

ich bin auf dieses Forum gestoßen umd habe mich schon durch einige Artikel gearbeitet. Nun hoffe ich auf individuelle Tipps, denn es geht um unsere erste selbst geplante Küche. Wir sind also quasi noch völlig ahnungslos. Vielleicht habt ihr Ideen oder Tipps für uns, die wir in unserer Küchenplanung berücksichtigen können. Wir bauen ein Fertighaus und haben nun die finalen Grundrisse, die eingereicht werden können. Bevor wir die Elektroplanung machen können würde ich gern das Thema Küche angehen, um Fehlplanungen zu vermeiden.

Die Küche soll viel Stauraum und Arbeitsfläche auf 9qm bieten. Aktuell stehen wir uns immer im Weg. Es gibt einen separaten Essbereich und eine Speisekammer. Durch die Haustür hat man direkten Uugsng zur Speisekammer und hier wiederrum durch eine Schiebetür zur Küche, um langes Schleppen zu vermeiden.

Die Form sollte eine U oder G Form haben war angedacht. Ich hätte eigentlich gern noch eine Theke zum Hinsetzen und mit den in der Küche werkelnden zu quatschen (mit dem Rückem zum Esstisch). Allerdings hab ich mich gedanklich schon davon verabschiedet, weil mein Mann da unbedingt den Kamin haben wollte .

Pflegeleicht und sehr robust soll die Küche sein, weil wir zwei kleine erbarmungslose Jungs haben :-). Da kommt schon das erste Thema. Welche Fronten und Arbeitsplatte passt zu uns? Will nicht jeden Spitzer sehen müssen und jetzt auch nicht ultra aufpassen müssen mit der Pflege. Vorallem soll sie auch in 10 Jahren noch nett aussehen.

Der Kühlschrank ist ein SidebySide Gerät (bereits vorhanden). Es gibt ein Fenster, wo die Spüle drunter soll und eine Schiebetür zur Speisekammer.

Da geht es dann schon weiter... Wie sollten Kühlschrank, Spülmaschine, Backofen , Herd sinnvollerweise angeordnet sein? Was braucht man für maximalen Platz an Schranksystemen (Hochschränke, Hängeschränke, Apotheker, usw usf.). Was könnt ihr uns empfehlen?

Fragen über Fragen . Ihr seht, wir sind absolute Dummies und freuen uns über Unterstützung. Budget liegt bei ca 10000, evtl etwas mehr wenn es um Must Haves geht.

Liebe Grüße!

Checkliste zur Küchenplanung

Anzahl Personen im Haushalt: 4
Davon Kinder?: 2
Art des Gebäudes?: Neu-/Umbau, Planänderungen möglich
Körpergrössen aller Hauptbenutzer (wegen Arbeitshöhe ) in cm: 169; 185
Brüstungshöhe des Fensters (in cm):
Fensterhöhe (in cm):
Raumhöhe in cm:
Heizung:
Fussbodenheizung
Sanitäranschlüsse: fix
Ausführung Kühlgerät: Side by Side ca. 90cm breit
Kühlgerät Größe: bis 178 cm Höhe
Ausführung Tiefkühl (TK)-Gerät: Im Kühlschrank ab 3 Schubladen unten
Dunstabzugshaube:
Backofen etc. hochgebaut?:
Wenn möglich
Hochgebauter Geschirrspüler ?: Nein
Kochfeldart: Induktion
Kochfeldbreite ca. (in cm)?:
Spülenform:
Noch nicht festgelegt
Geplante Heißgeräte: Standmikrowelle, Backofen
Küchenstil: Modern
Sitzmöglichkeit in der Küche / im Küchenbereich: Keine
Sitzmöglichkeit: Für wieviel Personen?: Nein
Sitzmöglichkeit: Tisch - wenn gesonderter Tisch oder offene Küche: Wird nach Bedarf neu gekauft
Gewünschte o. vorhandene Tischgröße:
Wofür soll der Sitzplatz in der Küche genutzt werden? Wie häufig?:
Welche Arbeitshöhe ist angedacht (in cm)?:
Was steht auf der Arbeitsplatte oder soll dort stehen?:
Kaffeevollautomat, Wasserkocher, Küchenmaschine, Obstschale
Welche weiteren Küchenmaschinen müssen in der Küche untergebracht werden?:
Was soll in der Küche außer den Standards untergebracht werden?:
Geschirr komplett (nichts in Ess-/Wohnzimmer)
Welchen Stauraum gibt es sonst noch?: Speisekammer, Keller
Was/wie wird gekocht? (Alltagsküche, Menüs, Snacks usw): Täglichfriscj
Wie häufig wird gekocht?: (fast) täglich 1x warm
Wird alleine gekocht? Oder auch gemeinsam? Mit und für Gäste?: mit Mann und Kindern
Was stört an der bisherigen Küche und was soll die neue Küche unbedingt können? Warum?: Stauraum, sinnvolles Arragement,Arbeitsfläche, Müll soll versteckt sein
Welche Mülltrennung soll in der Küche vorgehalten werden?: Biomüll, Gelber Sack Müll, Plastik, Alu, Metall total getrennt, Restmüll
Steht schon ein Küchenhersteller fest oder wird bevorzugt?: nein
Steht schon ein Gerätehersteller fest oder wird bevorzugt?: nein
Preisvorstellung (Budget): bis 10.000,-
---------------------
Im Threadverlauf hinzugekommen:
besserer Ausschnitt

screenshot_20180221-193450-png.260945
 

Anhänge

  • Screenshot_20180220-122736.png
    Screenshot_20180220-122736.png
    189,6 KB · Aufrufe: 360
  • Screenshot_20180220-190937.png
    Screenshot_20180220-190937.png
    259,5 KB · Aufrufe: 316
Zuletzt bearbeitet von einem Moderator:
Herzlich Wilkommen @Letsirk hier im Forum.

Zunächst eine Bitte. Der Grundrissplan ist schwer zu lesen. Würdest du so nett sein, den Plan so einzustellen, dass die Maße gut erkennbar sind?
 
Hallo hier im Forum!
Was erhofft Ihr Euch von dieser Speisekammer?
Ich halte es für sinnvoller, die Kammer wegzulassen und den Zugang direkt in die Küche führen zu lassen. In der Küche dann planoben eine durchgehende HS-Zeile mit umbautem Kühli. Hier dürftet Ihr locker den Inhalt der Kammer mit unterbringen können.
Dann planunten eine lange Zeile mit einer kleinen Halbinsel am planrechten Ende mit Sitzgelegenheiten.
Tür zwischen Küche und Flur in die Küche öffnen lassen!
 
Hallo Omas Garten, danke für deine Antwort!

Die Speisekammer war im Ursprungsplan der HWR , den wir allerdings im Keller haben. Daher der Gedanke, es als Speisekammer zu nutzen. Wir wollten einen extra Raum haben, weil aktuell alles auf der Arbeitsplatte steht und der Rest der in den Schränken Platz gefunden hat, nachdem muss auf allen vieren getaucht werden und/oder es gerät in Vergessenheit.

Warum wir die Speise vor der größeren Küche bevorzugt haben waren folgende Gründe:

- finanzielle (ein einfaches Regalsystem in der Speise wäre günstiger als weitere Küchenmöbel)
- praktische (Ausziehschränke sind ja doch etwas teurer als die einfachen und das Getauche bei den einfachen nervt mich sehr)
-unser Staubsauger soll zwar versteckt aber nicht immer weggeräumt werden, weil ich ihn 1-2x täglich für Küche und WZ brauche. So kann ich ihn einfach in die Speise schieben.

Die kleine insel rechts unten ist eine super Idee. Hatten wir so gar nicht auf dem Schirm. Einziges Manko, daneben ist eine Terassentür. Um hinaus zu gehen, müsste man immer die Stühle wegschieben. Wäre aber vermutlich eh nicht so stark frequentiert, als dass es sehr stören würde.

Plan mit Wasseranschlüssen folgt heute!

Liebe Grüße
 
Zuletzt bearbeitet:
Hier mal nur schnell und grob zusammen geschoben, wie ich mir Eure Küche vorstellen könnte:
letsirk grundriss.JPG


Ab Tür im Uhrzeigersinn:
Trockenbau-Nische für den Staubsauger
60 HS Lager
60 HS Lager
90 SBS mit Überbau
60 HS BO/MW
60 HS Lager
Kamin

planunten rechts nach links
Ansetztisch auf APL-Höhe
Wange
60 GSP
60 Spüle
30 MUPL
100 Auszüge
100 Auszüge mit KF
100 Auszüge

Die planuntere Zeile ist übertief. So ist der Stauraum deutlich besser erschlossen. Innenauszüge sind günstiger als Frontgebundene Auszüge. Die Küche hat eine gute Ergonomie und gute Abläufe. rechts neben dem KF ist Stellplatz für Kleingeräte bzw. ein zweiter Arbeitsplatz. Die übertiefe APL ist echt Luxus; meint man gar nicht, was so ein paar Zentimeter an Stauraum- und APL-Gewinn mit sich bringen. Kaffeemaschine auf dem GSP, Wasserkocher braucht man mit Induktion nicht mehr.
Das Ganze ist nur grob, da die genauen Maße im Plan ja nicht lesbar sind.

letsirk ansicht1.JPG


Letsirk Ansicht2.JPG


Und zur Preisgestaltung: lasst Euch erstmal die Optimum-Küche für Euch durchrechnen; Abstriche kann man hinterher immernoch machen.

Wie steht Ihr zu Ikea ? Da hättet Ihr dann in ein paar Jahren die Option, die Fronten recht einfach zu ersetzen, wenn sie zu sehr unter den Jungs gelitten haben...
 
Manche Aspekte gefallen mir richtig gut, wie übertiefe APL, Sitzgelegenheit, Überbau am SBS.

Bei anderen.Aspekten bin ich unsicher: bei der planoberen Seite komplett mit HS hab ich Angst, dass wir insgesamt zu wenig Arbeitsfläche haben, gerade wenn die Speisekammer erhalten bleibt. Gibt es eine Faustformel für 4 Köche? Die Jungs helfen nämlich sehr gern, ich hoffe es bleibt so :-[. Optisch gefällt es mir aber gut. Sind hängende Schränke (evtl zum Teil) eine Alternative, oder sieht das doof aus? Wie könnte man das Eck bis zur Schiebetür sinnvoll nutzen (114 cm Breite in etwa)?

Wegen dem Fenster: macht es sinn daneben gleich Herd& Dunstabzug zu haben (nicht, dass es in einer tour beschlagen ist?!) ? Wieviel Abstand zur Wand sollte der Herd haben, damit sie nicht vollgespritzt wird und man noch genug Bewegungsfreiheit hat?

Grundsätzlich mag ich ikea sehr gern. Weiß allerdings nicht, ob ich da optisch fündig werde. Was für Fronten- und APL- Material könnt ihr empfehlen für Putzmuffel mit zwei wilden Kindern?
 
Wenn ihr eine Küche von Ikea montieren lasst, ist die alles andere als günstig, da kann ein normaler Küchenhersteller (bei gleicher Frontart) leicht mithalten.
 
Wir haben Ikea Kallarp. Läßt sich super putzen. Wie 'stoßempfindlich' die Front ist, kann ich nicht sagen. Aus dem wilden Alter sind meine beiden raus. Vorher hatten wir den Vorgänger der jetzigen Veddinge; die hat dem Familienleben auch mit Bobbycar, Puppenwagen, Einrad und Stühle-Schieben locker Stand gehalten.
Ja, Ikea lohnt nur bei Selbstaufbau.

Für 4 Köche wird die Küche mit Kammer definitiv zu klein sein. In meiner Planung finden 3 Köche gut Platz: rechts und links vom Kochfeld und am Sitzplatz auf APL-Höhe. Die eine Seite HSs hat den Vorteil, dass Ihr alle nebeneinander steht und Euch nicht Popo an Popo in die Quere kommt. Denn dafür dürfte die Küche zu schmal sein- auch mit normaltiefen USs.
Hängeschränke würde ich in der Küche nicht planen, weil sie egal wie immer Ecken in den Raum ragen haben: rechts und links vom Fenster. Das klingt nach Kopfstoßen und engt den Raumeindruck sehr ein.
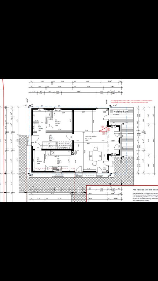
Habt Ihr mal eine Stauraumplanung gemacht? In drei 60er HSs geht eine ganze Menge. Vielleicht wäre ja sogar noch mehr HSs möglich; die Maße im Gesamtplan sind nicht lesbar.
 
Ich kann die Maße, so sehr ich mich auch bemühe nicht richtig erkennen. Wäre es möglich, die (markiert) nochmal nachzureichen? Gut wäre auch noch die Raumhöhe und Brüstungsmaß des Fenster.
Unbenannt.PNG
 
Screenshot_20180221-193450.png


Erstmal hier nochmal eine Aufnahme der Maße. Unten steht von Trennwand zur Speise bis Terrassentür 3,76 gesamt planunten.
Planoben lt. meinem Mann ca. 3,40 weil der Kamin vorsteht.

Gesamtbreite sind 2, 74. Wobei die Trennung nun durch eine 77er Schiebetür zur Speise erfolgt. Genaue Abmaße der Trockenbauwände zur Speise sind (noch) nicht im Plan ersichtlich. Wird ja eh nochmal vor Ort genau vermessen. Mein Mann hat Schätzwerte eingetragen. Ich hoffe, das hilft etwas weiter.
 
@ Omas Garten

die kallarp ist ja die hochglanzversion. Davor hab ich glaub ich zu großen Respekt was den Reinigungsaufwand angeht. Grundsätzlich planen wir keinen Selbstaufbau aus Zeitmangel. Habe ein favorisiertes Küchenstudio / Elektrofachhandel aus dem wir schon einiges an Geräten haben. Wollte alternativ ein zweites Küchenstudio und Ikea ansteuern und zwischen den dreien entscheiden.

Die Stauraumplanung ist ein super Hinweis. Werden wir die Tage machen
 
Wie muss ich mir den Kamin vorstellen? Steht der Ofen planrechts vom Kamin und der Kamin ist nur Abzug? Oder wird das so ein in die Mauer eingelassener Ofen?

Nochmal zur Kammer: Ihr habt planunten 1,60 breiten Stellplatz für HSs in 60cm Tiefe. Planlinks können schmale Regalbretter an die Wand. Der Staubsauger steht auf dem Boden im Weg. Wenn Du schwer beladen ins Haus kommst, musst du erst die Haustür schließen und kannst dann die Kammertür öffnen. Beim Großeinkauf, bei dem man öfter rein und raus läuft, ist das sehr unpraktisch. Dann hast du in der Kammer keine Abstellmöglichkeit. Du stellst also die Einkäufe erstmal auf den Boden und musst dich dann nach jeder Büchse bücken, die Du ins Regal räumst.
Bei meiner Planung kannst du die Einkäufe auf der APL abstellen, machst hinter Dir den Schrank auf und verräumst alles in die (Innen-)Auszüge.

Wenn Ihr schon ein Küchenstudio im Auge habt, lass Dir doch da mal eine Küche durchrechnen.
Was ich dir aus eigener Erfahrung nicht empfehlen kann, ist der Zeilenabstand 1,50m. Hatten wir in der alten Küche. Das ist nervig weit von einer Zeile zur anderen zum Nudeln abgießen, andererseits ist es zu wenig, um ‚Rücken an Rücken‘ zu stehen. Macht einer einen Schritt nach hinten um z.B. etwas aus einer Schublade zu holen, rempelt man den Hintermann an, der u.U. gerade mit dem großen Messer hantiert.
Da ist eine lange Zeile besser. Außerdem hast du bei einer Zeile besser im Blick, was die Zwerge gerade so machen
 
Wo ich noch Schwiegigkeiten sehe ist, den SbS im jetzigen Plan sinnvoll unter zu bringen. Mir scheint es ebenfalls besser, wie von @Omas Garten vorgeschlagen, auf die Speis zu verzichten um Raum für die Küche zu gewinnen.
 
Guten Abend, also wir haben das Thema Speise mit mit meinem Mann diskutiert. Wir wollen sie beide behalten, weil sich unsere Speise in der aktuellen Wohnung sehr bewährt hat zum Dinge verstecken und für den Müll, obwohl die Speise am anderen Ende der Wohnung ist. Wir produzieren sehr viel Müll und müssen in unserem Landkreis gefühlt sogar die Jogurtbecher nach Hersteller sortieren. Das Zeug wollen wir beide nicht in der Küche haben.

Also planunten sagt uns schon sehr zu. Ich hätte super gern übertiefe Schübe/ Schränke. Allerdings ist der Raum schon sehr schmal mit 2.74. Wird also evtl zu eng? Für die Sitzgelegenheit ist es so dann auch zu knapp oder?

Planoben hätte ich gern nochmal AF und Stellmöglichkeit für KVA und Küchenmaschine. Also doch Hängeschränke bis zur MV/BO? Daneben der SBS mit Überbau.

Genau Omas Garten, der Kamin geht planrechts weiter. Das eingezeichnete ist der Abzug. Lt. Plan 50 cm..@ Snow wo siehst du ein Problem bei der Platzierung des SBS? Evtl SBS und MV/BO tauschen?
 
Dann stellt uns doch mal einen Plan vor, wie Ihr die Kammer einrichten wollt. Gerade mit filigraner Müllsortierung würden sich ja Boxen in Auszügen anbieten.
 
Hallo,
einen konkreten Plan haben wir für die Speise noch nicht. Aber es wird wahrscheinlich ein einfaches Regalsystem werden für Vorräte, Müll (was über den täglichen Bio/Restmüll/gelber Sack und Papier hinaus geht. Also auch Glas/Metall/Gelber Sack, da wir das Selbst entsorgen müssen), besagter Staubsauger, Getränkekisten und Kleinkrustdinge wie Kalender etc, die ich nicht im wohnraum rumfahren haben will.
 
Ihr habt in der Kammer planunten 1,60m für vernünftig tiefe Regale. Planobenrechts läuft die Schiebetür. Planlinks können noch Regale hin; bei der Türposition läuft Ihr aber immer vor die Seite des Regals und blockiert Euch so den Zugang. Hinzu kommt die ungünstig öffnende Tür zwischen Kammer und Flur.
Dann wäre es vielleicht eine Idee, die Kammer-Flurtür zu schließen und so guten Stauraum planoben und -unten in der Kammer zu schaffen. Nur: dadurch wird die Küche nicht größer.

Versteh mich nicht falsch: es ist Eure Küche, ich muss damit nicht leben. Ich möchte Euch nur ein paar Denkanstöße geben.
Ihr wollt viel unterbringen. Und das am liebsten unsichtbar und mit 4 Arbeitsplätzen in der Küche, Sitzplatz, riesigem Kühli und abgetrennter Kammer.

Mal grob gerechnet: 4 HSs wie in meiner Planung (es passen 5 HSs plus Kühli mit den jetzt genauen Maßen). Also 5 HSs:
Einer davon für Mülltrennung in Form von Stapelboxen für Metall, Glas, Papier, darüber Platz für Vorräte.
Der nächste wird Getränkelager.
Der nächste ein reiner Vorratsschrank mit Innenauszügen.
In einem HS sind Mikrowelle und Backofen untergebracht, darüber und darunter Stauraum für z.B. selten benutzte Kleingeräte o.ä.
Ein 5. Schrank beherbergt den Staubsauger.

Der Kalender und so (bei uns hieß es in der Planung ‚Sekretariat‘), Stundenpläne etc finden auf der Innenseite einer Schranktür Platz.

Die Tür zum Flur könnte benutzerfreundlich in die Küche öffnen und Ihr hättet eine schöne lange Zeile, wo Ihr nebeneinander werkeln könnt, ohne Euch zu stören.
 

Ähnliche Beiträge

Neff Hausgeräte Ballerina Küchen Blum Bewegungstechnologie Weibel - Intelligente Küchenlüftung

Neff Spezial

Blum Zonenplaner

Weibel Abluft-Tuning

Weibel Abluft-Tuning
Zurück
Oben