Neue Küche in Neubau: Kritik & Anregung gewünscht

AW: Neue Küche in Neubau: Kritik & Anregung gewünscht

Wenns nur um die Blickrichtung geht, kannst du Kerstins Insel doch einfach spiegeln, sodass das Kochfeld auf der anderen Seite ist. Bei deiner gedrehten Insel hast du einen relativ engen Durchgang bei den Hochschränken, und zum Ausgleich eine Tanzfläche in der Küchenmitte. ;-)
 
AW: Neue Küche in Neubau: Kritik & Anregung gewünscht

Hmm, darüber habe ich auch schon nachgedacht. Der Blick zur Terassentür wäre dann zwar OK, aber ich ich hätte das Gefühl ich würde irgendwie im Durchgang stehen. Ich kann nicht genau sagen, warum mir das rein gefühlsmäßig nicht gefällt, aber das ist so wie wenn man im Restaurant nicht so gerne mit dem Rücken zum Raum sitzt. Weisst du was ich meine?

Mit dem engen Durchgang und dem Tanzsaal hast du schon recht, aber bisher gefällt mir diese Variante noch am besten. Auch weil die Küche als solche zwar offen, aber doch in sich geschlossen ist.

Unser Rohbau steht schon und ich will mir aus Pappe oder Packpapier den Grundriss der Küchenmöbel ausschneiden und mal hinlegen. Vielleicht sehe ich dann klarer. Mir fehlt so auf dem PC einfach das richtige Vorstellungsvermögen für die Dimensionen.

Viele Grüsse
Sandra
 
AW: Neue Küche in Neubau: Kritik & Anregung gewünscht

Ich finde halt sowohl in deiner ersten Halbinsel-Variante als auch in der jetzigen Inselvariante den Abstand Kochzeile/Spülzeile zu groß.

Es ist halt blöd, dass am Fenster nichts mehr zu ändern ist. Ich hätte ja diese Eckfenstervariante auf die andere Ecke gesetzt, dann hätte man problemlos die Hochschränke auf die Flurseite legen können.

Na, mal gucken, was man noch schieben kann.
 
AW: Neue Küche in Neubau: Kritik & Anregung gewünscht

Du hast Angst, hinterrücks erschossen zu werden? ;D

Nee, wohlfühlen musst du dich natürlich. Aber vielleicht gibts ja noch eine andere Lösung - bei deiner Insel find ichs auch schade, dass sie ziemlich geschrumpft und eigentlich nur noch ein Kochfeld mit Abstellfläche ist, wo Kerstins Variante noch ein schönes Stück dreiseitig zugänglicher Arbeitsfläche geboten hat.
 
AW: Neue Küche in Neubau: Kritik & Anregung gewünscht

Wenn die Mauer links noch etwas variabel ist, kann man ihr ja vielleicht auch einen Durchgang spendieren und dann wieder fortsetzen. Das hat den Vorteil, dass man vom Flur kommend nicht immer um die Halbinsel herum muss. Oder man läßt das Mauerstück an der Insel sogar ganz weg.

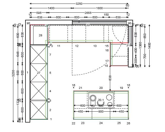
Die Insel ist jetzt "nur noch" 185 cm breit, dafür aber 120 cm tief.

In der Hochschrankwand habe ich den Vorratsschrank durch einen 60er Auszugsunterschrank ersetzt und einen Aufsatzschrank vorgesehen. Dahinter könnte der Gerätepark auf der APL stehen, obendrüber Gläser/Tassen.
 

Anhänge

  • kf_sapa_20110430_kb_var3_Grundriss.jpg
    kf_sapa_20110430_kb_var3_Grundriss.jpg
    13,6 KB · Aufrufe: 121
  • kf_sapa_20110430_kb_var3.kpl
    4,1 KB · Aufrufe: 143
  • kf_sapa_20110430_kb_var3.POS
    12,4 KB · Aufrufe: 140
  • kf_sapa_20110430_kb_var3_Ansicht1.jpg
    kf_sapa_20110430_kb_var3_Ansicht1.jpg
    21 KB · Aufrufe: 129
  • kf_sapa_20110430_kb_var3_Ansicht2.jpg
    kf_sapa_20110430_kb_var3_Ansicht2.jpg
    15,9 KB · Aufrufe: 139
  • kf_sapa_20110430_kb_var3_Ansicht3.jpg
    kf_sapa_20110430_kb_var3_Ansicht3.jpg
    23,2 KB · Aufrufe: 133
  • kf_sapa_20110430_kb_var3_Ansicht4.jpg
    kf_sapa_20110430_kb_var3_Ansicht4.jpg
    23,4 KB · Aufrufe: 152
  • kf_sapa_20110430_kb_var3_Ansicht5.jpg
    kf_sapa_20110430_kb_var3_Ansicht5.jpg
    31,6 KB · Aufrufe: 122
AW: Neue Küche in Neubau: Kritik & Anregung gewünscht

Hallo,
obwohl ich nun schon eine ganze Weile nicht mehr im Forum war, habe ich trotzdem an unserer Küche weitergeplant. Der finale Plan sieht jetzt so aus:
Plan final.JPG
Auch bei den Vergleichen der einzelnen Küchenstudios und mit den Preisverhandlungen hat es Fortschritte gegeben und ich war schon fast soweit jetzt endlich zu unterschreiben, für eine Alno Grifflos Starline Hochglanz weiß. Und plötzlich kommt mir ein Bekannter dazwischen, der jemanden kennt, der Küchen aus Norddeutschland besorgen kann und der bietet mir eine Küche mit gleicher Ausstattung für 3750,- Euro günstiger an.

Das Küchenstudio will den Hersteller nicht nennen, weil es eine "umgelabelte Hausmarke" ist, aber ich bin sicher, dass es sich um Bauformat handelt. Sie haben mir allerdings gesagt, die Qualität wäre mit SieMatic vergleichber, was man doch von Bauformat eigentlich nicht sagen kann.

Kann jemand was zu Bauformat R10CP Weiss Hochglanz im Vergleich zu Alno sagen? 3750,- Euro ist ja eine ganze Stange Geld, aber ich habe Bedenken eine Küche zu kaufen, die ich nur vom Papier kenne?

Sandra
 
AW: Neue Küche in Neubau: Kritik & Anregung gewünscht

Hallo Sandra,
wo kommt denn die Spüle hin? Und ist die dann nicht etwas weit von der Kochinsel entfernt?

Was ist denn jetzt alles in der Hochschrankwand untergebracht? Und warum unbedingt noch die zusätzliche Ecke, die dann in einem 40er und 30er Schrank endet?
 
AW: Neue Küche in Neubau: Kritik & Anregung gewünscht

Hallo Kerstin,
die Spüle ist gegenüber der Kochinsel unter dem Fenster. Mir gefällt die Planung einfach so am besten, auch wenn nach allgemeingültiger Meinung der Abstand zwischen Kochen und Spüle vielleicht etwas zu weit ist. Aber wir haben es mal "nachgestellt" mit einem fiktiven Nudelwassertopf und mir ist es nicht zu weit. Und die zusätzliche Ecke gefällt mir auch einfach so vom Bauchgefühl her und ich habe zusätzlich noch etwas mehr Platz.
Sollte ich meine Frage bezüglich des Angebots von Bauformat lieber in einem anderen Bereich - also nicht hier im Planungsthread - stellen?
Grüsse
Sandra

P.S. In der Hochschrankwand ist von links nach rechts:
- Kühlschrank
- Vorratsschrank
- Backofen und Kombi-Dampfgarer
- hochgestellte Spülmaschine
- Jalousienaufsatzschrank
 
AW: Neue Küche in Neubau: Kritik & Anregung gewünscht

Nee, nee, die ist hier schon gut aufgehoben. Kann halt am Wochenende etwas dauern, es ist ja auch schönes Wetter.

Vielleicht kannst du schon mal etwas über das Frontmaterial und die Korpushöhe herausbekommen. Sind auch alle Schränke gleich?

Bei der Ecke finde ich 40+30er Schrank eine sehr unpraktische und verteuernde Kombination. Reicht da nicht ein 60er Schrank?

Und was ist nun in welchen Hochschränken enthalten?

EDIT:
Insgesamt hast du nur einen breiten Auszugsunterschrank ... sehr schade.
 
AW: Neue Küche in Neubau: Kritik & Anregung gewünscht

.. ich würde wohl eher keine Küche aus Norddeutschland kommen lassen, wenn die noch nicht mal mit dem Herstellernamen rausrücken.


"wir sind genauso gut wie Siematic " ... oder solche Vergleiche liebe ich ja :rolleyes: das kann man immer behaupten - das kannst Du bei keinem Gericht der Welt einklagen, wenn es dann nicht so ist :stocksauer:
 
AW: Neue Küche in Neubau: Kritik & Anregung gewünscht

Guten Abend allerseits,

In der Hochschrankwand ist von links nach rechts:
1. Kühlschrank
2. Vorratsschrank
3. Backofen und Kombi-Dampfgarer
4. hochgestellte Spülmaschine
5. Jalousienaufsatzschrank

Den 40er und 30er Schrank um die Ecke haben ich so geplant, weil ich einen Flaschenschrank haben wollte.

Die Frontbeschreibung lautet: Front 5 Schicht Hochglanz lackiert poliert
Programm: R10P Rhodos, Koffertür
Frontfarbe: 314 Weiss Hochglanz

Korpushöhe ist 78cm. Sockel 10 cm.

Wie gesagt, es handelt sich mit Sicherheit um eine Bauformat Küche. Ich habe mir die Typenbezeichnungen von Bauformat runtergeladen und alle Schränke und Typennummern sind exakt da so aufgeführt.

In den Angeboten sind alle Schränke bei Alno und Bauformat gleich bzw. das was sich am ähnlichsten ist, wenn es den identischen Schrank nicht gab.

Wie ist der Qualitätsunterschied zwischen Alno und Bauformat zu bewerten? Alno ist halt ein recht bekannter Name und von Bauformat habe ich bis gestern noch nie was gehört. Was sollte ich bei einem Preisunterschied von 3750,- Euro (Alno 17943,- und Bauformat 14000,-) besser nehmen? Ich finde den Preisunterschied schon ziemlich gross, und wenn man wie wir gerade ein Haus baut, dann kann man ein paar Tausender mehr gut gebrauchen.

Ich frage mich z.B. auch, ob das Design der beiden grifflos Fronten vergleichbar ist. Bei Alno gefiel mir das Kantige und das umlaufende Griffprofil an der Insel besser als bei Schüller , deshalb sollte es eigentlich Alno werden. Aber nun, bei dem Preisunterschied zu Bauformat schwanke ich wieder, ob es so ein kleines Detail wert ist, wobei die Bauformat auch das umlaufende Griffprofil an der Insel hat.

Ich brauche eure Ratschläge und Erfahrung, weil ich mir die Bauformat eben leider nicht mal in "natura" angucken kann. Auf den Fotos sieht sie schön aus, aber Fotos sind eben nur Fotos.

Viele Grüsse
Sandra
 
AW: Neue Küche in Neubau: Kritik & Anregung gewünscht

Gerade grifflose Fronten sollte man unbedingt ausprobiert haben. Da werden die unterschiedlichsten Methoden verfolgt, von Minigriffprofilen bis ordentlich greifbaren Profilen.

Was soll ein Flaschenschrank sein? Du hast einen 60er Vorratsschrank, der hoffentlich mit Innenauszügen geplant ist. Warum braucht man da einen 30er oder 40er Flaschenschrank?

Nicht nur der Preis entscheidet ... wie sind denn z. B. die Zahlungsbedingungen und die entsprechenden Sicherheiten bei den 2 unterschiedlichen Anbietern?
 
AW: Neue Küche in Neubau: Kritik & Anregung gewünscht

Hallo Kerstin,

das ist ja genau was ich meine. Ich hatte gehofft, jemand, der Bauformat kennt könnte mir im Vergleich zu Alno seine (auch subjektive) Meinung bezüglich der "greifbarkeit" beschreiben. Vielleicht mache ich noch einen eigenen Thread dafür mit einer entsprechenden Überschrift auf.

Zu den Unterschränken.
Es gibt keine 70er Unterschränke und ich finde einen 60er Schrank um die Ecke sieht "mickrig" aus und ein 80er würde nicht mehr passen.

Ein Flaschenschrank wäre ein Auszug mit Flascheneinteilungen, damit z.B. Öl und Essig nicht umfallen. Ich hatte sowas zwar noch nie, aber ich finde das klingt praktisch. Den Vorratsschrank bei den Hochschränken werde ich voraussichtlich auf einen 50er schrumpfen müssen (natürlich mit Innenauszügen) damit am Ende der Wand noch etwas Platz für Lichtschalter bleibt.

Alno käme aus einem großen Möbelhaus hier aus der Region und Bauformat käme über ein kleines Küchenstudio aus Norddeutschland, das hier in der Region einen Monteur hat, der auch für das Aufmass käme. Die Zahlungsbedingungen sind bei Bauformat "Bei Lieferung" und bei Alno "1/3 bei Aufmass und Rest nach Montage". Demnach wäre bei dem großen Möbelhaus die Sicherheit geringer, wegen der Anzahlung.

Grüsse
Sandra
 
AW: Neue Küche in Neubau: Kritik & Anregung gewünscht

Hast du mal diesen Thread gelesen? Taucht dein norddeutscher Küchenhändler da auf?
 
AW: Neue Küche in Neubau: Kritik & Anregung gewünscht

Hallo Sapa,

wegen der Griffleiste: Wie du selbst schon schreibst, ist die Erfahrung anderer eine subjektive Meinung. Auf Grund dessen würde ich nicht einfach bestellen, kann ja sein, dass du das ganz anders empfindest. Selber Ausprobieren, da ist man auf der sicheren Seite!
 
AW: Neue Küche in Neubau: Kritik & Anregung gewünscht

Ja habe ich.
Wenn ich mit der Maus auf so einen Balken halte, dann erscheint ein kleines Fragezeichen. Sollte da was passieren, wenn ich draufklicke?
 
AW: Neue Küche in Neubau: Kritik & Anregung gewünscht

Du meinst hier:
kf_modVergleichHerstellerrankingFragezeichen20110717.jpg

Weiß ich nicht, aber ich frage mal bei Michael.
 
AW: Neue Küche in Neubau: Kritik & Anregung gewünscht

Entschuldige die Einmischung Kerstin, möglicherweise liege ich auch falsch,

aber das Fragezeichen könnte bedeuten, die Beurteilungen beruhen, hmmm....wie drücke ich mich da aus... auf Aussagen, die für den User nicht verbindlich sind, sondern nur eine "allgemeine" Bewertung auf Grund der eingegangenen Informationen von Herstellern, Profis u.s.w. darstellen.

Ich denke, je mehr verwertbare und sachdienliche Hinweise eingehen, umso höher die Bewertung der einzelnen Kriterien und damit auch die Summe derer.

Ich bin der Überzeugung, Michael wird -wie alle anderen auch- dies sehr genau überprüfen, bevor diese "veröffentlicht" werden.

Mein Fazit:
Der User kann sich Anhand der dargelegten Kriterien ein Bild machen, wer was, wie anbietet und hat auch einen Anhaltspunkt über gewünschte Anforderungen seinerseits.

Nur halt ohne verbindliche Aussage
 

Ähnliche Beiträge

Neff Hausgeräte Ballerina Küchen Blum Bewegungstechnologie Weibel - Intelligente Küchenlüftung

Neff Spezial

Blum Zonenplaner

Weibel Abluft-Tuning

Weibel Abluft-Tuning
Zurück
Oben