Unbeendet Neue Küche im Neubau -

AW: Neue Küche im Neubau -

ich versuche, mich bisschen einzulesen...
Nur mal kurz zu Durchgängen.
70 cm ist , speziell wenn es nicht raumhoch ist, ziemlich üppig.
Noch dazu, wenn das nur punktuell ist.

Um es für sich selbst auszuprobieren, rate ich immer, einen normalen Stuhl mit der Rückenlehne vor eine Wand zu stellen und so mit den verschiedenen Abständen zu experimentieren.

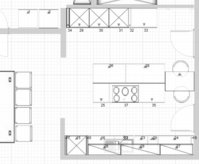
Ich selbst bin nicht gerade das was wir Schwaben ein "Hachtele" nennen, komme aber bei 57 cm selbst mit Bierkasten gut klar. (Bild anbei... der Durchgang ist an der engsten Stelle 57, sonst 58)
Frontal-03.jpgScan-K-Sam.jpg

Da man mich oft bei "schwierigen" Räumen holt, sind solche Durchgänge mein täglich Brot, und auch bei den im Schwabenland nicht selten ausladenden Hüften kein Problem;-). Übrigens... Die allermeisten Toilettentüren sind 66 cm breit.

*winke*
Samy

Nachtrag:
Der "Sockel " bei Aussenseite Halbinsel ist übrigens knapp 3 cm
(In anderen Treads wird das grade thematisiert)
 
Zuletzt bearbeitet:
AW: Neue Küche im Neubau -

Samy, das ist aber weder ein kleiner noch schwieriger Raum - da empfinde ich es als echten Unsinn, den Raum so zu verplanen, dass da nur 70cm Durchgang bleiben.

Bei speziellen Räumen geht es manchmal nicht anders. Aber ehrlich, schau Dir doch den grosszügigen klaren Grundriss von dem Haus an und dann willst Du da so eine verwinkelte seltsame Küche reinstellen? Für mich passt das überhaupt nicht zusammen: das ist, wie wenn man versucht aus einem Bauhaus-Bungalow eine Alphütte zu machen. :rolleyes:
 
AW: Neue Küche im Neubau -

Der Raum ist zwar nicht klein Vanessa, aber mit der Fensterwand, dem Riesendurchgang und der Speiskammer ziemlich totgeplant.
Irgendwie scheints ja auch um ne Insel zu gehen... war jetzt glaub in allen Planbeispielen mit drin ??

Samy *kopfkratz*

Wegen des Durchgangmaßes... da geb ich nur meine Erfahrungen zum Besten, und speziel in der Kerstin-Variante würde das m-M.nicht "kleinlich" wirken und auch nicht sein
 
AW: Neue Küche im Neubau -

Insel ist richtig, da der Raum ja doch mit 450 breit ist und ohne Insel die Wege länger werden.

Die Idee mit der Schiebetür ist folgende: Eine offene Küchen möchten wir nicht. Der Essbereich liegt an der Nordseite des Hauses. Wir können also entweder die Schiebetür schön öffnen und haben dann auch den Essbereich quasi lichtdurchflutet; die Küche liegt an der Südseite. Wir können die Küche aber auch schließen, wenn wir sie mal nicht sehen wollen ........

LG Plani
 
AW: Neue Küche im Neubau -

Plani, warum hattest du dann nicht die Alno -Dateien aus meinem Erstentwurf aus dem CK weitergenommen? Da hatten wir die Schiebetüren doch schon drin ;-)
 
AW: Neue Küche im Neubau -

:-\ das weiß ich heute leider nicht mehr und ich selbst habs im ALNO nicht hingekriegt,
daher hab ich normale Türen drin.
 
AW: Neue Küche im Neubau -

Hier mal mit richtiger Insel und hier mit Sitzplatz für zwei am Fenster ;-)
 

Anhänge

  • Plani30.JPG
    Plani30.JPG
    60,1 KB · Aufrufe: 122
  • Plani40.JPG
    Plani40.JPG
    60 KB · Aufrufe: 124
AW: Neue Küche im Neubau -

die zweite hat echt was, ich finde auch, so ein Durchgang zwischen den 2 Terassentüren ist unnötig.
Sind alle Wände noch drin ??;D

Samy
 
AW: Neue Küche im Neubau -

Guten Morgen,:-)

Vanessa, kannst Du mir das als Datei für den ALNO schicken, beide Entwürfe.

lg plani
 
AW: Neue Küche im Neubau -

da gibts keine zwei verschieden, da hab ich ja nur die Insel schnell angepasst ;-)

und Samy - alle Wände sind noch drin ;D die Küche ist so schön gross mit der breiten Schiebetüre zum Essen, da verspüre sogar ich keine Bedürfniss Wände rauszuhauen :w00t:

Mir gefällt der Sitzplatz an dem Südfenter übrigens sehr gut: der bringt echten "Mehrwert"
 

Anhänge

  • kf_planerin_NN_v3.POS
    15,3 KB · Aufrufe: 143
  • kf_planerin_NN_v3.KPL
    4,1 KB · Aufrufe: 120
AW: Neue Küche im Neubau -

Konnte mich heute endlich wieder mit der Küchenplanung befassen und bin nun zu dem Entschluss gekommen, dass der letzte Entwurf von Kerstin für uns der richtige ist. Ich habe hier die Insel um 10 cm verlängert und etwas verschoben ( sieht man fast gar nicht ) Die Terrassentüren werden jetzt nebeneinander eingebaut, so dass wir eine Sicht/Lichtachse vom Essbereich durchgängig bis zur Terrasse haben. Daher habe ich die Türen angepasst.Am Dienstag gehe ich in ein Küchenstudio und werde mir ein Angebot einholen, einmal Schüller und einmal ALNO . Werde Euch meine Ergebnisse dann mitteilen.

Was haltet Ihr von Vinyl-Bodenbelag in der Küche?

Anbei noch ein paar Bilder.

LG Plani


12.02.11-2.jpg 12.02.11-3.jpg 12.02.11-1.jpg12.02.11-4.jpg 12.02.11 Grundriss.JPG
 
AW: Neue Küche im Neubau -

Hallo Plani, gefällt mir gut - wobei - wenn es meine Küche wäre - ich auf den schrägen Sitzplatz verzichten würde und ich ihn gerade machen würde. Aber das ist Detail-Diskussion ;-) Schön, dass ihr noch frei in der Plazierung der Terrassentüren seid.

Zum Thema Vinyl gibt es hier eine Diskussion
 
AW: Neue Küche im Neubau -

Hallo Ulla,

mal sehen, was das Küchenstudio dazu sagt, mit der "Sitzecke" bin ich ja noch flexibel. Hab gerade wegen Vinyl gelesen. Klingt doch ganz gut.

LG Plani
 
AW: Neue Küche im Neubau -

Was mir an den Sitzplätzen mal wieder nicht gefällt: man sitzt mit dem Rücken zum Fenster und guckt aufs Kochfeld..

;D tja, über Geschmack lässt sich bekanntlich nicht streiten.

Ansonsten finde ich die Anordnung funktional gut.
 
AW: Neue Küche im Neubau -

Und ich würde zwischen die beiden Terrassentüren noch ein bodentiefes Festelementfenster einfügen. Das entspannt das Rein- und Rausgehen auf die Terrasse. So sind die Laufwege nicht gerade ideal.
 
AW: Neue Küche im Neubau -

;D recht hast Du Kerstin ..so muss man sich immer um die Insel rumschlängeln :dance:
 
AW: Neue Küche im Neubau -

Gestern war ich 4 Stunden mit meiner Küchenplanung im Küchenstudio , um mir für eine Schüller und ALNO -Küche ein Angebot erstellen zu lassen.

Schüller haben wir gestern geschafft, auf das Angebot für ALNO muß ich noch warten.

Bei der Schüller Küche ist das Küchenstudio auf einen Preis für die Möbel von 10.000 EUR gekommen( inkl. V&B Spüle und Armatur ). Für die Geräte hat sie 12.000 EUR genannt.

Folgende Geräte wurden geplant.

Liebherr Kühlschrank ICBP 3166
Kochfeld Neff TT4490
Herd Neff Mega BP 1672N
GSP Miele G5885 SCVI XXL
DAH Cirrus Best
Microwelle Neff CL 5470NO


Da ich diese Geräte über das Internet wesentlich günstiger bekommen kann, würde ich diese dann nicht über das Küchenstudio beziehen.

Für die Highbords links haben wir eine Höhe von 159 cm und für die Hängeschränke eine Höhe von 65 cm genommen. Die seitliche Verblendung rechts neben dem Kühlschrank hat eine Breite von 6 cm. Sonst würde die gesamte geplante Seite nicht passen. Was meint Ihr, reicht das aus, um den Kühlschrank optimal zu öffnen, da ich ja einen Griff an der Tür habe.

Das Angebot und die Zeichnung bekommt man - wie überall - erst nach Kaufvertragsabschluss.

Die Idee mit dem festen bodentiefen Fenster werde ich noch mit aufnehmen.

LG Plani
 
AW: Neue Küche im Neubau -

verlinke mal die gewählten Geräte auf die jeweilige Herstellerseite, dann schauen die Profis bestimmt drüber und hinterlassen ihre Kommentare.
 
AW: Neue Küche im Neubau -

Guten Morgen,

hier sind die Verlinkungen zu den geplanten Geräten.

Liebherr ICBP 3166

Backofen Neff Mega BP1672N

Kochfeld Neff TT4490

Microwelle CL 5460N

Geschirrspüler Miele G5885 SCVi XXL

Best Cirrus Deckenhaube

Was sagt Ihr denn zu der Frage, ob der Kühlschrank noch ausreichend geöffnet werden kann, wenn rechts 6 cm seitliche Verkleidung bis zur Wand sind?

Ich habe im ALNO Plan das bodentiefe Fenster eingesetzt und probehalber links noch einen zusätzlichen Schrank eingeplant sowie die Insel mit der Arbeitsplatte geändert. Was sagt Ihr dazu?

Geplant wurde im Küchenstudio übrigens eine Schüller "Gala". Was ist denn der Unterschied zwischen "Gala" und "Veneto" bei Schüller? Weiß das jemand?
LG Plani
 

Anhänge

  • 18.02.11 Blick nach rechts.jpg
    18.02.11 Blick nach rechts.jpg
    38 KB · Aufrufe: 133
  • 18.02.11 Grundriss.JPG
    18.02.11 Grundriss.JPG
    34 KB · Aufrufe: 134
  • 18.02.11 Blick von Speisekammer.jpg
    18.02.11 Blick von Speisekammer.jpg
    41,2 KB · Aufrufe: 144
  • 18.02.11 Blick nach links.jpg
    18.02.11 Blick nach links.jpg
    38,7 KB · Aufrufe: 127
  • 18.02.11 Blick gerade.jpg
    18.02.11 Blick gerade.jpg
    34,8 KB · Aufrufe: 127
  • 18.02.11 Blick von Terrasse.jpg
    18.02.11 Blick von Terrasse.jpg
    38,3 KB · Aufrufe: 127
Zuletzt bearbeitet von einem Moderator:
AW: Neue Küche im Neubau -

Edit: Text gelöscht. Habe im falschen thread geantwortet, sorry. (Ja ja, windows und seine Fenster...)
 

Ähnliche Beiträge

Neff Hausgeräte Ballerina Küchen Blum Bewegungstechnologie Weibel - Intelligente Küchenlüftung

Neff Spezial

Blum Zonenplaner

Weibel Abluft-Tuning

Weibel Abluft-Tuning
Zurück
Oben