Neue Küche im alten Haus

AW: Neue Küche im neuen Haus

Die genauen Maße dauern aber leider bis zum Wochenende. Vielleicht sollte ich euch auch mal den Raum als Baustelle fotografieren dann kann man sich das vielleicht auch noch besser vorstellen. Oder ist das quatsch?

MfG
 
AW: Neue Küche im neuen Haus

Hab das mal für die Küche gegooglet. Bin ja jetzt schon total gespannt. So was dummes das ich erst wieder am We ins Haus komme. Also dann bis zum We und schon mal vielen Dank für so viele neue Anregungen.

MfG
 
AW: Neue Küche im neuen Haus

Hallo,

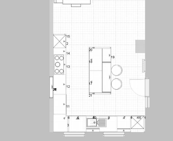
wie versprochen die neuen Maße und es folgen auch noch Bilder von der Baustelle zur besseren Orientierung.

LG
 
AW: Neue Küche im neuen Haus

Hallo,

ich habe die Maße auch im Alno Planer eingegeben damit Ihr einen leeren Raum zur Verfügung habt. Evtl. ob der Plan mit Flugzeugträger funktioniert?

LG
 
AW: Neue Küche im neuen Haus

Ich hatte vor ein paar Tagen schon mal eine Planung gemacht und habe die Maße jetzt angepasst. Das Nischenmaß des "toten" Fensters, stimmt nicht genau, aber das ist ja zu vernachlässigen.

Die Tür sitzt für diese Planung sehr ungünstig, deshalb ist sie nur als eine Stellprobe zu verstehen.
 

Anhänge

  • pizza1.jpg
    pizza1.jpg
    39 KB · Aufrufe: 99
  • pizza2.jpg
    pizza2.jpg
    34,8 KB · Aufrufe: 107
  • Pizza - conny.KPL
    3,9 KB · Aufrufe: 88
  • Pizza - conny.POS
    10,8 KB · Aufrufe: 102
  • pizza-grundriss.JPG
    pizza-grundriss.JPG
    18,7 KB · Aufrufe: 96
AW: Neue Küche im neuen Haus

Hallo,

vielen Dank für deine Stellprobe und deinen Vorschlag, aus diesem Blickwinkel haben wir es noch gar nicht betrachtet. Aber wenn wir die Küche als Eingangsbereich nutzen ist der Kochblock im Vordergrund ehr ein Hinderniss. Ich denke man empfindet den Block ehr als Wand und nicht als großzügigen Eingang.

LG
 
AW: Neue Küche im neuen Haus

Der Raum war ja erst ein wenig breiter und die Türposition etwas anders. Da war die Planung eigentlich ganz schön. Durch die veränderten Gegebenheiten, ist die Großzügigkeit leider verlorengegangen...:'(
 
AW: Neue Küche im neuen Haus

Auch einmal als Stellprobe, denn für mich spricht gegen einen Flugzeugträger, das im Küchenbereich durch das zugemauerte Fenster Stellfläche für Hochschränke fehlt.

Muss das Fenster unbedingt ein Blickfang werden?

Ich habe einmal das Fenster als Gestaltungselement gelassen. Dadurch hast du viel Arbeitsfläche zwischen Spüle und Herd. Eigentlich zu viel.
 

Anhänge

  • Pizza1_Mela.KPL
    3,9 KB · Aufrufe: 98
  • Pizza1_Mela.POS
    7,8 KB · Aufrufe: 93
  • Pizza1_Mela_Grundriss.JPG
    Pizza1_Mela_Grundriss.JPG
    33,6 KB · Aufrufe: 106
  • Pizza1_Mela_Insel.jpg
    Pizza1_Mela_Insel.jpg
    56,3 KB · Aufrufe: 90
  • Pizza1_Mela_Inselrück.jpg
    Pizza1_Mela_Inselrück.jpg
    63,6 KB · Aufrufe: 96
  • Pizza1_Mela_Kochfeld.jpg
    Pizza1_Mela_Kochfeld.jpg
    60,8 KB · Aufrufe: 94
  • Pizza1_Mela_Spüle.jpg
    Pizza1_Mela_Spüle.jpg
    52,9 KB · Aufrufe: 94
AW: Neue Küche im neuen Haus

.. sehe ich auch so, Mela über 120cm finde ich als Abstand zwischen Spüle & Herd schon sehr weit - das wird mühselig.
 
AW: Neue Küche im neuen Haus

Es ist wirklich sehr schwierig, in diesem Raum Hochschränke unterzubringen, ohne die Fensternische zuzustellen...:-\
 
AW: Neue Küche im neuen Haus

Hallo,
also das Fenster muss nicht unbedingt ein Blickfang werden, aber als Regal soll es auf jedenfalls erhalten bleiben.
Gruss
 
AW: Neue Küche im neuen Haus

Es wäre schön, wenn du zu den Planungen Stellung nehmen würdest und nicht nur bezüglich des Fensters antwortest.
 
AW: Neue Küche im neuen Haus

Waren doch nur Stellproben mit den falschen Massen. Bisher waren die Stellproben für die richtigen Masse alle zu nah an der Türe.
Gruss
 
AW: Neue Küche im neuen Haus

Tür versetzen oder Schiebetür auf der Flurseite, wäre wohl keine Option? :rose: :cool:
 

Ähnliche Beiträge

Neff Hausgeräte Ballerina Küchen Blum Bewegungstechnologie Weibel - Intelligente Küchenlüftung

Neff Spezial

Blum Zonenplaner

Weibel Abluft-Tuning

Weibel Abluft-Tuning
Zurück
Oben