coletrickle
Mitglied
- Beiträge
- 110
Küchenplanung für Einfamilienhaus
Hi liebe Community,
meine Verlobte und ich bauen demnächst ein Eigenheim. Stadtvilla mit knapp 140qm.
Demzufolge muss bzw. darf eine neue Küche ran.
In meiner letzten eigenen Wohnung hatte ich eine Ikea Bodbyn Küche. Diese hatte mich um die 3.000EUR gekostet.
Dazu kamen noch die Geräte (Siemens , NEFF und Villeroy Boch). Kostenpunkt damals knapp 4.000EUR.
Final hatte ich noch eine angepasste Holzarbeitsplatte für knapp 800EUR.
Die Küche war wirklich top und ich stets zufrieden, natürlich auch mit den Korpussen. Auch wenn man sagen muss Ikea kann nicht jedes Detail wie im Küchenstudio umsetzen. Dafür ist es aber auch bedeutend billiger.
Gerade im Vgl. zur jetzigen Küche (in Mietwohnung enthalten) vermisse ich diese ungemein.
Jetzt zum Plan:
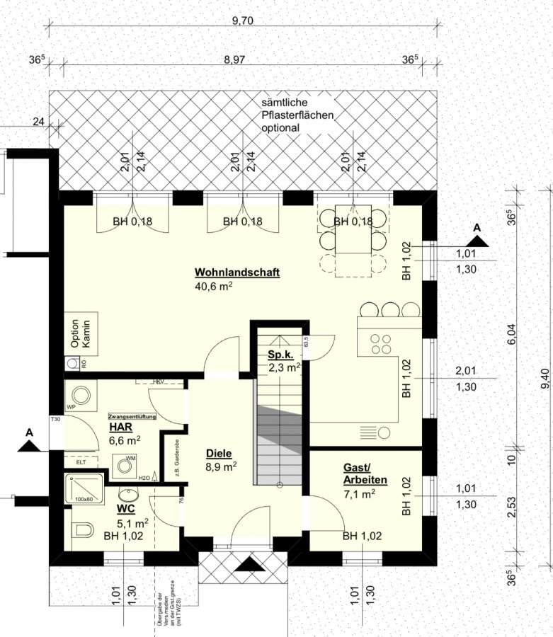
Wie auf den Bildern zu erkennen plane ich/planen wir eine L Form und eine Insel/Halbinsel.
Die Fronten sollen Voxtorp weiß matt und grau matt sein.
Bei den Hochschränken plane ich links bzw. rechts einen Siemens Kühlschrank und einen Gefrierschrank ein. Jeweils 177cm und IQ700. Gibt es hier etwas zu beachten?
In der Mitte einen IQ700 Backofen mit Pyrolyse und Teleskopauszug. Daneben eine integrierte Mikrowelle (ebenfalls Siemens) und um ein stimmiges Gesamtbild zu erzeugen, eine Wärmeschublade (Symmetrie).
Bei der langen Küchenzeile soll eine Volleroy & Boch Subway Spüle zum Einsatz kommen. Die Position ist variabel, siehe auch Bilder (einmal mittig, einmal eher rechts). Generell ist der Grundriss noch nicht final und veränderbar. Grundlegend gefällt er uns. Unter der Spüle will ich wie damals gleich die Müllbehälter integrieren. Neben der Spüle kommt dann ein Siemens XXL Spüler mit Vario Scharnier zum Einsatz (zwingend notwendig bei Ikea Metod).
Die Insel soll aus 3x60x60cm und 3x60x37cm Unterbauschränken bestehen. In die Mitte des 60x60cm Schranks soll dann ein aufgesetztes Neff Induktionsfeld kommen. Breite 70cm. Mehr ist bei Ikea schwer zu realisieren. Die Insel soll dann wie ein „verkehrtes“ U durch die Arbeitsplatte abgeschlossen werden, also auch an den Seiten. An der Seite der 37er Unterbauschränke plane ich einen Überhang von knapp 25cm. Ist aktuell ja „in Mode“. Ist meines Erachtens, eine sauber und einfach Lösung die Insel zu verkleiden. Dazu gibt’s dann noch eine Umluft Inselhaube von Falmec (Lumina) oder von Siemens.
Ebenfalls plane ich die Hochschränke seitlich und oben damit zu verkleiden, also einen Rahmen zu setzen.
Nach bisheriger Kalkulation kosten die Korpusse bei Ikea um die 5.000 EUR. Dazu kommen die Geräte, welche ca. 8.000EUR kosten. Dazu noch die Arbeitsplatte und ich bin mit 15.000EUR gut beziffert bzw. habe ausreichend Puffer. Gerade im Vgl. zum Küchenstudio ein toller Preis.
Was sagt ihr zu meiner Planung, zu der Anordnung der Jeweiligen Korpusse/Geräte.
Bin für Ratschläge dankbar.
LG Cole
Checkliste zur Küchenplanung
Personenkriterien und Ergonomie
Anzahl Personen im Haushalt: 3
Davon Kinder: 1
Körpergrößen aller Hauptbenutzer in cm (wegen Arbeitshöhe ): 175
Welche Arbeitshöhe ist angedacht (in cm)?: 90
Gebäudekriterien
Art des Gebäudes: Neu-/Umbau > Planänderungen möglich
Brüstungshöhe des Fensters (in cm):
Fensterhöhe (in cm):
Raumhöhe in cm:
Heizung: Fußbodenheizung
Sanitäranschlüsse: vollkommen variabel
Einbaugerätekriterien
Ausführung Kühlgerät: Integriert im Hochschrank (60cm)
Einbaukühlgerät Größe: 178cm
Ausführung Tiefkühl (TK)-Gerät: Eigenständiges Gerät bis 178 cm Höhe
Dunstabzugshaube: Umluft
Hochgebauter Backofen : ja
Geplante Heißgeräte: Einbaumikrowelle, Backofen
Hochgebauter Geschirrspüler : nein
Art des Kochfeldes: Induktion
Kochfeldbreite (ca. in cm): 70-80cm
Sitzmöglichkeiten
Sitzmöglichkeit in der Küche / im Küchenbereich: Überstehende Arbeitsplatte
Sitzmöglichkeit: Für wieviel Personen?: nein
Sitzmöglichkeit: Tisch - wenn gesonderter Tisch oder offene Küche: Vorhandener Tisch
Gewünschte oder vorhandene Tischgröße: 180x90cm
Wofür soll der Sitzplatz in der Küche genutzt werden und wie häufig:
Stauraumplanung
Was steht auf der Arbeitsplatte oder soll dort stehen?: Kaffeevollautomat, Thermomix, Toaster, Brotbehälter
Welche weiteren Küchenmaschinen müssen in der Küche untergebracht werden: N. a.
Was soll in der Küche außer den Standards untergebracht werden: Geschirr komplett (nichts in Ess-/Wohnzimmer)
Welchen Stauraum gibt es sonst noch: Speisekammer, Hauswirtschaftsraum
Kochgewohnheiten
Was/wie wird gekocht? (Alltagsküche, Menüs, Snacks usw): Alltagsküche
Wie häufig wird gekocht: (fast) täglich 1x warm
Wird alleine gekocht? Oder auch gemeinsam? Mit und für Gäste?: meist alleine
Spülen und Müll
Spülenform: 1 Becken mit Abtropffläche
Welche Mülltrennung soll in der Küche vorgehalten werden: Altpapier, Plastik, Restmüll
Sonstiges
Steht schon ein Küchenhersteller fest oder wird bevorzugt: Ikea
Steht schon ein Gerätehersteller fest oder wird bevorzugt: Siemens und Neff
Küchenstil: Grifflose Küche
Was stört an der bisherigen Küche und was soll die neue Küche unbedingt können? Warum?:
Preisvorstellung (Budget): 15.000
Angehängte Dateien
Hi liebe Community,
meine Verlobte und ich bauen demnächst ein Eigenheim. Stadtvilla mit knapp 140qm.
Demzufolge muss bzw. darf eine neue Küche ran.
In meiner letzten eigenen Wohnung hatte ich eine Ikea Bodbyn Küche. Diese hatte mich um die 3.000EUR gekostet.
Dazu kamen noch die Geräte (Siemens , NEFF und Villeroy Boch). Kostenpunkt damals knapp 4.000EUR.
Final hatte ich noch eine angepasste Holzarbeitsplatte für knapp 800EUR.
Die Küche war wirklich top und ich stets zufrieden, natürlich auch mit den Korpussen. Auch wenn man sagen muss Ikea kann nicht jedes Detail wie im Küchenstudio umsetzen. Dafür ist es aber auch bedeutend billiger.
Gerade im Vgl. zur jetzigen Küche (in Mietwohnung enthalten) vermisse ich diese ungemein.
Jetzt zum Plan:
Wie auf den Bildern zu erkennen plane ich/planen wir eine L Form und eine Insel/Halbinsel.
Die Fronten sollen Voxtorp weiß matt und grau matt sein.
Bei den Hochschränken plane ich links bzw. rechts einen Siemens Kühlschrank und einen Gefrierschrank ein. Jeweils 177cm und IQ700. Gibt es hier etwas zu beachten?
In der Mitte einen IQ700 Backofen mit Pyrolyse und Teleskopauszug. Daneben eine integrierte Mikrowelle (ebenfalls Siemens) und um ein stimmiges Gesamtbild zu erzeugen, eine Wärmeschublade (Symmetrie).
Bei der langen Küchenzeile soll eine Volleroy & Boch Subway Spüle zum Einsatz kommen. Die Position ist variabel, siehe auch Bilder (einmal mittig, einmal eher rechts). Generell ist der Grundriss noch nicht final und veränderbar. Grundlegend gefällt er uns. Unter der Spüle will ich wie damals gleich die Müllbehälter integrieren. Neben der Spüle kommt dann ein Siemens XXL Spüler mit Vario Scharnier zum Einsatz (zwingend notwendig bei Ikea Metod).
Die Insel soll aus 3x60x60cm und 3x60x37cm Unterbauschränken bestehen. In die Mitte des 60x60cm Schranks soll dann ein aufgesetztes Neff Induktionsfeld kommen. Breite 70cm. Mehr ist bei Ikea schwer zu realisieren. Die Insel soll dann wie ein „verkehrtes“ U durch die Arbeitsplatte abgeschlossen werden, also auch an den Seiten. An der Seite der 37er Unterbauschränke plane ich einen Überhang von knapp 25cm. Ist aktuell ja „in Mode“. Ist meines Erachtens, eine sauber und einfach Lösung die Insel zu verkleiden. Dazu gibt’s dann noch eine Umluft Inselhaube von Falmec (Lumina) oder von Siemens.
Ebenfalls plane ich die Hochschränke seitlich und oben damit zu verkleiden, also einen Rahmen zu setzen.
Nach bisheriger Kalkulation kosten die Korpusse bei Ikea um die 5.000 EUR. Dazu kommen die Geräte, welche ca. 8.000EUR kosten. Dazu noch die Arbeitsplatte und ich bin mit 15.000EUR gut beziffert bzw. habe ausreichend Puffer. Gerade im Vgl. zum Küchenstudio ein toller Preis.
Was sagt ihr zu meiner Planung, zu der Anordnung der Jeweiligen Korpusse/Geräte.
Bin für Ratschläge dankbar.
LG Cole
Checkliste zur Küchenplanung
Personenkriterien und Ergonomie
Anzahl Personen im Haushalt: 3
Davon Kinder: 1
Körpergrößen aller Hauptbenutzer in cm (wegen Arbeitshöhe ): 175
Welche Arbeitshöhe ist angedacht (in cm)?: 90
Gebäudekriterien
Art des Gebäudes: Neu-/Umbau > Planänderungen möglich
Brüstungshöhe des Fensters (in cm):
Fensterhöhe (in cm):
Raumhöhe in cm:
Heizung: Fußbodenheizung
Sanitäranschlüsse: vollkommen variabel
Einbaugerätekriterien
Ausführung Kühlgerät: Integriert im Hochschrank (60cm)
Einbaukühlgerät Größe: 178cm
Ausführung Tiefkühl (TK)-Gerät: Eigenständiges Gerät bis 178 cm Höhe
Dunstabzugshaube: Umluft
Hochgebauter Backofen : ja
Geplante Heißgeräte: Einbaumikrowelle, Backofen
Hochgebauter Geschirrspüler : nein
Art des Kochfeldes: Induktion
Kochfeldbreite (ca. in cm): 70-80cm
Sitzmöglichkeiten
Sitzmöglichkeit in der Küche / im Küchenbereich: Überstehende Arbeitsplatte
Sitzmöglichkeit: Für wieviel Personen?: nein
Sitzmöglichkeit: Tisch - wenn gesonderter Tisch oder offene Küche: Vorhandener Tisch
Gewünschte oder vorhandene Tischgröße: 180x90cm
Wofür soll der Sitzplatz in der Küche genutzt werden und wie häufig:
Stauraumplanung
Was steht auf der Arbeitsplatte oder soll dort stehen?: Kaffeevollautomat, Thermomix, Toaster, Brotbehälter
Welche weiteren Küchenmaschinen müssen in der Küche untergebracht werden: N. a.
Was soll in der Küche außer den Standards untergebracht werden: Geschirr komplett (nichts in Ess-/Wohnzimmer)
Welchen Stauraum gibt es sonst noch: Speisekammer, Hauswirtschaftsraum
Kochgewohnheiten
Was/wie wird gekocht? (Alltagsküche, Menüs, Snacks usw): Alltagsküche
Wie häufig wird gekocht: (fast) täglich 1x warm
Wird alleine gekocht? Oder auch gemeinsam? Mit und für Gäste?: meist alleine
Spülen und Müll
Spülenform: 1 Becken mit Abtropffläche
Welche Mülltrennung soll in der Küche vorgehalten werden: Altpapier, Plastik, Restmüll
Sonstiges
Steht schon ein Küchenhersteller fest oder wird bevorzugt: Ikea
Steht schon ein Gerätehersteller fest oder wird bevorzugt: Siemens und Neff
Küchenstil: Grifflose Küche
Was stört an der bisherigen Küche und was soll die neue Küche unbedingt können? Warum?:
Preisvorstellung (Budget): 15.000
Angehängte Dateien
Anhänge
-
D17D0C61-21D8-4B49-BF63-34016FB6794F.jpeg90,8 KB · Aufrufe: 321 -
71D4C0EC-F79B-4172-A845-0CD39F44FD77.jpeg70,2 KB · Aufrufe: 305 -
12DC4EE1-91B8-491E-AED6-04B308547BD3.jpeg68,7 KB · Aufrufe: 282 -
6CFE207D-A7B0-4EEC-B4DE-87C458394FD4.jpeg75,8 KB · Aufrufe: 346 -
C91D8FF0-F3E4-4717-962F-55ECB766A9A6.jpeg142,1 KB · Aufrufe: 351
