Glarios
Mitglied
- Beiträge
- 14
Titel des Themas: Küchenplanung im geplanten Einfamilienhaus
Hallo zusammen,
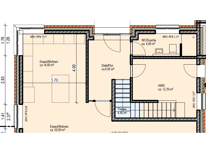
wir stehen kurz vor dem Abschluss unserer Planung, bzw. der Beauftragung des Generalunternehmers für unsere 170 qm Stadtvilla.
Bei der Küchenplanung sind wir uns noch nicht 100%ig sicher, daher würden wir uns über Anmerkungen oder neue Vorschläge freuen.
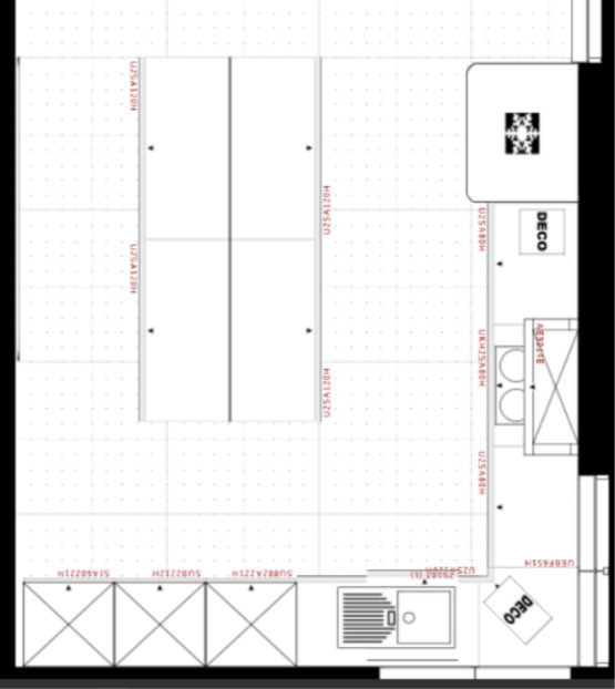
Die Variante im Anhang gefällt uns gut, weil sie viel Bewegungsfläche bietet und wenig Ecken (=verlorener Stauraum) hat. Nicht so gut gefällt uns, dass die freie Wand nicht genutzt wird. Die Alternativ-Planung nutzt zwar die freie Wand, bietet aber in der Summe kaum mehr Stauraum, zudem ist die Halb-Insel eher klein.
Die Küche soll möglichst pflegeleicht sein, daher die Fronten in hochglanz weiß. Die Griffe sollen als Griffleiste ausgeführt werden (so weit wir das beurteilen können der beste Kompromiss aus Optik und Alltagstauglichkeit).
Checkliste zur Küchenplanung
Personenkriterien und Ergonomie
Anzahl Personen im Haushalt: 2
Davon Kinder: keine
Körpergrößen aller Hauptbenutzer in cm (wegen Arbeitshöhe ): 180, 190
Welche Arbeitshöhe ist angedacht (in cm)?: 96
Gebäudekriterien
Art des Gebäudes: Neu-/Umbau > Planänderungen möglich
Brüstungshöhe des Fensters (in cm): 96
Fensterhöhe (in cm): ?
Raumhöhe in cm: 267
Heizung: Fußbodenheizung
Sanitäranschlüsse: vollkommen variabel
Einbaugerätekriterien
Ausführung Kühlgerät: Side by Side (ca. 90cm breit)
Einbaukühlgerät Größe: N. a.
Ausführung Tiefkühl (TK)-Gerät: Nicht erforderlich bzw. steht woanders
Dunstabzugshaube: Umluft
Hochgebauter Backofen : ja
Geplante Heißgeräte: Backofen
Hochgebauter Geschirrspüler : ja
Art des Kochfeldes: Induktion
Kochfeldbreite (ca. in cm): 80
Sitzmöglichkeiten
Sitzmöglichkeit in der Küche / im Küchenbereich: Keine
Sitzmöglichkeit: Für wieviel Personen?: nein
Sitzmöglichkeit: Tisch - wenn gesonderter Tisch oder offene Küche: Keiner
Gewünschte oder vorhandene Tischgröße:
Wofür soll der Sitzplatz in der Küche genutzt werden und wie häufig:
Stauraumplanung
Was steht auf der Arbeitsplatte oder soll dort stehen?: Kaffeevollautomat, Thermomix, Toaster
Welche weiteren Küchenmaschinen müssen in der Küche untergebracht werden: Küchenmaschine, Wasserkocher, Pürierstab, Eierkocher
Was soll in der Küche außer den Standards untergebracht werden: ALLE Vorräte, Geschirr komplett (nichts in Ess-/Wohnzimmer)
Welchen Stauraum gibt es sonst noch: Geschirr/Gläserschrank im Wohn-/Esszimmer, Hauswirtschaftsraum
Kochgewohnheiten
Was/wie wird gekocht? (Alltagsküche, Menüs, Snacks usw): Meistens relativ fettarme Gerichte, die nicht viel Aufwand erfordern.
Wie häufig wird gekocht: (fast) täglich 1x warm
Wird alleine gekocht? Oder auch gemeinsam? Mit und für Gäste?: 50% alleine, 50% zu zweit
Spülen und Müll
Spülenform: 1 Becken mit Abtropffläche
Welche Mülltrennung soll in der Küche vorgehalten werden: Altpapier, Biomüll, Gelber Sack Müll, Restmüll
Sonstiges
Steht schon ein Küchenhersteller fest oder wird bevorzugt: geplant: Häcker
Steht schon ein Gerätehersteller fest oder wird bevorzugt: geplant: AEG (Herd und Dunstabzug), Siemens (Backofen und Spülmaschine)
Küchenstil: Klassisch
Was stört an der bisherigen Küche und was soll die neue Küche unbedingt können? Warum?: Küche Mietswohnung: zu klein, Arbeitshöhe zu gering
Preisvorstellung (Budget): 12000
Angehängte Dateien
Hallo zusammen,
wir stehen kurz vor dem Abschluss unserer Planung, bzw. der Beauftragung des Generalunternehmers für unsere 170 qm Stadtvilla.
Bei der Küchenplanung sind wir uns noch nicht 100%ig sicher, daher würden wir uns über Anmerkungen oder neue Vorschläge freuen.
Die Variante im Anhang gefällt uns gut, weil sie viel Bewegungsfläche bietet und wenig Ecken (=verlorener Stauraum) hat. Nicht so gut gefällt uns, dass die freie Wand nicht genutzt wird. Die Alternativ-Planung nutzt zwar die freie Wand, bietet aber in der Summe kaum mehr Stauraum, zudem ist die Halb-Insel eher klein.
Die Küche soll möglichst pflegeleicht sein, daher die Fronten in hochglanz weiß. Die Griffe sollen als Griffleiste ausgeführt werden (so weit wir das beurteilen können der beste Kompromiss aus Optik und Alltagstauglichkeit).
Checkliste zur Küchenplanung
Personenkriterien und Ergonomie
Anzahl Personen im Haushalt: 2
Davon Kinder: keine
Körpergrößen aller Hauptbenutzer in cm (wegen Arbeitshöhe ): 180, 190
Welche Arbeitshöhe ist angedacht (in cm)?: 96
Gebäudekriterien
Art des Gebäudes: Neu-/Umbau > Planänderungen möglich
Brüstungshöhe des Fensters (in cm): 96
Fensterhöhe (in cm): ?
Raumhöhe in cm: 267
Heizung: Fußbodenheizung
Sanitäranschlüsse: vollkommen variabel
Einbaugerätekriterien
Ausführung Kühlgerät: Side by Side (ca. 90cm breit)
Einbaukühlgerät Größe: N. a.
Ausführung Tiefkühl (TK)-Gerät: Nicht erforderlich bzw. steht woanders
Dunstabzugshaube: Umluft
Hochgebauter Backofen : ja
Geplante Heißgeräte: Backofen
Hochgebauter Geschirrspüler : ja
Art des Kochfeldes: Induktion
Kochfeldbreite (ca. in cm): 80
Sitzmöglichkeiten
Sitzmöglichkeit in der Küche / im Küchenbereich: Keine
Sitzmöglichkeit: Für wieviel Personen?: nein
Sitzmöglichkeit: Tisch - wenn gesonderter Tisch oder offene Küche: Keiner
Gewünschte oder vorhandene Tischgröße:
Wofür soll der Sitzplatz in der Küche genutzt werden und wie häufig:
Stauraumplanung
Was steht auf der Arbeitsplatte oder soll dort stehen?: Kaffeevollautomat, Thermomix, Toaster
Welche weiteren Küchenmaschinen müssen in der Küche untergebracht werden: Küchenmaschine, Wasserkocher, Pürierstab, Eierkocher
Was soll in der Küche außer den Standards untergebracht werden: ALLE Vorräte, Geschirr komplett (nichts in Ess-/Wohnzimmer)
Welchen Stauraum gibt es sonst noch: Geschirr/Gläserschrank im Wohn-/Esszimmer, Hauswirtschaftsraum
Kochgewohnheiten
Was/wie wird gekocht? (Alltagsküche, Menüs, Snacks usw): Meistens relativ fettarme Gerichte, die nicht viel Aufwand erfordern.
Wie häufig wird gekocht: (fast) täglich 1x warm
Wird alleine gekocht? Oder auch gemeinsam? Mit und für Gäste?: 50% alleine, 50% zu zweit
Spülen und Müll
Spülenform: 1 Becken mit Abtropffläche
Welche Mülltrennung soll in der Küche vorgehalten werden: Altpapier, Biomüll, Gelber Sack Müll, Restmüll
Sonstiges
Steht schon ein Küchenhersteller fest oder wird bevorzugt: geplant: Häcker
Steht schon ein Gerätehersteller fest oder wird bevorzugt: geplant: AEG (Herd und Dunstabzug), Siemens (Backofen und Spülmaschine)
Küchenstil: Klassisch
Was stört an der bisherigen Küche und was soll die neue Küche unbedingt können? Warum?: Küche Mietswohnung: zu klein, Arbeitshöhe zu gering
Preisvorstellung (Budget): 12000
Angehängte Dateien
Anhänge
-
Grundriss Küche.JPG36,9 KB · Aufrufe: 591 -
Grundriss EG.JPG112,4 KB · Aufrufe: 599 -
Küchenplanung Insel U.pdf208,8 KB · Aufrufe: 429
-
Küchenplanung Insel.pdf207,9 KB · Aufrufe: 439
-
PLAN Insel.KPL3,6 KB · Aufrufe: 346
-
PLAN Insel.POS7,3 KB · Aufrufe: 373
-
PLAN U.KPL3,6 KB · Aufrufe: 361
-
PLAN U.POS7,7 KB · Aufrufe: 379
