seniore_rossi
Mitglied
- Beiträge
- 1
Hallo liebes KüchenForum,
wie planen aktuell unser Bauvorhaben und unser Häuslebauer, benötig dafür nun so langsam unsere Küchenplanung .
Wir haben bereits ersten Kontakt mit KFB und wir hoffen Ihr könnt uns bei der Planung Hilfestellung, Anregungen und Tipps mit auf dem Weg geben und bedanken uns im Voraus für Eure Unterstützung.
MfG
seniore_rossi
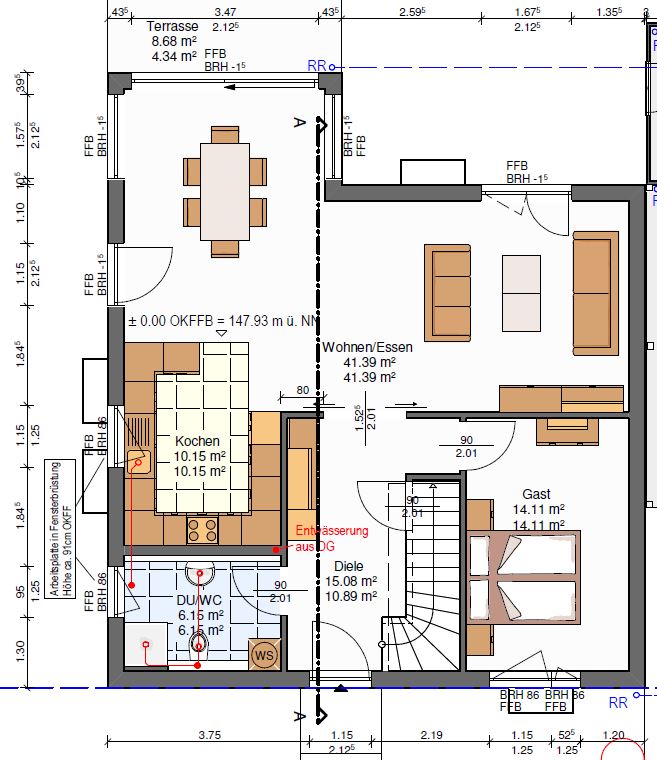
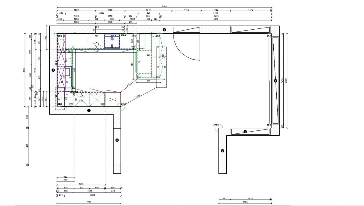
Checkliste zur Küchenplanung
Anzahl Personen im Haushalt: 2
Davon Kinder?: 1-2
Art des Gebäudes?: Neu-/Umbau, Planänderungen möglich
Körpergrössen aller Hauptbenutzer (wegen Arbeitshöhe ) in cm: 165 und 170 cm
Brüstungshöhe des Fensters (in cm): 91
Fensterhöhe (in cm): 125 cm
Raumhöhe in cm: 250 cm
Heizung: Fussbodenheizung
Sanitäranschlüsse: vollkommen variabel
Ausführung Kühlgerät: Integriert im Hochschrank (60cm)
Kühlgerät Größe: bis 178 cm Höhe
Ausführung Tiefkühl (TK)-Gerät: Im Kühlschrank ab 3 Schubladen unten
Dunstabzugshaube: Umluft
Backofen etc. hochgebaut?: Ja
Hochgebauter Geschirrspüler ?: Nein
Kochfeldart: Induktion Bora
Kochfeldbreite ca. (in cm)?: 90 cm
Spülenform: 1 Becken ohne Abtropffläche
Geplante Heißgeräte: Einbaumikrowelle, Wärmeschublade, Dampfbackofen (DGC) ohne Wasseranschluß
Küchenstil: Grifflos
Sitzmöglichkeit in der Küche / im Küchenbereich: Tresen in Barhöhe
Sitzmöglichkeit: Für wieviel Personen?: für 2 Personen
Sitzmöglichkeit: Tisch - wenn gesonderter Tisch oder offene Küche: Wird nach Bedarf neu gekauft
Gewünschte o. vorhandene Tischgröße:
Wofür soll der Sitzplatz in der Küche genutzt werden? Wie häufig?: Frühstück- Kommunikationstheke
Welche Arbeitshöhe ist angedacht (in cm)?: 91 cm
Was steht auf der Arbeitsplatte oder soll dort stehen?: Kaffeevollautomat, Wasserkocher, Messerblock, Küchenmaschine, Obstschale
Welche weiteren Küchenmaschinen müssen in der Küche untergebracht werden?: Toaster, Handrührgerät, Mixer, Pürierstab, Eierkocher
Was soll in der Küche außer den Standards untergebracht werden?: Getränkekisten, Geschirr komplett (nichts in Ess-/Wohnzimmer)
Welchen Stauraum gibt es sonst noch?: Keller
Was/wie wird gekocht? (Alltagsküche, Menüs, Snacks usw):
Wie häufig wird gekocht?: (fast) täglich 1x warm
Wird alleine gekocht? Oder auch gemeinsam? Mit und für Gäste?: Je nach Bedarf, Situation und Zeit alleine oder auch gerne gemeinsam,
Was stört an der bisherigen Küche und was soll die neue Küche unbedingt können? Warum?: Bisherige Küche ist klein und dadurch macht das zusammenkochen kein Spaß
Welche Mülltrennung soll in der Küche vorgehalten werden?: Altpapier, Biomüll, Gelber Sack Müll, Restmüll
Steht schon ein Küchenhersteller fest oder wird bevorzugt?: Häcker Classic Laser brillant oder Schüller Fino, da sind wir offen
Steht schon ein Gerätehersteller fest oder wird bevorzugt?: Siemens oder Bosch
Preisvorstellung (Budget): max. 15.000,-
wie planen aktuell unser Bauvorhaben und unser Häuslebauer, benötig dafür nun so langsam unsere Küchenplanung .
Wir haben bereits ersten Kontakt mit KFB und wir hoffen Ihr könnt uns bei der Planung Hilfestellung, Anregungen und Tipps mit auf dem Weg geben und bedanken uns im Voraus für Eure Unterstützung.
MfG
seniore_rossi
Checkliste zur Küchenplanung
Anzahl Personen im Haushalt: 2
Davon Kinder?: 1-2
Art des Gebäudes?: Neu-/Umbau, Planänderungen möglich
Körpergrössen aller Hauptbenutzer (wegen Arbeitshöhe ) in cm: 165 und 170 cm
Brüstungshöhe des Fensters (in cm): 91
Fensterhöhe (in cm): 125 cm
Raumhöhe in cm: 250 cm
Heizung: Fussbodenheizung
Sanitäranschlüsse: vollkommen variabel
Ausführung Kühlgerät: Integriert im Hochschrank (60cm)
Kühlgerät Größe: bis 178 cm Höhe
Ausführung Tiefkühl (TK)-Gerät: Im Kühlschrank ab 3 Schubladen unten
Dunstabzugshaube: Umluft
Backofen etc. hochgebaut?: Ja
Hochgebauter Geschirrspüler ?: Nein
Kochfeldart: Induktion Bora
Kochfeldbreite ca. (in cm)?: 90 cm
Spülenform: 1 Becken ohne Abtropffläche
Geplante Heißgeräte: Einbaumikrowelle, Wärmeschublade, Dampfbackofen (DGC) ohne Wasseranschluß
Küchenstil: Grifflos
Sitzmöglichkeit in der Küche / im Küchenbereich: Tresen in Barhöhe
Sitzmöglichkeit: Für wieviel Personen?: für 2 Personen
Sitzmöglichkeit: Tisch - wenn gesonderter Tisch oder offene Küche: Wird nach Bedarf neu gekauft
Gewünschte o. vorhandene Tischgröße:
Wofür soll der Sitzplatz in der Küche genutzt werden? Wie häufig?: Frühstück- Kommunikationstheke
Welche Arbeitshöhe ist angedacht (in cm)?: 91 cm
Was steht auf der Arbeitsplatte oder soll dort stehen?: Kaffeevollautomat, Wasserkocher, Messerblock, Küchenmaschine, Obstschale
Welche weiteren Küchenmaschinen müssen in der Küche untergebracht werden?: Toaster, Handrührgerät, Mixer, Pürierstab, Eierkocher
Was soll in der Küche außer den Standards untergebracht werden?: Getränkekisten, Geschirr komplett (nichts in Ess-/Wohnzimmer)
Welchen Stauraum gibt es sonst noch?: Keller
Was/wie wird gekocht? (Alltagsküche, Menüs, Snacks usw):
Wie häufig wird gekocht?: (fast) täglich 1x warm
Wird alleine gekocht? Oder auch gemeinsam? Mit und für Gäste?: Je nach Bedarf, Situation und Zeit alleine oder auch gerne gemeinsam,
Was stört an der bisherigen Küche und was soll die neue Küche unbedingt können? Warum?: Bisherige Küche ist klein und dadurch macht das zusammenkochen kein Spaß
Welche Mülltrennung soll in der Küche vorgehalten werden?: Altpapier, Biomüll, Gelber Sack Müll, Restmüll
Steht schon ein Küchenhersteller fest oder wird bevorzugt?: Häcker Classic Laser brillant oder Schüller Fino, da sind wir offen
Steht schon ein Gerätehersteller fest oder wird bevorzugt?: Siemens oder Bosch
Preisvorstellung (Budget): max. 15.000,-
Anhänge
Zuletzt bearbeitet:
