asraja
Mitglied
- Beiträge
- 26
Hallo,
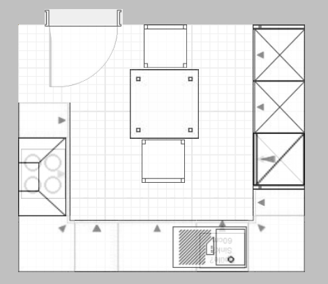
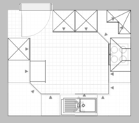
begeistert habe ich mir hier viele Beiträge und Fotos angesehen und hoffe, dass vielleicht auch jemand für meine Küche noch ein paar Ideen hat. Ich habe das Problem, dass es eine recht kleine Küche (3,20x3,30) mit viel Dachschräge (auf der Skizze sieht man gestrichelt die 2m Linie, wo die Schräge ansetzt) ist und ich parallel auch ein paar "Träume" habe - bislang kriege ich nicht alles unter
Außerdem handelt es sich um einen Neubau und der Estrich und Fußboden liegen noch nicht, so dass ich den Kniestock nicht genau definieren kann, was alles komplizierter macht - dennoch muss ich kommende Woche sagen, wo ich die Anschlüsse für Herd und Wasser möchte!
Wie unten angegeben würde ich mich freuen, wenn sowohl erhöhter Geschirrspüler (ist für mich ein völlig neues Thema, aber ich bin total begeistert von der Idee) als auch erhöhter Backofen möglich wären. Kühlschrank gerne als Kombi mit Gefrierfach unten und 2-3 Fächer, aber da bin ich völlig flexibel. Wie dem auch sei: da ich mit 165cm nicht die Größte bin, dürfen die Geräte nicht alle übereinander stehen, viele Hochschränke sind widerum wegen der Dachschräge nicht möglich. Gleichzeitig wäre auf Grund der Wohnung unterm Dach eine Abluft-Dunstesse möglich - allerdings nur an der linken Wand (also wenn man in die Küche reinkommt links).
Ob der Kühlschrank im Schrank integriert oder freistehen ist, ist mir egal! Da ich jedoch etwas angeben musste, habe ich ihn als freistehend angegeben - evtl. ist das einfacher?
Weiterhin ist mir genügend Arbeitsfläche zum Schneiden, Töpfe abstellen, Plätzchen backen etc. wichtig.
Eine Essecke wäre schön (gern als Tresen oder ähnliches), ist aber überhaupt kein Muss - ich verzichte gerne, wenn dafür der Rest realisierbar ist
Was ich mir noch schwierig vorstelle ist der Eingangsbereich mit der "versetzten" Tür: Nur 20 cm dahinter bedeutet, dass man auf jeden Schrank, der an dieser Wand steht, "draufschauen" würde - vorstellen kann ich mir das nicht?! Dennoch habe ich mich auch mal in dem Alno -Planer versucht und mit beigefügt.
Was meint ihr? Hat jemand Ideen? Bin für jegliche Hilfe dankbar
Checkliste zur Küchenplanung von asraja
Anzahl Personen im Haushalt : 2
Davon Kinder? : keine
Körpergrössen aller Hauptbenutzer (wegen Arbeitshöhe ) in cm : 165
Art des Gebäudes? : Neu-/Umbau, Planänderungen möglich
Brüstungshöhe des Fensters (in cm) : unbekannt
Fensterhöhe (in cm) :
Raumhöhe in cm: : 250
Heizung : Fussbodenheizung
Sanitäranschlüsse : vollkommen variabel
Ausführung Kühlgerät? : Stand-Alone bis 60 cm Breite
Kühlgerät Größe : noch unbekannt
Ausführung Tiefkühl (TK)-Gerät : Nicht erforderlich bzw. steht woanders
Dunstabzugshaube? : Abluft
Hochgebauter Backofen ? : Wenn möglich
Hochgebauter Geschirrspüler ? : wenn möglich
Kochfeldart? : Induktion
Kochfeldbreite ca. (in cm)? : 60
Spülenform: : Noch nicht festgelegt
Weitere geplante Heißgeräte : Standmikrowelle
Küchenstil? : modern
Sitzmöglichkeit in der Küche / im Küchenbereich als : Überstehende Arbeitsplatte
Sitzmöglichkeit: Für wieviel Personen? : für 2 Personen
Sitzmöglichkeit: Tisch - wenn gesonderter Tisch oder offene Küche : Wird nach Bedarf neu gekauft
Gewünschte o. vorhandene Tischgröße : -
Wofür soll der Sitzplatz in der Küche genutzt werden? Wie häufig? : Frühstück
Welche Arbeitshöhe ist angedacht (in cm)? : 91 cm
Was steht auf der Arbeitsplatte oder soll dort stehen? : Wasserkocher, Messerblock, Toaster, Obstschale
Welche weiteren Küchenmaschinen müssen in der Küche untergebracht werden? : Handrührgerät, Mixer, Pürierstab, Eierkocher
Was soll in der Küche außer den Standards untergebracht werden? : Sonstiges (evtl. im Beitragstext benennen)
Welchen Stauraum gibt es sonst noch? : Geschirr/Gläserschrank im Wohn-/Esszimmer, Keller
Was/wie wird gekocht? (Alltagsküche, Menüs, Snacks usw) : warme Küche auf dem Herd und im Ofen
Wie häufig wird gekocht? : (fast) täglich 1x warm
Wird alleine gekocht? Oder auch gemeinsam? Mit und für Gäste? : mal so mal so
Was stört an der bisherigen Küche und was soll die neue Küche unbedingt können? Warum? : es gibt keine
Steht schon ein Küchenhersteller fest oder wird bevorzugt? : nein
Steht schon ein Gerätehersteller fest oder wird bevorzugt? : nein
Preisvorstellung (Budget) : bis 10.000,-
begeistert habe ich mir hier viele Beiträge und Fotos angesehen und hoffe, dass vielleicht auch jemand für meine Küche noch ein paar Ideen hat. Ich habe das Problem, dass es eine recht kleine Küche (3,20x3,30) mit viel Dachschräge (auf der Skizze sieht man gestrichelt die 2m Linie, wo die Schräge ansetzt) ist und ich parallel auch ein paar "Träume" habe - bislang kriege ich nicht alles unter
Außerdem handelt es sich um einen Neubau und der Estrich und Fußboden liegen noch nicht, so dass ich den Kniestock nicht genau definieren kann, was alles komplizierter macht - dennoch muss ich kommende Woche sagen, wo ich die Anschlüsse für Herd und Wasser möchte!
Wie unten angegeben würde ich mich freuen, wenn sowohl erhöhter Geschirrspüler (ist für mich ein völlig neues Thema, aber ich bin total begeistert von der Idee) als auch erhöhter Backofen möglich wären. Kühlschrank gerne als Kombi mit Gefrierfach unten und 2-3 Fächer, aber da bin ich völlig flexibel. Wie dem auch sei: da ich mit 165cm nicht die Größte bin, dürfen die Geräte nicht alle übereinander stehen, viele Hochschränke sind widerum wegen der Dachschräge nicht möglich. Gleichzeitig wäre auf Grund der Wohnung unterm Dach eine Abluft-Dunstesse möglich - allerdings nur an der linken Wand (also wenn man in die Küche reinkommt links).
Ob der Kühlschrank im Schrank integriert oder freistehen ist, ist mir egal! Da ich jedoch etwas angeben musste, habe ich ihn als freistehend angegeben - evtl. ist das einfacher?
Weiterhin ist mir genügend Arbeitsfläche zum Schneiden, Töpfe abstellen, Plätzchen backen etc. wichtig.
Eine Essecke wäre schön (gern als Tresen oder ähnliches), ist aber überhaupt kein Muss - ich verzichte gerne, wenn dafür der Rest realisierbar ist
Was ich mir noch schwierig vorstelle ist der Eingangsbereich mit der "versetzten" Tür: Nur 20 cm dahinter bedeutet, dass man auf jeden Schrank, der an dieser Wand steht, "draufschauen" würde - vorstellen kann ich mir das nicht?! Dennoch habe ich mich auch mal in dem Alno -Planer versucht und mit beigefügt.
Was meint ihr? Hat jemand Ideen? Bin für jegliche Hilfe dankbar
Checkliste zur Küchenplanung von asraja
Anzahl Personen im Haushalt : 2
Davon Kinder? : keine
Körpergrössen aller Hauptbenutzer (wegen Arbeitshöhe ) in cm : 165
Art des Gebäudes? : Neu-/Umbau, Planänderungen möglich
Brüstungshöhe des Fensters (in cm) : unbekannt
Fensterhöhe (in cm) :
Raumhöhe in cm: : 250
Heizung : Fussbodenheizung
Sanitäranschlüsse : vollkommen variabel
Ausführung Kühlgerät? : Stand-Alone bis 60 cm Breite
Kühlgerät Größe : noch unbekannt
Ausführung Tiefkühl (TK)-Gerät : Nicht erforderlich bzw. steht woanders
Dunstabzugshaube? : Abluft
Hochgebauter Backofen ? : Wenn möglich
Hochgebauter Geschirrspüler ? : wenn möglich
Kochfeldart? : Induktion
Kochfeldbreite ca. (in cm)? : 60
Spülenform: : Noch nicht festgelegt
Weitere geplante Heißgeräte : Standmikrowelle
Küchenstil? : modern
Sitzmöglichkeit in der Küche / im Küchenbereich als : Überstehende Arbeitsplatte
Sitzmöglichkeit: Für wieviel Personen? : für 2 Personen
Sitzmöglichkeit: Tisch - wenn gesonderter Tisch oder offene Küche : Wird nach Bedarf neu gekauft
Gewünschte o. vorhandene Tischgröße : -
Wofür soll der Sitzplatz in der Küche genutzt werden? Wie häufig? : Frühstück
Welche Arbeitshöhe ist angedacht (in cm)? : 91 cm
Was steht auf der Arbeitsplatte oder soll dort stehen? : Wasserkocher, Messerblock, Toaster, Obstschale
Welche weiteren Küchenmaschinen müssen in der Küche untergebracht werden? : Handrührgerät, Mixer, Pürierstab, Eierkocher
Was soll in der Küche außer den Standards untergebracht werden? : Sonstiges (evtl. im Beitragstext benennen)
Welchen Stauraum gibt es sonst noch? : Geschirr/Gläserschrank im Wohn-/Esszimmer, Keller
Was/wie wird gekocht? (Alltagsküche, Menüs, Snacks usw) : warme Küche auf dem Herd und im Ofen
Wie häufig wird gekocht? : (fast) täglich 1x warm
Wird alleine gekocht? Oder auch gemeinsam? Mit und für Gäste? : mal so mal so
Was stört an der bisherigen Küche und was soll die neue Küche unbedingt können? Warum? : es gibt keine
Steht schon ein Küchenhersteller fest oder wird bevorzugt? : nein
Steht schon ein Gerätehersteller fest oder wird bevorzugt? : nein
Preisvorstellung (Budget) : bis 10.000,-
Anhänge

