Unbeendet offene Wohnküche in U-Form

ruhhuetl

Mitglied
Beiträge
6
Hallo Forum!

Bei uns gehts nun an die Küchenplanung und ich wollte mal die Profis fragen ob es Dinge gibt auf die wir bei unserem Grundriss besonders achten müssen bzw. welche Anordnung der Küche in unserem Fall besonders praktikabel wäre.

Vielleicht habt ihr ja ein paar Anregungen?

Ergänzungen zu den Fragen:
  • Kinder: geplant 2
  • Kühlgerät: wir hätten gerne einen europäischen Side-by-Side, also zwei aneinandergestellte Geräte einmal Kühlteil 60cm breit, einmal Gefriertel 60cm breit (mit Icemaker)
  • Kochfeld: Hier tendieren wir im Moment zum Bora -System weil wir einfach keine störende DAH über dem Kochfeld haben möchten.
  • Speis: Hier sollen so gut wie alle Vorräte aufbewahrt werden

Was mich vor allem interessieren würde:
Wie sollen wir die Bereiche/Geräte anordnen?
Ich würde es so machen:
Hinten an die Wand zur Speis die Hochschränke inkl. Kühl- und Gefrierschrank und dann BO und DG oder DGC und Mikrowelle
rechts neben der Tür zur Speis dann den GSP, anschließend dann die Spüle und das Kochfeld in etwa so wie im Plan eingezeichnet.
Oder was würdet ihr empfehlen?

EG Küche.jpg

Checkliste zur Küchenplanung

Anzahl Personen im Haushalt: 2
Davon Kinder?:
Art des Gebäudes?: Neu-/Umbau, Planänderungen nicht möglich
Körpergrössen aller Hauptbenutzer (wegen Arbeitshöhe ) in cm: 174 und 184cm
Brüstungshöhe des Fensters (in cm): 110
Fensterhöhe (in cm): 110
Raumhöhe in cm: 280
Heizung: Fussbodenheizung
Sanitäranschlüsse: vollkommen variabel
Ausführung Kühlgerät: Stand-Alone bis 60 cm Breite
Kühlgerät Größe: bis 178 cm Höhe
Ausführung Tiefkühl (TK)-Gerät: Eigenständiges Gerät bis 178 cm Höhe
Dunstabzugshaube: Abluft
Backofen etc. hochgebaut?: Ja
Hochgebauter Geschirrspüler ?: Ja
Kochfeldart: Induktion
Kochfeldbreite ca. (in cm)?: 80
Spülenform: Noch nicht festgelegt
Geplante Heißgeräte: Einbaumikrowelle, Dampfgarer ohne Wasseranschluß, Backofen
Küchenstil: Modern
Sitzmöglichkeit in der Küche / im Küchenbereich: Tresen in Barhöhe
Sitzmöglichkeit: Für wieviel Personen?: für 3 Personen
Sitzmöglichkeit: Tisch - wenn gesonderter Tisch oder offene Küche: Wird nach Bedarf neu gekauft
Gewünschte o. vorhandene Tischgröße: für mind. 8 Personen (mit Erweiterungsmöglichkeit)
Wofür soll der Sitzplatz in der Küche genutzt werden? Wie häufig?: Snacks, Kaffeetrinken, Zeitung lesen...
Welche Arbeitshöhe ist angedacht (in cm)?: 100
Was steht auf der Arbeitsplatte oder soll dort stehen?: Kaffeevollautomat, Wasserkocher, Messerblock, Brotbehälter
Welche weiteren Küchenmaschinen müssen in der Küche untergebracht werden?: Küchenmaschine, Toaster, Allesschneider (z. B. in Schublade), Mixer, Eierkocher
Was soll in der Küche außer den Standards untergebracht werden?:
Welchen Stauraum gibt es sonst noch?: Speisekammer
Was/wie wird gekocht? (Alltagsküche, Menüs, Snacks usw): Alltagsküche
Wie häufig wird gekocht?: (fast) täglich 1x warm
Wird alleine gekocht? Oder auch gemeinsam? Mit und für Gäste?: hauptsächlich allein
Was stört an der bisherigen Küche und was soll die neue Küche unbedingt können? Warum?: Neubau!
Welche Mülltrennung soll in der Küche vorgehalten werden?: Altpapier, Biomüll, Gelber Sack Müll, Restmüll
Steht schon ein Küchenhersteller fest oder wird bevorzugt?: nein
Steht schon ein Gerätehersteller fest oder wird bevorzugt?: Geräte ev. von Bosch (Serie 8) und Bora
Preisvorstellung (Budget): bis 15.000,-
 

Anhänge

  • Grundriss EG.jpg
    Grundriss EG.jpg
    133,9 KB · Aufrufe: 701
Willkommen im Forum!

Hast du dich schon mit dem Alnoplaner beschäftigt?
Ist der Luftraum nach unten hin?
Wie sind die genauen Abstände und Wandlängen?
Also nur 3m Insel möglich?
Wo sind denn die Wasseranschlüsse geplant?
 
Hallo!

Nein, den Alnoplaner habe ich noch nicht probiert.
Ich tu mich im Moment noch ein bisschen schwer bei der Grundsätzlichen Anordnung der Bereiche.
Ich würde das Kochfeld auf der Halbinsel machen (wie im Plan eingezeichnet) die Spüle würd ich an das Fenster unten (ist Nordosten) platzieren.
BO und DG oder DGC würde ich hinten an die Wand zum WC stellen und den KS würde ich in die Raummitte stellen. (Braucht man BO und DG seperat oder reicht heutzutage ein DGC?)
Wo kommt dann am besten der GS hin? vielleicht rechts neben die Spüle beim Eingang zur Speis?

Was denkt ihr von dieser Anorndung, wäre das Praktikabel?

Ja, die Treppe und der Luftraum gehen nach unten hin weil sich im UG untere Schlafräume und Bäder befinden.
Naja, dereit steht der Rohbau und die Zwischenwände (im Plan rot markiert) sind gemauert. Der Rest - also die Einrichtung von Küche/Esszimmer - ist noch völlig offen und variabel.
Die Küchen-Halbinsel kann aber natürlich nicht viel mehr als 3m in den Raum ragen weil man ja sonst nicht vorbei kommt. In der Tiefe der Küchenhalbinsel gibts aber noch Spielraum.
Die Wasseranschlüsse sind noch nicht vorhanden, hier sind wir noch völlig flexibel.

LG Markus
 
Von der Anordnung her ist Mupl - Spüle - Geschirrspüler oder Spüle - Mupl - Geschirrspüler am bestens angeordnet (Geschirrspüler gegenüber von der Spüle geht auch gut)
Wichtig ist noch eine 90cm-120cm breite Hauptarbeitsfläche zwischen Kochfeld und Spüle dazwischen sollte auch der Mupl angeordnet werden.

Backofen (am besten mit Pyrolyse ) und dgc haben den Vorteil das man zwei vollwertige Backöfen hat (im einen was Warmhalten oder Aufbacken wärend im anderen die Hauptmalzeit schmurgelt) nur dgc hat den Nachteil das bei sprizigen Sachen keine Pyrolyse zum Putzen da ist.
 
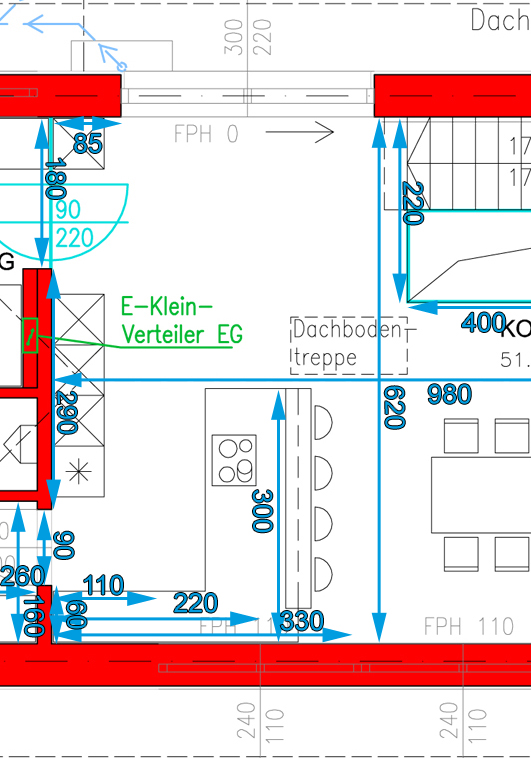
So, ich hab nun mal die Naturmaße genommen (+/-2cm) und sie im Küchenplan eingetragen.

Am Wochenende werd ich mich mal mit dem Alno -Küchenplaner auseinandersetzen.
Haben diese Woche auch mit zwei Küchenplanern gesprochen und bekommen von denen jetzt dann einen Plan.

Drei Dinge haben sich herauskristalisiert:
  • Wir haben keinen Platz für Hochschränke die könnten wir wenn dann nur über BO und DGC realisieren.
  • Wir konnten erstmals das Bora -System Live begutachten und das hat uns in unserer Tendenz zu diesem System noch weiter bestätigt.
  • Die Arbeitsplatte wird auch ein entscheidendes Kriterium, die Frage lautet können/wollen wir uns Stein leisten oder nicht?
Ich hoffe der bemaßte Plan hilft euch nun euch einen Überblick zu verschaffen und es kommt noch der eine oder andere Tip von euch.

LG
 

Anhänge

  • EG Küche_m.Masse.jpg
    EG Küche_m.Masse.jpg
    239,8 KB · Aufrufe: 295
Also sowohl Bosch mit der Serie 8 als auch Bora (welches System?) sind eine gute Wahl.
Die Serie 8 ist meiner Meinung nach die beste Umsetzung des neuen Backofenkonzepts und von der Bedienung her besser als Siemens und Neff .

Eine Stein APL wird (je nachdem welcher Stein und was ihr bei den Geräten genau wollt) seeehr sportlich...
 
Markus um dir mal ein Paar "Hausnummern" zu nennen falls du noch nicht selbst recherchiert und zusammengerechnet:
Mein Wunschgeräte+Spüle/Armatur Paket liegt bei 8500€ (inetpreis inkl. Lieferung).
5m (davon 2m in Inseltiefe) kostet für einen nicht allzu teuren Stein(Steelgrey) inkl. Bearbeitung+Lieferung ca. 3000€
 
Ja, ich konnte die Serie 8 gestern mal Live ausprobieren und ich muss sagen die Menüführung und Navigation ist wirklich Benutzerfreundlich.
Auch meine Frau kam gut mit dem Menü zurecht. Das hat uns in unserer Tendenz Pro Bosch weiter bestärkt.

Beim Bora -System tendieren wir im Moment zur BFIA - das ist die erneuerte Basic-Variante mit Flächeninduktionsfeld und Abluft.

Ja, ich hab auch schon versucht das alles durchzurechnen, und mit 3k-4k rechne ich auch für die Stein-APL, mal schaun und abwarten bis ich die ersten Angebote bekommen habe.


Ich hab heute auch mal diesen Anlo-Planer ausprobiert, puh, ist ein ganz schön eigenwilliges Programm. Ich hab mal versucht unseren Küchenwunsch im Programm umzusetzen, konnte aber nicht alle Überlegungen unterbringen.

Ich stell den Plan trotzdem mal hier ein.
 

Anhänge

  • Küche_Test1.KPL
    3,9 KB · Aufrufe: 241
  • Küche_Test1.POS
    6,2 KB · Aufrufe: 228
Gut wärs noch wenn du Bildschirmfotos vom Grundriss und ein paar Ansichten machen würdest, damit auch jemand was dazu sagen kann der nicht die Zeit/Möglichkeit hat deine Planung in den Alnoplaner zu laden.
 
ein Bild des ALNO Grundrisses erstellst du mit dem snipping tool von windows.

was die Heissgeräte angeht, soll es

Mikro
BO
DGC (Combi-Dampfgarer mit Backfunktion)

werden oder

BO mit Mikro in einem Gerät
DGC

oder
Mikro
DGC

Was das layout betrifft, tendiere ich zu einer HS Wand planlinks,
eine Wasserzeile planunten und eine Kochzeile als Insel mit Theke.

Der Grund dafür sind die Laufwege, braucht man was aus der Speise und ist am Esstisch, muss man nicht um die Insel rumlaufen, das Gleiche gilt für andersherum. Man muss von der Spüle nicht um's L laufen.
 
Hallo!

OK, werd nen Screenshot reinstellen.

Bezüglich E-Geräte tendieren wir zur Lösung BO und DGC jedoch beide als Vollgeräte (60cm) nebeneinander hochgestellt und Mikrowelle als Standgerät entweder in die Speis oder in einen Schrank.
Wobei es auch noch die Option gäbe einen BO mit Mikrowellenfunktion zu nehmen - da weiß ich aber nicht ob der dann von der Funktion her mit einer normalen Mikrowelle vergleichbar ist. Kann man damit zB Milch aufwärmen oder Mikrowellenpopcorn machen wie mit einer normalen Mikrowelle oder wird die Mikrowellenfunktion nur dazu verwendet die Zubereitungszeit zu verkürzen?
Gibts da schon Erfahrungswerte?

Die Kochstelle (Herdplatte) als Insel auszuführen kommt eher nicht in Frage da wir daruch eigentlich unsere Hauptarbeitsfläche unterbrechen müssten und sehr viel Arbeitsfläche verlieren würden.
Da nehm ich lieber den "Umweg" um die Halbinsel in kauf um zur Spüle zu kommen.
Und ich denke eine durchgängige große Arbeitsfläche ist schon kein unwichtiger Faktor in der Küche oder?
 
Leider fehlen ja noch die Screenshots.

Zum Gesamtplan ... ich hätte ja eine Idee, allerdings ist mir bei genauem Ansehen aufgefallen, dass planunten wohl auch Fenster sind:
grundriss-eg-jpg.192281


Ist das Haus schon gebaut oder könnte man doch mal einen Vorschlag machen und die Fenster planunten etwas anders einteilen?

Der Luftraum ist nur nach oben ... oder? Keller ist ja nicht eingeplant. Soll das eine offene fast schon schwebende Treppe werden?
 
Rohbau steht und der Luftraum ist nach unten hin, im UG befinden sich die Schlafräume.
 
Befürchte das wir Markus nicht mehr zu "Gesicht" bekommen, vielleicht zeigt er uns dann wenigstens das Ergebnis :trost:
 
Nein, nein so ist es nicht - ist nur momentan sehr stressig.
Ich bin noch nicht dazu gekommen die ALNO -Screenshots zu machen.

Kloni hat recht, die Treppe und der Lufttraum gehen nach unten und unten sind die Schlafräume.

Bei den Fenstern (im Plan unten) kann man nix mehr ändern da der Rohbau schon steht.

Im Großen und Ganzen werden wir daher die Küche so ähnlich wie im Plan gezeichnet umsetzen.
Wir bekommen aber immer noch Planungen von Küchenplanern und sind an der Abstimmung des ganzen.

Im Moment haben wir das zweite Backrohr mal verworfen.
Wir werden mal versuchen mit einem Dampfbackofen alleine durchzukommen und sehen daneben einfach noch ein Küchenkastel mit Standardnorm vor wo wir ein zweites Gerät einbauen können wenn wir sehen es reicht doch nicht mit einem Kombigerät.

Beim Kühlschrank haben wir den IceMaker jetzt in Frage gestellt, weil angeblich das Eis nicht neutral schmeckt sondern den Geschmack von Speisen annimmt.
Wir kennen leider niemanden der einen Hat und haben daher keine Erfahrungswerte.
Generell tendieren wir beim Kühlschrank zu Liebherr .

Beim Kochfeld steht im Moment noch immer Bora Basic BFIA auf unserer Liste ganz oben.
Tja so weit der Stand bei uns.
 

Ähnliche Beiträge

Neff Hausgeräte Ballerina Küchen Blum Bewegungstechnologie Weibel - Intelligente Küchenlüftung

Neff Spezial

Blum Zonenplaner

Weibel Abluft-Tuning

Weibel Abluft-Tuning
Zurück
Oben