Unbeendet Offene Schüller Wohnküche (G-oder U-Form)

@Nice-nofret @isabella


Ok, danke für die guten Hinweise! Da kommen ganz neue Sichtweisen :-)
Ich habe mal etwas umgeplant, siehe Anhang. Die Sache mit dem Sofa nicht im Raum kann ich auch schon sehen, von Wand zu Wand sind es aber ca. 4.90m. Das wäre uns zu weit weg bzgl. TV und wir wollen da max. 40".

> Welche Version findet ihr am Besten?
 

Anhänge

  • 1-1.jpg
    1-1.jpg
    105,6 KB · Aufrufe: 494
  • 1-2.jpg
    1-2.jpg
    109 KB · Aufrufe: 427
  • 2-1.jpg
    2-1.jpg
    117,2 KB · Aufrufe: 531
  • 2-2.jpg
    2-2.jpg
    121,5 KB · Aufrufe: 627
  • 3-1.jpg
    3-1.jpg
    108,2 KB · Aufrufe: 429
  • 3-3.jpg
    3-3.jpg
    111,3 KB · Aufrufe: 406
  • 4-1.jpg
    4-1.jpg
    114,3 KB · Aufrufe: 1.551
  • 4-2.jpg
    4-2.jpg
    113,8 KB · Aufrufe: 448
Zuletzt bearbeitet von einem Moderator:
Ist der Sofa schon vorhanden? Warum soll der Fernseher nicht größer als 40" sein? Gibt es überhaupt noch TV unter 41" zu kaufen?

Von den Alternativen, tendiere ich zu 4. Bin noch am überlegen, was man anders machen könnte, um den Übergang Küche - Essen - Chillen fließender zu gestalten. Die Idee muss aber noch reifen.
 
Der ganz große Wurf ist da irgendwie noch nicht dabei. Die
Raumgestaltung insgesamt schreit für mich nach Evelin ;-)

Ich würde isabella folgen und Nummer 4 mit größeren TV nehmen.
Dadurch könnte das Sofa in die Ecke rechtsoben wandern und dies
würde den Esstisch etwas von der Küchenzeile lösen und man könnte
ihn drehen damit planunten der Durchgang zu Fenster, Tür und Sofa
frei wird und man auch mehr Platz an der Küchenfront hat.

Die Gestaltung der Küchenfront würde ich auch ändern, indem ich
einen Ullaschrank oder eine Ecke mit Nische plante. Dazu planoben
übertief und ohne Hängeschränke und den GSP erhöht in der Front
rechts.

Was haltet ihr von einem U mit eingebundenem Esstisch? Also planrechts
die HS als Anker, Planoben wie gehabt und oberhalb der Raummitte eine
Halbinsel deren Ende ein fester Esstisch ist?
 
@isabella

Sofa ist noch nicht vorhanden ;-) Kann etwas größer sein, aber muss halt nicht umbedingt. Aber finde grad Version 4 auf am passenden
 
Zuletzt bearbeitet von einem Moderator:
@Schneeleopard

Das mit der Insel schauen wir uns nochmal an. Wenn Evelin da natürlich uns helfen könnte, wäre es fantastisch!
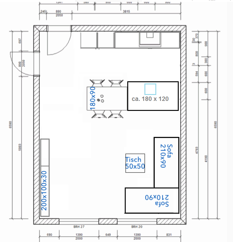
Anbei mal mit Couch an der Wand. Die beiden anderen Sachen schauen wir uns an.
 

Anhänge

  • 5-1.jpg
    5-1.jpg
    105,5 KB · Aufrufe: 295
  • 5-2.jpg
    5-2.jpg
    98,7 KB · Aufrufe: 309
Zuletzt bearbeitet von einem Moderator:
Und wenn man da einen dritten Hochschrank dazustellt und den mit einem Stück Wand von der Sofaecke trennt? So etwa 1,50 m?
 
@klaus28 .... es reicht die direkte Namensansprache, bitte nicht jeden Beitrag vollzitieren.

@Weis28
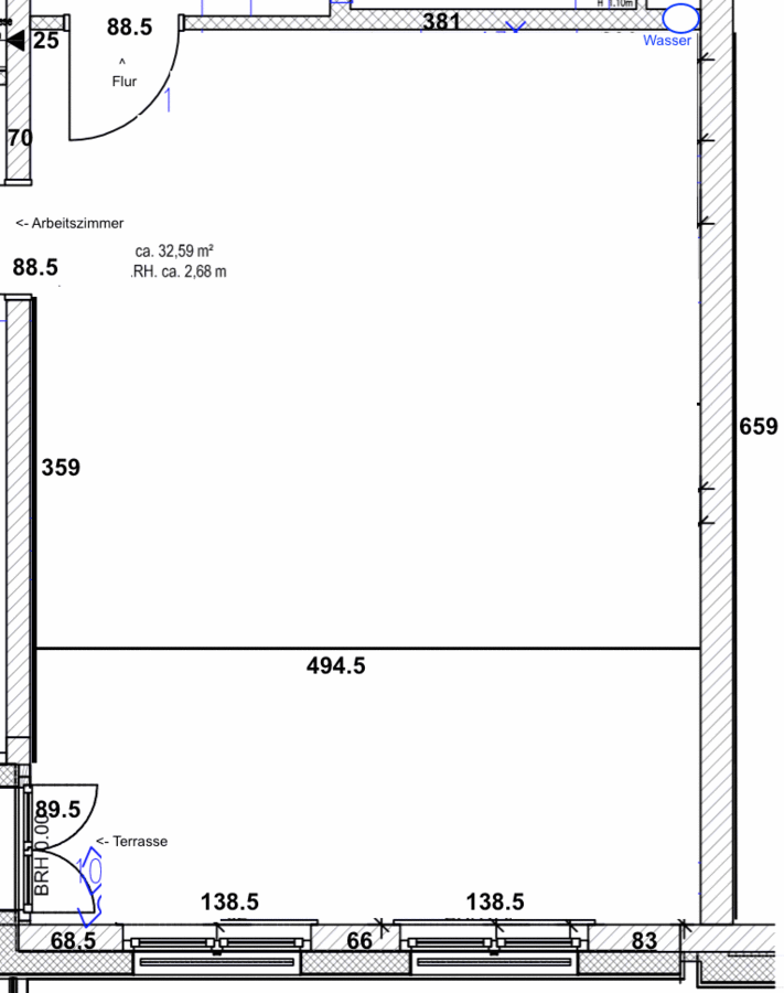
Die Anschlüsse kommen prinzipiell aus der Ecke wo sich die Stühle befindet.

Hä .. .kannst du das mal ordentlich im Grundriss eintragen, wo die Anschlüsse herkommen? Und dabei die Zahlen im Grundriss ein wenig größer machen. Die kann man schlecht lesen.

Sind das planunten jetzt eigentlich Terrassen/Balkontüren (die BRH auf den Zeichnungen und die Höhe der Fenster läßt das schliessen). Allerdings zeichnest du immer nur Fenster.
 
@klaus28, gut, dass der Sofa noch nicht vorhanden ist - dann könnte man ein nehhmen, der den Winkel andersherum hat - oder auch was Zierlicheres, damit man keine Trotzburg mitten im Wohnzimmer hat.
 
Annette .. :cool: .. an solche Variante habe ich auch schon gedacht ;-). Mal sehen, was für eine Antwort bezüglich des Wasseranschlusses kommt.
 
@KerstinB
Anbei nochmal der Grundriss in größer. Der Wasseranschluss/Schacht ist oben rechts.
Unten links ist eine Balkontür, richtig. Bei den Fenster ist die Brüstungshöhe ca. 63cm
Ich find's ja super, dass hier das ganze Zimmer berücksichtig wird und so natürlich auf ein exakter Grundriss wichtig ist. In den Küchenstudios wollten sie bis jetzt immer nur den oberen Bereich, ohne Fenster usw.

@isabella
Exakt, genau das wollen wir nicht. Geplant wäre erstmal ein Sofa wohl mit ca. 210 Breite.

@menorca
Danke! Ok, auch mal ne Idee. Schauen wir uns mal im Programm an.
 

Anhänge

  • Grundriss2.gif
    Grundriss2.gif
    70,2 KB · Aufrufe: 1.061
Zuletzt bearbeitet:
Ich würde auch bei Annettens Plan das Sofa auf die Planlinke Raumseite postieren wollen - wegen der Terrassentüre würde es dann frei im Raum stehen. mhhh
 
Ich bin davon ausgegangen, dass die Balkontüre unten links ist.

Wasser von oben rechts (Schaft? Was ist das? Ein Schacht? Wenn ja wie groß?) kann auf der Wand zur Insel verlegt werden, verläuft dort dann zwischen den Schränken.
An der planrechten Wand kann dann eine Verkleidung aus Frontmaterial mit schmaler APL drauf die Rohre kaschieren.

Für größere Feiern kann der Tisch auch um 90° gedreht und verlängert werden, wenn das Sofa an den Wänden entlang und nicht mitten im Raum steht.
 
Yes, tut mir leid - da war mal kurz durcheinander. Ist berichtigt.
Oben rechts Wasserschacht. Das mit dem Wasserverlegen wird nicht so ohne weiteres möglich sein, darum sollte in der Nähe auch GSP/Spüle sein.
Mit dem Tisch um 90 Grad ist natürlich ne gute Möglichkeit, hatten wir auch bei den anderen Versionen uns gedacht.
 
Ich würde auch bei Annettens Plan das Sofa auf die Planlinke Raumseite postieren wollen - wegen der Terrassentüre würde es dann frei im Raum stehen. mhhh
Wenn der Raum so wäre, wie Annette ihn gezeichnet hat, wäre dies sinnvoll.
Nur hat sie leider unten an der planlinken Wand ein Tür nicht berücksichtigt
die für ihre Variante unerheblich ist.
 
Ich habe den Raum nicht gezeichnet, sondern aus post #1 übernommen, inclusive der Möbel, in der Hoffnung, dass deren Maßstab einigermaßen stimmt. In diesem Raum war die Tür unten links nicht eingezeichnet.

Dann kommt das Lowboard/Regal eben zwischen die Türen und wird in der Länge angepasst.
Vanessas Plan funktioniert aber tatsächlich nicht mit der zusätzlichen Tür.

Wenn die Idee ansich beim TE ankommt, muss man das eh im Alnoplaner genau ausarbeiten.

Wie die Wasserverlegung funktionieren kann, habe ich oben kurz beschrieben. Das Abwasser benötigt nur ein Gefälle von 1-2%, also 1-2 Zentimeter pro Meter.
 
Von der Tür war bisher auch nie die Rede.
Die beiden Fenster plan unten sind auch recht tief, aber nicht bodentief. Ich lese dann einmal eine Brüstungshöhe von 20 und bei dem anderen von 27. Ist das richtig? Soll das so sein?
 
also mir gefällt Post 29 von menorca am besten.

TV Board verschieben, verkleinern, oder auch mit Schränken darüber.
Wenn der Stauraum nötig ist.
Wobei ja in der Kücheninsel - Wohnzimmerseite, sicher so einiges Platz hat.
 

Ähnliche Beiträge

Neff Hausgeräte Ballerina Küchen Blum Bewegungstechnologie Weibel - Intelligente Küchenlüftung

Neff Spezial

Blum Zonenplaner

Weibel Abluft-Tuning

Weibel Abluft-Tuning
Zurück
Oben