Neue Küche für neues Haus

AW: Neue Küche für neues Haus

Wie racer schon sagte: die Wand gerade rüber voll Hängeschränke (weiß ist eine gute Idee), die mittigen mit Glas. Sieht bestimmt gut aus.
 
AW: Neue Küche für neues Haus

Wie racer schon sagte: die Wand gerade rüber voll Hängeschränke (weiß ist eine gute Idee), die mittigen mit Glas. Sieht bestimmt gut aus.

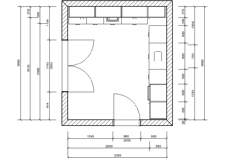
Wie soll das gehen, ich finde keine Lösung dafür. Die Oberschränke müssen ja vom Maß her zu den Unterschränken passen und bis ganz in die Ecke kann ich ja auch die Hängeschränke nicht machen.

Ich bräuchte hier dringend Hilfe. Wenn ich aus dem 90er Eckschrank unten eine tote Ecke mache, passt alles nicht mehr zusammen.

Für einen umsetzbaren Planungsvorschlag wäre ich sehr dankbar.
 
AW: Neue Küche für neues Haus

Hallo mk,
wie du weißt ist dies ein Forum .. wir haben hier im Kopf des Planungsbereiches sehr hilfreiche Links, u. a. findet man da auch den Weg zum Alnoplaner ;-) .. hier ist nämlich mitmachen angesagt.
Dann noch ein Bitte, zitieren nur, wenn deine Antwort sonst absolut unverständlich wäre, ansonsten stören die vielen Zitate den Lesefluß :rose:

Trotzdem hier mal schnell den Alnoplaner angeworfen.

Von links reihum:
- GSP ... damit am Rand und schön in eine Richtung ausräumbar
- 30er Müll unter der APL
- 90er Spülenschrank mit 2 Becken und ohne Abtropfe, oberer Auszug, da verbleibt genügend Platz fürs Putzmittel, unterer Auszug ganz normaler Stauraum
- 90er Auszugsunterschrank insbesondere Geschirr, Besteck etc.
- tote Ecke
- 100er Auszugsunterschrank ... eher Küchenhelfer, Tupper, Schüsseln, Elektrokleingeräte etc.
- 100er Auszugsunterschrank ... Kochbesteck, Töpfe, Pfannen, Auflauf/Backformen etc.
über den 100ern kann das Kochfeld mittig angebracht werden. Alternativ statt 2x100 dann 2x80er und dann ein 1x40er .. praktisch wg. Aufteilung, Kochfeld dann mittig über den zweiten 80er, ragt rechts und links etwas über
- Backofenschrank, Kühlschrankschrank

Die Hängeschränke jetzt 3x90 und 1x60 in der Ecke. Das wirkt viel ruhiger, als wenn man jede vertikale Linienführung der Unterschränke wieder aufnimmt.
Der mittlere 90er könnte auch mit Glasfläche sein. Ich würde darauf verzichten, weil man so völlig frei darin ist, was hinter den Klappen steht. Glasflächen, auch satinierte, erfordern immer ein bisschen verstauen und achten auf die Optik, weil ja alles durchscheint.
 

Anhänge

  • kf_mk4000_20120311_kb_var1_Grundriss.jpg
    kf_mk4000_20120311_kb_var1_Grundriss.jpg
    92,8 KB · Aufrufe: 118
  • kf_mk4000_20120311_kb_var1.KPL
    4,1 KB · Aufrufe: 129
  • kf_mk4000_20120311_kb_var1.POS
    5,6 KB · Aufrufe: 113
  • kf_mk4000_20120311_kb_var1_Ansicht1.jpg
    kf_mk4000_20120311_kb_var1_Ansicht1.jpg
    206,2 KB · Aufrufe: 108
  • kf_mk4000_20120311_kb_var1_Ansicht2.jpg
    kf_mk4000_20120311_kb_var1_Ansicht2.jpg
    156,1 KB · Aufrufe: 119
  • kf_mk4000_20120311_kb_var1_Ansicht3.jpg
    kf_mk4000_20120311_kb_var1_Ansicht3.jpg
    204,8 KB · Aufrufe: 141
AW: Neue Küche für neues Haus

Vielen Dank Kerstin.

Der Vorschlag gefällt uns sehr gut.
Ich habe dazu noch ein paar Fragen:

1.) Was ist der Vorteil vom Geschirrspüler direkt an der Wand?
2.) Durch die tote Ecke (65cm) ist an beiden Seiten der Rand nur noch 3cm. Gehen da noch die Türen auf, speziell am Kühlschrank und am Frost.
3.) Was für einen Schrank hast du zwischen Geschirrspüler und Spüle gesetzt?
4.) Was für ein Gerät ist über dem Backofen ?
 
AW: Neue Küche für neues Haus

Ich hatte oben geschrieben:
Von links reihum:
- GSP ... damit am Rand und schön in eine Richtung ausräumbar
- 30er Müll unter der APL
- 90er Spülenschrank mit 2 Becken und ohne Abtropfe, oberer Auszug, da verbleibt genügend Platz fürs Putzmittel, unterer Auszug ganz normaler Stauraum
......

Ich habe jetzt nicht geguckt, welche Heißgeräte ihr genau wollt ... es könnte eine Mikrowelle sein, gerne auch hinter einer Klappe oder ein Dampfgarer oder gar kein zweites Heißgerät, dann eben einfach Schrankfach. Es ging ja mehr um die Hängeschränke.

Wenn die Türlaibung so sitzt, wie sie sitzt, dann reicht auch eine Blende von 3 cm, weil der Griff dann im Bereich der Türlaibung ist, wenn man die Kühlschranktür voll öffnet. Und evtl. kann man auch noch 1 cm bei der toten Ecke einsparen, hängt davon ab, wie gerade die Wände sind.

GSP am Rand .. siehe oben ... stört außerdem nicht, wenn man sie bei Kochaktion mal auf lassen will, weil man alles, was man nicht mehr braucht, gleich verstauen will und nicht immer Klappe auf, Klappe zu machen möchte.
 
AW: Neue Küche für neues Haus

So wir haben die Planung jetzt noch mal geändert.
Als Problem sehe ich etwas, dass mit der toten Ecke (65x65) jetzt links und rechts nur noch 3cm Luft zu den Wänden sind.
Die Hängeschränke habe ich jetzt in der Ecke 5cm von der Wand weg, setzt man da eine Paßleiste dazwischen, wie auf der anderen Seite?
 

Anhänge

  • Küche mit 65er Ecke.jpg
    Küche mit 65er Ecke.jpg
    44,3 KB · Aufrufe: 122
  • Maße mit 65er Ecke.jpg
    Maße mit 65er Ecke.jpg
    69,7 KB · Aufrufe: 110
AW: Neue Küche für neues Haus

Hallo,

warum hast Du jetzt den "Müll direkt unter APL" rausgeschmissen???

  • :rolleyes:

Der Nutzen dieses Schrankes wird vielen oft bewußt, wenn sie im Küchenstudio mal simulieren, wie sie z.B. Speisereste vom Teller in den Müll kratzen.
Also testen, testen....
Besonders der Spülenunterschrank mit dieser sehr hohen Front (Blende unter der Front für die Spüle) macht nochmals ca. 15 cm aus. Das ist einfach so blöde zum bedienen.

PS: Klar muss dann an den Hängeschränken eine Passleiste hin.
 
AW: Neue Küche für neues Haus

Den Mülleimer wollten wir eigentlich unter der Spüle integrieren.

Besonders der Spülenunterschrank mit dieser sehr hohen Front (Blende unter der Front für die Spüle) macht nochmals ca. 15 cm aus. Das ist einfach so blöde zum bedienen.
Das verstehe ich nicht ganz???

Jetzt stellt sich noch die Frage, ob wir die Hängeschränke als Drehtürschränke mit 75er Höhe nehmen oder Klappenschrank in 60er Höhe. Welche Variante ist kostengünstiger?
 
AW: Neue Küche für neues Haus

Zu den 3 cm Passleisten habe ich ja bereits geantwortet.

Was teurer oder preiswerter ist, kann dir letztendlich nur dein KFB genau sagen. Lass es dir doch einfach in beiden Varianten anbieten. Allerdings, bei 75 cm Korpushöhe und 60 cm Hängeschrankhöhe, wird der Nischenabstand zwischen APL und Unterkante Hängeschrank 71 cm (75-4 cm APL), wenn die Hängeschränke auf derselben Höhenlinie enden sollen, wie die Hochschränke.

Warum hast du die 2x100er Unterschränke in 60-90-50 geteilt und nicht wenigstens in 50-100-50? Und, was stört dich an 100-100? Normalerweise sollte 100-100 auf jeden Fall preiswerter sein, als an derselben Stelle 3 Unterschränke, da ja die Beschläge gespart werden.

Müll unter APL, insbesondere Bio/Restmüll ... schnippeln und direkt in den Müll schieben, der zweite Auszug unten ist Stauraum:
full
 
AW: Neue Küche für neues Haus

Hallo mk4000,
wenn der Spülschrank mit Vollauszug ist, dann ist der Müll ziemlich tief unten bei den hohen Fronten und der Müll muss immer seitlich eingeworfen werden.
In unserer kurzen Zeile war kein Platz für Müll unter der APL (im Gegensatz zu eurer!) und wir haben lieber einen Drehtürschrank unter der Spüle für den Müll genommen, weil auch der GSP direkt daneben ist und wir dann doch den Müll von oben rein geschoben hätten, was wiederum zu einer argen Verschmutzung der Mülltür geführt hätte (für den Satz hätte meine Deutschlehrerin mich erschlagen:cool:).
Da ich eh´ mehr am Tisch schnippel und vorbereite war mir der Müll auch nicht soooo wichtig, aber wenn man eher an der APL arbeitet, würde ich den Müll auch da direkt unter befürworten.
Unter der Spüle kann man immer noch z.B. grünen Punkt-Müll und/oder Papier sammeln und die nötigsten Putzsachen aufbewahren, der Platz ist ja nicht verschenkt.

 
AW: Neue Küche für neues Haus

Hallo MK,

hier ein Beispiel aus meiner Küche.
Da siehst Du den Spülenunterschrank mit einer hohen Front. Stelle Dir hier mal das Einwerfen des Mülls vor. Das andere Bild ist mein "Müll direkt unter der APL" allerdings als Sonderanfertigung, da ich optisch vorne eine durchgehende Front haben wollte.

Bitte stelle Dir nun vor, wie tief Du greifen musst, damit nicht ständig die Innenseite vom Spülenunterschrank beschmiert ist.

Weißt du jetzt was ich meine????

Ich liebe diesen Schrank, weil er so
- rückenschonend ist und mir
- auch sicherlich schon einige Putzaktionen (Innenseite vom Spülenunterschrank) erspart hat
- Kartoffeln etc. schäle ich gleich direkt rein.
- Außerdem kann bei uns einer am Wasserhahn stehen und man kann trotzdem noch an den Müllschrank
 

Anhänge

  • Bild024.jpg
    Bild024.jpg
    43,6 KB · Aufrufe: 138
  • Bild023.jpg
    Bild023.jpg
    23,4 KB · Aufrufe: 146
AW: Neue Küche für neues Haus

Allerdings, bei 75 cm Korpushöhe und 60 cm Hängeschrankhöhe, wird der Nischenabstand zwischen APL und Unterkante Hängeschrank 71 cm (75-4 cm APL), wenn die Hängeschränke auf derselben Höhenlinie enden sollen, wie die Hochschränke.

Warum hast du die 2x100er Unterschränke in 60-90-50 geteilt und nicht wenigstens in 50-100-50? Und, was stört dich an 100-100?

Was ist das Problem bei einem so großen Nischenabstand? Optik oder Funktion?
Leider gibt es die Klappschränke nur bis 60cm Höhe.

2x100 geht leider nicht, beim Nolte Planer ist bei 90cm Schluß bei den Auszugschränken. Kann man denn ohne Probleme das Indultionsfeld mittig auf zwei Schränke verteilen?
 
AW: Neue Küche für neues Haus

Induktionsfeld über zwei Unterschränken gibt es hier im Forum mehrere Beispiele dafür: z.B: Magnolias neue Küche.
 
AW: Neue Küche für neues Haus

Liest du eigentlich auch andere Beiträge hier, z. B. die Links aus deinen anderen Threads?

Vergiß den Onlineplaner, der ersetzt kein Fachwissen und auch keinen KFB. Die Noltetypenübersicht habe ich im Kühlschrankthread verlinkt.

Selbstverständlich gibt es auch bei Nolte den Standardauszugsunterschrank in 100 cm Breite.

Kochfeld mittig .. z. B. Jelena:
full


Hängeschränke ... selbes verlinktes Dokument gibt es in 75 cm Höhe als Schwebeklappenschrank.

Ich bin ja ein Fan von großem Abstand APL/Unterkante Hängeschränke, das ist aber in aller Regel max. 60 cm. Standard ist oft nur 45 bis 55 cm.
 
AW: Neue Küche für neues Haus

..... und selbst bei den offiziellenTypenlisten hören die Schränke nicht auf. :cool:

Beispiel für Kochfeld über 2 x 80er Schränken.
 

Anhänge

  • Küche_100%-6.JPG
    Küche_100%-6.JPG
    87,9 KB · Aufrufe: 122
AW: Neue Küche für neues Haus

@KerstinB

Wir tendieren jetzt immer mehr zu deinem "lila" Vorschlag.
Nur der Geschirrspüler am Rand überzeugt uns noch nicht ganz. Da kleckert doch alles an die Wand bzw. die Terassentür.

Was bedeutet denn bei dem 30er Müllschrank "Sonderanfertigung". Das klingt erst mal teuer. Macht das Nolte überhaupt?
 
AW: Neue Küche für neues Haus

Hallo,

ein 30er Müllschrank (3-3-Raster) ist KEINE Sonderanfertigung.

Mein Müllschrank ist eine "Sonderanfertigung", da ich ja eine durchgehende, glatte Front wollte. Aber selbstverständlich ist ein 3-3-Raster vorzuziehen, da billiger und unten noch ein Auszug ist.
(Ich hätte ggf. sogar auf die unterste Ebene des Müllschrank verzichten können bei meinem enormen Stauraum)

Unten 3-3-Raster Müllschrank. Diesen kann man auch mit stehenden Behältern bestücken. z.B. siehe hier: für Auszüge Abfalltrennung, Mülltrennung im LIGNO Shop kaufen

full
 
AW: Neue Küche für neues Haus

Verkleide das Stück Wand mit Frontmaterial oder streicht mit Latexfarbe .. aber es ist der richtige Ort für den GSP.

Man kann auch einfach alle paar Monate über evt. Flecken weisseln - das ist ja keine Kunst. Soo viele Flecken gibt es abgesehen davon auch nicht, wenn man nach dem Beladen evt. Spritzer gleich mit dem feuchten Lappen wischt.
 
AW: Neue Küche für neues Haus

.. aber es ist der richtige Ort für den GSP.


Wieso ist das der ideale Ort für den GSP? Wenn ich ihn weiter zur Mitte rücke kann ich ihn von beiden Seiten beladen bzw. ausräumen.

Wieso zwei Spülbecken, anstatt Spülbecken und Abtropffläche? Welche Spülen empfehlt ihr?
 
Neff Hausgeräte Ballerina Küchen Blum Bewegungstechnologie Weibel - Intelligente Küchenlüftung

Neff Spezial

Blum Zonenplaner

Weibel Abluft-Tuning

Weibel Abluft-Tuning
Zurück
Oben