Neue Küche für alten Bauernhof – eine echte Herausforderung!

asraja

Mitglied
Beiträge
26
Ihr lieben,

nach sehr guten Erfahrungen mit dem Forum in Bezug auf meine eigene Küche wende ich mich nun an euch in Sachen Küche für meine Tante.
Nachdem meine Oma verstorben ist, möchte meine Tante nun den neuen Bauernhof umbauen (lassen).
Die Küche war bislang eine Mehrzweck-Küche: Da es auf dem Bauernhof bislang keine Heizung gab, sondern nur die Feuerstelle in der Küche (ja, so etwas gibt es noch!) stand das Bett meiner Oma hinter dem Herd rechts. Weiterhin gab es eine Essecke für mind. 8 Personen, deren Tisch aber parallel die einzige Arbeitsfläche war.
Heizkörper und neue Fenster sind jetzt schon eingebaut und ab sofort wird das Bett nicht mehr benötigt und die Anschlüsse für neuen Elektroherd und Spülmaschine / Spülbecken können noch frei gelegt werden.
Die Wände sind leider alle etwas schief und krumm, die Maße lassen mich verzweifeln und da ich seit Kindheitstagen die Küche so kenne, wie sie bislang war, fehlen mir noch die Ideen.
Bislang grenzten an die Küche die Futterküche und der Stall an. Beides soll abgeschafft und umgebaut werden zu einem Badezimmer, Speisekammer und mal schaun…Ein direkter Durchbruch ist voraussichtlich leider nicht möglich, aber die Wege sind kurz und man ist es jahrelang gewohnt, dass die Speisekammer sowie die zwei Kühltruhen im 1. OG waren.

Gewünscht ist, dass der neue Ofen bleibt, da er eine schöne (und günstige) Wärmequelle ist und man darin auch immer warmes Wasser hat. Dieser Ofen hat eine Klappe zum Backen sowie die Möglichkeit oben auf zu kochen (siehe Bilder – der Fußboden wird noch rausgerissen).
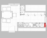
Ich habe mir Mühe gegeben, einen Grundriss von Hand zu erstellen – mit dem Planer war es mir nicht möglich, eine achteckige Küche zu generieren L Falls mir jemand verraten kann, wie ich das Grundgerüst erstellen kann, mache ich das natürlich noch.
Die schwarzen Wände sind die Haus-Außenwände, die rote Umrandung kennzeichnet die Küche.
Generell hat man eine Deckenhöhe von 2,25 m, wobei vom neuen Herd aus ein Rohr an der Wand entlang hinter der Küchentür verläuft. Hier befindet sich seit Jahren die Garderobe und man kann an dieser Wand nichts planen.
Auch kann ich nicht sagen, ob die Wand, an der der neue Herd steht, stabil genug für Hängeschränke ist – hier wurde in über 100 Jahren noch nie etwas aufgehangen! Aus diesem Grund ist auch eine Dunstesse nicht unbedingt notwendig – lieber kochen, wie bislang, als dass die Wand irgendwann nachgibt ;-)
Zum Kühlschrank: Da eine Gefriertruhe und ein Gefrierschrank vorhanden sind, reicht ein kleiner „Standard“Kühlschrank. Ob Stand-Alone oder integriert ist egal, aber man muss ja etwas angeben. Gleiches gilt für Backofen und Geschirrspülmaschine: Oben oder unten ist völlig egal.
Eine (neue) Mikrowelle ist vorhanden, kann, aber muss nicht übernommen werden. Ob freistehend (wie bisher) oder eingebaut ist egal.
Bislang wurden in der Küche nur Töpfe, Schüsseln, Besteck, ein paar Alltags-Gläser, -teller, -tassen aufbewahrt und dass Kaffee-Service und gute Geschirr im Wohnzimmer. Das könnte man auch weiterhin so lösen.

Für jegliche Ideen von euch – und hier kann man wirklich noch kreativ sein – bin ich dankbar J

Liebe Grüße
asraja

attachment.php


attachment.php


attachment.php




Checkliste zur Küchenplanung von asraja

Anzahl Personen im Haushalt : 2
Davon Kinder? : keine
Körpergrössen aller Hauptbenutzer (wegen Arbeitshöhe ) in cm : 155 / 175
Art des Gebäudes? : Bestandsbau, (kleinere) Umbauten möglich
Brüstungshöhe des Fensters (in cm) : 100
Fensterhöhe (in cm) :
Raumhöhe in cm: : 225
Heizung : Heizkörper wie im Grundriss
Sanitäranschlüsse : vollkommen variabel
Ausführung Kühlgerät? : Stand-Alone bis 60 cm Breite
Kühlgerät Größe : bis 88 cm Höhe
Ausführung Tiefkühl (TK)-Gerät : Nicht erforderlich bzw. steht woanders
Dunstabzugshaube? : keine
Hochgebauter Backofen ? : Wenn möglich
Hochgebauter Geschirrspüler ? : wenn möglich
Kochfeldart? : Ceran (herkömmlich)
Kochfeldbreite ca. (in cm)? : 60
Spülenform: : 1 Becken mit Abtropffläche
Weitere geplante Heißgeräte :
Küchenstil? : klassisch
Sitzmöglichkeit in der Küche / im Küchenbereich als : Gesonderter Tisch
Sitzmöglichkeit: Für wieviel Personen? : für 6 Personen
Sitzmöglichkeit: Tisch - wenn gesonderter Tisch oder offene Küche : Wird nach Bedarf neu gekauft
Gewünschte o. vorhandene Tischgröße : 1,60 * 90
Wofür soll der Sitzplatz in der Küche genutzt werden? Wie häufig? : regelmäßig (sprich täglich) für 2 Personen zum Essen, am Wochenende und an Feiertagen kehren bis zu 20 Personen ein, die es aber gewohnt sind, sich auf Küche und Wohnzimmer aufzuteilen für Mittag-/Abendessen, Kaffee & Kuchen, sowie Weihnachtssingen etc.
Welche Arbeitshöhe ist angedacht (in cm)? : 82
Was steht auf der Arbeitsplatte oder soll dort stehen? : Kaffeemaschine, Allesschneider, Obstschale
Welche weiteren Küchenmaschinen müssen in der Küche untergebracht werden? : Küchenmaschine, Handrührgerät, Mixer, Pürierstab, Eierkocher
Was soll in der Küche außer den Standards untergebracht werden? : Sonstiges (evtl. im Beitragstext benennen)
Welchen Stauraum gibt es sonst noch? : Geschirr/Gläserschrank im Wohn-/Esszimmer, Speisekammer, Hauswirtschaftsraum, Keller
Was/wie wird gekocht? (Alltagsküche, Menüs, Snacks usw) : Es wird täglich warm gekocht für zwei Personen, häufig werden große Mengen Obst eingemacht, es wird mindestens wöchentlich gebacken. Außerdem gibt es am Wochenende Mittagessen, Kaffee & Kuchen, Abendbrot für bis zu 20 Personen
Wie häufig wird gekocht? : (fast) täglich 1x warm
Wird alleine gekocht? Oder auch gemeinsam? Mit und für Gäste? : Gemeinsam mit der Familie
Was stört an der bisherigen Küche und was soll die neue Küche unbedingt können? Warum? : Es gibt keine Arbeitsfläche außer den Esstisch.
Steht schon ein Küchenhersteller fest oder wird bevorzugt? : nein
Steht schon ein Gerätehersteller fest oder wird bevorzugt? : nein
Preisvorstellung (Budget) : bis 7.000,-
 

Anhänge

  • DSC_0642.jpg
    DSC_0642.jpg
    34,8 KB · Aufrufe: 617
  • DSC_0643.jpg
    DSC_0643.jpg
    32,8 KB · Aufrufe: 614
  • DSC_0641.jpg
    DSC_0641.jpg
    37,8 KB · Aufrufe: 764
AW: Neue Küche für neuen Bauernhof – eine echte Herausforderung!

Hallo asraja,

ich habe mir gerade, zweckt Alnoplaner anlegen, den Küchengrundriss genauer angeschaut. Dabei ist mir aufgefallen, das die Gesamtmaße planoben, nicht mit den Gesammtmaßen planunten übereinstimmt. Ist das richtig so? Wenn ja, welche Wand/Wände stehen nicht im rechten Winkel?

oben 0,94 + 1,6 + 0,62 + 2,9 = 6,06 m

unten 0,92 + 1 + 0,35 + 0,9 + 3 = 6,17m
 
AW: Neue Küche für neuen Bauernhof – eine echte Herausforderung!

;-), das Problem habe ich versucht zu umgehen, ich glaube, bei einem neuen Bauernhaus steht keine Wand gerade:cool:

asraja1-1.jpg
Auf Hängeschränke habe ich komplett verzichtet, dafür aber die drei E-Geräte hoch gesetzt.
Planoben von rechts:
  • Breite Blende wegen der Heizung
  • Kühlschrank
  • Backofen
  • GSP
  • 50-er mit Auszügen
  • 60-er Spülenschrank
  • 40-er mit Auszügen (kann auch Müll unter APL werden)
  • -> um die Ecke 90-er mit Schubladen und einem Auszug und Aufsatzschrank (muss ja kein Rollo sein;-)) als Kaffeeecke
  • wieder Blende, aber ich hoffe, die Heizung steht weit genug weg, sonst mit 80-er realisierbar

Planunten von rechts:
  • APL Überstand über der Heizung (~23cm)
  • 3 x 90 mit Schubladen und Auszügen, mittig den Herd
  • Blende zum Ofen (kommt ja auch darauf an, wie warm der seitlich wird, also eventuell Luft lassen und Handtuchstangen einplanen

Anmerkung: wenn es mit den Leitungen möglich ist, würde ich den GSP mit dem BO und/oder dem Kühlschrank tauschen, der steht ungünstig zum Herd und der Kühli wäre so auch recht weit in der Ecke.
Wenn es mit dem GSP nicht anders ginge, dann eventuell den Herd direkt neben den Ofen, ist ja vielleicht auch praktisch zum Abstellen und warm halten.
Gesamter Plan kann mit 10 cm +/- an diversen Schränken den schiefen Wänden angepasst werden;-)
asraja1-2.jpg
asraja1-3.jpg
 

Anhänge

  • asraja1.KPL
    4,1 KB · Aufrufe: 251
  • asraja1.POS
    7,3 KB · Aufrufe: 256
AW: Neue Küche für neuen Bauernhof – eine echte Herausforderung!

Asraja,
genau so einen Küchenschrank hat meine Mutter auch. Geschätzt gekauft Ende der 60er Jahre. Wirf ihn nicht weg, sondern versuche ihn zu verkaufen. Das Material ist Resopal, was jetzt wieder im Kommen ist.
Vor kurzem hatten wir hier eine Thread, wo eine Küche aus den 50er Jahren gesucht wurde.

Conny,
danke, dass du dich am Grundriss versuchst. :top:
 
AW: Neue Küche für neuen Bauernhof – eine echte Herausforderung!

Angelika war schneller! :2daumenhoch: ;D
 
AW: Neue Küche für neuen Bauernhof – eine echte Herausforderung!

Aber nur, weil mir die schiefen Wände *egal* waren;-)
 
AW: Neue Küche für neuen Bauernhof – eine echte Herausforderung!

Angelika,
du bist ja schneller als die Feuerwehr.:-)
 
AW: Neue Küche für neuen Bauernhof – eine echte Herausforderung!

Hallo,

wie schon bei meiner eigenen Küche festgestellt: Ihr seid spitze! :top:

@ conny: Ja, das stimmt leider! Es ist eben ein neuer, irgendwann mal selbst zusammengemauerter Bauernhof und da gibt es glaube ich nicht eine rechtwinklige Wand!

@ Angelika: Der Plan an sich sieht gut aus, aber ich bezweifle, dass meine Tante mit ihren 1,55 cm an die ganzen erhöhten Geräte rankommt?! Ich bin ja 10cm größer und muss dann schon gucken, was ich bei einem erhöhten Gerät "oben" machen möchte. Da müsste ich allerdings mal auf Erfahrungswerte von anderen warten. Ansonsten stimme ich dir zu, dass der Kühlschrank so etwas weit vom Geschehen - also Esstisch - entfernt ist, aber was mir wahnsinnig gut gefällt ist diese Rolltürschrank-Lösung vorne für den Brotkasten!
Bislang war die Spüle immer links von der Eingangstür, so dass man parallel kochen und spülen konnte (wenn viele Personen da waren) - das wird mit Sicherheit ungewohnt nach so vielen Jahren, wenn evtl. alles anders steht.
Die Heizkörper ragen max. 20 cm (inkl. Spielraum für eine Hand für den Drehknauf) hinaus.
Der Ofen wird heiß! Er wird richtig mit Holz befeuert, was im Winter unwahrscheinlich schön ist, neuen Möbeln aber wahrscheinlich nicht "gefällt" ;-) Andererseits stand bislang auch ein Elektroherd daneben, also es geht schon irgendwie.
Ich bin jetzt kein Fachmann, aber mein Onkel wollte die Leitungen alle verändert, daher denke ich, dass es kein Problem ist, die Anschlüsse auch anders zu setzen, wie du es vorgeschlagen hast.
Und noch eine kleine Anmerkung: Diese Lichtleisten-Idee ist super! Sowas gab es dort auch noch nie.

@ Mela: Weggeschmissen wird der mit Sicherheit nicht. Es gibt jetzt soviel Platz, dadurch, dass der Stall und die Futterküche rausgeschmissen werden, da kann man den bestimmt irgendwo unterbringen ;-) Außerdem ist es ja auch ein kleines Erinnerungsstück.
 
AW: Neue Küche für neuen Bauernhof – eine echte Herausforderung!

Wenn der Ofen seitlich richtig Heiß wird, kann man da keine Möbel direkt ranstellen. Ein Herd ist da sicher etwas anderes, weil die Seiten aus Metall sind und nicht brennen. ;-) Vielleicht könnte man neben den Ofen eine Art Schutzmauer in Ofenhöhe setzten.

Die Geräte kann man natürlich in einer für den Nutzer Bedinfreundlichen Höhe stetzen. Ich bin auch nur 7cm größer als deine Tante und habe meine Heißgeräte im Hochschrank . Das muss man vorher genau austesten was angenehm ist. Der oberste Einschub sollte nicht höher als Schulterhöhe sein.
 
AW: Neue Küche für neuen Bauernhof – eine echte Herausforderung!

Ich habe auch einmal geschoben, da mir der Abstand zwischen den Zeilen bei Angelikas Entwurf zu gering ist.

Alle Hochschränke sind nur 149,5 hoch. Das bedeutet beim Backofen , er beginnt in einer Höhe von 89,5 cm. Das dürfte doch für deine Tante machbar sein.

Beginnend planunten neben dem Ofen:
12,5 cm Blende oder Trockenbau
60er Herd
90er US 1-2-2
50er Spüle
15er US für Handtücher
hochgesetzte SpüMa
20 cm Blende
Ich stelle mir vor, dass die Blende geteilt wird und ab z.B. Fensterbankhöhe genutzt wird für z.B. Backbleche

oder
60er Spülenschrank mit einem 50er Becken - damit 10 cm Abstand zur hochgestzten Spüma - die restlichen 5 cm dann zwischen Ofen und Herd zusätzlich

auf der gegenüberliegenden Seite:
20 cm Blende wegen Heizung
3 x 90 Vitrinenschränke - Höhe variabel

Planoben rechts:
17,5 cm Blende
Kühli
BO
Wange

Leider hast du keine Maße des Tisches angegeben. Nur das er für 8 Personen ausreichend ist.
Vielleicht ist es dir auch möglich, von der Tischgruppe zusätzlich ein Foto einzustellen.

Es wäre aus möglich die Hochschränke planlinks unten neben die Küchentür zu setzten.
 

Anhänge

  • asraja_Mela.KPL
    4,1 KB · Aufrufe: 263
  • asraja_Mela.POS
    10,9 KB · Aufrufe: 279
  • asraja_Mela_Draufsicht.jpg
    asraja_Mela_Draufsicht.jpg
    56,2 KB · Aufrufe: 261
  • asraja_Mela_Grundriss.JPG
    asraja_Mela_Grundriss.JPG
    47,2 KB · Aufrufe: 261
  • asraja_Mela_HS.jpg
    asraja_Mela_HS.jpg
    48,6 KB · Aufrufe: 284
  • asraja_Mela_Kochen.jpg
    asraja_Mela_Kochen.jpg
    50,1 KB · Aufrufe: 277
  • asraja_Mela_Vitrinen.jpg
    asraja_Mela_Vitrinen.jpg
    47 KB · Aufrufe: 266
AW: Neue Küche für neuen Bauernhof – eine echte Herausforderung!

*HMPF* Internetabsturz und der ganze Text ist weg :(

Zweiter Versuch!

@Meli: Super Ideen dabei, aber die Herd-Seite gefällt mir nicht, da das Fenster zugebaut wird :(

Ich habe mal eure Ideen kombiniert und folgendes gebastelt:

Beginnend planunten neben dem Ofen:
12,5 cm Blende
60er Herd
90er US 1-2-2
50er Spüle
15er US für Handtücher
SpüMa
20 cm Blende - die Idee für Backbleche ist super!

auf der gegenüberliegenden Seite:
20 cm Blende wegen Heizung
3 x 90 Vitrinenschränke - aber einmal mit diesem tollen Aufsatzschrank von Angelika (naja...habe ihn nicht gefunden, aber etwas ähnliches hingesetzt!)

Planoben rechts:
17,5 cm Blende
Kühli
BO
Wange (hab ich leider nicht hinbekommen)

Werde die drei Vorschläge mal meiner Tante/Onkel zeigen, die Antwort könnte etwas dauern, da es auf dem Dorf kein Internet gibt - ja, sowas gibts noch! :kfb:

Von der aktuellen Essecke habe ich leider kein Bild, werde aber mal gucken, ob ich da etwas auftreiben kann.

Küche 1.jpgKüche 3.jpgKüche 2.jpgAnhang anzeigen asraja_myself.POSAnhang anzeigen asraja_myself.KPL
 
AW: Neue Küche für neuen Bauernhof – eine echte Herausforderung!

asraja,
natürlich hast du recht, die Wand am Fenster beträgt planunten nur 28 cm.
Sorry!:-[
Ich habe ich im Planungseifer total vergessen.:-\

Selbstverständlich können die Vitrinen auch Aufsätze haben.
 
AW: Neue Küche für neuen Bauernhof – eine echte Herausforderung!

Mir gefällt Angelikas Plan richtig gut. Der Zeilenabstand ist knapp 90 cm .. ideal, weil man sich da super zwischen den beiden Zeilen bewegen kann :kiss:.

Ich würde allerdings wohl auf den hochgestellten Backofen verzichten und dadurch die Hochschränke auf 2 reduzieren. Dann könnte die Spüle noch etwas weiter nach planrechts.

Auf der Kochseite würde ich den vorhandenen Holzofen auch mit einer Mauer zur Küchenzeile abtrennen.

Besonders gefällt mir halt, dass im Essbereich die Küchenschränke eher wie ein Buffet wirken und nicht so drückend.
 
AW: Neue Küche für neuen Bauernhof – eine echte Herausforderung!

:rose:, man kann ja auch überlegen, welches Gerät die Tante lieber weiter unten hätte, GSP kann für einen kleinen Menschen ja *da oben* auch schon zu hoch sein, der BO aber noch auf bequemem Maß. Meine kleine Tante konnte eher gut im unteren Bereich rum wuseln (Unkraut zupfen aus dem Stand war kein Problem), aber alles knapp über Schulter war unerreichbar. Da sollte sie auf jeden Fall in diversen Küchengeschäften probieren.
 
AW: Neue Küche für neuen Bauernhof – eine echte Herausforderung!

Also ich würde keine Mauer neben den Ofen machen, da Stein die Wärme speichert, sondern versuchen eine kleine gemütliche Holzbank (zum Aufwärmen bei Ekelwetter) daranzubauen.
 
AW: Neue Küche für neuen Bauernhof – eine echte Herausforderung!

Da ist dann aber nicht mehr viel Platz für Küchenmöbel und ähnliches.
Es gibt Materialien, die die Wärme nicht so durch lassen, da kann man sich ja erkundigen, wir haben für unseren Zuluftschacht damals (unnötiger Weise) auch so bestimmte Platten gekauft, die die Wärme nicht so aufnehmen.
Wenn der Ofen richtig heiß wird, sitzt da auch keiner direkt neben, merke ich ja bei unserem Schwedenofen, da liegt höchstens der Hund direkt vor, alle anderen halten schon 1m Abstand;-)
 

Ähnliche Beiträge

Neff Hausgeräte Ballerina Küchen Blum Bewegungstechnologie Weibel - Intelligente Küchenlüftung

Neff Spezial

Blum Zonenplaner

Weibel Abluft-Tuning

Weibel Abluft-Tuning
Zurück
Oben