Unbeendet Neubau Küchenplanung

masterofeye

Mitglied
Beiträge
2
Neubau Küchenplanung

Hallo Küchenexperten :-),

meine Frau und ich planen aktuell, nach langer Grundstückssuche, unser Haus. Wir möchten nächstes Jahr anfangen zu bauen (je nach dem was Corona und co. noch für Stolpersteine in den Weg legen).

Aktuell sind wir zu zweit aber weitere Mitbewohner sind geplant (Kinder ;-))

Hauptaugenmerk:

- viel Arbeitsfläche
- viel Stauraum
-> Unterbringung Tupper/Töpfe
-> Vorratsschrank mit Lock & Lock Dosen
- Umluft Abzugshaube
- Große Spüle
- MULP

Details:

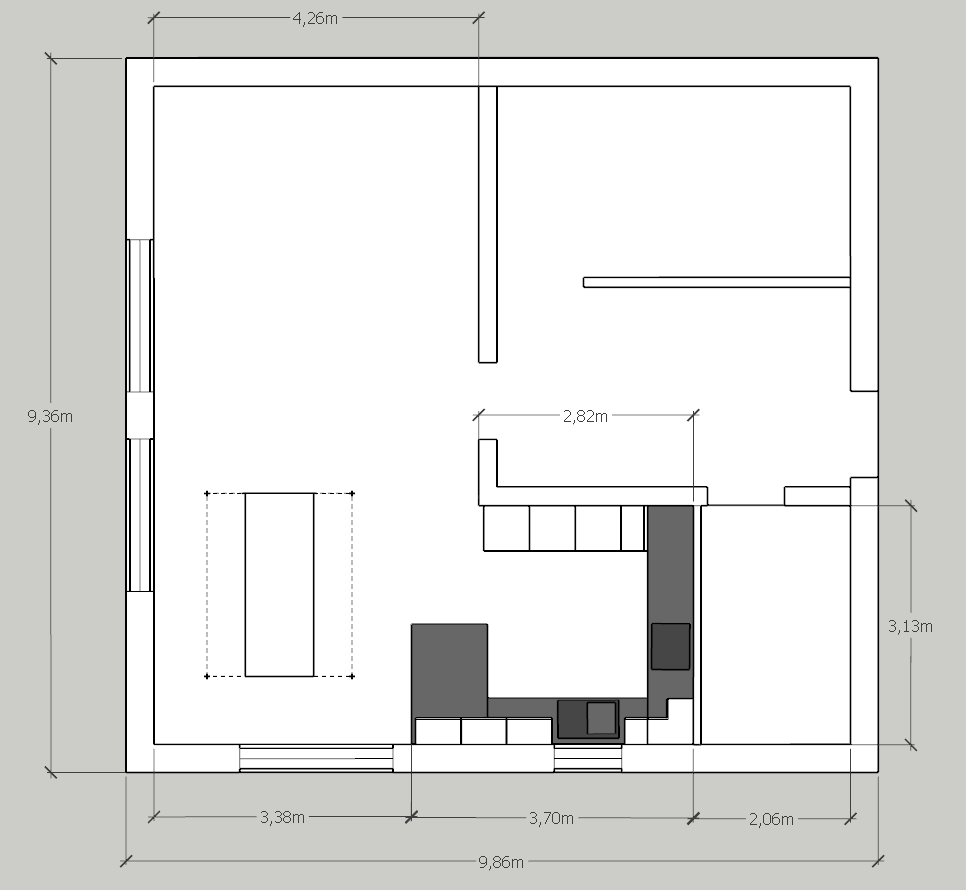
Der Grundriss ist so ziemlich fix, hängt mit unseren Raumvorstellungen und natürlich den Kosten zusammen. Da wir mit einem Nutzkeller bauen, versuchen wir die Hausmaße so kompakt wie möglich zu halten.
Das Fenster ließe sich aber noch umplanen.

Wir hatten zunächst mit 4*60er Hochschränken geplant, mussten nun aber auf 3*60 + 1*30 umschwenken.
Ich hatte heute noch überlegt, die Mikrowelle doch mit den Hochschrank für den Backofen zu kombinieren und noch einen weiteren Vorratsschrank zu erhalten. Meine Frau war noch skeptisch.

Ursprünglich wollten wir auch einen Side-by-Side Kühlschrank aber der Platz ist uns ausgegangen :-). Keller oder Hauswirtschaftsraum bekommen nun noch einen kleinen Gefrierschrank.

Was leider auf den Bildern noch fehlt ist noch ein Aufsatzschrank mit Rollladen über der toten Ecke, um alle weiteren el. Geräte drin zu verstauen.

Im Anschluss folgt ein 60er Unterschrank mit Auszügen (1-1-2-2), ein 30er Apotheker und ein 90er Unterschrank mit Auszügen (1-1-2-2).
Meine Frau möchte gern den 30er Apotheker für die Unterbringung von Flaschen (Öle, Salatsoßen usw.) haben. Ich hatte zunächst mit einem zweiten 90er geplant. Was meint ihr dazu?

Auf dem 90er Unterschrank soll dann auch das Induktionskochfeld seinen Platz bekommen. Aktuell schwanken wir noch zwischen einem 60er oder 80er Kochfeld. Mit unserem bisherigen Kochverhalten müssen wir die Töpfe und Pfannen schon immer mal wieder hin und herschieben auf einer 60er Fläche. Tendenz deswegen zu 80er Kochfeld (Bilder zeigen 60er).

Wir planen, aufgrund unseres Heizungskonzepts, mit einer KWL.
Die Thematik KWL und Dunstabzugshauben ist keine leichte, weshalb wir uns hier etwas Hilfe erhoffen. Die Entscheidung geht zu einem Umluftabzug. Der Hauptgrund gegen einen Abluftabzug sind vor allem die Kosten. Auch bin ich von den Konzepten der Lösungen nicht wirklich überzeugt.
Welche Hersteller/Modelle könnt ihr empfehlen (Fokus: "Umluftleistung", Reinigung und Verbrauchsmittel).

Nach der zweiten toten Ecke kommt ein weiterer 90er Unterschrank mit Auszügen unter der Spüle.
Die Spüle sollte dafür geeignet sein mal ein Backblech oder Grillrost zu reinigen. Abtropffläche wäre uns auch wichtig. Einen klaren Kandidaten haben wir noch nicht.

Der GSP und ein geplanter MULP (50er) folgen im Anschluss.

Zu guter Letzt noch ein 90er Unterschrank mit Auszügen.
Gegenüber dem wünscht sich meine Frau noch eine Sitzmöglichkeit. Dies haben wir aktuell mit einer Verlängerung der Arbeitsplatte gelöst und noch einen 30er Unterschrank mit Auszügen platziert.

Apropos Arbeitsplatte, wir möchten so nahe wie möglich bei unserem Budget bleiben, weshalb eine Natursteinarbeitsplatte wohl nicht möglich ist. Ich spiele dennoch mit den Gedanken die Spüle und auch das Induktionskochfeld flächenbündig in eine Schichtstoffarbeitsplatte über eine Falzfräsung und Epoxidharz einbauen zu lassen. Empfehlenswert oder lieber Finger weg?

Meine Frau möchte eine "pflegeleichte" Küche und bevorzugt deswegen weiße Hochglanz-Fronten. Die Arbeitsplatte soll in Richtung Grau/Anthrazit gehen.

Mehr fällt mir erstmal nicht ein.
Über jegliche Kritik und/oder Anmerkungen sind wir sehr dankbar. Sofern etwas fehlen sollte, liefern wir es schnellstmöglich nach.

Checkliste zur Küchenplanung

Personenkriterien und Ergonomie
Anzahl Personen im Haushalt: 2
Davon Kinder: keine
Körpergrößen aller Hauptbenutzer in cm (wegen Arbeitshöhe ): 164, 182
Welche Arbeitshöhe ist angedacht (in cm)?: 91

Gebäudekriterien
Art des Gebäudes: Neu-/Umbau > Planänderungen möglich
Brüstungshöhe des Fensters (in cm): 95
Fensterhöhe (in cm): 95
Raumhöhe in cm: 250
Heizung: Fußbodenheizung
Sanitäranschlüsse: vollkommen variabel

Einbaugerätekriterien
Ausführung Kühlgerät: Integriert im Hochschrank (60cm)
Einbaukühlgerät Größe: 178cm
Ausführung Tiefkühl (TK)-Gerät: Im Kühlschrank ab 3 Schubladen unten
Dunstabzugshaube: Umluft
Hochgebauter Backofen : ja
Geplante Heißgeräte: Einbaumikrowelle, Backofen
Hochgebauter Geschirrspüler : nein
Art des Kochfeldes: Induktion
Kochfeldbreite (ca. in cm): 80

Sitzmöglichkeiten
Sitzmöglichkeit in der Küche / im Küchenbereich: Überstehende Arbeitsplatte
Sitzmöglichkeit: Für wieviel Personen?: Für 1 Person
Sitzmöglichkeit: Tisch - wenn gesonderter Tisch oder offene Küche: Keiner
Gewünschte oder vorhandene Tischgröße:
Wofür soll der Sitzplatz in der Küche genutzt werden und wie häufig: Mal einen Kaffee trinken oder bei der Küchenarbeit helfen.

Stauraumplanung
Was steht auf der Arbeitsplatte oder soll dort stehen?: Kaffeemaschine
Welche weiteren Küchenmaschinen müssen in der Küche untergebracht werden: Küchenmaschine, Wasserkocher, Mixer, Pürierstab
Was soll in der Küche außer den Standards untergebracht werden: ALLE Vorräte, Geschirr komplett (nichts in Ess-/Wohnzimmer)
Welchen Stauraum gibt es sonst noch: Hauswirtschaftsraum, Keller

Kochgewohnheiten
Was/wie wird gekocht? (Alltagsküche, Menüs, Snacks usw): Wir kochen unter der Woche jeden Abend (von Suppe bis Braten ist alles dabei). Am Wochenende wärmen wir auch mal Mittags noch die Reste auf.
Wie häufig wird gekocht: (fast) täglich 1x warm
Wird alleine gekocht? Oder auch gemeinsam? Mit und für Gäste?: Meine Frau und ich kochen zusammen. Sonst niemand

Spülen und Müll
Spülenform: Noch nicht festgelegt
Welche Mülltrennung soll in der Küche vorgehalten werden: Biomüll, Gelber Sack Müll, Restmüll

Sonstiges
Steht schon ein Küchenhersteller fest oder wird bevorzugt: Nein, aktuell nicht. Korpushöhe sollte aber für 91cm optimal sein
Steht schon ein Gerätehersteller fest oder wird bevorzugt: Siemens wird von meiner Frau bevorzugt. Ich richte mich nach Preis/Leistung/Qualität
Küchenstil: Klassisch
Was stört an der bisherigen Küche und was soll die neue Küche unbedingt können? Warum?:
Preisvorstellung (Budget): 15000

Angehängte Dateien
 

Anhänge

  • Küche_Eck.jpg
    Küche_Eck.jpg
    82,1 KB · Aufrufe: 186
  • Küche_Hochschränke.jpg
    Küche_Hochschränke.jpg
    78,4 KB · Aufrufe: 166
  • Küche_Kochfeld.PNG
    Küche_Kochfeld.PNG
    27,8 KB · Aufrufe: 171
  • Küche_Sitzecke.jpg
    Küche_Sitzecke.jpg
    49,3 KB · Aufrufe: 181
  • Küche1.PNG
    Küche1.PNG
    24,5 KB · Aufrufe: 203
  • Küche_Spüle.jpg
    Küche_Spüle.jpg
    76,1 KB · Aufrufe: 188
Hallo und herzlich willkommen.

Schöner EIngangspost, alles dabei :2daumenhoch:

cklickt euch mal ein Bisschen durch die Fertigen Küchen, damit ihr eine Vorstellung bekommt, wo welche Auszüge, wo GSP Und MUPL stehen, sowie Abstände zwischen Kochfeld und Spüle.

Ich würde die BRH der AP anpassen, dh so hoch machen, dass die AP in die Fensterbrüstung weiterläuft wie hier bei Magnolia.

Magnolia Spüle.jpg
Der MUPL ist besser unter der Hauptarbeitsfläche platziert wie hier bei Muckelina

Muckelina MUPL.jpg
also zwischen Kochfeld und Spüle. Wenn der GSP nicht höher eingebaut werden soll, hat sich die Reihenfolge MUPL-Spüle-GSP oder umgekehrt bewährt, der GSP möglichst nicht irgendwo mitten drin.

Ich würde ein 80er Kochfeld bevorzugen, ihr habt den Platz dafür.

Viele haben ein 50cm breites Becken mit Einhängesieb, gibt es günstig von IKEA . Man sit flexibel damit, das Sieb kann auch in die Spüle.
 
Ich bin kein Profi, deshalb kann ich hier nur meine persönliche Hinweise geben. Aus optischen Gründen würde ich den Hängeschrank nicht übers Eck machen. Und ich würde gern beim Schneiden und Vorbereiten aus dem Fenster schauen. Ferner würde mir die Reihenfolge (Von links nach rechts) Spülen, Vorbereiten, Kochen, Anrichten gut gefallen. Aus diesen Überlegungen würde ich in deinem Entwurf Spülen und Kochen tauschen und die Vorbereitungsfläche großzügiger planen als im ersten Entwurf. Also das Kochfeld rechts vom Fenster machen. Wenn das grundsätzlich gut gefällt, dann kann man schauen wo der MUPL am besten platziert werden kann. Ich habe keine Programme installiert, daher kann ich dir nichts visualisieren. Aber ich habe hier zwei Bilder beigefügt, die deinem Entwurf nahe kommen und wo Spülen und Kochen so positioniert sind wie ich es beschrieben habe. Ich würde auch überlegen, ob du die Abtropffläche grundsätzlich benötigst. Ich habe mich in meiner neuen Küche dagegen entschieden.
 

Anhänge

  • 2C56B480-D16F-4EB8-BEF5-77DA86033C21.jpg
    2C56B480-D16F-4EB8-BEF5-77DA86033C21.jpg
    51,3 KB · Aufrufe: 165
  • 593594B1-1F26-4EF7-BCF1-10C8E4516ACC.jpg
    593594B1-1F26-4EF7-BCF1-10C8E4516ACC.jpg
    48,7 KB · Aufrufe: 167
Hallo und Danke für das Feedback.

Wir hatten den GSP auch schon mal an eine der Seiten positioniert, hatten dann aber bedenken, das stetig etwas an die Fronten spritzt (weil z.b. im Glas doch noch was drin war ...).

Das mit der BRH nehmen wir auf jeden Fall mal zum Archi mit.

Bezüglich der Anordnungen werden wir uns nochmal Gedanken machen. Hintergrund, das Kochfeld "hinten" zu platzieren war es Umluft und KWL effektiver zu nutzen, um Kochgerüche nicht im Wohnzimmer zu verteilen. Ich weiß natürlich, dass das alles seine Grenzen hat ;-).
 
Kochfeld an die Wand finde ich auch gar nicht verkehrt. Nur sollte zwischen Kochfeld und Spüle mehr Platz sein, da hier in der Regel die Hauptarbeitsfläche ist. Und ich würde auch lieber vorm Fenster schnippeln als dort abzuspülen.
Wieso packt ihr den GSP nicht in einen der HS?
 

Ähnliche Beiträge

Neff Hausgeräte Ballerina Küchen Blum Bewegungstechnologie Weibel - Intelligente Küchenlüftung

Neff Spezial

Blum Zonenplaner

Weibel Abluft-Tuning

Weibel Abluft-Tuning
Zurück
Oben