Schaefle87
Mitglied
- Beiträge
- 9
Hallo ihr!
Erst mal ein großes Lob für alles, was ihr hier macht! Im Folgenden stelle ich mal meine Planung ein. Würde mich einfach über eure Gednken freuen, man kann nie genug Anregung haben.
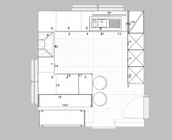
Wasser- und Stromanschlüsse sind noch frei. Auch die Brüstung der Fenster wollen wir der Arbeitsplatte anpassen und diese in die Leibung reinlaufen lassen. Auf der linken Seite ist die Arbeitsplatte übertief (70cm).
Unterschränke von links nach rechts:
50cm – 1 Schubkasten, 1 Auszug
90cm – mit Induktionskochfeld 80cm, ein niederer Schubkasten, 2 Auszüge
LeMans -Eckschrank
90 cm - 1 Schubkasten, 2 Auszüge
90 cm - 1 Schubkasten, 2 Auszüge
Eckspülenschrank
30m – 2 Auszüge, in beiden Abfallsammelsysteme
Seitenschränke (von oben nach unten):
60cm – Fach mit Einlegeböden, hochgesetzter Geschirrspüler , Auszug (Ansicht entspricht nicht dem tatsächlichen Aussehen, das hab ich leider nicht hinbekommen, sorry)
60cm – Klappe, Einbaumikrowelle, Backofen , Auszug
60cm – Tür, Kühlschrank 140cm mit Gefrierfach und 0°Zone
Oberschränke:
(Dunstesse 90cm), kopffrei
30cm Tür
80 cm Eckoberschrank mit Tür
Je 60 cm Über der Spüle sind zwei Oberschränke mit Tür
Die Fronten in der Planung haben noch nichts mit unseren Wünschen zu tun. Da kann ich mich noch nicht entscheiden, was ich will.
Wir wollen auf alle Fälle den Essplatz in der Küche.
Im Moment ist die Spüle sehr weit weg vom Herd, aber ich möchte unbedingt den Geschirrspüler hochgesetzt haben, sodass dies dabei rausgekommen ist. Bin aber auch offen für andere Vorschläge.
Hoffe, ich habe nichts vergessen. Vielen Dank schon mal für eure Ideen.
Schaefle
Checkliste zur Küchenplanung von Schaefle87
Anzahl Personen im Haushalt : 3
Davon Kinder? : 1
Körpergrössen aller Hauptbenutzer (wegen Arbeitshöhe ) in cm : 170cm, 172cm
Art des Gebäudes? : Neu-/Umbau, Planänderungen nicht möglich
Brüstungshöhe des Fensters (in cm) : flexibel
Fensterhöhe (in cm) : flexibel
Raumhöhe in cm: : 230cm
Heizung : Fussbodenheizung
Sanitäranschlüsse : vollkommen variabel
Ausführung Kühlgerät? : Integriert im Hochschrank (60cm)
Kühlgerät Größe : bis 140 cm Höhe
Ausführung Tiefkühl (TK)-Gerät : Im Kühlschrank als kleines Fach oben
Dunstabzugshaube? : Abluft
Hochgebauter Backofen ? : Ja
Hochgebauter Geschirrspüler ? : ja
Kochfeldart? : Induktion
Kochfeldbreite ca. (in cm)? : 80
Spülenform: : 1,5 Becken mit Abtropffläche
Weitere geplante Heißgeräte : Einbaumikrowelle
Küchenstil? : modern
Sitzmöglichkeit in der Küche / im Küchenbereich als : Gesonderter Tisch
Sitzmöglichkeit: Für wieviel Personen? : für 5 Personen
Sitzmöglichkeit: Tisch - wenn gesonderter Tisch oder offene Küche : Wird nach Bedarf neu gekauft
Gewünschte o. vorhandene Tischgröße : 80x120cm
Wofür soll der Sitzplatz in der Küche genutzt werden? Wie häufig? : täglich für alle Mahlzeiten
Welche Arbeitshöhe ist angedacht (in cm)? : 86cm, bin aber am überlegen, ob 90cm nicht besser wäre
Was steht auf der Arbeitsplatte oder soll dort stehen? : Kaffeevollautomat, Wasserkocher, Messerblock, Brotbehälter, Obstschale
Welche weiteren Küchenmaschinen müssen in der Küche untergebracht werden? : Küchenmaschine, Toaster, Handrührgerät, Eierkocher
Was soll in der Küche außer den Standards untergebracht werden? : Geschirr komplett (nichts in Ess-/Wohnzimmer)
Welchen Stauraum gibt es sonst noch? : Speisekammer, Keller
Was/wie wird gekocht? (Alltagsküche, Menüs, Snacks usw) : Alltagsküche
Wie häufig wird gekocht? : (fast) täglich 1x warm
Wird alleine gekocht? Oder auch gemeinsam? Mit und für Gäste? : min. Platz für zwei
Was stört an der bisherigen Küche und was soll die neue Küche unbedingt können? Warum? : zu wenig Platz auf der Arbeitsfläche, man stößt sich ständig den Kopf an der Dunstabzugshaube, fast kein Stauraum, zu kleiner Kühlschrank
Steht schon ein Küchenhersteller fest oder wird bevorzugt? : bisher haben wir mit Alno geplant
Steht schon ein Gerätehersteller fest oder wird bevorzugt? : Neff und AEG (Backofen mit Dampfgarfunktio und Mikrowelle )
Preisvorstellung (Budget) : bis 15.000,-
Erst mal ein großes Lob für alles, was ihr hier macht! Im Folgenden stelle ich mal meine Planung ein. Würde mich einfach über eure Gednken freuen, man kann nie genug Anregung haben.
Wasser- und Stromanschlüsse sind noch frei. Auch die Brüstung der Fenster wollen wir der Arbeitsplatte anpassen und diese in die Leibung reinlaufen lassen. Auf der linken Seite ist die Arbeitsplatte übertief (70cm).
Unterschränke von links nach rechts:
50cm – 1 Schubkasten, 1 Auszug
90cm – mit Induktionskochfeld 80cm, ein niederer Schubkasten, 2 Auszüge
LeMans -Eckschrank
90 cm - 1 Schubkasten, 2 Auszüge
90 cm - 1 Schubkasten, 2 Auszüge
Eckspülenschrank
30m – 2 Auszüge, in beiden Abfallsammelsysteme
Seitenschränke (von oben nach unten):
60cm – Fach mit Einlegeböden, hochgesetzter Geschirrspüler , Auszug (Ansicht entspricht nicht dem tatsächlichen Aussehen, das hab ich leider nicht hinbekommen, sorry)
60cm – Klappe, Einbaumikrowelle, Backofen , Auszug
60cm – Tür, Kühlschrank 140cm mit Gefrierfach und 0°Zone
Oberschränke:
(Dunstesse 90cm), kopffrei
30cm Tür
80 cm Eckoberschrank mit Tür
Je 60 cm Über der Spüle sind zwei Oberschränke mit Tür
Die Fronten in der Planung haben noch nichts mit unseren Wünschen zu tun. Da kann ich mich noch nicht entscheiden, was ich will.
Wir wollen auf alle Fälle den Essplatz in der Küche.
Im Moment ist die Spüle sehr weit weg vom Herd, aber ich möchte unbedingt den Geschirrspüler hochgesetzt haben, sodass dies dabei rausgekommen ist. Bin aber auch offen für andere Vorschläge.
Hoffe, ich habe nichts vergessen. Vielen Dank schon mal für eure Ideen.
Schaefle
Checkliste zur Küchenplanung von Schaefle87
Anzahl Personen im Haushalt : 3
Davon Kinder? : 1
Körpergrössen aller Hauptbenutzer (wegen Arbeitshöhe ) in cm : 170cm, 172cm
Art des Gebäudes? : Neu-/Umbau, Planänderungen nicht möglich
Brüstungshöhe des Fensters (in cm) : flexibel
Fensterhöhe (in cm) : flexibel
Raumhöhe in cm: : 230cm
Heizung : Fussbodenheizung
Sanitäranschlüsse : vollkommen variabel
Ausführung Kühlgerät? : Integriert im Hochschrank (60cm)
Kühlgerät Größe : bis 140 cm Höhe
Ausführung Tiefkühl (TK)-Gerät : Im Kühlschrank als kleines Fach oben
Dunstabzugshaube? : Abluft
Hochgebauter Backofen ? : Ja
Hochgebauter Geschirrspüler ? : ja
Kochfeldart? : Induktion
Kochfeldbreite ca. (in cm)? : 80
Spülenform: : 1,5 Becken mit Abtropffläche
Weitere geplante Heißgeräte : Einbaumikrowelle
Küchenstil? : modern
Sitzmöglichkeit in der Küche / im Küchenbereich als : Gesonderter Tisch
Sitzmöglichkeit: Für wieviel Personen? : für 5 Personen
Sitzmöglichkeit: Tisch - wenn gesonderter Tisch oder offene Küche : Wird nach Bedarf neu gekauft
Gewünschte o. vorhandene Tischgröße : 80x120cm
Wofür soll der Sitzplatz in der Küche genutzt werden? Wie häufig? : täglich für alle Mahlzeiten
Welche Arbeitshöhe ist angedacht (in cm)? : 86cm, bin aber am überlegen, ob 90cm nicht besser wäre
Was steht auf der Arbeitsplatte oder soll dort stehen? : Kaffeevollautomat, Wasserkocher, Messerblock, Brotbehälter, Obstschale
Welche weiteren Küchenmaschinen müssen in der Küche untergebracht werden? : Küchenmaschine, Toaster, Handrührgerät, Eierkocher
Was soll in der Küche außer den Standards untergebracht werden? : Geschirr komplett (nichts in Ess-/Wohnzimmer)
Welchen Stauraum gibt es sonst noch? : Speisekammer, Keller
Was/wie wird gekocht? (Alltagsküche, Menüs, Snacks usw) : Alltagsküche
Wie häufig wird gekocht? : (fast) täglich 1x warm
Wird alleine gekocht? Oder auch gemeinsam? Mit und für Gäste? : min. Platz für zwei
Was stört an der bisherigen Küche und was soll die neue Küche unbedingt können? Warum? : zu wenig Platz auf der Arbeitsfläche, man stößt sich ständig den Kopf an der Dunstabzugshaube, fast kein Stauraum, zu kleiner Kühlschrank
Steht schon ein Küchenhersteller fest oder wird bevorzugt? : bisher haben wir mit Alno geplant
Steht schon ein Gerätehersteller fest oder wird bevorzugt? : Neff und AEG (Backofen mit Dampfgarfunktio und Mikrowelle )
Preisvorstellung (Budget) : bis 15.000,-
Anhänge
-
Eckspüle_Stand 01.02.2014.KPL3,9 KB · Aufrufe: 169
-
Ostseite.jpg57,7 KB · Aufrufe: 397 -
Westseite.jpg62,5 KB · Aufrufe: 220 -
Küchengrundriss.jpg22,1 KB · Aufrufe: 228 -
GrundrissErdgeschoss.jpg29,5 KB · Aufrufe: 250 -
Gesamtansicht.jpg48,9 KB · Aufrufe: 250 -
Essecke.jpg62,4 KB · Aufrufe: 301 -
Eckspüle_Stand 01.02.2014.POS8,6 KB · Aufrufe: 191





