Küche im neuen Häuschen - schon perfekt?

Helse

Mitglied
Beiträge
2
Hallo liebes Forum,

das Küchenplanung und -kauf nicht einfach sind, haben wir uns schon gedacht - aber diese Tortur war dann doch überraschend.

Die Grobplanung selbst ist unserer Meinung nach zu 80% fertig, ein großes Fragezeichen gibt es jedoch bei der Auswahl des Küchenherstellers und damit des Küchengeschäftes.

Nach mittlerweile 5 Angeboten ist eine direkte Vergleichbarkeit nicht im geringsten gegeben, da Details nicht herausgegeben werden (was ja allg. bekannt ist).

Favorit, rein preislich gesehen, ist derzeit Reddy-Küchen, jedoch kann man uns hier keinen konkreten Hersteller nennen, da alles unter Eigenmarke läuft. Welche Qualität sich dahinter verbirgt bleibt offen.

Kurz vorab: Es handelt sich um eine offene Küche in einem Neubauhaus. Oberfläche wäre Magnolie matt lackiert, Arbeitsplatte in Olive

Jetzt die Frage an die Fachleute im Forum:

a) Verbesserungsvorschläge zum Küchenlayout? Irgendwelche Dinge, die wir nicht berücksichtigt haben?

b) Tipps zur Auswahl möglicher Hersteller (Erfahrung mit Reddy?)

Wir haben alle möglichen Infos angehängt, wenn noch etwas fehlen sollte, bitte um kurze Info.

Vielen Dank vorab

Liebe Grüße
Tanja und Dirk


Checkliste zur Küchenplanung von Helse

Anzahl Personen im Haushalt : 3
Davon Kinder? : 1
Körpergrössen aller Hauptbenutzer (wegen Arbeitshöhe ) in cm : 183, 170, 50
Art des Gebäudes? : Neu-/Umbau, Planänderungen möglich
Brüstungshöhe des Fensters (in cm) : 108
Fensterhöhe (in cm) : 115
Raumhöhe in cm: : 250
Heizung : Fussbodenheizung
Sanitäranschlüsse : vollkommen variabel
Ausführung Kühlgerät? : Integriert im Hochschrank
Kühlgerät Größe : bis 140 cm Höhe
Ausführung Tiefkühl (TK)-Gerät : Im Kühlschrank als kleines Fach oben
Dunstabzugshaube? : Umluft
Hochgebauter Backofen ? : Ja
Hochgebauter Geschirrspüler ? : wenn möglich
Kochfeldart? : Induktion
Kochfeldbreite ca. (in cm)? : 80
Spülenform: : 1,5 Becken mit Abtropffläche
Weitere geplante Heißgeräte : Dampfgarer ohne Wasseranschluß
Küchenstil? : grifflos
Sitzmöglichkeit in der Küche / im Küchenbereich als : Tresen in Barhöhe
Sitzmöglichkeit: Für wieviel Personen? : für 3 Personen
Sitzmöglichkeit: Tisch - wenn gesonderter Tisch oder offene Küche : Keine
Gewünschte o. vorhandene Tischgröße : siehe Grundriss
Wofür soll der Sitzplatz in der Küche genutzt werden? Wie häufig? : Frühstück, kleinere Snacks
Welche Arbeitshöhe ist angedacht (in cm)? : 91
Was steht auf der Arbeitsplatte oder soll dort stehen? : Kaffeevollautomat, Wasserkocher, Messerblock, Obstschale
Welche weiteren Küchenmaschinen müssen in der Küche untergebracht werden? : Toaster, Handrührgerät, Mixer, Pürierstab
Was soll in der Küche außer den Standards untergebracht werden? : Sonstiges (evtl. im Beitragstext benennen)
Welchen Stauraum gibt es sonst noch? : Geschirr/Gläserschrank im Wohn-/Esszimmer, Hauswirtschaftsraum, Keller
Was/wie wird gekocht? (Alltagsküche, Menüs, Snacks usw) : Alltagsküche,
Wie häufig wird gekocht? : ab und zu
Wird alleine gekocht? Oder auch gemeinsam? Mit und für Gäste? : Gemeinsam, 2 Personen
Was stört an der bisherigen Küche und was soll die neue Küche unbedingt können? Warum? : ---
Preisvorstellung (Budget) : bis 15.000,-
 

Anhänge

  • image001.jpg
    image001.jpg
    16,5 KB · Aufrufe: 222
  • Küche Ansicht 1.jpg
    Küche Ansicht 1.jpg
    40,1 KB · Aufrufe: 240
  • Küche Ansicht 2.jpg
    Küche Ansicht 2.jpg
    42,7 KB · Aufrufe: 226
  • Küche Ansicht 3.jpg
    Küche Ansicht 3.jpg
    36 KB · Aufrufe: 234
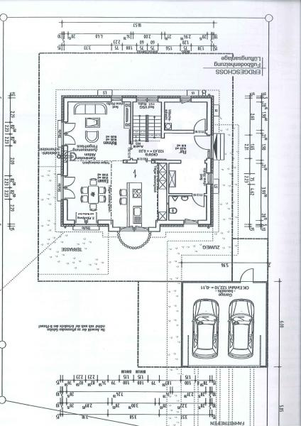
  • EGneu3.jpg
    EGneu3.jpg
    48,8 KB · Aufrufe: 267
  • Dirk-Tanja.KPL
    4,1 KB · Aufrufe: 235
  • Dirk-Tanja.POS
    10,5 KB · Aufrufe: 265
AW: Küche im neuen Häuschen - schon perfekt?

Hallo Helse,

willkommen hier im Kuechen-Forum.

Zu der Planung werden sicherlich noch einige Antworten kommen:-)

Ja, es wird einem nicht leicht gemacht mit der Vergleichbarkeit.

Ich glaub Reddy bietet zB. Wellmann Küchen an. Die ansich nicht schlecht sind.

Unverständlich und letztendlich als Auschlusskriterium würde für mich die Nichtbennenung des Herstellers sein, die dem Händler ja bekannt ist.
Wenn dir das Angebot von Reddy zusagt, würde ich auf die Nennung des Herstellers pochen.
 
AW: Küche im neuen Häuschen - schon perfekt?

Hallo Ihr beiden, und erst Mal herzlich :welcome: hier.

Schöne Eröffnung des Threads :2daumenhoch:, wenn es irgend geht bitte noch einen vermaßten Grundriss der Küche anbieten, da nicht jeder hier den Alnoplaner nutzt.
Die grundsätzliche Planung gefällt mir, ich selbst mag nur den Tresen nicht so wirklich.

Ansonsten mal viel Spass hier und viel nützlichen Input wünscht
Samy
 
AW: Küche im neuen Häuschen - schon perfekt?

Hallo Tanja und Dirk,
eigentlich eine sehr schöne Planung. Die Tresen finde ich auch nicht besonders praktisch. Was mich aber stören würde, ist die wenige Arbeitsfläche zwischen Kochfeld und Spülte. Vielleicht die Spüle etwas nach außen ziehen. Kochfeld da belassen, da man rechts auch Platz am Kochfeld braucht. (Thema "Absturzgefahr).
LG Magnolia
ZUSATZ: Um Arbeitsfläche zu gewinnen evtl. U-Form und am Fenster die Spüle setzen? Man kann auch hier aus der toten Ecke dann einen umgedrehten Schrank machen, den man weiter in Richtung Esszimemr setzt, den nicht so tiefen Schrank an der Stelle weglassen. So hat man hier einen US 60er Tiefe, der vom Esszimmer aus zu bedienen ist.
 
Zuletzt bearbeitet:
AW: Küche im neuen Häuschen - schon perfekt?

Also nur mal so was mir auf den ersten Blick auffällt ohne die Schrankaufteilung genauer anzusehen. Mir gefällt auch der Tresen nicht. In meinen Augen überflüssig da sich der Esstisch genau daneben befindet.
Das Kochfeld würde ich an die Wand machen, leicht versetzt zur Spüle. Dann hat man auf der Halbinsel viel Arbeitsfläche. So wäre mir viel zu wenig Platz zwischen Kochfeld und Spüle.

LG
Sabine
 
AW: Küche im neuen Häuschen - schon perfekt?

Da unterschreib ich mal bei Sabine - Kochfeld an die Wand, dann bleibt eine schöne Spüleninsel, wo man sich beim Schnippel ausbreiten kann, aber auch großzügig von drei Seiten zugängliche Fläche hat, die für Backaktionen toll ist ... sofern da kein Tresen im Weg ist. ;D Wenn ihr darauf nicht verzichten wollt, schiebt ihn Richtung Fenster hinter die Spüle. Wäre doch schade, sich ganz ohne Not den Vorteil der mehrseitig zugänglichen Arbeitsfläche zu nehmen. ;-)
 
AW: Küche im neuen Häuschen - schon perfekt?

Ja, wir haben auch eine von drei Seiten zugängliche große Koch- und Arbeitsinsel, das ist wirklich genial. Ich hab mich allerdings für das Kochfeld auf der Insel entschieden und nicht für die Spüle (die ist dem Kochfeld gegenüber in der Wandzeile), aber das ist ja Geschmacksache ;-). LG, Darla
 
AW: Küche im neuen Häuschen - schon perfekt?

Hallo,

vielen Dank für die ersten Antworten!

Die U-Form hatten wir vorher auch schon angedacht, dann allerdings verworfen weil dann am Fenster so ein totes Eck entsteht, das sich schlechter nutzen lässt als jetzt.

Die Einwände bzgl Platz zwischen Kochen und Spüle sind wohl berechtigt - da müssen wir nochmal drüber nachdenken.

Die jetzige Anordnung von Kochen und Spüle in der "Halbinsel" war von der Idee rein kommunikativer Natur. Beim Kochen gegen die Wand schauen wäre schade, da sich das Leben (Essbereich) ja auf der anderen Seite abspielt.

Der Tresen gefällt uns im Alnoplaner auch nicht so recht - so ganz verzichten wollen wir auch (noch) nicht drauf. Verschieben Richtung Fenster wäre ein guter Ansatz.

Für weitere Anregungen sind wir sehr dankbar.:2daumenhoch:

Gruss
Tanja und Dirk
 
AW: Küche im neuen Häuschen - schon perfekt?

Hallo Tanja und Dirk,
bei einem Unterschrank , der praktisch gedreht ist und Richtung Esszimmer schaut, wäre das keine tote Ecke, sondern man hätte den Platz ja genutzt.
LG Magnolia
 
AW: Küche im neuen Häuschen - schon perfekt?

Bei der Essenszubereitung wird normalerweise die wenigste Zeit mit Rühren in Töpfen und Pfannen zugebracht. Das meiste spielt sich der Arbeitsfläche neben der Spüle ab. Deshalb wird hier gern empfohlen, im Zweifel das Kochfeld an der Wand zu platzieren und Spüle samt Hauptarbeitsfläche auf der Insel: So guckt man die meiste Zeit Richtung Leben. ;-)

Andersrum, mit Spüle an der Wand und Koch-Arbeits-Insel, ist nur kommunikativ, wenn die Spülenzeile im rechten Winkel zum Essbereich läuft, wie bei Darla: Da kann man dann seitlich Richtung Tisch gucken und plaudern, statt den Gästen den Rücken zu zeigen.
 
AW: Küche im neuen Häuschen - schon perfekt?

Auf einer Arbeits- (& Spülen-)Insel wird: geschnibbelt, gestrudelt, Plätzchen gebacken und Nudeln zubereitet, Salat angerichtet und Kuchen belegt; Obst vorbereitet und Brot geknetet....

an einer Kochinsel wird pro Tag 10min gerührt ... ;D

in meiner Küche ist eine reine Arbeitsinsel - um diese versammelten sich am Wo-Ende 4 - 6 Personen in wechselnder Besetzung um die Mahlzeiten zuzubereiten - die Kochfeldzeile wurde nur benutzt um die gerüsteten Teller bereitzustellen ;-)
 
Neff Hausgeräte Ballerina Küchen Blum Bewegungstechnologie Weibel - Intelligente Küchenlüftung

Neff Spezial

Blum Zonenplaner

Weibel Abluft-Tuning

Weibel Abluft-Tuning
Zurück
Oben