Küche für Neubau - Kochfeld von Neff

simaha

Mitglied
Beiträge
10
Sodele nachdem ich nun schon seit Wochen lese und plane sowohl an Grundriss als auch an Küche brauch ich jetzt hilfe...

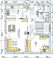
anbei mal meine Versuche und die Planungsdateien. Prinzipiell kann noch alles geändert werden - aber bevor ihr daraus eine Garage oder eine Villa macht, grob sollten schon die Wände / Maße schon bleiben. Türen/Fenster hab ich auch schonmal geschoben da bin ich auf Ideen gespannt.

Ich habe bisher schon einen 50cm Vorratsschrank super einfach genial.
Rondel und Le-Mains - beides nicht mehr da geh ich mit euch voll mit.
Ich hab nur 50cm zwischen Spüle und Herd das ist mir zu wenig.
Zu den Elektrogeräten es soll werden
90cm Ceranfeld - Endlich mehr Platz
BO - mit Grundfunktionen oder doch BO+DG Kombi?
Brotbackofen - passt in Standartmaß für EinbauMikro - wird nachgerüstet also erstmal Klappe
Mikrowelle ist z.Zt ein Standgerät in einem Oberschrank darf so bleiben oder hinter Klappe verschwinden
Spüma gerne Hochgebaut, weiß nur noch nicht wohin
und irgendwo muss auch noch ein Heizkörper hin... ja keine FBH ist so gewollt von Männe

Auf der Arbeitsfläche steht:
Kaffeevollautomat
große Teigknetmaschine kann auch evtl. in den Schrank mit Auszugtablar
Brotschneider
Brotbehälter
Obstkorb
Mixi
Wasserkocher
Messerblock
Ganz schön viel...
Und trotzdem sollte ein große/tiefe Arbeitsfläche bleiben für Brot- und etc. Backaktionen

Bin gespannt auf eure Hilfe
Grüße Silke



Checkliste zur Küchenplanung von simaha

Anzahl Personen im Haushalt : 3
Davon Kinder? : 1
Körpergrössen aller Hauptbenutzer (wegen Arbeitshöhe ) in cm : 166 u. 170 Höhe z.Z. 92cm nicht höher
Art des Gebäudes? : Neu-/Umbau, Planänderungen möglich
Brüstungshöhe des Fensters (in cm) : muss noch definiert werden
Fensterhöhe (in cm) : muss noch definiert werden
Raumhöhe in cm: : 250
Heizung : Heizkörper wie im Grundriss
Sanitäranschlüsse : vollkommen variabel
Ausführung Kühlgerät? : Integriert im Hochschrank (60cm)
Kühlgerät Größe : bis 140 cm Höhe
Ausführung Tiefkühl (TK)-Gerät : Nicht erforderlich bzw. steht woanders
Dunstabzugshaube? : Abluft
Hochgebauter Backofen ? : Ja
Hochgebauter Geschirrspüler ? : wenn möglich
Kochfeldart? : Ceran (herkömmlich)
Kochfeldbreite ca. (in cm)? : 90 cm
Spülenform: : 1,5 Becken mit Abtropffläche
Weitere geplante Heißgeräte : Standmikrowelle
Küchenstil? : modern
Sitzmöglichkeit in der Küche / im Küchenbereich als : Überstehende Arbeitsplatte
Sitzmöglichkeit: Für wieviel Personen? : für 1 Person
Sitzmöglichkeit: Tisch - wenn gesonderter Tisch oder offene Küche : Keine
Gewünschte o. vorhandene Tischgröße : keine
Wofür soll der Sitzplatz in der Küche genutzt werden? Wie häufig? : Möglichkeit für schnelle Tasse Kaffee und im sitzen schnippeln evtl. Unterschrank weglassen
Welche Arbeitshöhe ist angedacht (in cm)? : 92cm
Was steht auf der Arbeitsplatte oder soll dort stehen? : Kaffeevollautomat, Wasserkocher, Messerblock, Küchenmaschine, Allesschneider, Brotbehälter, Obstschale, Sonstiges (evtl. im Beitragstext benennen)
Welche weiteren Küchenmaschinen müssen in der Küche untergebracht werden? : Küchenmaschine, Handrührgerät, Mixer, Pürierstab, Sonstiges (evtl. im Beitragstext benennen)
Was soll in der Küche außer den Standards untergebracht werden? : Sonstiges (evtl. im Beitragstext benennen)
Welchen Stauraum gibt es sonst noch? : Geschirr/Gläserschrank im Wohn-/Esszimmer, Speisekammer, Keller
Was/wie wird gekocht? (Alltagsküche, Menüs, Snacks usw) : Alltagsküche
Wie häufig wird gekocht? : (fast) täglich 1x warm
Wird alleine gekocht? Oder auch gemeinsam? Mit und für Gäste? : gemeinsam
Was stört an der bisherigen Küche und was soll die neue Küche unbedingt können? Warum? : -geringer Abstand Kochfeld Spüle
-wenig Stauraum
-viel steht auf Arbeitsfläche
-
Steht schon ein Küchenhersteller fest oder wird bevorzugt? : nein
Steht schon ein Gerätehersteller fest oder wird bevorzugt? : Neff für Kochfeld TwistPad sonst noch nicht festgelegt
Preisvorstellung (Budget) : bis 15.000,-
 

Anhänge

  • 6er Raster.POS
    8,1 KB · Aufrufe: 172
  • 6er Raster.KPL
    3,9 KB · Aufrufe: 157
  • Plan Alno.jpg
    Plan Alno.jpg
    46,5 KB · Aufrufe: 186
AW: Küche für Neubau

Hallo,

könntest du noch bitte ein paar Ansichten deiner Alnoplanung einstellen sowie einen vermassten Grundriss in *.pdf? Planunten ist ein Durchgang?

LG
Evelin
 
AW: Küche für Neubau

Hallo Silke,

ein paar 3-D-Bilder wären sehr nett ;-), wenn du uns die spendieren würdest.

Induktion hast du schon komplett ausgeschlossen ? (mit Induktion würde auch der Wasserkocher wegfallen :cool:)

So eine Brotschneidemaschine ist auf der APL natürlich nicht der Bringer. :rolleyes:

Lieber würde ich dann eine Ritter-Allesschneider in einer Schublade einbauen (Schublade ab 30 cm, allerdings würde ich eher eine Schublade mit 45 cm wählen, damit man ggf. auch später freier in der Auswahl ist)

Einbau-Allesschneider
 
AW: Küche für Neubau

Als Bilder habe ich sie doch oben schon drin, zumindest kann ich sie sehen:-\

PDF geht leider die Woche nicht, da ich zuhause PDFs nicht bearbeiten kann und die ganzen Daten drin stehen....
ich probier nochmals die Bilder anzuhängen...
 

Anhänge

  • Grundriss EG.jpg
    Grundriss EG.jpg
    80 KB · Aufrufe: 186
  • Ansicht Plan oben.jpg
    Ansicht Plan oben.jpg
    40,6 KB · Aufrufe: 213
  • Ansicht Plan links.jpg
    Ansicht Plan links.jpg
    47,2 KB · Aufrufe: 197
AW: Küche für Neubau

Ist es jetzt sichtbar?

- Lässt sich so ein Allesschneider Nachrüsten? Brauch ich nur eine normale Schublade?
Grüße Silke
 
AW: Küche für Neubau

Hallo Silke,

die Bilder kann man sehen.:-)

Ja, so einen Allesschneider kann man nachrüsten. Man sollte halt daran denken, wo der später am sinnvollsten ist. Wie gesagt, ich würde dann an eine Schublade von mind. 45 cm denken (oder die 30er Schublade). Die Ritter-Allesschneider sind sehr gut, allerdings auch nicht billig (so ab 200,-- Euro). Schmale Schränke kosten allerdings in der Relation relativ viel Geld und wenn dann später nie ein Einbau-Allesschneider verbaut werden würde, wäre das dann auch "Perlen vor die Säue werfen". ;-)
 
AW: Küche für Neubau

Mh ob ich das bereit bin auszugeben... eher wohl ned. Mein billig Teil, ala 20 Euro tut jetzt schon 10 Jahre seinen Dienst... und will einfach nicht kaputt gehen, und einen guten kaufen für 80 Euronen würd ich mir schon überlegen, aber der Preis...
Dann doch lieber Steckdose in tiefe Schublade und kurz auf die AP stellen mit eingeklemmtem Kabel...
Grüße Silke
 
AW: Küche für Neubau

Ich hab jetzt nochmals gebastelt, beide Türen verschoben und das Fenster frei gelassen - nach langem lesen hier im Forum - gefällt mir das Fenster direkt hinter der Spüle nicht mehr. Das Fenster links war auch fälschlicherweise zu groß, tststs.

Was haltet ihr davon.. ich wollt eine Möglichkeit umkurz hinzusitzen und den Hocker zum draufsteigen drunterzuschieben... bei 166 einfach für die Hoch- und Oberschränke notwendig. Aber der hochgestellte GSM ist so wohl nicht möglich. Die Heizung wäre jetzt unter dem Tisch, ob das geht von der Dimensionierung muss ich auch noch klären. Und den Essbereich muss ich jetzt auch nochmals mit der geänderten Türposition möblieren. Aber das muss jetzt bis morgen warten.
Noch nen schönen Abend ich geh jetzt wieder schnief schnupf ins Bett. Mittlerweile tut auch noch der Hals weh- jetzt lohnt sich der Arzttermin morgen mal so richtig.
Grüße Silke
 

Anhänge

  • 6er Raster Fenster frei.KPL
    3,9 KB · Aufrufe: 163
  • 6er Raster Fenster frei.POS
    8,4 KB · Aufrufe: 177
  • Ansicht Plan links Fenster frei.jpg
    Ansicht Plan links Fenster frei.jpg
    51,4 KB · Aufrufe: 172
  • Ansicht Plan oben Fenster frei.jpg
    Ansicht Plan oben Fenster frei.jpg
    50,1 KB · Aufrufe: 236
  • Plan Alno Fenster frei.jpg
    Plan Alno Fenster frei.jpg
    45,2 KB · Aufrufe: 184
  • Ansicht Plan unten Fenster frei.jpg
    Ansicht Plan unten Fenster frei.jpg
    51,6 KB · Aufrufe: 170
AW: Küche für Neubau

Silke, so ganz optimal, finde ich, ist die Spülecke nicht. Wenn du den GSH aufmachst, kannst du nicht mehr vor der Spüle stehen.

Planunten in der linken Ecke wäre die Spüma vielleicht besser und die Spüle daneben. Ja, ich weiss, du willst das Ding nicht vor dem Fenster, aber praktischer wäre es schon. Die Spüma könnte dann auch erhöht sein, ober drauf vielleicht eine Kaffeemaschine?

LG
Evelin
 
AW: Küche für Neubau

Hallo Evelin,
ja die Problematik ist mir dann heute Nacht auch aufgefallen irgendwann mal.
Aber links unten geht nicht, die Glasbausteine sind eine Schiebetüre und dann könnte man bei geöffneter Spüle nicht mehr in die Küche laufen. Und zum Herd fänd ichs dann auch a bissle weit, um Wasser für die Töpfe zu bekommen.
Ach Menno ich dachte die Küchenplanung geht einfacher als das Haus. Aber falsch gedacht.
Grüße Silke
 
AW: Küche für Neubau

und wenn du die Schiebetür wieder etwas nach rechts schiebst, abschliessend mit den Hochschränken, dann könnte man die Spümatür problemlos öffnen oder? Dein kleiner Leseplatz könnte das nicht ein ausgezogener 'Schubladetisch' in einem US planoben rechts sein? Der Stuhl könnte ein Klappstuhl sein, der zwischen Eingangstür und der Zeile an der Wand hängt.

Oder du opferst 60cm US planoben rechts, ziehst die AP bis an die planrechte Wand und stellst dazu einen bequemen Barstuhl.
 

Anhänge

  • Ausziehtisch.JPG
    Ausziehtisch.JPG
    9,3 KB · Aufrufe: 270
AW: Küche für Neubau

:stocksauer:Mein Mann will die Türe zur Küche nicht links haben - Ergo nochmals alles anders.
Jetzt mal eine Variante mit entweder Rollschrank oder Ulla Schrank

Angefangen von rechts
60cm BO+Brotbackofen - Ullaschrank - 80cm US -60cm US- 60cm US - 80cm US- Spülenecke - 60cm US für Abfall - tote Ecke -50cm US -60cm US- Kühlschrank

Eure Meinungen?

Grüße Silke
 

Anhänge

  • Küche Ulla unten.jpg
    Küche Ulla unten.jpg
    48,3 KB · Aufrufe: 172
  • Küche Ulla links.jpg
    Küche Ulla links.jpg
    42,2 KB · Aufrufe: 181
  • Küche Ulla oben.jpg
    Küche Ulla oben.jpg
    55,4 KB · Aufrufe: 204
  • Küchenplan Ulla.jpg
    Küchenplan Ulla.jpg
    44 KB · Aufrufe: 148
  • Küche Ulla.KPL
    3,9 KB · Aufrufe: 211
  • Küche Ulla.POS
    8,3 KB · Aufrufe: 193
AW: Küche für Neubau

Würdet ihr die Spüma an der Position neben dem Kühlschrank hochbauen?:-\ Dafür keinen Hochschrank ?

Ganz liebe Grüße Silke
 
AW: Küche für Neubau

Ich habe einmal geplant.

Beginnend planunten, rechts:
Blende
60er US mit Auszug für Sitzplatz
40er Vorrat mit Innenauszugkönnte mit Kühli getauscht werden
BO mit momentan Klappfach für Mikrowelle , vorbereitet für Brotbackofen (ich backe mein Brot mit DGC)
Kühli oder Vorrat
Blende

Fenster frei

planoben, links beginnend:
Blende hochgesetzte GSM, Platz für Kaffeevollautomat
dann weiter in Übertiefe 75 cm:
60 Spüle, großes Spülbecken mit Abtropfschale ohne Abtropfe, 3-3
30er MUPL
90er Auszug 1-1-2-2 mit Fenster - BRH auf 110 wie das andere Fenster
90er Auszug mit Kochfeld - überlege noch einmal, ob nicht doch Induktion in Frage kommt, habe ich jetzt und es ist einfach nur genial
30er Auszug 3-3 für Höheres
tote Ecke

planrechts, ab toter Ecke:
60er Auszug 1-1-2-2 - leider ist hier der Schnippelplatz nicht möglich, da du dir die angrenzenden Schränke blockieren würdest.
Blende

An der rechten Wand OS, geplant mit Mikrowelle . Allerdings kann ich mit einer Mikrowelle nichts anfangen, da ich noch nie eine hatte und auch keine bekommen werde.

Ich denke, dass ich alles auf der Arbeitsfläche untergebracht habe. Den Messerblock habe ich mir gespart, die Messer kannst du sehr gut in einer Schublade unter dem Kochfeld unterbringen. Ich hatte auch bisher einen Messerblock und jetzt sind diese in einer Schublade. Den Wasserkocher verwende ich noch, bis er kaputt geht. Dann wird er ersatzlos gestrichen, denn du kannst dir nicht vorstellen, wie schnell das Wasser bei Induktion kocht.
 

Anhänge

  • Screenshot (27).jpg
    Screenshot (27).jpg
    66 KB · Aufrufe: 163
  • Screenshot (26).jpg
    Screenshot (26).jpg
    62,6 KB · Aufrufe: 154
  • Screenshot (25).jpg
    Screenshot (25).jpg
    55 KB · Aufrufe: 161
  • Screenshot (24).jpg
    Screenshot (24).jpg
    62,5 KB · Aufrufe: 150
  • Screenshot (23).jpg
    Screenshot (23).jpg
    86,5 KB · Aufrufe: 158
  • simaha_Mela.KPL
    3,9 KB · Aufrufe: 205
  • simaha_Mela.POS
    8,7 KB · Aufrufe: 187
AW: Küche für Neubau

Ein bisschen schwierig finde ich es ja, den Heizkörper unterzubringen. Wirklich keine FBH?

Die Fensterpositionen und Breiten habe ich jetzt mal aus dem eingestellten Grundriss rausgemessen.

Tendenziell würde ich auch überlegen, den Zugang zum Flur evtl. zu schließen. Jetzt habe ich dort mal noch eine 80er Tür gelassen .. als Schiebtür. Dann kann der Lichtschalter in die Wand planunten mit integriert werden.

Grundsätzlich würde ich die Fensterbrüstungen so planen, dass die APL in die Fensterlaibung gezogen werden kann, da dies gleich tiefe Stücken APL ermöglicht.

Dann einmal ein großes U und eine Halbinsel.

Das U mal rundum:
- 60er Hochschrank für Kühlschrank .. damit auch nah zum Esszimmer
- 60er Hochschrank für Backofen /Dampfgarer. Für Brot empfiehlt sich übrigens ein Dampfbackofen, auch DGC hier abgekürzt. Da gäbe es bei Neff auch Varianten. Dazu dann wie schon weiter oben evtl. auch ein Kombibackofen mit integrierter Mikrowelle .
- tote Ecke ... hier Abstellplatz Teigknetmaschine, die dann zur Benutzung vielleicht leicht vorgezogen werden kann. Auf jeden Fall hier ein freies Stück APL vorm Fenster. Hier könnte auch ein Ullaschrank Platz finden.
- 3x80er Auszugsunterschrank (ein 80er Kochfeld mit geschickter Aufteilung sollte bei dem Gedanken an DG reichen). Das Kochfeld auf dem mittleren 80er.
- 60er Spülenschrank mit einem hohen Frontauszug, in dem dann noch Gelber-Sack-Müll Platz hat. Auf einem Brett im Schrank dann die küchentypischen Putzmittel.
- tote Ecke
- 45er MUPL für Bio/Restmüll, evtl. noch Altpapier, unten Stauraum
- 100er Auszugsunterschrank .. hier Rasterung 1-2-3. Durch Ziehen der APL in die Fensterlaibung entsteht hier ein idealer Backplatz, Wasser gleich daneben.
- GSP um 3rasterigen Auszug erhöht, drüber Klappfach für Standmikrowelle

Planunten dann eine Halbinsel aus einem 90er Auszugsunterschrank mit überstehender APL .. Heizung zur Hälfte dort mit drunter. Hier Abstellplatz für KVA, Schneidemaschine. Ein Hocker, um sich mal zu setzen. Buffet könnte hier auch mal angerichtet werden.
 

Anhänge

  • simaha_20140311_kb1-altVS184.POS
    15,5 KB · Aufrufe: 178
  • simaha_20140311_kb1-altVS184_Grundriss.jpg
    simaha_20140311_kb1-altVS184_Grundriss.jpg
    27,7 KB · Aufrufe: 147
  • simaha_20140311_kb1-altVS184_Ansicht6.jpg
    simaha_20140311_kb1-altVS184_Ansicht6.jpg
    38 KB · Aufrufe: 167
  • simaha_20140311_kb1-altVS184_Ansicht5.jpg
    simaha_20140311_kb1-altVS184_Ansicht5.jpg
    29,4 KB · Aufrufe: 160
  • simaha_20140311_kb1-altVS184_Ansicht4.jpg
    simaha_20140311_kb1-altVS184_Ansicht4.jpg
    31,8 KB · Aufrufe: 164
  • simaha_20140311_kb1-altVS184_Ansicht3.jpg
    simaha_20140311_kb1-altVS184_Ansicht3.jpg
    28,4 KB · Aufrufe: 152
  • simaha_20140311_kb1-altVS184_Ansicht2.jpg
    simaha_20140311_kb1-altVS184_Ansicht2.jpg
    24,8 KB · Aufrufe: 149
  • simaha_20140311_kb1-altVS184_Ansicht1.jpg
    simaha_20140311_kb1-altVS184_Ansicht1.jpg
    26,6 KB · Aufrufe: 154
  • simaha_20140311_kb1-altVS184.KPL
    4,1 KB · Aufrufe: 154
AW: Küche für Neubau

HAllo Mela hallo Kerstin,
vielen Dank für eure Mühen.
Bei deiner Planung Mela vermisse ich den Platz links neben der Spüle. Hatte jetzt schon mehrere Küchen und ich brauch auf beiden Seiten Platz und ich finde die klassische Anordnung Abtropfbecken vom Herd weg immer noch am Besten.
Kerstin deine Planung muss ich mir noch genauer anschaun, aber die Idee mit der Halbinsel find ich klasse. Männe hat leider ganz starke Probleme mit Krampfadern und am liebsten hätte er das ganze Jahr keine festen Schuhe an und schön kühl an den Füßen - ich konnt ihn leider nicht von einer Fußbodenheizung überzeugen.. schnief.
Heute Nacht kam mir noch ne Idee mit einer verschiebbaren Theke. Jetzt muss ich mal spielen im Alno ...
Grüße SIlke
 
AW: Küche für Neubau

Ich habe jetzt seit 2 Jahren FBH. Eine moderne FBH, die im ganzen Haus verteilt ist, kann man nicht mehr mit den neuen FBHs vor 20 Jahren vergleichen. Da sind ja jetzt nur Vorlauftemperaturen von ca. 35°. Der Boden ist damit maximal so warm, wie man die Temperatur für den Raum einstellt. Vielleicht solltet ihr euch noch mal beraten lassen und vielleicht kann euch ein Heizungsbauer ja auch mal in einem bewohnten Haus das ganze zeigen und fühlen lassen.

Es ist wirklich sehr angenehm keine unpassenden Heizkörper mehr rumstehen zu haben :kiss:
 

Ähnliche Beiträge

Neff Hausgeräte Ballerina Küchen Blum Bewegungstechnologie Weibel - Intelligente Küchenlüftung

Neff Spezial

Blum Zonenplaner

Weibel Abluft-Tuning

Weibel Abluft-Tuning
Zurück
Oben