peter555
Mitglied
- Beiträge
- 14
Liebes Board
Zuerst schon mal Danke fürs Lesen und Mitdenken!
Voraussetzungen:
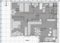
Wir planen einen sanften Umbau des einstöckigen EFHs aus den 60ern. Dabei wird durch einen Wanddurchbruch das Wohnzimmer vergrößert (aus zwei Räumen wird einer). In diesem neuen Raum soll neu die Küche und der Essplatz integriert sein. Die Räume sind ebenerdig zum Garten.
Wasser:
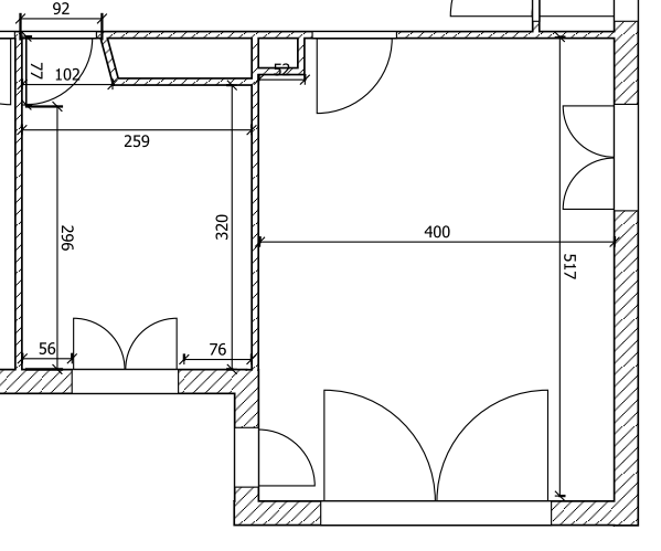
Der Wasseranschluss ist gegeben, allerdings ist das EFH vollständig unterkellert, da gibt es also etwas Spielraum. Im Alno -Plan habe ich den Wasseranschluss mit einem Dekor-Teller gekennzeichnet (ca. 30cm unterhalb der geöffneten linken Türe direkt an der Wand).
Elektro:
Die Elektroinstallationen werden sowieso vollständig erneuert, über den Keller ist da eigentlich alles zugänglich.
Raumaufteilung:
Die obere Raumeinbuchtung zwischen den Türen ist ein vom Korridor (oben am Plan) zugänglicher Wandschrank.
Türe oben links:
Wir hätten die linke Türe so gedreht, dass sie nach außen (zum Korridor) öffnet und den Durchgang mit einem Hochschrank von der Küche aus zugestellt. So würde im Korridor neben den Wandschrank weiterer Stauraum entstehen.
Ecklösung:
Zumal wir den Durchgang bei der zweiten Türe schließen wollen, brauchen wir dort einen Raum hohen Schrank / Trenner. Die Le-Mans-Dinger überzeugen uns nicht. Ausserdem verkleinert ein Eckschrank auch die Arbeitsfläche: Kreative Ideen? Wir hätten da die Idee, die Arbeitsfläche weiterzuziehen und so Abstellraum zu schaffen.
Platzmangel:
Die Küche sollte möglichst offen und kompakt sein, so dass das eher kleine verbleibende Wohnzimmer nicht noch kleiner wird. Deshalb haben wir auch von einer Insellösung abgesehen.
Heizkörper / Fenster:
Die konventionellen Heizkörper befinden sich unter den Fenstern. Von der Wand links sind es 67cm zum Heizkörper, 56cm zum Fensterbrett und 62cm zum Scharnier des Fensters.
Küchenmaschinen (auf der Arbeitsfläche):
Wasserkocher, Standmixer, Kaffeemaschine, ev. kleiner Transistorradio, ev. Früchteschale
Planungsstand:
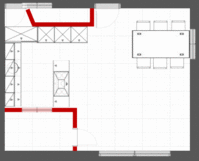
Unten sehr ihr eine von mir geplante L-Küche.
Wir waren bei zwei Möbelhäusern, welche uns durch ihr Geschäftsgebaren abgeschreckt haben. Ikea wäre eine Möglichkeit, die bieten aber keine schlauen Ecklösungen. Wir werden als nächstes eine Offerte eines Tischlers einholen, wollen da aber schon konkrete Vorstellungen haben.
Fragen:
Wie würdet ihr die Küche einteilen? Wir sind für alles was möglihc ist offen!
Habt ihr Lösungen, um den Raum möglichst gut zu nutzen?
Wo würdet ihr die Geräte (alles vollintegriert: Backofen klassisch, Backofen /Dampfgarer, Induktionsfeld, grosser Kühlschrank mit Gefrierfach, Geschirrspüler ) platzieren?
Tausend Dank für euer Feedback!
Peter
Checkliste zur Küchenplanung
Anzahl Personen im Haushalt: 4
Davon Kinder?: 2
Art des Gebäudes?: Bestandsbau, (kleinere) Umbauten möglich
Körpergrössen aller Hauptbenutzer (wegen Arbeitshöhe ) in cm: 185 und 175cm
Brüstungshöhe des Fensters (in cm): 87
Fensterhöhe (in cm): 120
Raumhöhe in cm: 239
Heizung: Heizkörper wie im Grundriss
Sanitäranschlüsse: variabel an aktueller Wand
Ausführung Kühlgerät: Integriert im Hochschrank (60cm)
Kühlgerät Größe: bis 178 cm Höhe
Ausführung Tiefkühl (TK)-Gerät: Nicht erforderlich bzw. steht woanders
Dunstabzugshaube: Abluft
Backofen etc. hochgebaut?: Wenn möglich
Hochgebauter Geschirrspüler ?: Wenn möglich
Kochfeldart: Induktion
Kochfeldbreite ca. (in cm)?: 60 - 90
Spülenform: 1 Becken ohne Abtropffläche
Geplante Heißgeräte: Backofen , Dampfbackofen (DGC) ohne Wasseranschluß
Küchenstil: Modern
Sitzmöglichkeit in der Küche / im Küchenbereich: Keine
Sitzmöglichkeit: Für wieviel Personen?: Nein
Sitzmöglichkeit: Tisch - wenn gesonderter Tisch oder offene Küche: Wird nach Bedarf neu gekauft
Gewünschte o. vorhandene Tischgröße: 4 (bis 6 erweiterbar)
Wofür soll der Sitzplatz in der Küche genutzt werden? Wie häufig?: Wohnküche, großer Tisch zum Essen und anderes
Welche Arbeitshöhe ist angedacht (in cm)?: 97
Was steht auf der Arbeitsplatte oder soll dort stehen?: Kaffeemaschine, Wasserkocher, Sonstiges (evtl. im Beitragstext benennen)
Welche weiteren Küchenmaschinen müssen in der Küche untergebracht werden?: Pürierstab
Was soll in der Küche außer den Standards untergebracht werden?: Geschirr komplett (nichts in Ess-/Wohnzimmer)
Welchen Stauraum gibt es sonst noch?: Keller
Was/wie wird gekocht? (Alltagsküche, Menüs, Snacks usw): Alltagsküche, eher aufwändige Gerichte
Wie häufig wird gekocht?: (fast) täglich 2x warm
Wird alleine gekocht? Oder auch gemeinsam? Mit und für Gäste?: alleine oder zu zweit
Was stört an der bisherigen Küche und was soll die neue Küche unbedingt können? Warum?: möglichst viel Arbeitsfläche, viel Stauraum
Welche Mülltrennung soll in der Küche vorgehalten werden?: Biomüll, Gelber Sack Müll
Steht schon ein Küchenhersteller fest oder wird bevorzugt?: nein
Steht schon ein Gerätehersteller fest oder wird bevorzugt?: nein
Preisvorstellung (Budget): bis 15.000,-
Zuerst schon mal Danke fürs Lesen und Mitdenken!
Voraussetzungen:
Wir planen einen sanften Umbau des einstöckigen EFHs aus den 60ern. Dabei wird durch einen Wanddurchbruch das Wohnzimmer vergrößert (aus zwei Räumen wird einer). In diesem neuen Raum soll neu die Küche und der Essplatz integriert sein. Die Räume sind ebenerdig zum Garten.
Wasser:
Der Wasseranschluss ist gegeben, allerdings ist das EFH vollständig unterkellert, da gibt es also etwas Spielraum. Im Alno -Plan habe ich den Wasseranschluss mit einem Dekor-Teller gekennzeichnet (ca. 30cm unterhalb der geöffneten linken Türe direkt an der Wand).
Elektro:
Die Elektroinstallationen werden sowieso vollständig erneuert, über den Keller ist da eigentlich alles zugänglich.
Raumaufteilung:
Die obere Raumeinbuchtung zwischen den Türen ist ein vom Korridor (oben am Plan) zugänglicher Wandschrank.
Türe oben links:
Wir hätten die linke Türe so gedreht, dass sie nach außen (zum Korridor) öffnet und den Durchgang mit einem Hochschrank von der Küche aus zugestellt. So würde im Korridor neben den Wandschrank weiterer Stauraum entstehen.
Ecklösung:
Zumal wir den Durchgang bei der zweiten Türe schließen wollen, brauchen wir dort einen Raum hohen Schrank / Trenner. Die Le-Mans-Dinger überzeugen uns nicht. Ausserdem verkleinert ein Eckschrank auch die Arbeitsfläche: Kreative Ideen? Wir hätten da die Idee, die Arbeitsfläche weiterzuziehen und so Abstellraum zu schaffen.
Platzmangel:
Die Küche sollte möglichst offen und kompakt sein, so dass das eher kleine verbleibende Wohnzimmer nicht noch kleiner wird. Deshalb haben wir auch von einer Insellösung abgesehen.
Heizkörper / Fenster:
Die konventionellen Heizkörper befinden sich unter den Fenstern. Von der Wand links sind es 67cm zum Heizkörper, 56cm zum Fensterbrett und 62cm zum Scharnier des Fensters.
Küchenmaschinen (auf der Arbeitsfläche):
Wasserkocher, Standmixer, Kaffeemaschine, ev. kleiner Transistorradio, ev. Früchteschale
Planungsstand:
Unten sehr ihr eine von mir geplante L-Küche.
Wir waren bei zwei Möbelhäusern, welche uns durch ihr Geschäftsgebaren abgeschreckt haben. Ikea wäre eine Möglichkeit, die bieten aber keine schlauen Ecklösungen. Wir werden als nächstes eine Offerte eines Tischlers einholen, wollen da aber schon konkrete Vorstellungen haben.
Fragen:
Wie würdet ihr die Küche einteilen? Wir sind für alles was möglihc ist offen!
Habt ihr Lösungen, um den Raum möglichst gut zu nutzen?
Wo würdet ihr die Geräte (alles vollintegriert: Backofen klassisch, Backofen /Dampfgarer, Induktionsfeld, grosser Kühlschrank mit Gefrierfach, Geschirrspüler ) platzieren?
Tausend Dank für euer Feedback!
Peter
Checkliste zur Küchenplanung
Anzahl Personen im Haushalt: 4
Davon Kinder?: 2
Art des Gebäudes?: Bestandsbau, (kleinere) Umbauten möglich
Körpergrössen aller Hauptbenutzer (wegen Arbeitshöhe ) in cm: 185 und 175cm
Brüstungshöhe des Fensters (in cm): 87
Fensterhöhe (in cm): 120
Raumhöhe in cm: 239
Heizung: Heizkörper wie im Grundriss
Sanitäranschlüsse: variabel an aktueller Wand
Ausführung Kühlgerät: Integriert im Hochschrank (60cm)
Kühlgerät Größe: bis 178 cm Höhe
Ausführung Tiefkühl (TK)-Gerät: Nicht erforderlich bzw. steht woanders
Dunstabzugshaube: Abluft
Backofen etc. hochgebaut?: Wenn möglich
Hochgebauter Geschirrspüler ?: Wenn möglich
Kochfeldart: Induktion
Kochfeldbreite ca. (in cm)?: 60 - 90
Spülenform: 1 Becken ohne Abtropffläche
Geplante Heißgeräte: Backofen , Dampfbackofen (DGC) ohne Wasseranschluß
Küchenstil: Modern
Sitzmöglichkeit in der Küche / im Küchenbereich: Keine
Sitzmöglichkeit: Für wieviel Personen?: Nein
Sitzmöglichkeit: Tisch - wenn gesonderter Tisch oder offene Küche: Wird nach Bedarf neu gekauft
Gewünschte o. vorhandene Tischgröße: 4 (bis 6 erweiterbar)
Wofür soll der Sitzplatz in der Küche genutzt werden? Wie häufig?: Wohnküche, großer Tisch zum Essen und anderes
Welche Arbeitshöhe ist angedacht (in cm)?: 97
Was steht auf der Arbeitsplatte oder soll dort stehen?: Kaffeemaschine, Wasserkocher, Sonstiges (evtl. im Beitragstext benennen)
Welche weiteren Küchenmaschinen müssen in der Küche untergebracht werden?: Pürierstab
Was soll in der Küche außer den Standards untergebracht werden?: Geschirr komplett (nichts in Ess-/Wohnzimmer)
Welchen Stauraum gibt es sonst noch?: Keller
Was/wie wird gekocht? (Alltagsküche, Menüs, Snacks usw): Alltagsküche, eher aufwändige Gerichte
Wie häufig wird gekocht?: (fast) täglich 2x warm
Wird alleine gekocht? Oder auch gemeinsam? Mit und für Gäste?: alleine oder zu zweit
Was stört an der bisherigen Küche und was soll die neue Küche unbedingt können? Warum?: möglichst viel Arbeitsfläche, viel Stauraum
Welche Mülltrennung soll in der Küche vorgehalten werden?: Biomüll, Gelber Sack Müll
Steht schon ein Küchenhersteller fest oder wird bevorzugt?: nein
Steht schon ein Gerätehersteller fest oder wird bevorzugt?: nein
Preisvorstellung (Budget): bis 15.000,-
Anhänge
-
grundriss.KPL3,9 KB · Aufrufe: 286
-
Ansicht-gross.gif193,2 KB · Aufrufe: 386 -
Ansicht-klein.gif249 KB · Aufrufe: 385 -
Hausplan.gif113 KB · Aufrufe: 408 -
Grundriss.gif55,2 KB · Aufrufe: 379 -
L.gif78,4 KB · Aufrufe: 377 -
L-Lösung.POS6,8 KB · Aufrufe: 256
-
L-Lösung.KPL3,9 KB · Aufrufe: 270
-
grundriss.POS4,6 KB · Aufrufe: 267
-
alt-Masse.gif24 KB · Aufrufe: 362














