kreative Ideen für kniffligen Umbau

Ist ja auch immer eine Frage, wie das Wohnzimmer genutzt wird.

Als reines Fernsehzimmer reicht der Raum, werden Gäste eher auf dem Sofa als am Tisch empfangen, ist der Raum zu klein (dann würde ich auch eine derartige Ausrichtung zum Fernseher vermeiden wollen).
 
Na ja, man muss mal vergleichen (Und von Position Kopf bis Fernseher sind es rund 220 cm ;-) ... wobei Fernseher gar nicht so die Rolle spielt, hatte ich so verstanden):
peter555_20151026_kb1_grundriss-jpg.196667


und z. B.

Annettes letzte Variante:
peter555_version5_g-jpg.196408


Das Wohnzimmer in meiner Variante oben links sähe auch schon wieder anders aus, wenn ich das Sofa so klein gezeichnet hätte ;-) .. Das hat nämlich in Annettes Variante nur 50 cm Sitztiefe. Ich habe 95 cm Sitztiefe.

Und in der Variante Sofa rechtsoben hat man im Grunde auch nicht mehr Platz als links, aber dafür keine richtige Fernsehposition und auch immer den Blick Richtung Küche.

In meiner Variante könnte es eher das Problem sein, dass eben die 260 cm Breite ein wenig einengend wirken, wobei der Blick ja eigentlich auch schön in den Raum geht.

Kommt halt wirklich drauf an, wozu man das Sofa überhaupt braucht ;-)
 
Da hast du Recht, mein Sofa hat zu wenig Sitztiefe.
Und: sie 'aben gar keinen Ferrnse-är :cool:
 
Danke euch allen fürs Mitdiskutieren und Mitdenken. Wir werden uns wohl für eine L-Lösung entscheiden, zumal dies aus unserer Sicht den Raum am besten nutzt. Dort gibts ja auch noch verschiedene Varianten.
 
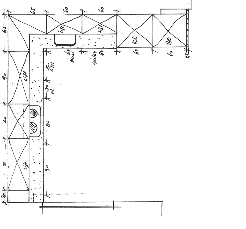
Hier Mal die Skizze des ersten Küchenbauers. Anhand dieser wird er uns nun ein Angebot unterbreiten. Wir haben absichtlich das Kochfeld am Fenster platziert (angenehmer am Fenster zu arbeiten), auch wenn es vom Weg zu Backöfen und Kühlschrank bei der Spüle mehr Sinn gemacht hätte. In der Ecke ist unten ein Le-Mans-Schrank (LM) und oben ein Eckschrank mit. Neben den Kochfeld ein Flaschenauszug (FL). Ausserdem hat er uns zu Lifttüren bei den Oberrschränken geraten. KS = Küschrank 178cm; BO = Backofen (1x normaler Backofen und 1x kompaktes Multidampfgerät). Plan untenlinks ist der Abschluss zum Fenster verblendet und bei den Oberschränken kommt ein offenes Gestell hin. Was meint ihr dazu?
 

Anhänge

  • entwurf1.gif
    entwurf1.gif
    77,3 KB · Aufrufe: 212
Kochfeld vors Fenster im offenen Raum = Deckenhaube oder NOGO
Le Mans = wenig Stauraum für sehr viel Geld Lieber einen 80er Auszug in der Aufteilung 1-2-3, dann passen in den unteren Auszug auch die Ölflaschen
 
links vom Kochfeld würde ich einen 60er US nehmen.

rechts vom Kochfeld dann einen 80er US und 30er US mit MUPL , dann tote Ecke.
 

Ähnliche Beiträge

Neff Hausgeräte Ballerina Küchen Blum Bewegungstechnologie Weibel - Intelligente Küchenlüftung

Neff Spezial

Blum Zonenplaner

Weibel Abluft-Tuning

Weibel Abluft-Tuning
Zurück
Oben