snowy18
Mitglied
- Beiträge
- 111
Hallo zusammen,
Mit Nachwuchs im Anmarsch geht es für uns im Dezember endlich in eine neue, größere Wohnung. Wir sind nun in den ersten Zügen unserer Küchenplanung und benötigen ein paar frische Ideen, uns raucht der Kopf und wir wissen nicht so recht weiter.
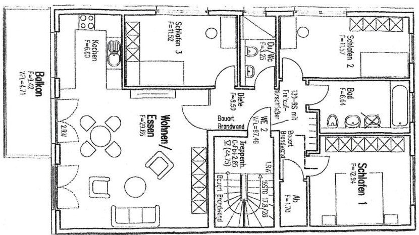
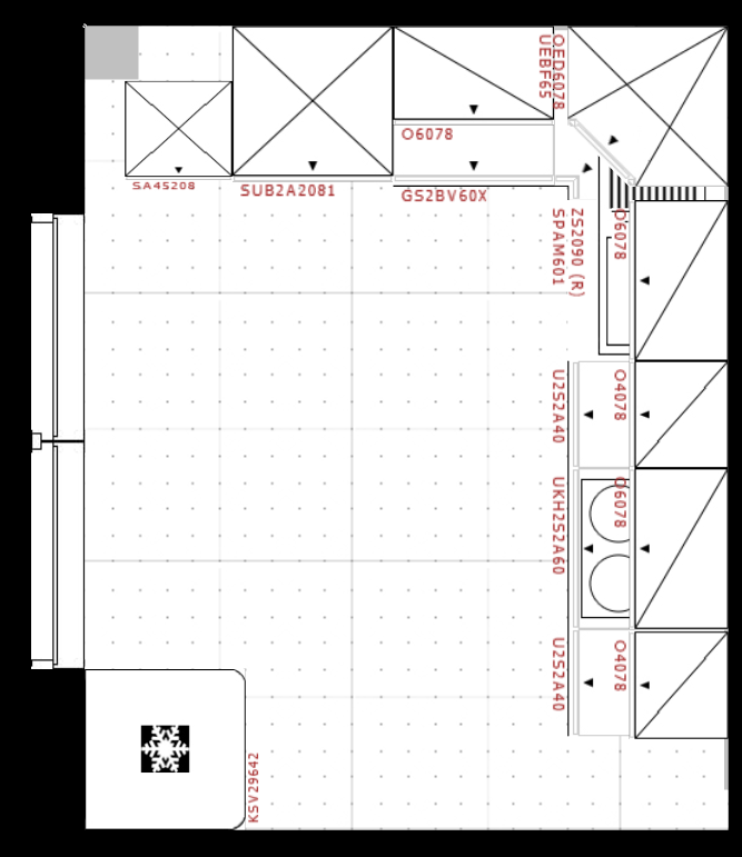
Die neue Küche ist Teil eines großen Wohn/Ess/Koch-Bereichs, nur scheint uns bei der Planung davon ausgegangen worden zu sein, dass das Essen meist bestellt wird... Trotz Neubau fehlt der Küche unserer Meinung einfach genau ein 60er Schrank in der Breite.
Hier würde ich gerne auf Eure Unterstützung bauen, seht ihr Möglichkeiten, den vorhandenen Platz anders und besser zu nutzen? Die Fenster in der Küche sind "leider" bodentief, sodass eine U-Form nicht wirklich in Frage kommt (zumal es dann auch noch recht eng wird).
Wir würden die Küche gerne bei IKEA kaufen (Elektro separat), da die einfach Erweiterbarkeit und Modularität in unseren Augen ein riesen Plus ist.
Die Planung sieht bisher ein ganz klassisches L vor, mit einem freistehenden Kühlschrank auf der anderen Seite zwischen den Fenstern. Ob die ganzen Oberschränke in der Planung so auch wirklich gebraucht werden sei mal dahingestellt, ich persönlich bin kein Fan davon - aber ich bin auch nicht derjenige, der viel Zeit in der Küche verbringt.
Was uns an der jetzigen Planung, wie im Titel beschrieben, vor allem stört ist die kleine, und nicht zusammenhängende Arbeitsfläche (und Abstellmöglichkeiten). Das haben wir jetzt schon in unserer derzeitigen Küche so, und nervt ungemein. Ich sehe nur leider nicht wirklich andere Möglichkeiten - ihr dafür vielleicht?!
Danke und viele Grüße,
Julian
Checkliste zur Küchenplanung
Anzahl Personen im Haushalt: 3
Davon Kinder?: 1
Art des Gebäudes?: Neu-/Umbau, Planänderungen nicht möglich
Körpergrössen aller Hauptbenutzer (wegen Arbeitshöhe ) in cm: 176
Brüstungshöhe des Fensters (in cm): 20
Fensterhöhe (in cm): 220
Raumhöhe in cm: 250
Heizung: Fussbodenheizung
Sanitäranschlüsse: fix
Ausführung Kühlgerät: Stand-Alone bis 60 cm Breite
Kühlgerät Größe: bis 178 cm Höhe
Ausführung Tiefkühl (TK)-Gerät: Im Kühlschrank bis 2 Schubladen unten
Dunstabzugshaube: Abluft
Backofen etc. hochgebaut?: Wenn möglich
Hochgebauter Geschirrspüler ?: Nein
Kochfeldart: Induktion
Kochfeldbreite ca. (in cm)?: 60
Spülenform: 1 Becken mit Abtropffläche
Geplante Heißgeräte: Standmikrowelle
Küchenstil: Modern
Sitzmöglichkeit in der Küche / im Küchenbereich: Keine
Sitzmöglichkeit: Für wieviel Personen?: Nein
Sitzmöglichkeit: Tisch - wenn gesonderter Tisch oder offene Küche: Keiner
Gewünschte o. vorhandene Tischgröße: -
Wofür soll der Sitzplatz in der Küche genutzt werden? Wie häufig?: -
Welche Arbeitshöhe ist angedacht (in cm)?:
Was steht auf der Arbeitsplatte oder soll dort stehen?: Küchenmaschine, Toaster
Welche weiteren Küchenmaschinen müssen in der Küche untergebracht werden?: Wasserkocher
Was soll in der Küche außer den Standards untergebracht werden?:
Welchen Stauraum gibt es sonst noch?: Geschirr/Gläserschrank im Wohn-/Esszimmer, Keller
Was/wie wird gekocht? (Alltagsküche, Menüs, Snacks usw):
Wie häufig wird gekocht?: (fast) täglich 1x warm
Wird alleine gekocht? Oder auch gemeinsam? Mit und für Gäste?: Meist alleine
Was stört an der bisherigen Küche und was soll die neue Küche unbedingt können? Warum?: Kaum Arbeitsfläche, und diese dann auch noch auf 3 einzelne 60cm Stücke verteilt, auf denen auch noch die Küchengeräte stehen
Welche Mülltrennung soll in der Küche vorgehalten werden?: Gelber Sack Müll, Restmüll
Steht schon ein Küchenhersteller fest oder wird bevorzugt?: Ikea
Steht schon ein Gerätehersteller fest oder wird bevorzugt?:
Preisvorstellung (Budget): bis 5.000,-
Mit Nachwuchs im Anmarsch geht es für uns im Dezember endlich in eine neue, größere Wohnung. Wir sind nun in den ersten Zügen unserer Küchenplanung und benötigen ein paar frische Ideen, uns raucht der Kopf und wir wissen nicht so recht weiter.
Die neue Küche ist Teil eines großen Wohn/Ess/Koch-Bereichs, nur scheint uns bei der Planung davon ausgegangen worden zu sein, dass das Essen meist bestellt wird... Trotz Neubau fehlt der Küche unserer Meinung einfach genau ein 60er Schrank in der Breite.
Hier würde ich gerne auf Eure Unterstützung bauen, seht ihr Möglichkeiten, den vorhandenen Platz anders und besser zu nutzen? Die Fenster in der Küche sind "leider" bodentief, sodass eine U-Form nicht wirklich in Frage kommt (zumal es dann auch noch recht eng wird).
Wir würden die Küche gerne bei IKEA kaufen (Elektro separat), da die einfach Erweiterbarkeit und Modularität in unseren Augen ein riesen Plus ist.
Die Planung sieht bisher ein ganz klassisches L vor, mit einem freistehenden Kühlschrank auf der anderen Seite zwischen den Fenstern. Ob die ganzen Oberschränke in der Planung so auch wirklich gebraucht werden sei mal dahingestellt, ich persönlich bin kein Fan davon - aber ich bin auch nicht derjenige, der viel Zeit in der Küche verbringt.
Was uns an der jetzigen Planung, wie im Titel beschrieben, vor allem stört ist die kleine, und nicht zusammenhängende Arbeitsfläche (und Abstellmöglichkeiten). Das haben wir jetzt schon in unserer derzeitigen Küche so, und nervt ungemein. Ich sehe nur leider nicht wirklich andere Möglichkeiten - ihr dafür vielleicht?!
Danke und viele Grüße,
Julian
Checkliste zur Küchenplanung
Anzahl Personen im Haushalt: 3
Davon Kinder?: 1
Art des Gebäudes?: Neu-/Umbau, Planänderungen nicht möglich
Körpergrössen aller Hauptbenutzer (wegen Arbeitshöhe ) in cm: 176
Brüstungshöhe des Fensters (in cm): 20
Fensterhöhe (in cm): 220
Raumhöhe in cm: 250
Heizung: Fussbodenheizung
Sanitäranschlüsse: fix
Ausführung Kühlgerät: Stand-Alone bis 60 cm Breite
Kühlgerät Größe: bis 178 cm Höhe
Ausführung Tiefkühl (TK)-Gerät: Im Kühlschrank bis 2 Schubladen unten
Dunstabzugshaube: Abluft
Backofen etc. hochgebaut?: Wenn möglich
Hochgebauter Geschirrspüler ?: Nein
Kochfeldart: Induktion
Kochfeldbreite ca. (in cm)?: 60
Spülenform: 1 Becken mit Abtropffläche
Geplante Heißgeräte: Standmikrowelle
Küchenstil: Modern
Sitzmöglichkeit in der Küche / im Küchenbereich: Keine
Sitzmöglichkeit: Für wieviel Personen?: Nein
Sitzmöglichkeit: Tisch - wenn gesonderter Tisch oder offene Küche: Keiner
Gewünschte o. vorhandene Tischgröße: -
Wofür soll der Sitzplatz in der Küche genutzt werden? Wie häufig?: -
Welche Arbeitshöhe ist angedacht (in cm)?:
Was steht auf der Arbeitsplatte oder soll dort stehen?: Küchenmaschine, Toaster
Welche weiteren Küchenmaschinen müssen in der Küche untergebracht werden?: Wasserkocher
Was soll in der Küche außer den Standards untergebracht werden?:
Welchen Stauraum gibt es sonst noch?: Geschirr/Gläserschrank im Wohn-/Esszimmer, Keller
Was/wie wird gekocht? (Alltagsküche, Menüs, Snacks usw):
Wie häufig wird gekocht?: (fast) täglich 1x warm
Wird alleine gekocht? Oder auch gemeinsam? Mit und für Gäste?: Meist alleine
Was stört an der bisherigen Küche und was soll die neue Küche unbedingt können? Warum?: Kaum Arbeitsfläche, und diese dann auch noch auf 3 einzelne 60cm Stücke verteilt, auf denen auch noch die Küchengeräte stehen
Welche Mülltrennung soll in der Küche vorgehalten werden?: Gelber Sack Müll, Restmüll
Steht schon ein Küchenhersteller fest oder wird bevorzugt?: Ikea
Steht schon ein Gerätehersteller fest oder wird bevorzugt?:
Preisvorstellung (Budget): bis 5.000,-
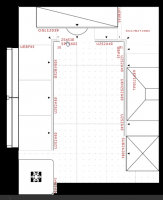
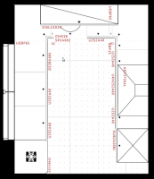
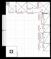
Anhänge
-
Foto1.JPG108,9 KB · Aufrufe: 566 -
L-Form-3D-4.png826,2 KB · Aufrufe: 569 -
L-Form-3D-3.png969,7 KB · Aufrufe: 585 -
L-Form-3D-2.png974,4 KB · Aufrufe: 576 -
L-Form-2D-1.png112,5 KB · Aufrufe: 547 -
Grundriss1.jpg8,4 KB · Aufrufe: 557 -
Grundriss.jpg136,2 KB · Aufrufe: 574 -
Foto2.JPG106,4 KB · Aufrufe: 568
