gerhard2k1
Mitglied
- Beiträge
- 7
Hallo zusammen,
ich hoffe ich halte die Regeln für eine Themenerstellung halbwegs ein
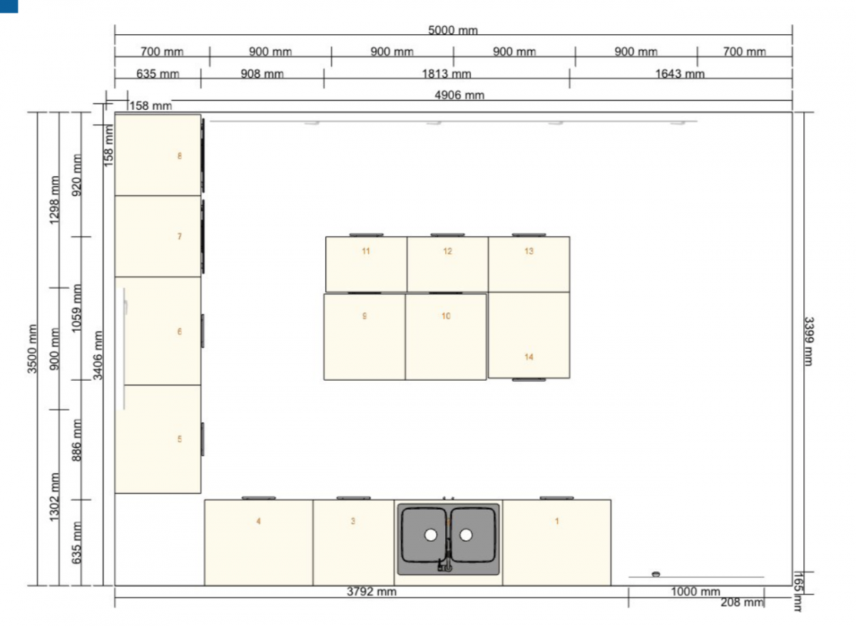
Angehängt habe ich zwei Bilder unserer aktuellen Küche, einen "offiziellen" Grundriss auf dem der Anbau grob zu sehen ist, eine grobe Idee per IKEA Planer und einen hübscheren Screenshot vom Anbau.
Der Anbau soll ca 3,5 x 5m groß werden, kann aber noch an die Küche angepasst werden. Welch ein Luxus
In der aktuellen Küche soll das Fenster zu einem Durchgang umgebaut werden, durch den man in die neue Küche kommt. Auf den Skizzen ist gut zu erkennen, an welchen Stellen wir Fenster bzw. große Terrassen Schiebetüren verbauen wollen.
Wir mögen keine Hängeschränke und mögen unsere aktuelle Küche mit den niedrigen Schränken sehr. Wir würden, wenn möglich, gerne all unsere Möbel in die neue Küche integrieren. Lediglich der Kühlschrank darf sich gerne vergrößern (Kann auch Side by Side werden).
Wir würden gerne eine Insel installieren und auch die aktuelle Esse verwenden. Das Kochfeld darf sich gerne von 60 auf 75/90 vergrößern. Die neue Arbeitsplatte soll aus Granit sein. Auch die Spüle darf sich gerne vergrößern (aktuell passt kein Backblech bequem hinein).
Unter der aktuellen Küche befindet sich ein Teil des Kellers, alle Anschlüsse können also bequem in den Anbau verlegt werden. Beim Heizkörper haben wir an die Version "schmal und hoch" gedacht, Platz frei wählbar. Der Preis unten ist ohne Arbeitsplatte gedacht.
Checkliste zur Küchenplanung
Anzahl Personen im Haushalt: 2
Davon Kinder?:
Art des Gebäudes?: Neu-/Umbau, Planänderungen möglich
Körpergrössen aller Hauptbenutzer (wegen Arbeitshöhe ) in cm: 187 und 167
Brüstungshöhe des Fensters (in cm):
Fensterhöhe (in cm):
Raumhöhe in cm: 250
Heizung: Heizkörper wie im Grundriss
Sanitäranschlüsse: vollkommen variabel
Ausführung Kühlgerät:
Kühlgerät Größe: noch unbekannt
Ausführung Tiefkühl (TK)-Gerät: Im Kühlschrank ab 3 Schubladen unten
Dunstabzugshaube: Abluft
Backofen etc. hochgebaut?: Ja
Hochgebauter Geschirrspüler ?: Nein
Kochfeldart:
Kochfeldbreite ca. (in cm)?: 75 oder 90
Spülenform: Noch nicht festgelegt
Geplante Heißgeräte:
Küchenstil: Modern
Sitzmöglichkeit in der Küche / im Küchenbereich: Überstehende Arbeitsplatte
Sitzmöglichkeit: Für wieviel Personen?: für 2 Personen
Sitzmöglichkeit: Tisch - wenn gesonderter Tisch oder offene Küche: Keiner
Gewünschte o. vorhandene Tischgröße:
Wofür soll der Sitzplatz in der Küche genutzt werden? Wie häufig?: Ab und zu für ein kleines Frühstück
Welche Arbeitshöhe ist angedacht (in cm)?:
Was steht auf der Arbeitsplatte oder soll dort stehen?: Kaffeevollautomat, Wasserkocher, Küchenmaschine, Toaster, Brotbehälter
Welche weiteren Küchenmaschinen müssen in der Küche untergebracht werden?:
Was soll in der Küche außer den Standards untergebracht werden?: Geschirr komplett (nichts in Ess-/Wohnzimmer)
Welchen Stauraum gibt es sonst noch?: Keller
Was/wie wird gekocht? (Alltagsküche, Menüs, Snacks usw):
Wie häufig wird gekocht?: (fast) täglich 1x warm
Wird alleine gekocht? Oder auch gemeinsam? Mit und für Gäste?: Alles
Was stört an der bisherigen Küche und was soll die neue Küche unbedingt können? Warum?: zu wenig Arbeitsfläche
Welche Mülltrennung soll in der Küche vorgehalten werden?:
Steht schon ein Küchenhersteller fest oder wird bevorzugt?: Nobilia
Steht schon ein Gerätehersteller fest oder wird bevorzugt?:
Preisvorstellung (Budget): bis 5.000,-
ich hoffe ich halte die Regeln für eine Themenerstellung halbwegs ein
Angehängt habe ich zwei Bilder unserer aktuellen Küche, einen "offiziellen" Grundriss auf dem der Anbau grob zu sehen ist, eine grobe Idee per IKEA Planer und einen hübscheren Screenshot vom Anbau.
Der Anbau soll ca 3,5 x 5m groß werden, kann aber noch an die Küche angepasst werden. Welch ein Luxus
Wir mögen keine Hängeschränke und mögen unsere aktuelle Küche mit den niedrigen Schränken sehr. Wir würden, wenn möglich, gerne all unsere Möbel in die neue Küche integrieren. Lediglich der Kühlschrank darf sich gerne vergrößern (Kann auch Side by Side werden).
Wir würden gerne eine Insel installieren und auch die aktuelle Esse verwenden. Das Kochfeld darf sich gerne von 60 auf 75/90 vergrößern. Die neue Arbeitsplatte soll aus Granit sein. Auch die Spüle darf sich gerne vergrößern (aktuell passt kein Backblech bequem hinein).
Unter der aktuellen Küche befindet sich ein Teil des Kellers, alle Anschlüsse können also bequem in den Anbau verlegt werden. Beim Heizkörper haben wir an die Version "schmal und hoch" gedacht, Platz frei wählbar. Der Preis unten ist ohne Arbeitsplatte gedacht.
Checkliste zur Küchenplanung
Anzahl Personen im Haushalt: 2
Davon Kinder?:
Art des Gebäudes?: Neu-/Umbau, Planänderungen möglich
Körpergrössen aller Hauptbenutzer (wegen Arbeitshöhe ) in cm: 187 und 167
Brüstungshöhe des Fensters (in cm):
Fensterhöhe (in cm):
Raumhöhe in cm: 250
Heizung: Heizkörper wie im Grundriss
Sanitäranschlüsse: vollkommen variabel
Ausführung Kühlgerät:
Kühlgerät Größe: noch unbekannt
Ausführung Tiefkühl (TK)-Gerät: Im Kühlschrank ab 3 Schubladen unten
Dunstabzugshaube: Abluft
Backofen etc. hochgebaut?: Ja
Hochgebauter Geschirrspüler ?: Nein
Kochfeldart:
Kochfeldbreite ca. (in cm)?: 75 oder 90
Spülenform: Noch nicht festgelegt
Geplante Heißgeräte:
Küchenstil: Modern
Sitzmöglichkeit in der Küche / im Küchenbereich: Überstehende Arbeitsplatte
Sitzmöglichkeit: Für wieviel Personen?: für 2 Personen
Sitzmöglichkeit: Tisch - wenn gesonderter Tisch oder offene Küche: Keiner
Gewünschte o. vorhandene Tischgröße:
Wofür soll der Sitzplatz in der Küche genutzt werden? Wie häufig?: Ab und zu für ein kleines Frühstück
Welche Arbeitshöhe ist angedacht (in cm)?:
Was steht auf der Arbeitsplatte oder soll dort stehen?: Kaffeevollautomat, Wasserkocher, Küchenmaschine, Toaster, Brotbehälter
Welche weiteren Küchenmaschinen müssen in der Küche untergebracht werden?:
Was soll in der Küche außer den Standards untergebracht werden?: Geschirr komplett (nichts in Ess-/Wohnzimmer)
Welchen Stauraum gibt es sonst noch?: Keller
Was/wie wird gekocht? (Alltagsküche, Menüs, Snacks usw):
Wie häufig wird gekocht?: (fast) täglich 1x warm
Wird alleine gekocht? Oder auch gemeinsam? Mit und für Gäste?: Alles
Was stört an der bisherigen Küche und was soll die neue Küche unbedingt können? Warum?: zu wenig Arbeitsfläche
Welche Mülltrennung soll in der Küche vorgehalten werden?:
Steht schon ein Küchenhersteller fest oder wird bevorzugt?: Nobilia
Steht schon ein Gerätehersteller fest oder wird bevorzugt?:
Preisvorstellung (Budget): bis 5.000,-
Anhänge
-
840-4 Monhof Daniel 27122012 p0.jpg352,9 KB · Aufrufe: 463 -
840-4 Monhof Daniel 27122012 p02.jpg240,4 KB · Aufrufe: 447 -
Bildschirmfoto 2018-01-07 um 10.37.17.jpg135,3 KB · Aufrufe: 427 -
Bildschirmfoto 2018-01-07 um 10.43.18.png266,9 KB · Aufrufe: 423 -
Bildschirmfoto 2018-01-07 um 10.44.01.png341,2 KB · Aufrufe: 426
