Kompromisse zwischen Praxis und Design

Florentine

Mitglied
Beiträge
5
Hallo miteinander,
bei der Planung unserer neuen Küche bin ich immer wieder hin- und hergerissen, wo ich einen Kompromiss eingehen soll, denn: irgendwo gibt es doch immer einen Zwangspunkt.
Wegen der Unterkante des Fensters haben wir uns für eine Häckerküche mit einem Rastermaß von 6 x 13 cm entschieden. Diese mit Griffen, da man bei grifflosen Küchen in der Innenraumnutzung Platz verliert. Die Hochschränke stehen mit 3 x 60 cm separat als Block an einer anderen Wand und sollen eingekoffert werden. Hier überlegen wir, die grifflose Variante zu nehmen mit dem Vorteil eines ruhigeren Gesamtbildes.
Bei der L-Zeile planen wir den linken Schenkel mit 3 x 90 U-Schränken und wollen diese etwas vorziehen, um bei der Arbeitsplatte eine Tiefe von 65 cm zu erreichen. Am anderen Schenkel bleiben dann noch 230 cm ( 65 cm und Eckblende schon abgezogen). Obwohl ich meinen bisherigen Karussellschrank mit diagonaler Tür sehr praktisch fand, möchte ich in Zukunft darauf verzichten, weil ich eine abgeschrägte Ecke nicht mehr schön finde. Den minimalen Verlust mit "toter Ecke" kann ich bei dem sonstigen Platz hinnehmen.

Nun geht es um die grundsätzliche Aufteilung der Rastermaße: 1 - 2 - 3 oder 2 - 2 - 2 ?

Dann die Schränke an der Fensterfront mit der Spüle:
Um die Spüle (ohne Abtropffläche) mittig setzen zu können, muss man nach der Ecke mit einem 50-er Schrank beginnen, dann 60-er Spülenschrank, dann bleiben noch 120 cm für Geschirrspüler und einen weiteren Schrank. Bisher habe ich meinen Abfall neben der Spüle und kann mich nicht so recht damit anfreunden, ihn unter der Spüle zu haben. Folgende Varianten kommen m.E. in Betracht:

1. Abfallschrank rechts neben Spüle, daneben Geschirrspüler ans Ende der Zeile
Nachteile: GS ist relativ weit weg von den Geschirrschränken.
Daneben liegende Wand (wegen Tür noch etwa 20 cm Wand) könnte schnell schmutzig werden.
Ungünstig, wenn man Essensreste vor dem Einräumen in den GS vom Teller schieben will

2. Umgekehrt: GS neben Spüle, Abfallschrank ans Ende der Zeile
Nachteile: Analog oben relativ weit weg vom Rest der Küche und zum Wegschieben der Essensreste muss man um den GS herumlaufen. Außerdem soll an dieser Stelle oben auf der Arbeitsplatte der Kaffeeautomat stehen, also entfällt dieser Bereich für das Schnippeln. Der Vorteil, den Abfall direkt in dem den darunterliegenden Behälter zu schieben, entfiele damit.

3. GS rechts neben Spüle, Abfall links von Spüle im 50-er Schrank.
Z.Z. meine favorisierte Variante, aber:
Ist es unsinnig, den Abfallbehälter in der Ecke zu platzieren? Auf der Arbeitsplatte wird in dieser Ecke der neue Jalousieschrank stehen, in dem ich sämtliche Küchengeräte unterbringe. Links und rechts dieses Schrankes wird
wahrscheinlich das Hauptarbeitsfeld liegen, wobei bis zum Kochfeld immerhin etwa 90 cm Platz sind. Reicht das zur Entzerrung, wenn man zu zweit in der Küche arbeitet oder kommt man sich ins Gehege?

4. Andere Aufteilung: 50 - 60 (Spüle) - 30 (Abfall) - 60 GS) - 30.
Nachteil: Optik (unregelmäßige unterschiedliche Korpusmaße)
Gibt es überhaupt Abfallbehälter mit sinnvollem Volumen für so einen schmalen U-Schrank?
Hier müsste ich mich auf die Sammelbehälter für Bio- und Restmüll beschränken; Gelben Punkt und Papier müsste ich woanders), z.B. unter der Spüle unterbringen.
Den Platz unter der Spüle würde ich gerne für eine Kiste Wasser und leere Flaschen oder Papier nutzen.

Im Forum wird der hochgestzte Abfallbehälter sehr gepriesen. Wie muss das Raster dann aufgeteilt werden?
Geht das mit 3 - 3 oder oben 4 und unten 2? Danach würde ich dann die Einteilung der Fronten am anderen Schenkel richten.

So, nun habe ich viel geschrieben und hoffentlich verständlich gemacht, worum es mir geht.

Was meint ihr im Forum zur Platzierung des Abfallschrankes?















Checkliste zur Küchenplanung von Florentine

Anzahl Personen im Haushalt : 2
Davon Kinder? : keine
Körpergrössen aller Hauptbenutzer (wegen Arbeitshöhe ) in cm : 164 und 178
Art des Gebäudes? : Bestandsbau, Umbauten ausgeschlossen
Brüstungshöhe des Fensters (in cm) : 92 / 90,5
Fensterhöhe (in cm) : 94 /92,5
Raumhöhe in cm: : 247 / 245,5
Heizung : Heizkörper wie im Grundriss
Sanitäranschlüsse : variabel an aktueller Wand
Ausführung Kühlgerät? : Integriert im Hochschrank (60cm)
Kühlgerät Größe : bis 122 cm Höhe
Ausführung Tiefkühl (TK)-Gerät : Nicht erforderlich bzw. steht woanders
Dunstabzugshaube? : Abluft
Backofen etc. hochgebaut? : Ja
Hochgebauter Geschirrspüler ? : nein
Kochfeldart? : Induktion
Kochfeldbreite ca. (in cm)? : 80
Spülenform: : 1 Becken ohne Abtropffläche
Weitere geplante Heißgeräte : Standmikrowelle, Dampfgarer ohne Wasseranschluß, Backofen
Küchenstil? : modern
Sitzmöglichkeit in der Küche / im Küchenbereich als : Gesonderter Tisch
Sitzmöglichkeit: Für wieviel Personen? : für 3 Personen
Sitzmöglichkeit: Tisch - wenn gesonderter Tisch oder offene Küche : Wird nach Bedarf neu gekauft
Gewünschte o. vorhandene Tischgröße : 90 x 130
Wofür soll der Sitzplatz in der Küche genutzt werden? Wie häufig? : Essen
Welche Arbeitshöhe ist angedacht (in cm)? : 90,5
Was steht auf der Arbeitsplatte oder soll dort stehen? : Kaffeevollautomat
Welche weiteren Küchenmaschinen müssen in der Küche untergebracht werden? : Küchenmaschine, Toaster, Mixer, Pürierstab
Was soll in der Küche außer den Standards untergebracht werden? : ALLE Vorräte, Getränkekisten, Geschirr komplett (nichts in Ess-/Wohnzimmer)
Welchen Stauraum gibt es sonst noch? : Hauswirtschaftsraum, Keller
Was/wie wird gekocht? (Alltagsküche, Menüs, Snacks usw) : Alltagsküche und gerne für Gäste
Wie häufig wird gekocht? : (fast) täglich 1x warm
Wird alleine gekocht? Oder auch gemeinsam? Mit und für Gäste? : Zu zweit und für Gäste
Was stört an der bisherigen Küche und was soll die neue Küche unbedingt können? Warum? : Zu wenig Platz am Jalousieschrank.
Fensterflügel sollen beide geöffnet werden können.
Steht schon ein Küchenhersteller fest oder wird bevorzugt? : Häcker Systemat
Steht schon ein Gerätehersteller fest oder wird bevorzugt? :
Preisvorstellung (Budget) : bis 3.000,-
__________________________Im Threadverlauf hinzugekommen:
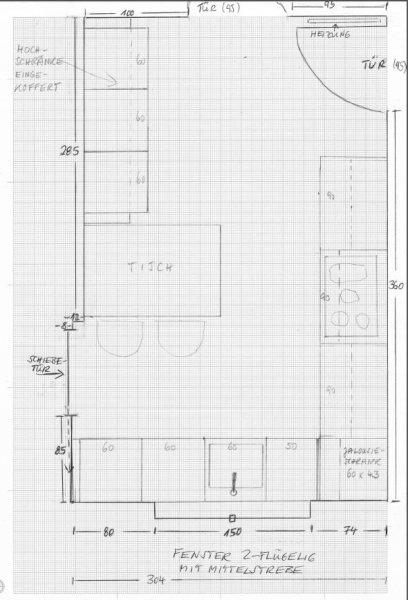
vermaßter Grundriss
Florentine_20140423_GrundrissMasse.jpg
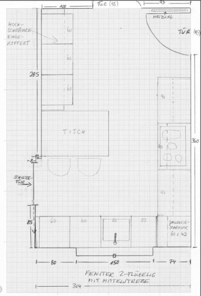
Grundriss mit geplanten Schränken

Florentine_20140423_GrundrissEigPlan.jpg
 
Zuletzt bearbeitet von einem Moderator:
AW: Kompromisse zwischen Praxis und Design

Hallo Florentine,

ich gebs ehrlich zu: bei der Menge Text bin ich irgendwann gedanklich ausgestiegen. Ohne wenigstens einen Grundriss der Küche (und besser noch auch der angrenzenden Räume) ist es sehr schwierig, deine Fragen zu beantworten.

Aus meinen eigenen Planungsüberlegungen nur soviel:
Ich werde einen 40er MUPL brauchen, weil ich gelben und Restmüll in zwei großen Behältern quer hintereinander will. Jalousieaufsatzschrank: Meine Küchenmaschine und mein Allesschneider passen nicht nebeneinander rein. Da ich schon einen habe, konnte ich das "in echt" testen. Von dem 60er Nennmaß geht nicht nur die Wandstärke ab, sondern auch noch das aufgesetzte Profil der Rolladenführung.

Nach Ostern werden sich aber sicher unsere Planungsprofis melden :-).
 
AW: Kompromisse zwischen Praxis und Design

Liebe Sylvia,

vielen Dank für dein schnelles feedback.
Ich werde in Kürze Pläne nachreichen.
Beim Jalousieschrank hängt es sicherlich davon ab, welche Geräte man dort unterbringen will. Ich habe nebeneinander eine Küchenmschine (von Bosch mit dem abklappbaren Arm) und einen Toaster auf der Arbeitsplatte stehen und dazwischen an der Rückwand hängt noch der Drei-Mix. Die anderen Geräte wir Mixstab, Waffeleisen, Schnitzelwerk etc. und Rührschüsseln stehen darüber.
Der künftige Jalousieschrank soll dann mit 43 cm Tiefe noch mehr Platz biten. So kann ich die Rolle mit Küchenpapier, den kleinen Aufschäumer für Milch und anderes, was sonst offen herumsteht, verschwinden lassen und habe bei Bedarf einen schnellen Zugriff.
 
AW: Kompromisse zwischen Praxis und Design

Ja klar, dann paßt das :-). Bei mir ist es die MUM 7 und ein Allesschneider, da fehlt mir gerade ein Zentimeter! *heul* ;-)
 
AW: Kompromisse zwischen Praxis und Design

Ich habe den Grundriß der Küche und eine Version mit den geplanten Schränken eingestellt. Damit, so hoffe ich, sind meine Fragen nachvollziehbar.
Florentine
 

Anhänge

  • Küche-Grundriss.pdf
    2,6 MB · Aufrufe: 313
  • Küche-Planung01.pdf
    1,3 MB · Aufrufe: 320
AW: Kompromisse zwischen Praxis und Design

Ich habe aus den PDF-Dateien mal Bild-Dateien gemacht und auch im Eingangsbeitrag angehängt.

Es wäre gut, wenn du mal schreibst, wo die ganzen Türen alle hingehen ;-)

Zur Planung:

attachment.php



Generell finde ich einen Jalousienschrank an der Hauptarbeitsecke eher unpraktisch ;-)

Hast du schon mal überlegt, den nach planlinks an das 80cm Wandstück neben dem Fenster zu setzen .. Evtl. auch so, dass die Öffnung nach planrechts zeigt? Dann würde ich nämlich von planlinks:
- 60er Unterschrank , Raster 1-2-3
- 60er GSP
- 60er Spüle - Raster 3-3
- 50er MUPL - Raster 3-3
wählen ... wobei hier die Frage ... welchen Müll musst du trennen? Wieviel Behälter?

Die Kochfeldzeile würde ich komplett in Raster 1-1-2-2 wählen. Denn auch in Schubladen bekommt man jede Menge Zeugs unter und hat dann alles schön sortiert
Zum Angucken, wie Stauraum genutzt werden kann:
Gerbera mit ganz vielen übertiefen Auszügen
Stauraumnutzung von doppelkeks und die Küche dazu
Küche von Moiree
Küche von KerstinB und nach dem Umzug (hier kann man gut sehen, was man alles alleine in Schubladen unterbringen kann)
Küche von Jelena
Küche von Ulla
Nekos Küche
Darlas Küche
Magnolias Küche
Vanessas Küche
Hemerocallis Küche
Littlequeenies Küche
Angelikas Küche
Küche von atmos
Küche von biggimaus
Küche von Bodybiene
Küche von Missjenny
Küche von Conny (auch übertiefe Auszüge)
Küche von träumerle
Muckelinas Küche (interessante Variante mit aufgesetzten Griffen)
Mr. Woms (Esthers) ;-) Schreinerküche
Küche von Ullmann

-----------------------
Schade ist ja, dass die Brüstungshöhe der Fenster leicht höher ist als deine geplante Arbeitshöhe . Siehst du da die Möglichkeit, die Brüstungshöhe etwas niedriger zu bekommen und die APL dann in die Fensterlaibung laufen zu lassen?

Mir gefällt die Tischsituation noch nicht. Ich finde dadurch auch den Kühlschrank relativ umständlich zu erreichen.

Wo soll die Abluft raus?
 
AW: Kompromisse zwischen Praxis und Design

Liebe Kerstin,
vielen Dank für deine technische und beraterische Unterstützung!

Zunächst zum Fenster und Brüstungshöhe : die APL geht ins Fenster rein. Also alles gut. Nur mit der Position und Art der Spültischarmatur müssen wir aufpassen (mittig setzen und Armatur darf nicht zu breit sein , Stichwort "ausladende Bedienhebel").

Wir denken, dass wir mit Umluft klar kämen. Es soll schon sehr gute Geräte geben bis hin zu O + F mit Plasmafilter ? Wir haben zwar einen Abzug nach draußen, aber der müsste größer gemacht werden und, der Abluftkanal würde oberhalb der Schränke laufen.

Die Tür oben rechts ist der Eingang vom Flur, also Hauptzugangsweg.
Die Tür oben führt zum Wohnzimmer und die Schiebetür unten links geht zu einem schmalen Hauswirtschftaftsraum mit Waschmaschine, Besenschrank etc., evtl. auch Gefrierschrank.

Ich gebe dir einerseits Recht mit dem Jalousieschrank, andererseits habe ich einen solchen in 60 x 34 cm genau da stehen, wo du es vorschlägst, allerdings parallel auf dem U-Schrank. In der Praxis habe ich dort nicht genug Platz. Ihn zu drehen, sodass er quer auf der APL steht, kann ich mir optisch nicht so schön vorstellen; dann guckt man voll auf die seitliche Möbelwange. Bei einer U-Form, wo sich ein weiterer Schrank anschließen würde, fände ich das auch gut.
Setzt man ihn in die andere Ecke, endet davor die Reihe der Oberschränke. Dabei entstand nun die Idee, den Rolladenschrank bis zur Decke zu verblenden. Wir wollen schauen, wie das im Bild aussieht.
Es ist nicht ideal, die Arbeitsfläche an dieser Stelle zu unterbrechen, aber, wie gesagt, rechts hat es sich nicht so bewährt, und am anderen Ende der L-Zeile (oben rechts) macht es auch keinen Sinn. Ich habe die Hoffnung, dass die etwas tiefere Arbeitsplatte die Unterbrechung etwas auffängt.
Auch deine Bedenken bzgl. des Kühlschrankes hatte ich. Z.Z. befindet er sich als Highboard oben rechts zu Beginn der Zeile (mit abgeschrägtem 30-er Schrank davor).
Ich finde es drückend, den Schrank dort zu haben, habe selbst nie freien Blick zum Fenster, wenn ich in die Küche komme. Offen mit Ober- und Unterschränken beginnend, finde ich, gewinnt der Raum mehr an Großzügigkeit.

Den Kühlschrank würden wir in den mittleren der 3 Hochschränke setzen, sodass zumindest zum Tisch eine kurze Anbindung gegeben ist. In unserer jetzigen Küche haben wir den Tisch an gleicher Stelle, daneben allerdings erst einen 90-er Unter- und Oberschrank und dann erst den Hochschrank .
Um die optische Wucht der Hochschränke abzufangen, wollen wir den neuen 3-er Hochschrankblock einkoffern und den "Koffer" (links und rechts jeweils 10 cm breit) nach hinten um etwa 15 cm zurückspringen lassen.
 
AW: Kompromisse zwischen Praxis und Design

Ich bin gerade unterwegs und habe nicht viel Zeit. Kann deine Überlegungen alle verstehen, nur beim Jalousienschrank, da denke ich, seitliche Ansicht könnte unten links in der Ecke schon passen. Das kann man ja evtl. gut gestalten.

Mehr ab Montag.
 
AW: Kompromisse zwischen Praxis und Design

Bzgl Rastermassen, wir haben 2-2-2 oben verstiftet als Spülenschrank, 4-2 für MUPL oben und Tüten unten, 1-1-2-2 für oben Besteck und Kochgeschirr und unten dann Töpfe und Tupper. Haben auch aufgesetzte Griffe und die Hochschränke grifflos.
Viel Spass beim Planen :-).
 
Zuletzt bearbeitet:
AW: Kompromisse zwischen Praxis und Design

Hallo Muckelina,
ich habe mir eure schöne Küche jetzt noch mal genauer angesehen: sie entspricht ganz unserem Geschmack! Eine tolle Lösung! Vielen Dank für die Bestätigung der möglichen Mischung von "grifflos" und "mit Griff".
Das Küchenstudio / der Hersteller bietet den Abfallschrank als 30-er an; dann hat man einen Auszug, den man natürlich an beliebiger Stelle verstiften kann. Die Müllbehälter (zwei fast quadratische, recht tiefe, hintereinander) werden eingehangen, und ich denke, man behält darunter etwas freien Raum.
Alternativ können die Abfallbehälter im 50-er Schrank untergebracht werden: dann gibt es 2 Auszüge a 3 Raster und man kann zwei breitere Behälter quer hintereinander in den Auszug stellen. Im Augenblick favorisiere ich diese Variante, weil die einzelnen Behälter etwas größer und besser zu befüllen sind? Sollte ich dann in der Praxis feststellen, dass das mit dem Müll in der Ecke gar nicht funktioniert, könnte ich dann immer noch in den Spülenschrank ausweichen (was ich ja aber eigentlich gerade vermeiden wollte; besonders unsympathisch wäre mir dabei, weil ich eine durchgehende Front hätte, wo die Abfallbehälter immer tief hinter der Front sitzen).

Darf man Küchenpläne eines Studios eigentlich einfach hier ins Forum stellen? Bleiben sie bis um Vertragsabschluss nicht "geistiges Eigentum" des Studios?
 

Ähnliche Beiträge

Neff Hausgeräte Ballerina Küchen Blum Bewegungstechnologie Weibel - Intelligente Küchenlüftung

Neff Spezial

Blum Zonenplaner

Weibel Abluft-Tuning

Weibel Abluft-Tuning
Zurück
Oben