Evo
Mitglied
- Beiträge
- 5
Hilfe bei U-Küche für Neubau
Liebe Community,
wir sind derzeit dabei die Küche für unseren Neubau zu planen.
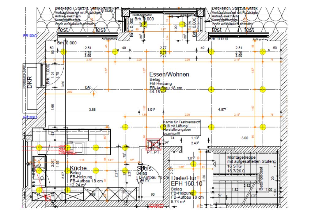
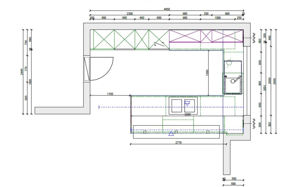
Es soll sich um eine U-Küche handeln. In der Anlage habe ich den Grundriss unseres Erdgeschosses beigefügt sowie der derzeitige Plan unserer Küchenplanung .
Aufgrund eines Metervertrags ist (bitte nicht weiter kommentieren, wir sind schon traurig genug), müssen wir eine Schüller -Küche-C2 wählen. Leider sind wir gerade aufgrunD dieses Metervertrags sehr unsicher geworden und bräuchten daher jemanden, der über unsere Planung schaut (siehe auch Fettmarkierungen). Vor allem auch hinsichtlich der Gesamtkosten.
Bisherige Planungsdetails:
- Sockelhöhe 10cm
- Korpushöhe 2,145m (eventuell sinnvoll diese zu vergrößern?)
- Abnehmbarer Wasserhahn aufgrund des Fensters (Fenster ohne Unterlicht)
- Farbe weiß glänzend (gewählt wurde vom Küchenhersteller Fino Gloss, ist diese qualitativ in Ordnung?)
- Keramikarbeitsplatte
- In den Ecken sind Le-Mans-Schränke geplant (wir haben einen Metervertrag ...)
- Der 40er-Schrank an der langen Wand ist ein Apothekerschrank .
Folgende Geräte sind bisher berücksichtigt:
Backofen mit Mikrowelle und Dampffunktion -> Siemens HN678G4S6
Dampfgarer -> Siemens CD634GAS0
Kühlschrank -> Miele KFN37282ID (Kombi-Gerät)
Geschirrspüler -> Miele G 7155 SCVi XXL
Kochfeldabzug -> Berbel BKF 83 DL-U Downline
Preis ist bis jetzt bei für uns sehr hohen 31.000 Euro. Ist das gerechtfertigt?
Ich möchte mich bereits vorab für alle Tipps und Verbesserungsvorschläge bedanken.
Viele Grüße
Maike
Checkliste zur Küchenplanung
Personenkriterien und Ergonomie
Anzahl Personen im Haushalt: 4
Davon Kinder: 2
Körpergrößen aller Hauptbenutzer in cm (wegen Arbeitshöhe ): 165 und 180
Welche Arbeitshöhe ist angedacht (in cm)?: 91 (haben wir bis jetzt auch)
Gebäudekriterien
Art des Gebäudes: Neu-/Umbau > Planänderungen möglich
Brüstungshöhe des Fensters (in cm): flexibel derzeit 91cm geplant
Fensterhöhe (in cm): Raumhoch (Rohbau 1,59)
Raumhöhe in cm: 260
Heizung: Fußbodenheizung
Sanitäranschlüsse: vollkommen variabel
Einbaugerätekriterien
Ausführung Kühlgerät: Integriert im Hochschrank (60cm)
Einbaukühlgerät Größe: 178cm
Ausführung Tiefkühl (TK)-Gerät: Im Kühlschrank ab 3 Schubladen unten
Dunstabzugshaube: Umluft
Hochgebauter Backofen : ja
Geplante Heißgeräte: Dampfgarer ohne Wasseranschluß, Backofen
Hochgebauter Geschirrspüler : nein
Art des Kochfeldes: Induktion
Kochfeldbreite (ca. in cm): 83
Sitzmöglichkeiten
Sitzmöglichkeit in der Küche / im Küchenbereich: Tresen in Barhöhe
Sitzmöglichkeit: Für wieviel Personen?: Für 2 Personen
Sitzmöglichkeit: Tisch - wenn gesonderter Tisch oder offene Küche: Keiner
Gewünschte oder vorhandene Tischgröße:
Wofür soll der Sitzplatz in der Küche genutzt werden und wie häufig: Trinktheke
Stauraumplanung
Was steht auf der Arbeitsplatte oder soll dort stehen?: Kaffeevollautomat, Thermomix, Obstschale
Welche weiteren Küchenmaschinen müssen in der Küche untergebracht werden: Wasserkocher, Eierkocher
Was soll in der Küche außer den Standards untergebracht werden: Geschirr komplett (nichts in Ess-/Wohnzimmer)
Welchen Stauraum gibt es sonst noch: Geschirr/Gläserschrank im Wohn-/Esszimmer, Speisekammer, Keller
Kochgewohnheiten
Was/wie wird gekocht? (Alltagsküche, Menüs, Snacks usw): Alltagsküche
Wie häufig wird gekocht: (fast) täglich 1x warm
Wird alleine gekocht? Oder auch gemeinsam? Mit und für Gäste?: eher alleine, ab und zu zu zweit (Kinder sind noch sehr jung)
Spülen und Müll
Spülenform: 1 Becken mit Abtropffläche
Welche Mülltrennung soll in der Küche vorgehalten werden: Altpapier, Biomüll, Restmüll
Sonstiges
Steht schon ein Küchenhersteller fest oder wird bevorzugt: Schüller
Steht schon ein Gerätehersteller fest oder wird bevorzugt: Siemens und Miele
Küchenstil: Klassisch
Was stört an der bisherigen Küche und was soll die neue Küche unbedingt können? Warum?:
Preisvorstellung (Budget): 25.000 bis 30.000
Liebe Community,
wir sind derzeit dabei die Küche für unseren Neubau zu planen.
Es soll sich um eine U-Küche handeln. In der Anlage habe ich den Grundriss unseres Erdgeschosses beigefügt sowie der derzeitige Plan unserer Küchenplanung .
Aufgrund eines Metervertrags ist (bitte nicht weiter kommentieren, wir sind schon traurig genug), müssen wir eine Schüller -Küche-C2 wählen. Leider sind wir gerade aufgrunD dieses Metervertrags sehr unsicher geworden und bräuchten daher jemanden, der über unsere Planung schaut (siehe auch Fettmarkierungen). Vor allem auch hinsichtlich der Gesamtkosten.
Bisherige Planungsdetails:
- Sockelhöhe 10cm
- Korpushöhe 2,145m (eventuell sinnvoll diese zu vergrößern?)
- Abnehmbarer Wasserhahn aufgrund des Fensters (Fenster ohne Unterlicht)
- Farbe weiß glänzend (gewählt wurde vom Küchenhersteller Fino Gloss, ist diese qualitativ in Ordnung?)
- Keramikarbeitsplatte
- In den Ecken sind Le-Mans-Schränke geplant (wir haben einen Metervertrag ...)
- Der 40er-Schrank an der langen Wand ist ein Apothekerschrank .
Folgende Geräte sind bisher berücksichtigt:
Backofen mit Mikrowelle und Dampffunktion -> Siemens HN678G4S6
Dampfgarer -> Siemens CD634GAS0
Kühlschrank -> Miele KFN37282ID (Kombi-Gerät)
Geschirrspüler -> Miele G 7155 SCVi XXL
Kochfeldabzug -> Berbel BKF 83 DL-U Downline
Preis ist bis jetzt bei für uns sehr hohen 31.000 Euro. Ist das gerechtfertigt?
Ich möchte mich bereits vorab für alle Tipps und Verbesserungsvorschläge bedanken.
Viele Grüße
Maike
Checkliste zur Küchenplanung
Personenkriterien und Ergonomie
Anzahl Personen im Haushalt: 4
Davon Kinder: 2
Körpergrößen aller Hauptbenutzer in cm (wegen Arbeitshöhe ): 165 und 180
Welche Arbeitshöhe ist angedacht (in cm)?: 91 (haben wir bis jetzt auch)
Gebäudekriterien
Art des Gebäudes: Neu-/Umbau > Planänderungen möglich
Brüstungshöhe des Fensters (in cm): flexibel derzeit 91cm geplant
Fensterhöhe (in cm): Raumhoch (Rohbau 1,59)
Raumhöhe in cm: 260
Heizung: Fußbodenheizung
Sanitäranschlüsse: vollkommen variabel
Einbaugerätekriterien
Ausführung Kühlgerät: Integriert im Hochschrank (60cm)
Einbaukühlgerät Größe: 178cm
Ausführung Tiefkühl (TK)-Gerät: Im Kühlschrank ab 3 Schubladen unten
Dunstabzugshaube: Umluft
Hochgebauter Backofen : ja
Geplante Heißgeräte: Dampfgarer ohne Wasseranschluß, Backofen
Hochgebauter Geschirrspüler : nein
Art des Kochfeldes: Induktion
Kochfeldbreite (ca. in cm): 83
Sitzmöglichkeiten
Sitzmöglichkeit in der Küche / im Küchenbereich: Tresen in Barhöhe
Sitzmöglichkeit: Für wieviel Personen?: Für 2 Personen
Sitzmöglichkeit: Tisch - wenn gesonderter Tisch oder offene Küche: Keiner
Gewünschte oder vorhandene Tischgröße:
Wofür soll der Sitzplatz in der Küche genutzt werden und wie häufig: Trinktheke
Stauraumplanung
Was steht auf der Arbeitsplatte oder soll dort stehen?: Kaffeevollautomat, Thermomix, Obstschale
Welche weiteren Küchenmaschinen müssen in der Küche untergebracht werden: Wasserkocher, Eierkocher
Was soll in der Küche außer den Standards untergebracht werden: Geschirr komplett (nichts in Ess-/Wohnzimmer)
Welchen Stauraum gibt es sonst noch: Geschirr/Gläserschrank im Wohn-/Esszimmer, Speisekammer, Keller
Kochgewohnheiten
Was/wie wird gekocht? (Alltagsküche, Menüs, Snacks usw): Alltagsküche
Wie häufig wird gekocht: (fast) täglich 1x warm
Wird alleine gekocht? Oder auch gemeinsam? Mit und für Gäste?: eher alleine, ab und zu zu zweit (Kinder sind noch sehr jung)
Spülen und Müll
Spülenform: 1 Becken mit Abtropffläche
Welche Mülltrennung soll in der Küche vorgehalten werden: Altpapier, Biomüll, Restmüll
Sonstiges
Steht schon ein Küchenhersteller fest oder wird bevorzugt: Schüller
Steht schon ein Gerätehersteller fest oder wird bevorzugt: Siemens und Miele
Küchenstil: Klassisch
Was stört an der bisherigen Küche und was soll die neue Küche unbedingt können? Warum?:
Preisvorstellung (Budget): 25.000 bis 30.000
Anhänge
Zuletzt bearbeitet:
