Unbeendet Neubau - Hilfe zu einer Küche mit Fluranteil

mikro0p

Mitglied
Beiträge
18
Neubau - Hilfe zu einer Küche mit Fluranteil

Hallo zusammen,

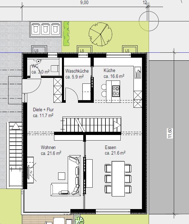
wir planen den Neubau unseres Hauses und die Küche ist leider auf die Nordseite mit Straßenblick des Hauses gewandert.
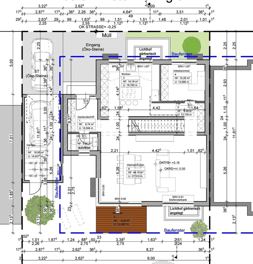
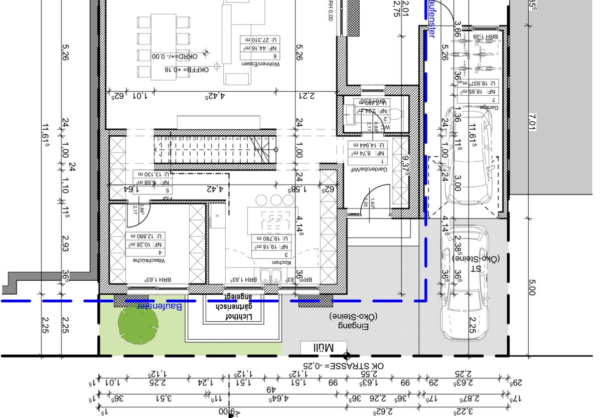
Jetzt geht es darum hier eine gelungene Planung auf die Beine zu stellen. Exemplarisch hat unsere Architektin eine Küche mal eingezeichnet. Jetzt müssen wir ein Projekt daraus machen und eine schöne Küche zaubern. Küche und Waschküche können zusammengelegt werden. Auch kann eine Art Speis an die rechte Wand errichtet werden. Der Flur ist mit 1m eingezeichnet.

Checkliste zur Küchenplanung

Personenkriterien und Ergonomie
Anzahl Personen im Haushalt:
4
Davon Kinder: 2
Körpergrößen aller Hauptbenutzer in cm (wegen Arbeitshöhe ): 173cm
Welche Arbeitshöhe ist angedacht (in cm)?: 92

Gebäudekriterien
Art des Gebäudes:
Neu-/Umbau > Planänderungen möglich
Brüstungshöhe des Fensters (in cm):
Fensterhöhe (in cm):
Raumhöhe in cm:
250
Heizung: N. a.
Sanitäranschlüsse: vollkommen variabel

Einbaugerätekriterien

Ausführung Kühlgerät: N. a.
Einbaukühlgerät Größe: N. a.
Ausführung Tiefkühl (TK)-Gerät: N. a.
Dunstabzugshaube: N. a.
Hochgebauter Backofen : wenn möglich
Geplante Heißgeräte: Einbaumikrowelle
Hochgebauter Geschirrspüler : wenn möglich
Art des Kochfeldes: Induktion
Kochfeldbreite (ca. in cm):


Sitzmöglichkeiten
Sitzmöglichkeit in der Küche / im Küchenbereich: Überstehende Arbeitsplatte
Sitzmöglichkeit: Für wieviel Personen?: Für 4 Personen
Sitzmöglichkeit: Tisch - wenn gesonderter Tisch oder offene Küche: Keiner
Gewünschte oder vorhandene Tischgröße:

Wofür soll der Sitzplatz in der Küche genutzt werden und wie häufig: Essen

Stauraumplanung

Was steht auf der Arbeitsplatte oder soll dort stehen?: Kaffeevollautomat, Wasserkocher, Messerblock, Toaster, Brotbehälter
Welche weiteren Küchenmaschinen müssen in der Küche untergebracht werden: Pürierstab, Eierkocher
Was soll in der Küche außer den Standards untergebracht werden: Staubsauger/Wischer etc.
Welchen Stauraum gibt es sonst noch: Speisekammer, Hauswirtschaftsraum, Keller

Kochgewohnheiten

Was/wie wird gekocht? (Alltagsküche, Menüs, Snacks usw):
Wie häufig wird gekocht: (fast) täglich 2x warm
Wird alleine gekocht? Oder auch gemeinsam? Mit und für Gäste?: eher alleine

Spülen und Müll

Spülenform: 2 Becken mit Abtropffläche
Welche Mülltrennung soll in der Küche vorgehalten werden: Bio/Restmüll ungetrennt

Sonstiges

Steht schon ein Küchenhersteller fest oder wird bevorzugt: nein
Steht schon ein Gerätehersteller fest oder wird bevorzugt: nein
Küchenstil: Klassisch
Was stört an der bisherigen Küche und was soll die neue Küche unbedingt können? Warum?: Geräusch und Geruchsbelästigung zu anderen Räumen
Größe

Preisvorstellung (Budget): 15k

Angehängte Dateien
 

Anhänge

  • Küchenidee_Farbe_visualisiert.JPG
    Küchenidee_Farbe_visualisiert.JPG
    53,3 KB · Aufrufe: 416
  • küchenfenster.JPG
    küchenfenster.JPG
    33,7 KB · Aufrufe: 451
  • Planung_EG.JPG
    Planung_EG.JPG
    85,7 KB · Aufrufe: 470
  • 34917FA2-F863-42FD-8FD0-9DD1C89BDEA3.jpeg
    34917FA2-F863-42FD-8FD0-9DD1C89BDEA3.jpeg
    110,1 KB · Aufrufe: 426
Zuletzt bearbeitet:
Hallo @mikro0p

Bitte alle relevanten Abmessungen im Grundriss der Küche einzeichnen, ansonsten kann keiner wirklich etwas damit anfangen.
 
Eine Idee wäre noch das man die Küche mittig platziert und als eigenständige Einheit ohne direkten Bezug zum Esszimmer zu haben errichten.
 
Ich finde die eingezeichnet Küche vom Prinzip gar nicht so verkehrt. Hier machen Sitzplätze ausnahmsweise mal Sinn, da der Esstisch nicht direkt angrenzend steht. Nur das Kochfeld wurde ich nicht an die Insel packen, denn sonst werden die Zuschauer beim Kochen mit Fett bespritzt.
Als Alternative könnte man Küche und Sofabereich tauschen.
 
Nur das Kochfeld wurde ich nicht an die Insel packen, denn sonst werden die Zuschauer beim Kochen mit Fett bespritzt.
Ja genau, die Insel könnte man als Arbeitstisch und Sitzplätze nutzen. Das Kochfeld an die Stelle von der Spüle und die Spüle mittig am Fenster zur Strasse hin.
 
Als Alternative könnte man Küche und Sofabereich tauschen.
daran habe ich so oft gedacht. Es kommen auch tolle Planungen dabei raus. Aber es heisst im Familienkreis immer wieder die Küche soll eigenständig sein keinen direkten Bezug weder zum Wohnen noch zum Essen haben :/ So ist der beste Kompromiss es wohl auf die "ungeliebte" Nordostseite des Hauses zu planen. Nordwest (bessere Ecke) war eine Option aber da bekommen wir keine gute Eingangs Situation und Diele hin. Wird alles zu eng.
 
Vielleicht wäre mal folgendes interessant bzgl. Zusammenhang Küche und Wohnraum.
So plant man Küchen | Downloads
(du musst es auch nicht komplett durchlesen)

Vielleicht würdest du uns verraten ungefähr wie groß eure jetzige Küche ist (also ein Grundriss, nicht die Fläche vom raum). Dann kann man sich besser vorstellen was ihr so brauchen könntet.

Wenn ihr gerne im garten grillt oder isst dann könntet ihr kein schlechteren platz für eure Küche ausgesucht haben, aber das ist auch nicht jeden wichtig....
 
Wer in der Familie will denn die Küche eigenständig haben? Jemand, der dann auch drin wohnt? Wenn es nur Familienmitglieder von außerhalb sind, würde ich da nicht drauf hören. Ihr müsst euch eben überlegen, wo euer Lebensmittelpunkt sein soll. Wie oft und mit wie vielen wird gekocht? Wo sitzt man mit Besuch? Will man den weiteren Weg zum Esstisch und zur Terrasse? Was passiert auf dem Sofa, nur abends glotzen oder mehr? Bei mir würden alle diese Fragen auf einen großen Koch-Ess-Bereich hinauslaufen.
 
Warum nicht Wohnen mit Küche & HWR tauschen; den Wohnbereich dann mit Schiebetüre vom Eingangsbereich und dem Essbereich abtrennen. Die Küche & Essen dann zusammlegen.
 
Noch eine Stimme zum Verlegen des Küchenbereichs ;-)

Meine Überlegungen:

1. Du schreibst: Was stört an der bisherigen Küche und was soll die neue Küche unbedingt können? Warum?: Geräusch und Geruchsbelästigung zu anderen Räumen“

Die Küche in deiner Planung ist offen zum Flur. Die Geräusche und Gerüche ziehen durchs Haus nach oben.

2. Du schreibst von 2 Kindern. Je nach Alter ist der Garten wichtig. Ich vermute, der übliche Weg der Kinder wird durch das Esszimmer in den Garten gehen. Und wieder zurück auf der gleichen Route ... nur mit Sand an den Füßen.

Küchenfussböden sind idR strapazierfähiger als die Fußbodenbeläge im Ess- oder Wohnzimmer ;-)

3. Die Terrasse ist ein (leider?) zunehmend wichtigerer Lebensraum. Wollt ihr wirklich den langen Weg von der Küche bis zur Terrasse mit Kaffee, Saft und Grillgut laufen?
Die Terrasse ist für mich von April bis Oktober eigentlich der wichtigste Raum. Hier wird gegessen, entspannt, geklönt. Ich bin froh, dass der Hauptzugang zur Terrasse die Tür aus der Küche ist. Die kurzen Wege zu Kaffee, Saft, Wasser, Wein gefallen mir.

4. Mit den Anforderungen von heute und den Erwartungen an die digitale Zukunft würde ich mit Kindern einen Allzweckraum „Küche und Kommunikation“ planen. Der Esszimmer-Bereich würde einen digitalen Arbeitsplatz /-Bereich erhalten.
Das Wohnzimmer wäre dann im Norden gut untergebracht, weil in meinem Leben -auch als die Kinder klein waren- sich die Aktivität erst gen Abend Richtung Wohnzimmer verschoben hat. Und ob’s dann im Dunkeln Norden oder Süden ist, ist auch egal ;-)

5. eine Planung „Küche und Kommunikation“ ermöglicht, die Türen zu schließen und dadurch Gerüche und Geräusche einzusperren. Und wenn der Besuch im Esszimmer das Küchenchaos nicht sehen soll ... dann gibt es Schiebetüren ;-)

Ich finde ein kleines, kuscheliges Wohnzimmer im Norden schön und familiär. Der Besuch kommt meist ins Esszimmer oder auf die Terrasse - und nicht auf die Couch. Bisher hat sich noch keiner beschwert ;-)
 
ich stimme in allen Punkten land_frau zu.

Bei uns in Australien, bei meiner Tochter in London ist das Wozi an der Straße, Kochen/Essen und ein kleinerer Couchbereich/Kinderbereich an der Terrasse/Garten.

Ich glaube nicht, dass man den HWR wegen dem Wohnzimmer im Norden aufgeben müsste. Man könnte ihn etwas schmaler machen.
 
Die Planung hat sich geändert. Unserer Kü ist auf die NW Seite gewandert.
wie würdet ihr in diesem Fall a) die Fenster anordnen und b) eine optimale Insel Küche planen?

theoretisch kann man auf die Westfassade noch Fenster platzieren, wenn es Sinn macht
Siehe Bsp. 3. Foto in 3d Perspektive

Unser Küchenbauer hat auch einige Bsp. ausgearbeitet
 

Anhänge

  • 5F63D241-6E3E-4153-B4A7-BD0C80E55A38.jpg
    5F63D241-6E3E-4153-B4A7-BD0C80E55A38.jpg
    173,9 KB · Aufrufe: 290
  • 758B37F6-026D-4EE8-870B-B5EADE87519E.jpg
    758B37F6-026D-4EE8-870B-B5EADE87519E.jpg
    58 KB · Aufrufe: 297
  • BC97A737-3AA7-4314-AE6B-D32E3C9B8CED.jpeg
    BC97A737-3AA7-4314-AE6B-D32E3C9B8CED.jpeg
    104,8 KB · Aufrufe: 251
  • 4D6425ED-E0C9-47FB-BC92-87BD4D96082B.jpg
    4D6425ED-E0C9-47FB-BC92-87BD4D96082B.jpg
    46,2 KB · Aufrufe: 256
  • 8F5973EF-2FB1-412F-B5C1-6EA66714F85E.jpg
    8F5973EF-2FB1-412F-B5C1-6EA66714F85E.jpg
    63,9 KB · Aufrufe: 262
  • 9D63E00A-0195-4390-B563-2D20305D4D16.jpg
    9D63E00A-0195-4390-B563-2D20305D4D16.jpg
    56,1 KB · Aufrufe: 257
  • E70EF324-91E1-4652-8FCC-D6B29B59EE57.jpg
    E70EF324-91E1-4652-8FCC-D6B29B59EE57.jpg
    61,3 KB · Aufrufe: 249
  • 84E4D922-5156-42C4-8BEC-4555DE54019A.jpg
    84E4D922-5156-42C4-8BEC-4555DE54019A.jpg
    63,1 KB · Aufrufe: 297
NW ist wo? Richte bitte alle Pläne gleich aus und beziehe Dich dann auf die Planungsansicht: Oben = planoben, links = planlinks usw. Dann verstehen wir uns.

Schön wäre es, wenn die Küche einen Zugang zum Garten hätte, so dass beim Grillen o.ä. die Küchensachen, den Kühlschrank gut erreichbar sind, man vom Garten aus ein Getränk holen kann, ohne das Wohnzimmer durchqueren zu müssen, sowas.
 
Jetzt sollte es passen.
Unser Favorit ist eigentlich Studie 3 nur wollen wir lieber eine Spülinsel.
 

Anhänge

  • 4739CA12-FB3B-4E9F-9871-F7ACACDA1D81.jpeg
    4739CA12-FB3B-4E9F-9871-F7ACACDA1D81.jpeg
    53,8 KB · Aufrufe: 245
  • BAD8448B-755A-4719-8CB8-373A9BCD305A.jpeg
    BAD8448B-755A-4719-8CB8-373A9BCD305A.jpeg
    57,1 KB · Aufrufe: 225
  • 8E60E52C-1990-40EE-9765-D941D946A81D.jpeg
    8E60E52C-1990-40EE-9765-D941D946A81D.jpeg
    49,1 KB · Aufrufe: 244
  • DC741646-59F4-44D2-8516-DF5B5BCE7295.jpeg
    DC741646-59F4-44D2-8516-DF5B5BCE7295.jpeg
    170,8 KB · Aufrufe: 249
Ich finde die dritte variante schon am besten, aber ich würde die Insel (mit einer breite von 220 cm) wie an der ersten variante ausführen. Kochfeld exzentrisch positionieren, mit große Arbeitsflächen kann man viel mehr schaffen wie mit viele kleine. Kochfeld und spüle am besten nicht direkt hintereinander sondern etwas versetzt.
 
Die 3te ist auch unsere Wahl.
Wobei wir noch eher am Überlegen sind, weil wir die Fenster ja noch so positionieren können wie wir lustig sind...
Es geht um folgende Fragen:
1. BRH der Fenster?
2. Die geplante Insel als Spülinsel oder Arbeitsinsel ?
3. Bei einer Arbeitsinsel haben wir dann wahrscheinlich wieder ganz andere Anordnung (vermute ich)
Danke im Voraus!
 
Ah, ich hab vergessen zu erwähnen, dass ich die Variante drei nehmen würde aber die Insel aus eins.

Und von einer reinen Arbeitsinsel bin ich nicht der Fan weil man ständig hin und her dreht zwischen den Küchenzeilen. Ausnahme wäre wenn die Haupt Arbeitsfläche in der Küchenzeile ist und die Insel nur für große koch- oder Backaktionen verwendet wird, dann finde ich eine Arbeitsinsel ok.

Da ihr sowieso keine direkte Verbindung zwischen Wohnraum und Küche habt finde ich beide Möglichkeiten ok.
 

Ähnliche Beiträge

Neff Hausgeräte Ballerina Küchen Blum Bewegungstechnologie Weibel - Intelligente Küchenlüftung

Neff Spezial

Blum Zonenplaner

Weibel Abluft-Tuning

Weibel Abluft-Tuning
Zurück
Oben