Anonymaus
Mitglied
- Beiträge
- 329
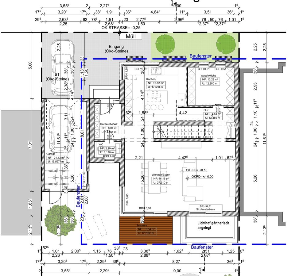
Nicht direkt am Rand, ein bisschen Platz auf beiden Seiten ist sehr praktisch. So 30 cm, dann kann man immer einfach die Pfannen zur Seite stellen oder die Zutaten direkt daneben bereit haben.
Wenn der Kochfeld mittig positioniert wird dann gibt es ein bisschen Arbeitsfläche auf beiden Seiten. Wenn es exzentrisch positioniert wird dann gibt es eine große Arbeitsfläche was viel praktischer ist wie zwei kleinere. Ausnahme Natürlich wenn die Insel sehr lang ist, dann ist es egal wo...
Empfohlene breite der Arbeitsfläche sind 120 cm plus, wenn es Platz dafür gibt....
Wenn der Kochfeld mittig positioniert wird dann gibt es ein bisschen Arbeitsfläche auf beiden Seiten. Wenn es exzentrisch positioniert wird dann gibt es eine große Arbeitsfläche was viel praktischer ist wie zwei kleinere. Ausnahme Natürlich wenn die Insel sehr lang ist, dann ist es egal wo...
Empfohlene breite der Arbeitsfläche sind 120 cm plus, wenn es Platz dafür gibt....
