Unbeendet Feinschliff Küche Neubau

scheino

Mitglied
Beiträge
5
Hallo Forum!

Für unseren Neubau sind wir mit der Küchenplanung mittlerweile schon sehr fortgeschritten und mit dem momentanen Planungsstand auch schon sehr zufrieden.

Als Laie übersieht man aber natürlich leicht das eine oder andere No-Go oder eine vielleicht noch bessere Lösung.

Ich ersuche daher höflichst um euer Feedback.

Wasser- und Elektroanschlüsse sind fix.

Vielen Dank schon mal im Voraus. Eine Alnoplanung habe ich 3 Stunden lang versucht, aber ich habe die Seite inkl. Tür zur Vorratskammer einfach nicht hinbekommen.

LG Scheino

Checkliste zur Küchenplanung

Anzahl Personen im Haushalt: 4
Davon Kinder?: 2
Art des Gebäudes?: Neu-/Umbau, Planänderungen nicht möglich
Körpergrössen aller Hauptbenutzer (wegen Arbeitshöhe ) in cm: 190; 175
Brüstungshöhe des Fensters (in cm): 206
Fensterhöhe (in cm): 59
Raumhöhe in cm: 265
Heizung: Keine Heizung
Sanitäranschlüsse: fix
Ausführung Kühlgerät: Integriert im Hochschrank (60cm)
Kühlgerät Größe: bis 178 cm Höhe
Ausführung Tiefkühl (TK)-Gerät: Eigenständiges Gerät bis 178 cm Höhe
Dunstabzugshaube: keine
Backofen etc. hochgebaut?: Ja
Hochgebauter Geschirrspüler ?: Nein
Kochfeldart: Induktion
Kochfeldbreite ca. (in cm)?: 76
Spülenform: 1 Becken ohne Abtropffläche
Geplante Heißgeräte: Wärmeschublade, Backofen , Dampfbackofen (DGC) ohne Wasseranschluß
Küchenstil: Grifflos
Sitzmöglichkeit in der Küche / im Küchenbereich: Überstehende Arbeitsplatte
Sitzmöglichkeit: Für wieviel Personen?: für 2 Personen
Sitzmöglichkeit: Tisch - wenn gesonderter Tisch oder offene Küche: Keiner
Gewünschte o. vorhandene Tischgröße:
Wofür soll der Sitzplatz in der Küche genutzt werden? Wie häufig?:
Kommunikation mit Besuch, während Erledigung Küchenarbeit;
Kinder schauen beim Kochen zu
3-4x pro Woche

Welche Arbeitshöhe ist angedacht (in cm)?: 95
Was steht auf der Arbeitsplatte oder soll dort stehen?: Kaffeevollautomat
Welche weiteren Küchenmaschinen müssen in der Küche untergebracht werden?: Küchenmaschine, Wasserkocher, Mixer, Pürierstab
Was soll in der Küche außer den Standards untergebracht werden?: Geschirr komplett (nichts in Ess-/Wohnzimmer)
Welchen Stauraum gibt es sonst noch?: Speisekammer, Hauswirtschaftsraum
Was/wie wird gekocht? (Alltagsküche, Menüs, Snacks usw): Alltagsküche; immer wieder aber auch aufwändigere Menüs
Wie häufig wird gekocht?: (fast) täglich 1x warm
Wird alleine gekocht? Oder auch gemeinsam? Mit und für Gäste?: oft zu zweit
Was stört an der bisherigen Küche und was soll die neue Küche unbedingt können? Warum?: Es soll der Mittelpunkt des Hauses sein; Man soll sich aber nicht im Weg stehen
Welche Mülltrennung soll in der Küche vorgehalten werden?: Biomüll, Gelber Sack Müll, Restmüll
Steht schon ein Küchenhersteller fest oder wird bevorzugt?: Häcker SystemArt
Steht schon ein Gerätehersteller fest oder wird bevorzugt?: Küppersbusch DGC und BO; Bora BIU; Miele Kühlschrank; Spülmaschine offen (auch grifflos zu öffnen)
Preisvorstellung (Budget): bis 25.000,-
 

Anhänge

  • perspektive2.JPG
    perspektive2.JPG
    56,1 KB · Aufrufe: 888
  • perspektive1.JPG
    perspektive1.JPG
    56,5 KB · Aufrufe: 334
  • grundriss-EG.JPG
    grundriss-EG.JPG
    113,7 KB · Aufrufe: 345
  • grundriss-kueche.JPG
    grundriss-kueche.JPG
    123,8 KB · Aufrufe: 310
Hallo Scheino,

an sich schon eine sehr schöne Planung. Folgende Dinge fallen mir noch auf:
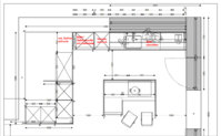
  • Das Kochfeld ist gefährlich nah am Rand, wenn mal ein Pfannen-Stiel über den Rand ragt läuft man Gefahr, das heiße Kochgeschirr gleich herunter zu reißen (gerade mit Kindern). Insofern würde ich versuchen planrechts min. 30cm zwischen Kochelf und Rand zu lassen
  • Die Aufteilung der Spülzeile ist noch nicht ganz optimal, da die Spüle genau gegenüber des Kochfeldes ist (zu zweit arbeiten nicht komfortabel), die Spülmaschine genau mittig ist (ist dadurch offen im Weg) und es keine gute Lösung für den Müll gibt. Du redest von fixen Anschlüssen, leider sind die nirgends eingezeichnet. Mein Vorschlag wäre von links nach rechts: 60er GSP - 60er US Spüle - 40er US MUPL - 90er US.
  • Generell gibt es wenig Arbeitsfläche für eine Küche dieser Größe. Ich würde überlegen den 50er Vorratsschrank in Unterschrank + Oberschrank zu ändern.
  • Zudem wäre es interessant, wie die Insel von der anderen Seite aufgeteilt ist. Was für ein (Bora -)Dunstabzug ist geplant?
  • Reine Optik, aber bei Grifflos würde ich ggf. die obere Griffleiste um die Insel herumlaufen lassen und nur auf der rechten Seite eine Wange einplanen.
 
Zuletzt bearbeitet:
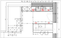
scheino schreibt Bora BIU, das ist dann das Bora Basic Umluft mit Induktion .

Ich würde mir noch überlegen auf das neue grössere Bora Basic BFIU zu gehen. Das hat Flächeninduktion und ein verbessertes Bedienkonzept ähnlich dem Neff Twistpad, nur eben als Touchbedienung. Ist natürlich aber etwas teuerer als das BIU (LP ca. 1300€ mehr) Aber Achtung das braucht dringend einen 90er Unterschrank , der aber hier ja eh eingeplant ist. Beim BIU reicht ein 80er US.

Man verliert beim Bora Basic bei einem 1-1-2-2 US (6er Raster) nur das oberste Raster komplett, beim zweiten Raster ist nur die Nutzhöhe etwas eingeschränkt. In der Verblendung vom obersten Raster kann man dann super Einbausteckdosen unterbringen.
 
Zuletzt bearbeitet:
Vielen Dank für die raschen ersten Antworten!

Zu deinen Punkten, Nilsblau:
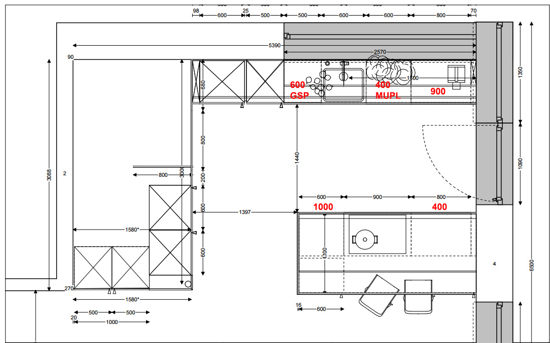
  • Das Kochfeld ist tatsächlich etwas nah am Rand. Es wäre ja noch Platz genug, um aus dem 90er einen 100er US zu machen. Dann sollte sich das ganz gut ausgehen, oder?
  • Die Spüle ist ansich bewusst gegenüber des Kochfelds. Anders würde ich das auch nicht praktisch finden, ehrlich gesagt. Zumindest wenn man alleine arbeitet. Bei deiner Einteilung der Zeile ist die Spüle ja sogar noch direkter gegenüber des Kochfelds, weil sie noch etwas nach rechts rutschen würde. Den MUPL hat mir bisher jeder Fachberater ausgeredet. Ich würde es aber schon auch gut finden. Unter die Spüle dann ein einfacher Auszug für Spülmittel, Tabs etc.?
  • Wir haben hier bewusst eher auf Stauraum geachtet als auf Arbeitsfläche. Wir haben sonst im Haus nicht viel Stauraum, daher muss auch das eine oder andere nicht unbedingt küchentypische da rein. Zudem - und das sieht man in den Bildern leider nicht - soll an der oberen und teilweise linken Wand der Vorratskammer noch eine APL kommen. Ist vor allem gedacht für "gröbere" Arbeiten und unschöne Küchengeräte gedacht, die man nicht ständig wegräumen möchte, sondern dort gut verstecken kann.
  • Den 50er Vorratsschrank würde ich nicht gerne in US und OS teilen. Das würde aus unserer Sicht die Optik völlig ruinieren.
  • Das Bild mit Innenansicht Insel habe ich jetzt leider nicht hier. Der 80er hat 2x Lade, 1x Auszug; der 90er 1x Blende inkl. Steckdose; 1x Lade, 1x Auszug
  • Das mit dem Herumlaufen lassen der Griffleiste haben wir uns im Küchenstudio angesehen, gefiel uns aber nicht.
Zu Ralfs1969: Das BFIU würde mir natürlich wesentlich besser gefallen. Aber ist es nicht auch deutlich teurer? Kostenmäßig sind wir nämlich schon ziemlich am Limit angelangt.

Danke nochmals!
 
ihr solltet aus der Kochinsel unbedingt eine Halbinsel machen und sie unter dem Fenster andocken! Die Insel ist so zu klein.

Kochfeld/Spüle sollten nicht direkt gegenüber sein, sondern leicht versetzt zueinander. Dreh Dich mal um- Du landest einen halben Schritt neben Deiner Ausgangsposition.
 
Ja, die Insel ist zu klein, das macht keinen Spaß. Ich wäre auch für eine Halbinsel, wie von @Nice-nofret vorgeschlagen, oder auch Kochfeld und Spüle austauschen (wie schon oben gesagt Spüle und Kochfeld leicht versetzt gegenüber) aber auch dann müsste man die Insel größer machen und auf die Abtropfe verzichten, damit man überhaupt arbeiten kann.
 
Also ich schließe mich den Vorrednern an, eine Halbinsel mit 100cm mehr Fläche wäre deutlich ergonomischer. Falls ihr das nicht wollt, würde ich die Insel folgendermaßen aufteilen: 40 - 80 - 60 So wäre das Kochfeld weiter weg vom Rand und man hätte auf der anderen Seite eine kleine Arbeitsfläche. Aufteilung jeweils mit zwei Schubladen und einem Auszug ist ok.

Ich kann nur mutmaßen warum in Studios oft der MUPL ausgeredet wird (vielleicht weil das Konzept doch nicht richtig bekannt ist oder andere Müllsysteme teurer verkauft werden können). Ich würde ihn empfehlen. Unter der Spüle einen hohen und (versteckten) niedrigen Auszug, im einen Putzmittel oder z.B. Getränke, im anderen Spülbedarf und Handtücher.

Ok ich verstehe den Wunsch nach Stauraum. Aber ihr habt auch noch einen HWR oder? Und am Ende müsst ihr wissen, ob euch die Optik wichtiger ist als eine wirklich praktische Küche in der auch mal zu zweit oder mit Kindern gekocht werden kann.
Wäre es meine Küche, würde ich Vorratsschrank und Kühlschrank aus der Zeile nehmen, die Zeile entsprechend verlängern, Kühlschrank anstelle des äußeren Backofens platzieren und die Heißgeräte übereinander setzen. So hätte man mehr Fläche und eine wirklich klare Optik.

Die Arbeitsfläche in der Kammer ist in jedem Fall gut und auch sinnvoll, da bei euch nicht viel auf der Fläche stehen kann.

Die Spülmaschine würde ich wirklich an den Rand der Zeile setzen. Wo ist bei euch der Wasseranschluss?
 
@Nilsblau, in der Küche sind so viele HS eingeplant, da kann man getrost die Heissgeräte in optimaler Höhe nebeneinander lassen.

@scheino, ich empfehle Euch, eine richtige Stauraumplanung zu machen, um zu verifizieren, ob ihr wirklich so viele Hochschränke braucht, zumal Ihr auch Speisekammer und HWR habt. Euch geht durch diese Planung sehr viel Arbeitsfläche verloren, und das vermisst man schmerzhaft spätestens beim genannten aufwändigen Kochen. Wo ist der Kaffeevollautomat geplant? Toaster? Mixer?
 
Ok, die Insel ist zu klein. Das sehe ich eigentlich auch so. Die kann ja auch nicht groß genug sein ;-) Mehr als 10cm auf jeder Seite möchte ich aber dennoch nicht dazu geben. Hintergrund ist folgender: Ich hatte zuerst eigentlich auch eine Halbinsel im Kopf, eben um die Arbeitsfläche dort zu maximieren. Nach längerer Überlegung sind wir aber zu dem Schluss gekommen, dass wir uns dann dort wohl etwas eingesperrt fühlen würden, gerade wenn einem ständig zwei kleiner Kinder zwischen den Beinen durchlaufen oder man zu zweit kocht. Das stört uns nämlich in unserer jetzigen Küche doch sehr. Da wollten wir uns sozusagen in der neuen einen "Fluchtweg" offen lassen.
Außerdem könnte man die Terrassentür ja nicht mehr aufmachen, wenn die Insel noch größer wird. Ich kann sie auch nicht weiter nach planunten verschieben, da dann zu wenig Platz für den Esstisch bleibt und der Abstand Zeile-Insel zu groß wird.

Zum Stauraum: Ja, einen HWR haben wir schon. Allerdings wird es dort nur wenig Stauraum geben, da dort einiges an technischen Geräten seinen Platz findet (WM, WT, Wärmepumpe, EDV-Schrank, E-Verteiler, Wechselrichter...).

Zu Mixer, Toaster, Kaffeemaschine etc: Wie schon geschrieben, das kommt alles in die Vorratskammer an einen fixen Platz. Die Arbeitsflächen in der eigentlichen Küche möchte ich weitgehend frei haben.

Zu den vielen Hochschränken: Zum einen glaube ich schon, dass wir die gut brauchen können. Zum anderen sind sie aus meiner Sicht gestalterisch notwendig: Die HS links "bauen" ja eigentlich erst die Vorratskammer. Der Kühlschrank ist sowieso ein HS und der Vorratsschrank daneben ist aus meiner Sicht die einzige optisch ansprechende Variante (die mir einfallen würde). Mehr Arbeitsfläche wäre hier natürlich wünschenswert, ich verstehe eure Argumente total. Der Spagat zwischen Optik und Praktikabilität ist leider sehr schwierig. Die Küche bestimmt bei uns halt doch sehr stark die gesamte Erscheinung des EG....Hm,... schwierig, schwierig.

Achja: Der Wasseranschluss ist genau dort, wo jetzt am Küchenplan (nicht EG-Grundriss) die Spüle eingezeichnet ist. Spüle auf die Insel ist nicht mehr drin.
 
So, ich muss den Thread jetzt nochmal hoch holen.

Wir haben uns eure Inputs nochmal gut durch den Kopf gehen lassen und haben es (zum Glück) geschafft uns von bereits vorhandenen fixen Ideen zu verabschieden.

Die Insel soll nun wie von euch vorgeschlagen eine Halbinsel (230 cm x 110 cm) werden. Dadurch wird zwar der Abstand zwischen Zeile und Halbinsel ziemlich groß (ca. 140cm), aber da wir beide relativ groß sind sollte das gerade noch ok sein.

Durch die Halbinsel haben wir nun mehr Arbeitsfläche und einen großzügigen Durchgang anstatt zweier engen. Auf jeden Fall die bessere Lösung, auch wenn es nicht gleich in unseren Kopf wollte ;-)

Ich glaube mittlerweile auch, dass es sinnvoll ist die Spülmaschine direkt an den Anfang der Zeile (planlinks) zu setzen (ist im angehängten Bild noch nicht realisiert). Den MUPL würde ich jetzt gleich neben der Spüle planen (ebenfalls noch nicht im Bild so sichtbar), sodass sich aus meiner Sicht folgende Einteilung der Zeile ergäbe:
60 (Spülmaschine) - 60 (Spüle) - 40 (MUPL) - 90

Noch etwas unsicher bin ich, was die Einteilung der Halbinselinnenseite betrifft. Mein Gefühl wäre jetzt (von Wand beginnend): 40 - 90 - 100 damit neben dem Kochfeld nochmal eine große Arbeitsfläche entsteht. Allerdings sind Kochfeld und Spüle dann wohl schon zu weit auseinander, oder?

Anbei findet ihr aktualisierte Bilder, die allerdings wie schon geschrieben noch nicht alle neuen Überlegungen widerspiegeln. Die roten Beschriftungen bezeichnen die am Bild sichtbaren Breiten, nicht die momentan gewünschten.

Viellleicht hat der eine oder andere von euch ja noch Input. Ich würde mich sehr freuen!
 

Anhänge

  • inselrueck.jpg
    inselrueck.jpg
    120,1 KB · Aufrufe: 315
  • halbinsel.jpg
    halbinsel.jpg
    122,4 KB · Aufrufe: 278
Hallo Scheino,

freut mich zu hören, dass der Rat hier aus dem Forum doch ab und zu Gehör findet. Mit einer Halbinsel werdet ihr sicher mehr Freude beim Kochen haben.

Zu der Aufteilung:
Die Zeile wie oben beschrieben wäre super, zwischen GSP, Spüle und MUPL sind flüssige Arbeitsabläufe möglich, genauso wie auf der großen Fläche rechts vom MUPL.

Die Halbinsel würde in 40 - 90 - 100, 50 - 90 - 90 oder 60 - 90 - 80 (jeweils mit dem schmalerem Schrank an der Wand) funktionieren. Ich bin für Ersteres, da die Fläche neben dem Kochfeld am größten wäre, oder für die mittlere Variante, da es dort nicht so viele verschiedene Schrankbreiten gäbe.

Die Sitzplätze an der Insel (es sollen doch zwei sein?) haben übrigens sehr viel Platz, normalerweise rechnet man 60cm pro Platz, von daher könntest du statt dem 60er Schrank links auch einen 100er oder zwei 50er planen.
 
Prima - so geht es in die richtige Richtung; wenn wir jetzt noch eine Grundrissansicht hätten, wäre es perfekt :-)
 
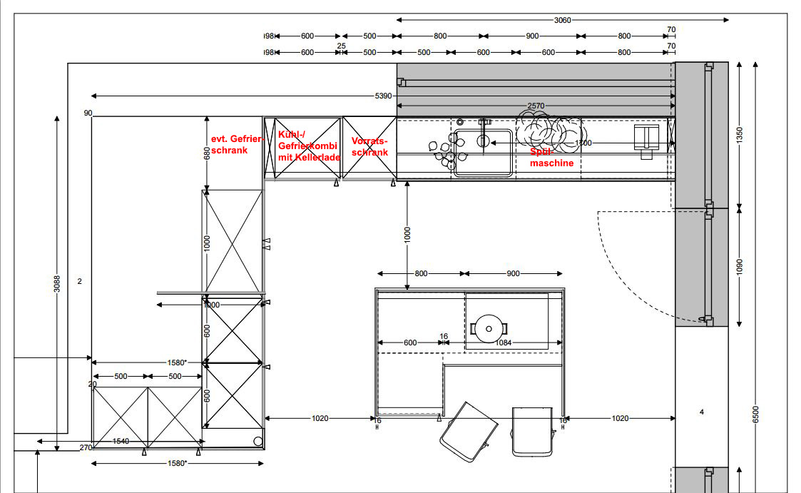
So, hier noch wie gewünscht der Grundriss inkl der Änderungen wie ich sie jetzt noch im Kopf hätte in Rot.

Bei der Einteilung der Insel bin ich mir wirklich nicht sicher. Sind Kochfeld uns Spüle nicht zu weit auseinander, wenn ich die Insel mit einem 40er US beginne? Und es ist wohl auch nicht ganz ideal wenn das Kochfeld direkt bei den beiden Sitzplätzen ist. Andererseits hätte ich auf der Halbinsel schon gerne eine möglichst große zusammenhängende Arbeitsfläche.
 

Anhänge

  • grundriss_neu.jpg
    grundriss_neu.jpg
    128 KB · Aufrufe: 318
Also effektiv sind Kochfeld und Spüle 1,4m von einander entfernt, ich finde die Distanz kann man durchaus mit nem Topf in der Hand überbrücken.

Teil doch in 90 - 90 - 50 auf, finde ich eh besser wegen gleicher Schrankbreiten wie auf der anderen Seite. So könnte der 50er nach außen (genug Platz zum Rand vom Kochfeld) und den 90er zur Wand (kein Kochfeld direkt vor den Sitzplätzen).

Hast du nochmal über die Thekenlänge bzw. den breiteren Schrank von der Seite nachgedacht?
 
.. ich würde die Spülenzeile übertief bauen lassen - zumindest die APL, wenn es im Budget liegt und der Hersteller es hergibt auch den Unterschrank - es lohnt sich! Ausserdem wird die Distanz dadurch kleiner und die Auszüge unter der Spüle müssen weniger stark gekürzt werden - also auch wieder mehr Stauraum.
 
Was mir jetzt eben auffällt:
perspektive2-jpg.189428

sind die Fenster tatsächlich so geplant, wie eingezeichnet?:w00t:
 
Ich würde die Halbinsel 70, 90, 70 gestalten. Und natürlich links die Blende gegen eine Wange tauschen.
 

Ähnliche Beiträge

Neff Hausgeräte Ballerina Küchen Blum Bewegungstechnologie Weibel - Intelligente Küchenlüftung

Neff Spezial

Blum Zonenplaner

Weibel Abluft-Tuning

Weibel Abluft-Tuning
Zurück
Oben