Wolkenlos13
Mitglied
- Beiträge
- 2
Liebe Fori´s,
ich lese schon eine ganze Zeit bei Euch mit und finde toll, was für tolle Tips man hier bekommen kann.
Nun möchte ich Euch auch um Hilfe bitten.
Wir wohnen in einem dänischen Fertighaus und unsere Küche ist 35 jahre alt. Eigentlich noch gut in Schuss, allerdings im fortgeschrittenen Alter etwas unpraktisch, wenn man sich auf den Bauch legen muss um etwas aus dem Schrank hinten unten braucht........
Wir waren auch schon in einem Küchenstudio , aber so richtig tolle Ideen hatten die auch nicht.
Checkliste zur Küchenplanung
Anzahl Personen im Haushalt: 2
Davon Kinder?:
Art des Gebäudes?: Neu-/Umbau, Planänderungen nicht möglich
Körpergrössen aller Hauptbenutzer (wegen Arbeitshöhe ) in cm: 186 und 163 cm
Brüstungshöhe des Fensters (in cm):
Fensterhöhe (in cm):
Raumhöhe in cm: 240
Heizung: Keine Heizung
Sanitäranschlüsse: fix
Ausführung Kühlgerät: Side by Side ca. 90cm breit
Kühlgerät Größe: noch unbekannt
Ausführung Tiefkühl (TK)-Gerät:
Dunstabzugshaube: Abluft
Backofen etc. hochgebaut?: Ja
Hochgebauter Geschirrspüler ?: Nein
Kochfeldart: Induktion
Kochfeldbreite ca. (in cm)?: 90
Spülenform: Noch nicht festgelegt
Geplante Heißgeräte: Backofen
Küchenstil: Modern
Sitzmöglichkeit in der Küche / im Küchenbereich: Arbeitsplatte in Tischhöhe
Sitzmöglichkeit: Für wieviel Personen?: für 1 Person
Sitzmöglichkeit: Tisch - wenn gesonderter Tisch oder offene Küche:
Gewünschte o. vorhandene Tischgröße:
Wofür soll der Sitzplatz in der Küche genutzt werden? Wie häufig?: zum Gemüse putzen und so weiter
Welche Arbeitshöhe ist angedacht (in cm)?:
Was steht auf der Arbeitsplatte oder soll dort stehen?:
Welche weiteren Küchenmaschinen müssen in der Küche untergebracht werden?: Wasserkocher, Toaster, Allesschneider (z. B. in Schublade), Handrührgerät, Mixer, Eierkocher
Was soll in der Küche außer den Standards untergebracht werden?: ALLE Vorräte
Welchen Stauraum gibt es sonst noch?: Geschirr/Gläserschrank im Wohn-/Esszimmer
Was/wie wird gekocht? (Alltagsküche, Menüs, Snacks usw): Alltagsküche und Gästebewirtung bis zu 15 Gästen
Wie häufig wird gekocht?(fast) täglich 1x warm[/COLOR]
Wird alleine gekocht? Oder auch gemeinsam? Mit und für Gäste?: 2 Personen
Was stört an der bisherigen Küche und was soll die neue Küche unbedingt können? Warum?: zu wenig Platz im Kochbereich. Wir kochen oft zu zweit und stehen uns dann im Weg. Ich brauche einen Sitzplatz zum Arbeiten weil ich nicht so lange stehen kann.
Welche Mülltrennung soll in der Küche vorgehalten werden?: Restmüll
Steht schon ein Küchenhersteller fest oder wird bevorzugt?: Nein
Steht schon ein Gerätehersteller fest oder wird bevorzugt?: Nein
Preisvorstellung (Budget): bis 10.000,-
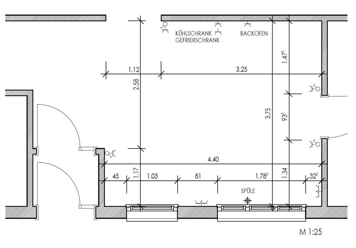
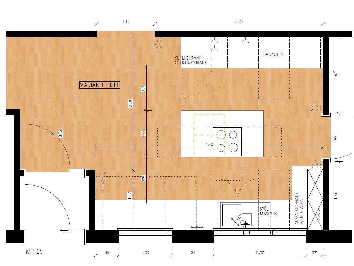
Das ist die Küche im Grundriss und eine Planung von meiner Tochter, aber ich weiß nicht.......
ich lese schon eine ganze Zeit bei Euch mit und finde toll, was für tolle Tips man hier bekommen kann.
Nun möchte ich Euch auch um Hilfe bitten.
Wir wohnen in einem dänischen Fertighaus und unsere Küche ist 35 jahre alt. Eigentlich noch gut in Schuss, allerdings im fortgeschrittenen Alter etwas unpraktisch, wenn man sich auf den Bauch legen muss um etwas aus dem Schrank hinten unten braucht........
Wir waren auch schon in einem Küchenstudio , aber so richtig tolle Ideen hatten die auch nicht.
Checkliste zur Küchenplanung
Anzahl Personen im Haushalt: 2
Davon Kinder?:
Art des Gebäudes?: Neu-/Umbau, Planänderungen nicht möglich
Körpergrössen aller Hauptbenutzer (wegen Arbeitshöhe ) in cm: 186 und 163 cm
Brüstungshöhe des Fensters (in cm):
Fensterhöhe (in cm):
Raumhöhe in cm: 240
Heizung: Keine Heizung
Sanitäranschlüsse: fix
Ausführung Kühlgerät: Side by Side ca. 90cm breit
Kühlgerät Größe: noch unbekannt
Ausführung Tiefkühl (TK)-Gerät:
Dunstabzugshaube: Abluft
Backofen etc. hochgebaut?: Ja
Hochgebauter Geschirrspüler ?: Nein
Kochfeldart: Induktion
Kochfeldbreite ca. (in cm)?: 90
Spülenform: Noch nicht festgelegt
Geplante Heißgeräte: Backofen
Küchenstil: Modern
Sitzmöglichkeit in der Küche / im Küchenbereich: Arbeitsplatte in Tischhöhe
Sitzmöglichkeit: Für wieviel Personen?: für 1 Person
Sitzmöglichkeit: Tisch - wenn gesonderter Tisch oder offene Küche:
Gewünschte o. vorhandene Tischgröße:
Wofür soll der Sitzplatz in der Küche genutzt werden? Wie häufig?: zum Gemüse putzen und so weiter
Welche Arbeitshöhe ist angedacht (in cm)?:
Was steht auf der Arbeitsplatte oder soll dort stehen?:
Welche weiteren Küchenmaschinen müssen in der Küche untergebracht werden?: Wasserkocher, Toaster, Allesschneider (z. B. in Schublade), Handrührgerät, Mixer, Eierkocher
Was soll in der Küche außer den Standards untergebracht werden?: ALLE Vorräte
Welchen Stauraum gibt es sonst noch?: Geschirr/Gläserschrank im Wohn-/Esszimmer
Was/wie wird gekocht? (Alltagsküche, Menüs, Snacks usw): Alltagsküche und Gästebewirtung bis zu 15 Gästen
Wie häufig wird gekocht?(fast) täglich 1x warm[/COLOR]
Wird alleine gekocht? Oder auch gemeinsam? Mit und für Gäste?: 2 Personen
Was stört an der bisherigen Küche und was soll die neue Küche unbedingt können? Warum?: zu wenig Platz im Kochbereich. Wir kochen oft zu zweit und stehen uns dann im Weg. Ich brauche einen Sitzplatz zum Arbeiten weil ich nicht so lange stehen kann.
Welche Mülltrennung soll in der Küche vorgehalten werden?: Restmüll
Steht schon ein Küchenhersteller fest oder wird bevorzugt?: Nein
Steht schon ein Gerätehersteller fest oder wird bevorzugt?: Nein
Preisvorstellung (Budget): bis 10.000,-
Das ist die Küche im Grundriss und eine Planung von meiner Tochter, aber ich weiß nicht.......
Anhänge
Zuletzt bearbeitet:


