Checksch
Mitglied
- Beiträge
- 11
Hallo zusammen!
Ich heiße Christoph und bin durch Zufall auf dieses Forum gestoßen, als ich aus Verzweiflung schon nach Ideen im Internet gesucht habe.
Und zwar haben wir unser 8 Jahre altes Haus mit einer gut 20 Jahre alten Küche übernommen. Diese Küche ist voll von Planungsfehler und bietet bei einem Raum von 3,89x2,91m auch noch eine nervige Insel. Wenn die Spülmaschine offen ist, geht der Mülleimer nicht mehr auf und man kommt nicht mehr an die Spüle. Einfach nervig im Alltag.
Nun haben wir nach 2 erfolglosen Küchenplaner besuchen mal selbst Hand angelegt und wollten hier um eure Meinung bitten. Die Bilder findet ihr anbei. Der Kühlschrank ist vorhanden mit den Maßen 60x193x60, den habe ich aus optischen Gründen etwas umbaut, die Höhe im Planer passt aber scheinbar nicht. Spülmaschine ist der dritte Unterschrank von rechts. Die Ecke ist ein durchgehender Schrank ohne LeMans .
Negativ fällt unsuselbst auf, dass es wohl wenig Licht zur Arbeitsfläche hin geben wird...
Leider habe ich festgestellt, dass ich die PLAN Dateien vom Geschäftrechner nicht zuhause am PC verwenden kann
Checkliste zur Küchenplanung
Anzahl Personen im Haushalt: 4
Davon Kinder?: 2
Art des Gebäudes?: Neu-/Umbau, Planänderungen möglich, Bestandsbau, (kleinere) Umbauten möglich
Körpergrössen aller Hauptbenutzer (wegen Arbeitshöhe ) in cm: 166 und 183
Brüstungshöhe des Fensters (in cm): 96
Fensterhöhe (in cm):
Raumhöhe in cm: 246
Heizung: Fussbodenheizung
Sanitäranschlüsse: fix
Ausführung Kühlgerät: Stand-Alone bis 60 cm Breite
Kühlgerät Größe:
Ausführung Tiefkühl (TK)-Gerät: Nicht erforderlich bzw. steht woanders
Dunstabzugshaube: Umluft
Backofen etc. hochgebaut?: Wenn möglich
Hochgebauter Geschirrspüler ?: Nein
Kochfeldart: Induktion
Kochfeldbreite ca. (in cm)?: 80
Spülenform: 1 Becken mit Abtropffläche
Geplante Heißgeräte: Einbaumikrowelle
Küchenstil: Modern
Sitzmöglichkeit in der Küche / im Küchenbereich: Keine
Sitzmöglichkeit: Für wieviel Personen?:
Sitzmöglichkeit: Tisch - wenn gesonderter Tisch oder offene Küche:
Gewünschte o. vorhandene Tischgröße:
Wofür soll der Sitzplatz in der Küche genutzt werden? Wie häufig?:
Welche Arbeitshöhe ist angedacht (in cm)?: 92
Was steht auf der Arbeitsplatte oder soll dort stehen?: Kaffeemaschine, Küchenmaschine
Welche weiteren Küchenmaschinen müssen in der Küche untergebracht werden?: Küchenmaschine, Wasserkocher, Toaster, Mixer, Eierkocher
Was soll in der Küche außer den Standards untergebracht werden?:
Welchen Stauraum gibt es sonst noch?: Keller
Was/wie wird gekocht? (Alltagsküche, Menüs, Snacks usw):
Wie häufig wird gekocht?: (fast) täglich 1x warm
Wird alleine gekocht? Oder auch gemeinsam? Mit und für Gäste?: 1 -2, manchmal bis 3
Was stört an der bisherigen Küche und was soll die neue Küche unbedingt können? Warum?: Es stört bisher alles!
Welche Mülltrennung soll in der Küche vorgehalten werden?:
Steht schon ein Küchenhersteller fest oder wird bevorzugt?:
Steht schon ein Gerätehersteller fest oder wird bevorzugt?:
Preisvorstellung (Budget): bis 10.000,-
----------------------------
Im Threadverlauf hinzugekommen
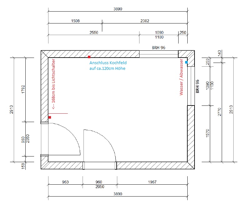
vermaßte Küche (nach links Schiebetür, die in der Wand läuft zum Esszimmer, nach unten Tür zum Flur)
Ich heiße Christoph und bin durch Zufall auf dieses Forum gestoßen, als ich aus Verzweiflung schon nach Ideen im Internet gesucht habe.
Und zwar haben wir unser 8 Jahre altes Haus mit einer gut 20 Jahre alten Küche übernommen. Diese Küche ist voll von Planungsfehler und bietet bei einem Raum von 3,89x2,91m auch noch eine nervige Insel. Wenn die Spülmaschine offen ist, geht der Mülleimer nicht mehr auf und man kommt nicht mehr an die Spüle. Einfach nervig im Alltag.
Nun haben wir nach 2 erfolglosen Küchenplaner besuchen mal selbst Hand angelegt und wollten hier um eure Meinung bitten. Die Bilder findet ihr anbei. Der Kühlschrank ist vorhanden mit den Maßen 60x193x60, den habe ich aus optischen Gründen etwas umbaut, die Höhe im Planer passt aber scheinbar nicht. Spülmaschine ist der dritte Unterschrank von rechts. Die Ecke ist ein durchgehender Schrank ohne LeMans .
Negativ fällt unsuselbst auf, dass es wohl wenig Licht zur Arbeitsfläche hin geben wird...
Leider habe ich festgestellt, dass ich die PLAN Dateien vom Geschäftrechner nicht zuhause am PC verwenden kann
Checkliste zur Küchenplanung
Anzahl Personen im Haushalt: 4
Davon Kinder?: 2
Art des Gebäudes?: Neu-/Umbau, Planänderungen möglich, Bestandsbau, (kleinere) Umbauten möglich
Körpergrössen aller Hauptbenutzer (wegen Arbeitshöhe ) in cm: 166 und 183
Brüstungshöhe des Fensters (in cm): 96
Fensterhöhe (in cm):
Raumhöhe in cm: 246
Heizung: Fussbodenheizung
Sanitäranschlüsse: fix
Ausführung Kühlgerät: Stand-Alone bis 60 cm Breite
Kühlgerät Größe:
Ausführung Tiefkühl (TK)-Gerät: Nicht erforderlich bzw. steht woanders
Dunstabzugshaube: Umluft
Backofen etc. hochgebaut?: Wenn möglich
Hochgebauter Geschirrspüler ?: Nein
Kochfeldart: Induktion
Kochfeldbreite ca. (in cm)?: 80
Spülenform: 1 Becken mit Abtropffläche
Geplante Heißgeräte: Einbaumikrowelle
Küchenstil: Modern
Sitzmöglichkeit in der Küche / im Küchenbereich: Keine
Sitzmöglichkeit: Für wieviel Personen?:
Sitzmöglichkeit: Tisch - wenn gesonderter Tisch oder offene Küche:
Gewünschte o. vorhandene Tischgröße:
Wofür soll der Sitzplatz in der Küche genutzt werden? Wie häufig?:
Welche Arbeitshöhe ist angedacht (in cm)?: 92
Was steht auf der Arbeitsplatte oder soll dort stehen?: Kaffeemaschine, Küchenmaschine
Welche weiteren Küchenmaschinen müssen in der Küche untergebracht werden?: Küchenmaschine, Wasserkocher, Toaster, Mixer, Eierkocher
Was soll in der Küche außer den Standards untergebracht werden?:
Welchen Stauraum gibt es sonst noch?: Keller
Was/wie wird gekocht? (Alltagsküche, Menüs, Snacks usw):
Wie häufig wird gekocht?: (fast) täglich 1x warm
Wird alleine gekocht? Oder auch gemeinsam? Mit und für Gäste?: 1 -2, manchmal bis 3
Was stört an der bisherigen Küche und was soll die neue Küche unbedingt können? Warum?: Es stört bisher alles!
Welche Mülltrennung soll in der Küche vorgehalten werden?:
Steht schon ein Küchenhersteller fest oder wird bevorzugt?:
Steht schon ein Gerätehersteller fest oder wird bevorzugt?:
Preisvorstellung (Budget): bis 10.000,-
----------------------------
Im Threadverlauf hinzugekommen
vermaßte Küche (nach links Schiebetür, die in der Wand läuft zum Esszimmer, nach unten Tür zum Flur)
Anhänge
Zuletzt bearbeitet von einem Moderator:
