Planung für eine Neubauküche

AW: Planung für eine Neubauküche

Versuch doch mal zu erläutern, wo du variabel sein willst. Bezüglich Küchenecke ergibt sich später mal wenig Variabilität, da ja Anschlüsse an bestimmten Stellen sitzen.

Mit der halbhohen Trennwand bleibt dir immer noch, das Sofa z. B. daran zu stellen und Fernseher dann eher planoben links. Dafür halt einfach in der halbhohen Wand TV-Anschluß und in der Ecke oben links legen lassen. Wahlweise sogar noch an der Wand unten rechts. Dann kann das Sofa noch nach planunten links usw. Nur den Küchenteil sehe ich so gar nicht variabel.
 
AW: Planung für eine Neubauküche

Ach ja .. lese nochmal alles zu den letzten Varianten von dir .. mit meiner Variante behältst du mehr Freiraum für den Wohnbereich.
 
AW: Planung für eine Neubauküche

Guten Morgen,

muss gleich für ein paar Std. etwas arbeiten. Ich überlege, ob ich die Trennwand (Rückseite der Küchenzeile) weg lasse, könnte dann ein wenig flexibler sein, wenn ich mal umstellen möchte. Z.B. den Esstisch direkt an die Küche, wenn ich mehr Platz für Essen brauche.

Ich weiß, dass tote Ecken gute Ecken sind, aber um mehr Arbeitsfläche zu haben, könnte man die Spüle ziemlich nah an die Wand packen. In den ersten Ideen war das auch zu sehen.

Die halbhohen Schränke dann doch zwischen die 2 Türen. Wenn man die Rückseiten der Küche auch mit Fronten ausstattetn, dann wäre die Möglichkeit gegeben, dass man in die tote Ecke von der Wohnseite einen Schrank packt. Die Idee hattest du ja schon Kerstin.

Die Rückfronten sind dann wahrscheinlich wieder Mehrkosten, aber das sieht dann irgendwie "kompletter" aus.

Wenn ich heute Nachmittag wieder da bin, mach ich mal ne Zeichnung, wie ich das meine.

Bitte nicht falsch verstehen, Kerstin, aber manchmal tun sich ja noch andere Gedanken auf. ;-)

LG
 
AW: Planung für eine Neubauküche

Es ist völlig richtig, dass du dir Gedanken machst. :top: Und auch sinnvoll ist es, diese hier schriftlich niederzulegen. Erstens fällt einem beim Schreiben schon oft auf, was gut und was schlecht an der eigenen Idee ist, weil man seine Idee hier ja quasi "verkaufen" will, sprich Zustimmung erhalten möchte. Und zweitens können wir dann in den Dialog mit dir treten und unsere Gedanken dazu äußern. Entscheiden mußt du dann, aber, was man gut erwogen hat und wofür man Alternativen hatte, dahinter steht man meistens dann wesentlich fester.

Ich habe meinen Wohn/Ess/Kochraum in rund 20 Varianten gehabt :cool: ... zum Schluß waren es zwar nur noch Details, aber ;-)

Du könntest die Trennwand ja auch einfach nur in APL-Höhe machen. Ich habe sie ja so hoch gemacht, damit man den Fernseher in Idealhöhe dort hinstellen/hängen kann. Ich finde aber, dass eine Trennwand mehr Möglichkeiten der variablen Möbelstellung gibt, als einfach nur die Rückwand der Küchenmöbel. Einfach, weil man da auch mal andere Farben durch Tapete oder so ins Spiel bringen kann usw.

Mich würden die Hochschränke an der Wand planrechts stören, weil sie da auch vom Eingangs aus als Barriere wirken. Außerdem sollte man ja den Zeilenabstand bei dir relativ klein halten, damit fürs Wohnen Platz bleibt. Sind rechts und links des Küchengangs nur Unterschränke wirkt das bei z. B. 90 cm Zeilenabstand großzügiger, als wenn dabei einseitig Hochhschränke stehen. Einfach, weil man in Augenhöher ja rechts und links des Ganges die jeweiligen 60 cm APL-Tiefe noch sieht.

90 cm Zeilenabstand aus meiner Küche:
-
 
AW: Planung für eine Neubauküche

Sooooooo!


Klappe die wievielte?? ;-)
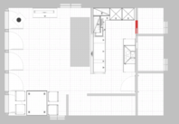
Ich hab mich mal wieder an meiner Planung ausgelassen. Die tote Ecke ist jetzt trotzdem erst einmal mit einem Eckschrank ausgefüllt. Also nicht wundern.
Ich hab mal meine Couchgarnitur mit eingebaut.
Der Kamin ist relativ nah an der Wand, darf er auch, ich hab mich mit den Abständen an die Betriebsanleitung gehalten.

Die nächste Diskussionsrunde ist eröffnet. Also immer fleissig melden.
:2daumenhoch:
 

Anhänge

  • Planung 10.02.2013.KPL
    4,1 KB · Aufrufe: 152
  • Küchenplanung 10.02.2013.jpg
    Küchenplanung 10.02.2013.jpg
    53,4 KB · Aufrufe: 145
AW: Planung für eine Neubauküche

Wäre aber nett, wenn du wie wir auch, aus einer Alnoplanung ein oder zwei Ansichten und den Grundriss fabrizierst. --> Alnohilfe Kapitel 3 ... dann muss nicht jeder erst 2 Dateien herunterladen, den Alnoplaner starten und die heruntergeladenen Dateien öffnen, um überhaupt mal zu sehen, was du geplant hast. Und, die Profis sehen überhaupt mal was, denn die haben den Alnoplaner nicht installiert.

Und, zur Weiterarbeit fehlt die zweite Alnodatei mit der Endung POS.
 
AW: Planung für eine Neubauküche

Wenn die Spülenzeile nur 60 cm tief wird, dann finde ich, geht es ohne halbhohe Trennwand gar nicht, wenn das Sofa dahinter stehen soll. Mal ein bisschen Gespritze an der Spüle und du hast das Zeugs auch auf dem Sofa.
 
AW: Planung für eine Neubauküche

Arrrgh, wenn man das nicht täglich macht, vergisst man das natürlich.

Sorry :-[
 

Anhänge

  • Planung 10.02.2013.POS
    14,8 KB · Aufrufe: 154
  • Planung 10.02.2013.KPL
    4,1 KB · Aufrufe: 150
  • 10.02.2013 - Kochfeld.jpg
    10.02.2013 - Kochfeld.jpg
    62,5 KB · Aufrufe: 165
  • 10.02.2013 - Blick vom Abstellraum.jpg
    10.02.2013 - Blick vom Abstellraum.jpg
    56,3 KB · Aufrufe: 160
  • 10.02.2013 - Kopfseite.jpg
    10.02.2013 - Kopfseite.jpg
    51,4 KB · Aufrufe: 159
AW: Planung für eine Neubauküche

Grundriss fehlt immer noch, der ist aber immer am besten, wenn man Abstände, Kaminposition etc. sehen will. ;-)

Wenn du diese Variabilität mit dem Sofa willst, dann würde ich es eher ähnlich wie bei mir machen.

Ich habe die Küche zunächst mit einem Stück raumhoher Trennwand abgetrennt und dann Trockenbauwand in APL-Höhe

-
Der Vorteil ist, die Spüle liegt hinter der raumhohen Wand, keine Spritzer im Wohnbereich und ich kann in der Ecke auch gleich mal ein wenig Verstecken spielen. Z. B. GSP läuft und ich habe noch mehr da stehen für die nächste Ladung usw.

Wenn du immer noch kein gutes Gefühl für tote Ecke hast ... dann eben ein Rondell. Wobei ich wirklich nicht weiß, was du da reintun möchtest. Kannst du es mal verraten? Stichwort Stauraumplanung .

Danach dann der 60er Spülenschrank, 30er Müll unter der APL, 80er Auszugsunterschrank, 15er Platzhalter und 45er GSP, die ich zum Raum hin gleich noch mit Trockenbauwand abtrennen würde, dann spart man sich eine Sichtwange. GSP so am Rand, weil es einfach das Ausräumen erleichtert.

Wenn du den Stauraum brauchst, kannst du dann auch Hängeschränke über Eck führen.

Willst du jetzt doch eine DAH? Abluft oder Umluft?
 

Anhänge

  • mondi_20130210_kb2.KPL
    4,1 KB · Aufrufe: 154
  • mondi_20130210_kb2.POS
    14,8 KB · Aufrufe: 161
  • mondi_20130210_kb2_Ansicht1.jpg
    mondi_20130210_kb2_Ansicht1.jpg
    123,1 KB · Aufrufe: 148
  • mondi_20130210_kb2_Ansicht2.jpg
    mondi_20130210_kb2_Ansicht2.jpg
    156,4 KB · Aufrufe: 150
  • mondi_20130210_kb2_Ansicht3.jpg
    mondi_20130210_kb2_Ansicht3.jpg
    161,6 KB · Aufrufe: 146
  • mondi_20130210_kb2_Ansicht4.jpg
    mondi_20130210_kb2_Ansicht4.jpg
    134,9 KB · Aufrufe: 147
  • mondi_20130210_kb2_Grundriss.jpg
    mondi_20130210_kb2_Grundriss.jpg
    81,1 KB · Aufrufe: 145
AW: Planung für eine Neubauküche

Ui, mit der Wand, das sind ja mal ganz neue Möglichkeiten. Das ist gar nicht so schlecht. Und soviel Licht wird es nun nicht nehmen. Das könnte ich verschmerzen.

Meine Dunstabzugshaube hat zu wenig Leistung, um Gerüche im offenen Bereich gut rauszuziehen. Deswegen eine neue. Backofen muss neu, denn der ist nun so neu, das es keinen Sinn und Verstand hat, den zu behalten, genauso wenig wie das Kochfeld. Alles raus und neu. :-)

Die Stauraumplanung ist jetzt mal grad fix überlegt. Ob ich das so unterbringe, würde sich dann zeigen, wenn es soweit ist.
Ich hab mal zwei Bilder mit reingestellt. Vielleicht kann man da etwas erkennen.

Fehlt jetzt noch eine Ansicht? Komme schon ganz durcheinander.:-[
 

Anhänge

  • Planung Kerstin 10.02. Stauraumplanung I.jpg
    Planung Kerstin 10.02. Stauraumplanung I.jpg
    70,1 KB · Aufrufe: 169
  • Planung Kerstin 10.02. III.jpg
    Planung Kerstin 10.02. III.jpg
    50 KB · Aufrufe: 165
  • mondi_20130210_kb2 kerstin.KPL
    4,1 KB · Aufrufe: 163
  • mondi_20130210_kb2 kerstin.POS
    14,9 KB · Aufrufe: 138
  • Küchenplanung 10.02.2013.PNG
    Küchenplanung 10.02.2013.PNG
    98,4 KB · Aufrufe: 152
Zuletzt bearbeitet:
AW: Planung für eine Neubauküche

Den Kaminofen vor die Terrassentür? :w00t:

DAH ... Abluft dann noch planoben über den Hochschränken raus?

Der Vorteil dieser zusätzlichen Wand ist halt die Abschottung. Habe ich gerade zuletzt, als ich viele Gäste hatte auch wieder sehr genossen, dass man nicht die Ansammlung dreckigen Geschirrs vom Tisch aus gesehen hat. Zusätzlich erhältst du dann an dem APL-hohem Stück Wand durch die Überdeckung der Wand mit APL auch noch ein Stück APL, dass tiefer als 60 cm ist. Vorbereitende Arbeiten mit der Spüle gleich daneben bringen dann echt Spaß.

Deine Ecke wird zwar einen Hauch dunkler werden als meine, weil ich ja da noch ein Fenster habe, aber die Vorteile liegen eindeutig auf der Hand und, wenn es draußen dunkel ist, muss man sowieso eine gute APL-Beleuchtung haben, also kein zusätzlicher Aufwand.
 
AW: Planung für eine Neubauküche

Hallöchen mal wieder an die User! :-)

Heute Abend hatte ich endlich einen Anruf vom Küchenbauer. Wenn der Rohbau dann hoffentlich im April steht, kommt er dann raus um ein Aufmaß zu machen und die Details zu besprechen. Geräte werden von Neff sein, mehr kann ich leider noch nicht sagen. Aber kostentechnisch werde ich mit allen Geräten und Schränken bei knapp €7500 liegen (Nobilia ), inkl. Lieferung und Montage.
Ich weiß, dass hier keine Preisauskünfte gemacht werden, ist ja nicht euer Job, aber sind die Kosten ok?

LG
mondi
 
AW: Planung für eine Neubauküche

... Du solltest wenigstens dazu Ansichten der gültigen Planung hängen, inkl Frontname & PG, so ist das wie TV-Wahrsagen :w00t:
 
AW: Planung für eine Neubauküche

Wie ne TV-Wahrsagung sollte es natürlich nicht sein :-)


In der Planung hab ich noch ne 45er Spülmaschine. Ich möchte aber dann eine komplett neue Spülmaschine haben,ist aber noch nicht eingezeichnet.

Front: PIA 596 weiß matt/Eiche basneu NB
Arbeitsplatte : Eiche basneu NB
Korpus: weiß
Griff: 760; 810 oder 900

Danke :kfb:
 

Anhänge

  • Küchenplanung 10.02.2013.PNG
    Küchenplanung 10.02.2013.PNG
    98,4 KB · Aufrufe: 149
  • mondi_20130210_kb2 kerstin.KPL
    4,1 KB · Aufrufe: 146
  • mondi_20130210_kb2 kerstin.POS
    14,9 KB · Aufrufe: 165
  • Planung Kerstin 10.02. III.jpg
    Planung Kerstin 10.02. III.jpg
    50 KB · Aufrufe: 152
  • Planung Kerstin 10.02. Stauraumplanung I.jpg
    Planung Kerstin 10.02. Stauraumplanung I.jpg
    70,1 KB · Aufrufe: 164
AW: Planung für eine Neubauküche

Je nachdem was für Geräte da eingeplant sind, scheint es mir ein akzeptabler Preis zu sein.

Solange Du Geräte nicht rausrechnest ist es halt sehr vage...
 

Ähnliche Beiträge

Neff Hausgeräte Ballerina Küchen Blum Bewegungstechnologie Weibel - Intelligente Küchenlüftung

Neff Spezial

Blum Zonenplaner

Weibel Abluft-Tuning

Weibel Abluft-Tuning
Zurück
Oben