DanielHH
Mitglied
- Beiträge
- 2
Hallo zusammen,
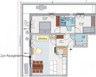
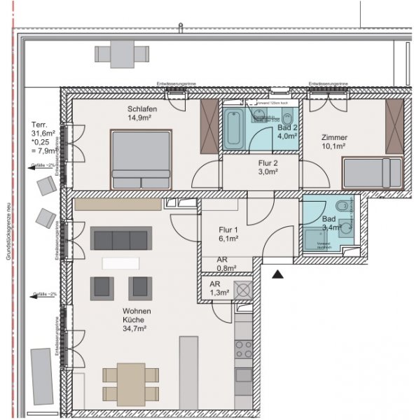
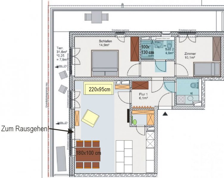
ich lese hier schon seit ein paar Monaten mit, da wir vor einiger Zeit eine Wohnung gekauft haben, welche noch gebaut wird (Baugrube wird gerade ausgehoben) und in 2015 fertig gestellt wird.
Da der Bauträger sicher bald kommen wird und einen Plan für Anschlüsse haben möchte müssen wir uns mal mit der Küchenplanung näher beschäftigen
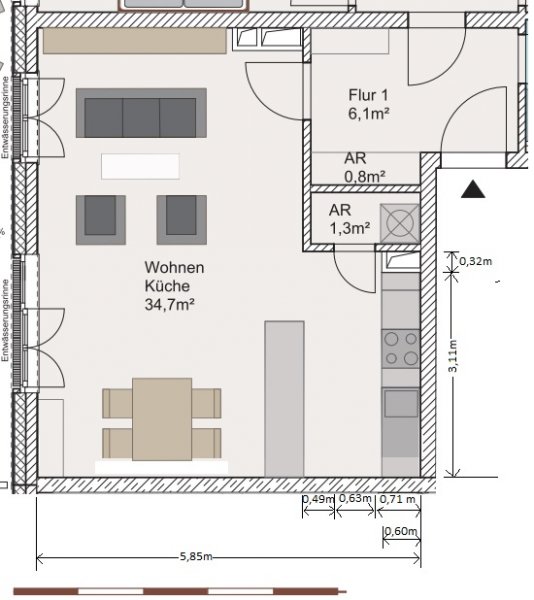
Wir möchten eine offene Küche haben, in einem modernen/schlichten Stil (wahrscheinlich weiß) vielleicht mit aufgesetzten Griffen. Eine grifflose schließe ich aus, wegen Stauraumverlust und Preis. Ich bevorzuge eiegentlich eine Küche ohne Hochschränke, aber ob dann der Stauraum reicht müssen wir dann auch mal sehen.
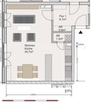
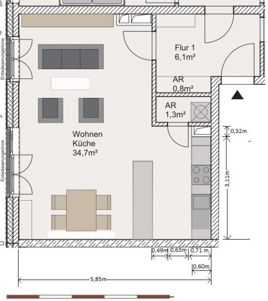
Wir möchten auf jeden Fall eine (Halb-)Insel haben eventuell mit Bar/angesetzter Platte, wobei wir noch mal genau überlegen müssen, ob wir da wirklich sitzen werden. Ich hätte gerne das Kochfeld auf der Insel mit einer Deckenhaube in einer Abhängung, aber wir müssen dann mal schauen, ob das im Budget drin ist. Alternativ soll die Spüle auf die Insel und das Kochfeld an die Wand.
In dem kleinen Abstellraum soll die Waschmaschine, Staubsauger, Bügelbrett und noch ein kleines Regal für ein paar Vorräte rein.
Müll unter der APL soll wenn möglich auch mit rein. Auf der Arbeitsplatte steht in der Regel noch ein Wassersprudler.
Ich habe schon mal einen ersten Entwurf im Alnoplaner erstellt. Ich würde mich über Ideen und Kommentare freuen
Grüße aus Hamburg
Daniel
Checkliste zur Küchenplanung von DanielHH
Anzahl Personen im Haushalt : 2
Davon Kinder? : keine
Körpergrössen aller Hauptbenutzer (wegen Arbeitshöhe ) in cm : 180 / 198
Art des Gebäudes? : Neu-/Umbau, Planänderungen möglich
Brüstungshöhe des Fensters (in cm) : kein Fenster in Küche, andere Bodentief
Fensterhöhe (in cm) :
Raumhöhe in cm: : 260
Heizung : Fussbodenheizung
Sanitäranschlüsse : vollkommen variabel
Ausführung Kühlgerät? : Integriert im Hochschrank (60cm)
Kühlgerät Größe : bis 158 cm Höhe
Ausführung Tiefkühl (TK)-Gerät : Im Kühlschrank ab 3 Schubladen unten
Dunstabzugshaube? : Umluft
Backofen etc. hochgebaut? : Ja
Hochgebauter Geschirrspüler ? : wenn möglich
Kochfeldart? : Induktion
Kochfeldbreite ca. (in cm)? : 60-80
Spülenform: : 1 Becken mit Abtropffläche
Weitere geplante Heißgeräte :
Küchenstil? : modern
Sitzmöglichkeit in der Küche / im Küchenbereich als : Tresen in Barhöhe
Sitzmöglichkeit: Für wieviel Personen? : für 2 Personen
Sitzmöglichkeit: Tisch - wenn gesonderter Tisch oder offene Küche : Vorhandener Tisch
Gewünschte o. vorhandene Tischgröße : 180x100
Wofür soll der Sitzplatz in der Küche genutzt werden? Wie häufig? : Frühstück in der Woche
Welche Arbeitshöhe ist angedacht (in cm)? : 96 (muss noch mal geprüft werden)
Was steht auf der Arbeitsplatte oder soll dort stehen? : Kaffeemaschine, Obstschale, Sonstiges (evtl. im Beitragstext benennen)
Welche weiteren Küchenmaschinen müssen in der Küche untergebracht werden? : Toaster, Handrührgerät, Mixer
Was soll in der Küche außer den Standards untergebracht werden? : Geschirr komplett (nichts in Ess-/Wohnzimmer)
Welchen Stauraum gibt es sonst noch? : Hauswirtschaftsraum
Was/wie wird gekocht? (Alltagsküche, Menüs, Snacks usw) : Meistens nur am Wochenende Mittags oder Abends, dann mit 2 Personen
Wie häufig wird gekocht? : ab und zu
Wird alleine gekocht? Oder auch gemeinsam? Mit und für Gäste? :
Was stört an der bisherigen Küche und was soll die neue Küche unbedingt können? Warum? : Zu geringe Arbeitshöhe.
Steht schon ein Küchenhersteller fest oder wird bevorzugt? :
Steht schon ein Gerätehersteller fest oder wird bevorzugt? : Siemens
Preisvorstellung (Budget) : bis 15.000,-
ich lese hier schon seit ein paar Monaten mit, da wir vor einiger Zeit eine Wohnung gekauft haben, welche noch gebaut wird (Baugrube wird gerade ausgehoben) und in 2015 fertig gestellt wird.
Da der Bauträger sicher bald kommen wird und einen Plan für Anschlüsse haben möchte müssen wir uns mal mit der Küchenplanung näher beschäftigen
Wir möchten eine offene Küche haben, in einem modernen/schlichten Stil (wahrscheinlich weiß) vielleicht mit aufgesetzten Griffen. Eine grifflose schließe ich aus, wegen Stauraumverlust und Preis. Ich bevorzuge eiegentlich eine Küche ohne Hochschränke, aber ob dann der Stauraum reicht müssen wir dann auch mal sehen.
Wir möchten auf jeden Fall eine (Halb-)Insel haben eventuell mit Bar/angesetzter Platte, wobei wir noch mal genau überlegen müssen, ob wir da wirklich sitzen werden. Ich hätte gerne das Kochfeld auf der Insel mit einer Deckenhaube in einer Abhängung, aber wir müssen dann mal schauen, ob das im Budget drin ist. Alternativ soll die Spüle auf die Insel und das Kochfeld an die Wand.
In dem kleinen Abstellraum soll die Waschmaschine, Staubsauger, Bügelbrett und noch ein kleines Regal für ein paar Vorräte rein.
Müll unter der APL soll wenn möglich auch mit rein. Auf der Arbeitsplatte steht in der Regel noch ein Wassersprudler.
Ich habe schon mal einen ersten Entwurf im Alnoplaner erstellt. Ich würde mich über Ideen und Kommentare freuen
Grüße aus Hamburg
Daniel
Checkliste zur Küchenplanung von DanielHH
Anzahl Personen im Haushalt : 2
Davon Kinder? : keine
Körpergrössen aller Hauptbenutzer (wegen Arbeitshöhe ) in cm : 180 / 198
Art des Gebäudes? : Neu-/Umbau, Planänderungen möglich
Brüstungshöhe des Fensters (in cm) : kein Fenster in Küche, andere Bodentief
Fensterhöhe (in cm) :
Raumhöhe in cm: : 260
Heizung : Fussbodenheizung
Sanitäranschlüsse : vollkommen variabel
Ausführung Kühlgerät? : Integriert im Hochschrank (60cm)
Kühlgerät Größe : bis 158 cm Höhe
Ausführung Tiefkühl (TK)-Gerät : Im Kühlschrank ab 3 Schubladen unten
Dunstabzugshaube? : Umluft
Backofen etc. hochgebaut? : Ja
Hochgebauter Geschirrspüler ? : wenn möglich
Kochfeldart? : Induktion
Kochfeldbreite ca. (in cm)? : 60-80
Spülenform: : 1 Becken mit Abtropffläche
Weitere geplante Heißgeräte :
Küchenstil? : modern
Sitzmöglichkeit in der Küche / im Küchenbereich als : Tresen in Barhöhe
Sitzmöglichkeit: Für wieviel Personen? : für 2 Personen
Sitzmöglichkeit: Tisch - wenn gesonderter Tisch oder offene Küche : Vorhandener Tisch
Gewünschte o. vorhandene Tischgröße : 180x100
Wofür soll der Sitzplatz in der Küche genutzt werden? Wie häufig? : Frühstück in der Woche
Welche Arbeitshöhe ist angedacht (in cm)? : 96 (muss noch mal geprüft werden)
Was steht auf der Arbeitsplatte oder soll dort stehen? : Kaffeemaschine, Obstschale, Sonstiges (evtl. im Beitragstext benennen)
Welche weiteren Küchenmaschinen müssen in der Küche untergebracht werden? : Toaster, Handrührgerät, Mixer
Was soll in der Küche außer den Standards untergebracht werden? : Geschirr komplett (nichts in Ess-/Wohnzimmer)
Welchen Stauraum gibt es sonst noch? : Hauswirtschaftsraum
Was/wie wird gekocht? (Alltagsküche, Menüs, Snacks usw) : Meistens nur am Wochenende Mittags oder Abends, dann mit 2 Personen
Wie häufig wird gekocht? : ab und zu
Wird alleine gekocht? Oder auch gemeinsam? Mit und für Gäste? :
Was stört an der bisherigen Küche und was soll die neue Küche unbedingt können? Warum? : Zu geringe Arbeitshöhe.
Steht schon ein Küchenhersteller fest oder wird bevorzugt? :
Steht schon ein Gerätehersteller fest oder wird bevorzugt? : Siemens
Preisvorstellung (Budget) : bis 15.000,-
Anhänge

