- Beiträge
- 58.532
AW: Offene Küche im Doppelhaus, zur Vermietung
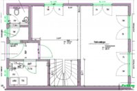
Bekommt das Haus jetzt einen Keller?
Wenn nein, dann ist zwar Essen etc. alles schön offen, aber Stauraum ... puh .. ganz schön knapp.
Evt. würde ich die Windfangtür weiter planrechts setzen, so dass die HWR -Tür mehr mittig ist und die planrechte Wand vom HWR auch voll genutzt werden kann.

Allerdings, sollte nach wie vor kein Keller geplant sein, dann muss man auch an so Sachen wie Staubsauger, Wischer, Getränkekisten etc. denken. Dann im Flur Schuhe, Jacken etc. für 4 Personen oder so ... und der gesamte Stauraum ist ja in der offenen Version verloren gegangen.
Bekommt das Haus jetzt einen Keller?
Wenn nein, dann ist zwar Essen etc. alles schön offen, aber Stauraum ... puh .. ganz schön knapp.
Evt. würde ich die Windfangtür weiter planrechts setzen, so dass die HWR -Tür mehr mittig ist und die planrechte Wand vom HWR auch voll genutzt werden kann.

Allerdings, sollte nach wie vor kein Keller geplant sein, dann muss man auch an so Sachen wie Staubsauger, Wischer, Getränkekisten etc. denken. Dann im Flur Schuhe, Jacken etc. für 4 Personen oder so ... und der gesamte Stauraum ist ja in der offenen Version verloren gegangen.


