Hallo zusammen,
wir konnten inzwischen mit dem Architekten wieder reden und haben uns auch ausführlich Gedanken über den Platz, wo die Küche nun hin soll, gemacht.
Momentan geht die Tendenz eindeutig (naja, so eindeutig war es nun doch nicht

), nach planoben.
Es gab eigentlich nur einen Punkt, der den Ausschlag gegeben hat:
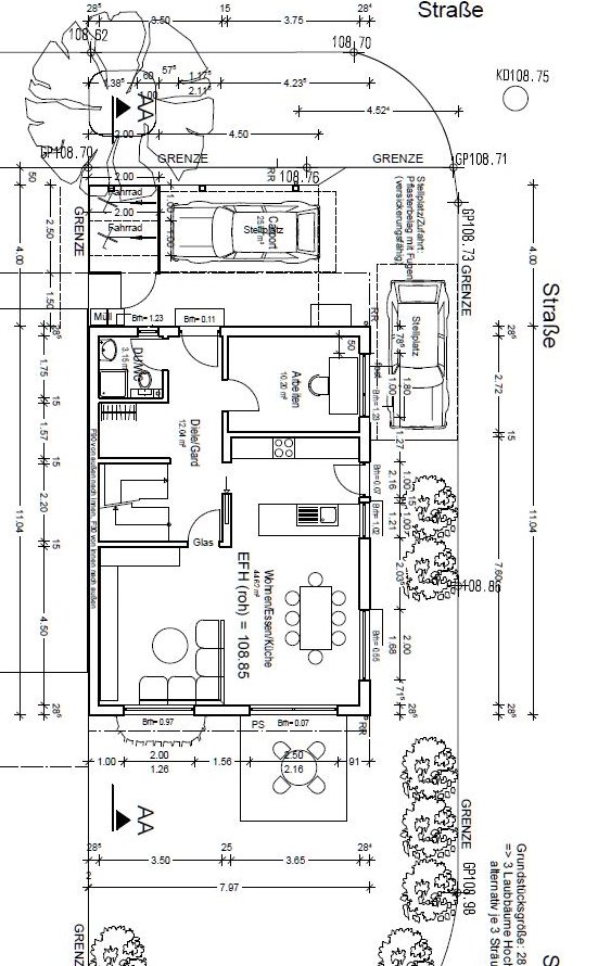
Mit der Küche planoben (auf der Ostseite) lässt sich so eine Terrassentür in der Küche nach Osten realisieren. Dort würden wir dann ein Kräuterhochbeet und eine kleine Sitzecke (Terrasse oder Bank mit Tisch) einrichten. Gerade im Hochsommer hätten wir dann in der Mittags-/Nachmittagszeit eine Möglichkeit ein schattiges Plätzchen draußen für den Nachmittagskaffee, einen Espresso o.ä. zu haben. Auf der Terrasse im Süden wird es sicherlich in den Hochsommertagen sehr heiß werden.
(Natürlich könnte man die Sitzmöglichkeit dort auch vorsehen, wenn man die Küche planunten realisiert - aber bis ich von der Küche dann auf der Ostseite bin, ist die Espressotasse leer

)
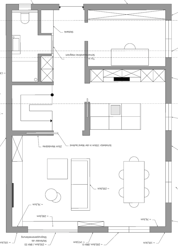
Im neuen Planungsvorschlag hat der Architekt nun auch mal eine Schiebetür Flur-Küche eingezeichnet (damit muss die Wand aber 10 cm breiter werden).
Derzeit hat er auch ein Fenster über der Halbinsel eingezeichnet, da sind wir uns aber nicht sicher, ob wir das brauchen oder sinnvoll ist (in der Außenansicht sieht es zumindest eher überflüssig aus).
Jetzt geht es also wieder an die genauere
Küchenplanung .
Was denkt Ihr, welche Maße für die Halbinsel sinnvoll wären?
Wären ca. 270*120 zu wuchtig? Eher 270*100?
Danke & Grüße