rageandgrace
Mitglied
- Beiträge
- 5
Küchenplanung in neuer Wohung
Hallo zusammen, derzeit befinde ich mich in der Planung einer neuen Küche, da wir Ende des Jahres umziehen werden. Die aktuelle Küche mitzunehmen ist leider keine Option, da so viele Umbauten nötig wären, dass es preislich uninteressant ist.
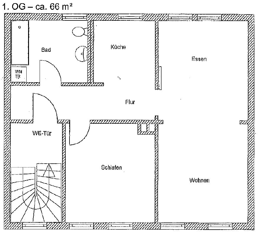
Die Wohnung wird derzeit kernsaniert, Wände versetzt usw. Die Maße wurden vorher genommen, kann also sein, dass sich da noch mal ein Zentimeter oder zwei ändern.
Ich habe bereits mehrere Küchenstudios besucht, aufgrund des Grundrisses waren die Ideen bis auf wenige Abweichungen gleich. Preis liegt bei etwa 13.000 €. Wir haben uns für ein Küchenstudio entschieden, welches ausschließlich Häcker Küchen anbietet.
Eine Ikea Planung welche an den aktuellen Küchenplan ganz gut rankommt habe ich angehängt.
Geräte sind auch schon ziemlich fix:
Kühl-/Gefrierkombi 5CB 28010 von Blaupunkt
Geschirrspüler 5VF770IA von Blaupunkt
Dampfbackofen IQ700 von Siemens
Induktionskochfeld Bora Pure (ich möchte aus diversen Gründen eigentlich keine Dunstabzugshaube mehr)
Spüle Keramikspüle von Franke
Die Schränke links unten beginnend sind folgendermaßen geplant
Hochschrank 200cm für Kühl-/Gefrierkombination
Hochschrank 200cm für Backofen mit 3 Auszügen
Unterschrank 40cm mit 3 Auszügen
tote Ecke
Spülenschrank 60cm mit Abfallsystem
Geschirrspüler voll integriert
Eckschrank 80cm
Unterschrank 40cm 2 Auszüge + ein Innenauszug
Unterschrank 90cm für Kochfeld mit 3 Auszügen
Unterschrank 40cm 2 Auszüge + ein Innenauszug
Optisch wünsche ich es mir sehr modern und geradlinig. Als Griffe Edelstahlgriffleisten.
Die Fronten werden wahrscheinlich Satin matt, die Arbeitsplatte dunkel.
Die Küche ist zum Flur hin offen, zwischen Flur und Esszimmer gibt es eine Schiebetür.
Kaffemachine und Teile des Essgeschirrs werden im Esszimmer ihren Platz finden.
Im zweiten Stock gibt es noch eine Abstellkammer für seltener benötigte Dinge/Vorräte sowie Getränke.
Auf der planrechten Seite hängen absichtlich keine Oberschränke, ich brauche den Platz nicht umgedingt und finde es so schöner. Die Anordnung von Wasseranschluss Spüle und Spülmaschine sind laut Küchenstudio so machbar (ggf. mit tiefengekürzten Schränken).
Wir sind mit der Planung soweit schon ganz zufrieden, hoffen aber auf ein paar Tipps, um das beste aus dem kleinen Raum rauszuholen.
Unsicher bin ich mir noch mit dem Eckschrank (verschenkter Platz?).
Ich hoffe, dass ich alle relevanten Infos gesammelt habe und freue mich auf Anregungen.
Checkliste zur Küchenplanung
Personenkriterien und Ergonomie
Anzahl Personen im Haushalt: 2
Davon Kinder: keine
Körpergrößen aller Hauptbenutzer in cm (wegen Arbeitshöhe ): 164
Welche Arbeitshöhe ist angedacht (in cm)?: 88 cm (höher geht aufgrund der Fensterbrüstung nicht)
Gebäudekriterien
Art des Gebäudes: Bestandsbau > Umbauten ausgeschlossen, Miete
Brüstungshöhe des Fensters (in cm): 91
Fensterhöhe (in cm): 100
Raumhöhe in cm: 145
Heizung: Keine Heizung
Sanitäranschlüsse: fix
Einbaugerätekriterien
Ausführung Kühlgerät: Integriert im Hochschrank (60cm)
Einbaukühlgerät Größe: 178cm
Ausführung Tiefkühl (TK)-Gerät: Im Kühlschrank ab 3 Schubladen unten
Dunstabzugshaube: keine
Hochgebauter Backofen : ja
Geplante Heißgeräte: Dampfbackofen (DGC) ohne Wasseranschluß
Hochgebauter Geschirrspüler : nein
Art des Kochfeldes: Induktion
Kochfeldbreite (ca. in cm): 80
Sitzmöglichkeiten
Sitzmöglichkeit in der Küche / im Küchenbereich: Keine
Sitzmöglichkeit: Für wieviel Personen?: nein
Sitzmöglichkeit: Tisch - wenn gesonderter Tisch oder offene Küche: Keiner
Gewünschte oder vorhandene Tischgröße:
Wofür soll der Sitzplatz in der Küche genutzt werden und wie häufig:
Stauraumplanung
Was steht auf der Arbeitsplatte oder soll dort stehen?: Messerblock, Küchenmaschine, Toaster
Welche weiteren Küchenmaschinen müssen in der Küche untergebracht werden: N. a.
Was soll in der Küche außer den Standards untergebracht werden: N. a.
Welchen Stauraum gibt es sonst noch: N. a.
Kochgewohnheiten
Was/wie wird gekocht? (Alltagsküche, Menüs, Snacks usw): unter der Woche Alltagsküche, am Wochenende ausgefallenes
Wie häufig wird gekocht: (fast) täglich 1x warm
Wird alleine gekocht? Oder auch gemeinsam? Mit und für Gäste?: alleine. Selten gemeinsam, manchmal für Gäste
Spülen und Müll
Spülenform: 1 Becken ohne Abtropffläche
Welche Mülltrennung soll in der Küche vorgehalten werden: Biomüll, Gelber Sack Müll, Restmüll
Sonstiges
Steht schon ein Küchenhersteller fest oder wird bevorzugt: Häcker
Steht schon ein Gerätehersteller fest oder wird bevorzugt: siehe Beschreibung
Küchenstil: Klassisch
Was stört an der bisherigen Küche und was soll die neue Küche unbedingt können? Warum?:
Preisvorstellung (Budget): max. 15.000€
Angehängte Dateien
Hallo zusammen, derzeit befinde ich mich in der Planung einer neuen Küche, da wir Ende des Jahres umziehen werden. Die aktuelle Küche mitzunehmen ist leider keine Option, da so viele Umbauten nötig wären, dass es preislich uninteressant ist.
Die Wohnung wird derzeit kernsaniert, Wände versetzt usw. Die Maße wurden vorher genommen, kann also sein, dass sich da noch mal ein Zentimeter oder zwei ändern.
Ich habe bereits mehrere Küchenstudios besucht, aufgrund des Grundrisses waren die Ideen bis auf wenige Abweichungen gleich. Preis liegt bei etwa 13.000 €. Wir haben uns für ein Küchenstudio entschieden, welches ausschließlich Häcker Küchen anbietet.
Eine Ikea Planung welche an den aktuellen Küchenplan ganz gut rankommt habe ich angehängt.
Geräte sind auch schon ziemlich fix:
Kühl-/Gefrierkombi 5CB 28010 von Blaupunkt
Geschirrspüler 5VF770IA von Blaupunkt
Dampfbackofen IQ700 von Siemens
Induktionskochfeld Bora Pure (ich möchte aus diversen Gründen eigentlich keine Dunstabzugshaube mehr)
Spüle Keramikspüle von Franke
Die Schränke links unten beginnend sind folgendermaßen geplant
Hochschrank 200cm für Kühl-/Gefrierkombination
Hochschrank 200cm für Backofen mit 3 Auszügen
Unterschrank 40cm mit 3 Auszügen
tote Ecke
Spülenschrank 60cm mit Abfallsystem
Geschirrspüler voll integriert
Eckschrank 80cm
Unterschrank 40cm 2 Auszüge + ein Innenauszug
Unterschrank 90cm für Kochfeld mit 3 Auszügen
Unterschrank 40cm 2 Auszüge + ein Innenauszug
Optisch wünsche ich es mir sehr modern und geradlinig. Als Griffe Edelstahlgriffleisten.
Die Fronten werden wahrscheinlich Satin matt, die Arbeitsplatte dunkel.
Die Küche ist zum Flur hin offen, zwischen Flur und Esszimmer gibt es eine Schiebetür.
Kaffemachine und Teile des Essgeschirrs werden im Esszimmer ihren Platz finden.
Im zweiten Stock gibt es noch eine Abstellkammer für seltener benötigte Dinge/Vorräte sowie Getränke.
Auf der planrechten Seite hängen absichtlich keine Oberschränke, ich brauche den Platz nicht umgedingt und finde es so schöner. Die Anordnung von Wasseranschluss Spüle und Spülmaschine sind laut Küchenstudio so machbar (ggf. mit tiefengekürzten Schränken).
Wir sind mit der Planung soweit schon ganz zufrieden, hoffen aber auf ein paar Tipps, um das beste aus dem kleinen Raum rauszuholen.
Unsicher bin ich mir noch mit dem Eckschrank (verschenkter Platz?).
Ich hoffe, dass ich alle relevanten Infos gesammelt habe und freue mich auf Anregungen.
Checkliste zur Küchenplanung
Personenkriterien und Ergonomie
Anzahl Personen im Haushalt: 2
Davon Kinder: keine
Körpergrößen aller Hauptbenutzer in cm (wegen Arbeitshöhe ): 164
Welche Arbeitshöhe ist angedacht (in cm)?: 88 cm (höher geht aufgrund der Fensterbrüstung nicht)
Gebäudekriterien
Art des Gebäudes: Bestandsbau > Umbauten ausgeschlossen, Miete
Brüstungshöhe des Fensters (in cm): 91
Fensterhöhe (in cm): 100
Raumhöhe in cm: 145
Heizung: Keine Heizung
Sanitäranschlüsse: fix
Einbaugerätekriterien
Ausführung Kühlgerät: Integriert im Hochschrank (60cm)
Einbaukühlgerät Größe: 178cm
Ausführung Tiefkühl (TK)-Gerät: Im Kühlschrank ab 3 Schubladen unten
Dunstabzugshaube: keine
Hochgebauter Backofen : ja
Geplante Heißgeräte: Dampfbackofen (DGC) ohne Wasseranschluß
Hochgebauter Geschirrspüler : nein
Art des Kochfeldes: Induktion
Kochfeldbreite (ca. in cm): 80
Sitzmöglichkeiten
Sitzmöglichkeit in der Küche / im Küchenbereich: Keine
Sitzmöglichkeit: Für wieviel Personen?: nein
Sitzmöglichkeit: Tisch - wenn gesonderter Tisch oder offene Küche: Keiner
Gewünschte oder vorhandene Tischgröße:
Wofür soll der Sitzplatz in der Küche genutzt werden und wie häufig:
Stauraumplanung
Was steht auf der Arbeitsplatte oder soll dort stehen?: Messerblock, Küchenmaschine, Toaster
Welche weiteren Küchenmaschinen müssen in der Küche untergebracht werden: N. a.
Was soll in der Küche außer den Standards untergebracht werden: N. a.
Welchen Stauraum gibt es sonst noch: N. a.
Kochgewohnheiten
Was/wie wird gekocht? (Alltagsküche, Menüs, Snacks usw): unter der Woche Alltagsküche, am Wochenende ausgefallenes
Wie häufig wird gekocht: (fast) täglich 1x warm
Wird alleine gekocht? Oder auch gemeinsam? Mit und für Gäste?: alleine. Selten gemeinsam, manchmal für Gäste
Spülen und Müll
Spülenform: 1 Becken ohne Abtropffläche
Welche Mülltrennung soll in der Küche vorgehalten werden: Biomüll, Gelber Sack Müll, Restmüll
Sonstiges
Steht schon ein Küchenhersteller fest oder wird bevorzugt: Häcker
Steht schon ein Gerätehersteller fest oder wird bevorzugt: siehe Beschreibung
Küchenstil: Klassisch
Was stört an der bisherigen Küche und was soll die neue Küche unbedingt können? Warum?:
Preisvorstellung (Budget): max. 15.000€
Angehängte Dateien
Anhänge
