hagalulu
Mitglied
- Beiträge
- 5
Hallo,
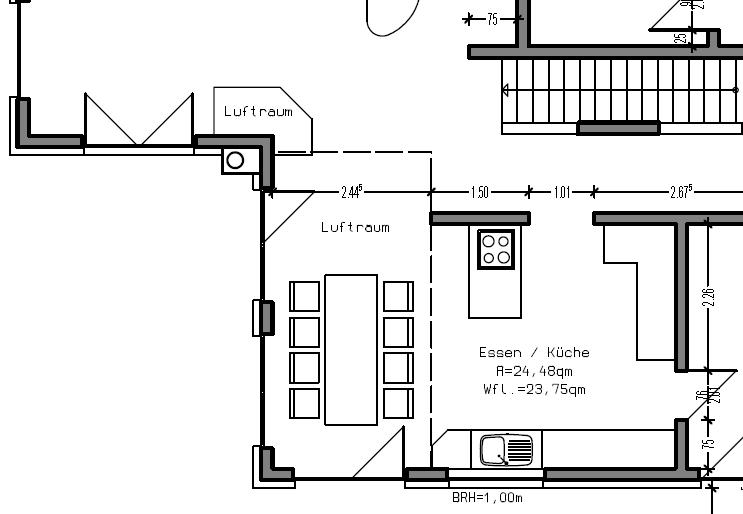
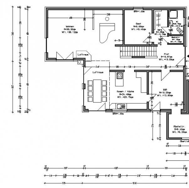
wir planen eine grifflose Küche in unseren Neubau. Bauantrag steht vor der Einreichung, so das Maße im Grunde festehen. Das Haus ist ein KfW 55 Haus mit zentraler Lüftungsanlage und Kamin daher Umluft DAH.Die Küche ist offen und hat zusammen mit den Essbereich 24qm. Anschließend kommt eine Wohnraum mit 40 qm Wohnfläche. Der Küche angschlossen ist zudem der HW-RAum, der auch als Speisekammer dient. In diesem werden neben Konserver etc. auch eine Teifkühle untergebracht, so das in der Küche nur ein Kühlschrank ohne Gefrierfach nötig ist.
Wir waren bei verschiedenen Fachgeschäften und Möbehäusern, es haben sich aber 2 Angebote herauskristallisiert. Uns würde sowohl eine allgemeine Beratung zum Aufbau der Küche als auch eine Einschätzung der beiden Angebote interessieren. Wir wissen, das die Angebote doch deutlich auseinander liegen aufgrund der Geräte, interessant ist daher für uns auch eher die allgemien Einschätzung zur Qualität und Preis ohne Geräte der Küchen. In der Gestaltung waren beide Küchen zumindest für uns als Laien gleich aufgebaut (Schubladen, Auszüge, ...) und in der Anzahl der Schränke nahezu identisch.
Budget ist ca. 15.000€, das bedeutet, das wir bei Küche 2 auf jeden Fall noch abstriche bei den Geräten machen würden, bzw. noch nachverhandeln müssen.
Angebot 1 (Alno Starline weiß) Preis 16.000€
Geräte (Preis laut Internet etwa 5200€):
Siemens EH845EC11 Kochfeld
Siemens HB36D575 Kombi-Dampf
Siemens HB73GB550 Backofen
Siemens KI26FA50 Kühlschrank
Siemens LF96BA530 Insel Esse
Siemens HW1405P2 Wärmeschublade
Miele G 4495 Vi XXL Geschirrspüler
Angebot 2 (Häcker Faro weiß) Preis 18.800€
Geräte (Preis laut Internet etwa 10.500€):
Gaggenau CI 271 Kochfeld
Küppersbusch EKDG 6900.1 Kombi-Dampfer
Küppersbusch EEBP 6200.8 MX Backofen
Küppersbusch WS 6014.1 GE Wärmeschublade
Siemens KI26FA50 Kühlschrank
Gutmann Campo Insel Esse
Miele G 4495 Vi XXL Geschirrspüler
Sollten noch Angaben fehlen, bitte einfach melden.
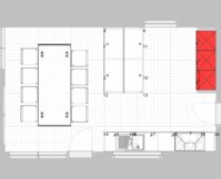
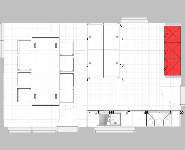
Bei den Bildern aus dem Alnoplaner sind die "blauen" Bereiche sowhl die bodentiefen Fenster, als auch der "Durchgang" zum Wohnraum und auf den angrenzenden Flur.






Vielen Dank für eure Hilfe
Anhang anzeigen 20121017_alno.POSAnhang anzeigen 20121017_alno.KPL
Checkliste zur Küchenplanung von hagalulu
Anzahl Personen im Haushalt : 2
Davon Kinder? : keine
Körpergrössen aller Hauptbenutzer (wegen Arbeitshöhe ) in cm : 167, 178
Art des Gebäudes? : Neu-/Umbau, Planänderungen möglich
Brüstungshöhe des Fensters (in cm) : 1,00
Fensterhöhe (in cm) : 162
Raumhöhe in cm: : 275
Heizung : Fussbodenheizung
Sanitäranschlüsse : vollkommen variabel
Ausführung Kühlgerät? : Integriert im Hochschrank (60cm)
Kühlgerät Größe : bis 122 cm Höhe
Ausführung Tiefkühl (TK)-Gerät : Nicht erforderlich bzw. steht woanders
Dunstabzugshaube? : Umluft
Hochgebauter Backofen ? : Ja
Hochgebauter Geschirrspüler ? : nein
Kochfeldart? : Induktion
Kochfeldbreite ca. (in cm)? : 80
Spülenform: : 1,5 Becken mit Abtropffläche
Weitere geplante Heißgeräte : Dampfgarer mit Wasseranschluß, Dampfgarer ohne Wasseranschluß, Wärmeschublade
Küchenstil? : grifflos
Sitzmöglichkeit in der Küche / im Küchenbereich als : Keine
Sitzmöglichkeit: Für wieviel Personen? : nein
Sitzmöglichkeit: Tisch - wenn gesonderter Tisch oder offene Küche : Wird nach Bedarf neu gekauft
Gewünschte o. vorhandene Tischgröße : Neukauf: ca. 200x100
Wofür soll der Sitzplatz in der Küche genutzt werden? Wie häufig? : -
Welche Arbeitshöhe ist angedacht (in cm)? : 93/94
Was steht auf der Arbeitsplatte oder soll dort stehen? : Kaffeevollautomat, Wasserkocher, Messerblock
Welche weiteren Küchenmaschinen müssen in der Küche untergebracht werden? : Handrührgerät, Mixer, Pürierstab, Eierkocher
Was soll in der Küche außer den Standards untergebracht werden? : Geschirr komplett (nichts in Ess-/Wohnzimmer)
Welchen Stauraum gibt es sonst noch? : Speisekammer, Hauswirtschaftsraum
Was/wie wird gekocht? (Alltagsküche, Menüs, Snacks usw) : Frühstück, Abends war, am Wochenende häufiger aufwendig
Wie häufig wird gekocht? : (fast) täglich 1x warm
Wird alleine gekocht? Oder auch gemeinsam? Mit und für Gäste? : meist zu zweit, selten mit mehreren
Was stört an der bisherigen Küche und was soll die neue Küche unbedingt können? Warum? : kein Vergleich da Neubau
Steht schon ein Küchenhersteller fest oder wird bevorzugt? : siehe Text
Steht schon ein Gerätehersteller fest oder wird bevorzugt? : siehe Text
Preisvorstellung (Budget) : bis 15.000,-
wir planen eine grifflose Küche in unseren Neubau. Bauantrag steht vor der Einreichung, so das Maße im Grunde festehen. Das Haus ist ein KfW 55 Haus mit zentraler Lüftungsanlage und Kamin daher Umluft DAH.Die Küche ist offen und hat zusammen mit den Essbereich 24qm. Anschließend kommt eine Wohnraum mit 40 qm Wohnfläche. Der Küche angschlossen ist zudem der HW-RAum, der auch als Speisekammer dient. In diesem werden neben Konserver etc. auch eine Teifkühle untergebracht, so das in der Küche nur ein Kühlschrank ohne Gefrierfach nötig ist.
Wir waren bei verschiedenen Fachgeschäften und Möbehäusern, es haben sich aber 2 Angebote herauskristallisiert. Uns würde sowohl eine allgemeine Beratung zum Aufbau der Küche als auch eine Einschätzung der beiden Angebote interessieren. Wir wissen, das die Angebote doch deutlich auseinander liegen aufgrund der Geräte, interessant ist daher für uns auch eher die allgemien Einschätzung zur Qualität und Preis ohne Geräte der Küchen. In der Gestaltung waren beide Küchen zumindest für uns als Laien gleich aufgebaut (Schubladen, Auszüge, ...) und in der Anzahl der Schränke nahezu identisch.
Budget ist ca. 15.000€, das bedeutet, das wir bei Küche 2 auf jeden Fall noch abstriche bei den Geräten machen würden, bzw. noch nachverhandeln müssen.
Angebot 1 (Alno Starline weiß) Preis 16.000€
Geräte (Preis laut Internet etwa 5200€):
Siemens EH845EC11 Kochfeld
Siemens HB36D575 Kombi-Dampf
Siemens HB73GB550 Backofen
Siemens KI26FA50 Kühlschrank
Siemens LF96BA530 Insel Esse
Siemens HW1405P2 Wärmeschublade
Miele G 4495 Vi XXL Geschirrspüler
Angebot 2 (Häcker Faro weiß) Preis 18.800€
Geräte (Preis laut Internet etwa 10.500€):
Gaggenau CI 271 Kochfeld
Küppersbusch EKDG 6900.1 Kombi-Dampfer
Küppersbusch EEBP 6200.8 MX Backofen
Küppersbusch WS 6014.1 GE Wärmeschublade
Siemens KI26FA50 Kühlschrank
Gutmann Campo Insel Esse
Miele G 4495 Vi XXL Geschirrspüler
Sollten noch Angaben fehlen, bitte einfach melden.
Bei den Bildern aus dem Alnoplaner sind die "blauen" Bereiche sowhl die bodentiefen Fenster, als auch der "Durchgang" zum Wohnraum und auf den angrenzenden Flur.






Vielen Dank für eure Hilfe
Anhang anzeigen 20121017_alno.POSAnhang anzeigen 20121017_alno.KPL
Checkliste zur Küchenplanung von hagalulu
Anzahl Personen im Haushalt : 2
Davon Kinder? : keine
Körpergrössen aller Hauptbenutzer (wegen Arbeitshöhe ) in cm : 167, 178
Art des Gebäudes? : Neu-/Umbau, Planänderungen möglich
Brüstungshöhe des Fensters (in cm) : 1,00
Fensterhöhe (in cm) : 162
Raumhöhe in cm: : 275
Heizung : Fussbodenheizung
Sanitäranschlüsse : vollkommen variabel
Ausführung Kühlgerät? : Integriert im Hochschrank (60cm)
Kühlgerät Größe : bis 122 cm Höhe
Ausführung Tiefkühl (TK)-Gerät : Nicht erforderlich bzw. steht woanders
Dunstabzugshaube? : Umluft
Hochgebauter Backofen ? : Ja
Hochgebauter Geschirrspüler ? : nein
Kochfeldart? : Induktion
Kochfeldbreite ca. (in cm)? : 80
Spülenform: : 1,5 Becken mit Abtropffläche
Weitere geplante Heißgeräte : Dampfgarer mit Wasseranschluß, Dampfgarer ohne Wasseranschluß, Wärmeschublade
Küchenstil? : grifflos
Sitzmöglichkeit in der Küche / im Küchenbereich als : Keine
Sitzmöglichkeit: Für wieviel Personen? : nein
Sitzmöglichkeit: Tisch - wenn gesonderter Tisch oder offene Küche : Wird nach Bedarf neu gekauft
Gewünschte o. vorhandene Tischgröße : Neukauf: ca. 200x100
Wofür soll der Sitzplatz in der Küche genutzt werden? Wie häufig? : -
Welche Arbeitshöhe ist angedacht (in cm)? : 93/94
Was steht auf der Arbeitsplatte oder soll dort stehen? : Kaffeevollautomat, Wasserkocher, Messerblock
Welche weiteren Küchenmaschinen müssen in der Küche untergebracht werden? : Handrührgerät, Mixer, Pürierstab, Eierkocher
Was soll in der Küche außer den Standards untergebracht werden? : Geschirr komplett (nichts in Ess-/Wohnzimmer)
Welchen Stauraum gibt es sonst noch? : Speisekammer, Hauswirtschaftsraum
Was/wie wird gekocht? (Alltagsküche, Menüs, Snacks usw) : Frühstück, Abends war, am Wochenende häufiger aufwendig
Wie häufig wird gekocht? : (fast) täglich 1x warm
Wird alleine gekocht? Oder auch gemeinsam? Mit und für Gäste? : meist zu zweit, selten mit mehreren
Was stört an der bisherigen Küche und was soll die neue Küche unbedingt können? Warum? : kein Vergleich da Neubau
Steht schon ein Küchenhersteller fest oder wird bevorzugt? : siehe Text
Steht schon ein Gerätehersteller fest oder wird bevorzugt? : siehe Text
Preisvorstellung (Budget) : bis 15.000,-
Zuletzt bearbeitet:
