sLindi
Mitglied
- Beiträge
- 11
Küche für Kernsanierung EFH
Hallo liebe Forumsgemeinde,
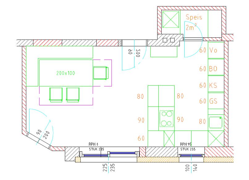
wir sanieren derzeit ein EFH aus den 70ern, derzeit sind die Zwischenwände wieder aufgebaut, Anschlüsse sind noch frei vorsehbar.
Ein paar Besuche in Küchenstudios haben wir schon hinter uns, aktuell haben wir einen ersten Planungsentwurf erhalten, in einer Woche treffen wir uns mit dem Planer zur Durchsprache.
Eine rudimentäre ALNO -Planung habe ich angehängt, mein Rechner ist aber sehr alt und ich komme daher mit dem Programm irgendwie nicht zurecht (am Firmen-Notebook kann/darf ich leider nichts installieren).
Am offensten ist für mich noch der Zugang zur (kleinen) Speisekammer. Hier befindet sich ein Eck in der tragenden Innenwand. Ich habe derzeit einen Unterzug bei der tragenden Wand ausgeführt, somit bin ich flexibel über die Position der Trennwand zwischen Küche und Speis.
Ich sehe hier 2 Möglichkeiten:
V1: Eck im Kückenraum lassen
+) mehr Platz in rechtsseitiger Küchenzeile
-) "unschönes" eck in Küche
V2: Wand gerade ziehen
Bei beiden Varianten hätte ich eine Nurglas-Pendeltür vorgesehen - gibt es hier ev. andere gute Vorschläge?
Was wir am derzeitigen Planungsvorschlag noch ändern werden/wollen:
In der Speis wird der Gefrierschrank stehen (links hinter Kamin), sowie der Allesschneider (auf einer "verlängerten" Arbeitsplatte ).
Was haltet ihr generell von der grundsätzlichen Planung, bzw. wo würdet ihr am ehesten Verbesserungspotential sehen?
Ich hoffe, ich habe nichts wesentliches vergessen.
Vielen Dank bereits im Voraus für Euren geschätzten Input.
Schönen Abend,
sLindi
Checkliste zur Küchenplanung
Personenkriterien und Ergonomie
Anzahl Personen im Haushalt:2
Davon Kinder:keine
Körpergrößen aller Hauptbenutzer in cm (wegen Arbeitshöhe ):172 + 187
Welche Arbeitshöhe ist angedacht (in cm)?:96 (+102)
Gebäudekriterien
Art des Gebäudes:Neu-/Umbau > Planänderungen möglich, Neu-/Umbau > Planänderungen nicht möglich
Brüstungshöhe des Fensters (in cm):140
Raumhöhe in cm:260
Heizung:Fußbodenheizung
Sanitäranschlüsse:vollkommen variabel
Einbaugerätekriterien
Ausführung Kühlgerät:Integriert im Hochschrank (60cm)
Einbaukühlgerät Größe:178cm
Ausführung Tiefkühl (TK)-Gerät:Nicht erforderlich bzw. steht woanders
Dunstabzugshaube:keine
Hochgebauter Backofen :ja
Geplante Heißgeräte:Dampfgarer ohne Wasseranschluß, Backofen
Hochgebauter Geschirrspüler :ja
Art des Kochfeldes:Induktion
Kochfeldbreite (ca. in cm):ca. 80
Sitzmöglichkeiten
Sitzmöglichkeit in der Küche / im Küchenbereich:Keine
Sitzmöglichkeit: Für wieviel Personen?:Für 8 Personen
Sitzmöglichkeit: Tisch - wenn gesonderter Tisch oder offene Küche:Wird nach Bedarf neu gekauft
Gewünschte oder vorhandene Tischgröße:200x100
Wofür soll der Sitzplatz in der Küche genutzt werden und wie häufig:Für uns selbst und Bewirtung von Besuch
Stauraumplanung
Was steht auf der Arbeitsplatte oder soll dort stehen?:Kaffeevollautomat, Thermomix
Welche weiteren Küchenmaschinen müssen in der Küche untergebracht werden:Wasserkocher, Mixer, Pürierstab, Eierkocher, Sonstiges (evtl. im Beitragstext benennen)
Was soll in der Küche außer den Standards untergebracht werden:N. a.
Welchen Stauraum gibt es sonst noch:Speisekammer, Hauswirtschaftsraum
Kochgewohnheiten
Was/wie wird gekocht? (Alltagsküche, Menüs, Snacks usw):Hausmannskost
Wie häufig wird gekocht:(fast) täglich 1x warm
Wird alleine gekocht? Oder auch gemeinsam? Mit und für Gäste?:hauptsächlich alleine oder zu zweit
Spülen und Müll
Spülenform:1 Becken mit Abtropffläche
Welche Mülltrennung soll in der Küche vorgehalten werden:Biomüll, Plastik, Alu, Restmüll
Sonstiges
Steht schon ein Küchenhersteller fest oder wird bevorzugt:derzeitige Planung: Dan
Steht schon ein Gerätehersteller fest oder wird bevorzugt:Geschirrspüler : Miele
Küchenstil:Grifflose Küche
Was stört an der bisherigen Küche und was soll die neue Küche unbedingt können? Warum?:N. a.
Preisvorstellung (Budget):20.000 (bis 25.000€)
Angehängte Dateien
Hallo liebe Forumsgemeinde,
wir sanieren derzeit ein EFH aus den 70ern, derzeit sind die Zwischenwände wieder aufgebaut, Anschlüsse sind noch frei vorsehbar.
Ein paar Besuche in Küchenstudios haben wir schon hinter uns, aktuell haben wir einen ersten Planungsentwurf erhalten, in einer Woche treffen wir uns mit dem Planer zur Durchsprache.
Eine rudimentäre ALNO -Planung habe ich angehängt, mein Rechner ist aber sehr alt und ich komme daher mit dem Programm irgendwie nicht zurecht (am Firmen-Notebook kann/darf ich leider nichts installieren).
Am offensten ist für mich noch der Zugang zur (kleinen) Speisekammer. Hier befindet sich ein Eck in der tragenden Innenwand. Ich habe derzeit einen Unterzug bei der tragenden Wand ausgeführt, somit bin ich flexibel über die Position der Trennwand zwischen Küche und Speis.
Ich sehe hier 2 Möglichkeiten:
V1: Eck im Kückenraum lassen
+) mehr Platz in rechtsseitiger Küchenzeile
-) "unschönes" eck in Küche
V2: Wand gerade ziehen
Bei beiden Varianten hätte ich eine Nurglas-Pendeltür vorgesehen - gibt es hier ev. andere gute Vorschläge?
Was wir am derzeitigen Planungsvorschlag noch ändern werden/wollen:
- Aufteilung in rechtsseitiger Zeile (von oben)
- Vorratschrank 60cm
- Backofen 60cm
- Kühlschrank 60cm
- Geschirrspüler 60cm
- Spüle (60-80cm?!?)
- Hängeschränke teilweise mit Glas und raumhoch
- esszimmerseitig auch Auszüge in Unterschränke
In der Speis wird der Gefrierschrank stehen (links hinter Kamin), sowie der Allesschneider (auf einer "verlängerten" Arbeitsplatte ).
Was haltet ihr generell von der grundsätzlichen Planung, bzw. wo würdet ihr am ehesten Verbesserungspotential sehen?
Ich hoffe, ich habe nichts wesentliches vergessen.
Vielen Dank bereits im Voraus für Euren geschätzten Input.
Schönen Abend,
sLindi
Checkliste zur Küchenplanung
Personenkriterien und Ergonomie
Anzahl Personen im Haushalt:2
Davon Kinder:keine
Körpergrößen aller Hauptbenutzer in cm (wegen Arbeitshöhe ):172 + 187
Welche Arbeitshöhe ist angedacht (in cm)?:96 (+102)
Gebäudekriterien
Art des Gebäudes:Neu-/Umbau > Planänderungen möglich, Neu-/Umbau > Planänderungen nicht möglich
Brüstungshöhe des Fensters (in cm):140
Raumhöhe in cm:260
Heizung:Fußbodenheizung
Sanitäranschlüsse:vollkommen variabel
Einbaugerätekriterien
Ausführung Kühlgerät:Integriert im Hochschrank (60cm)
Einbaukühlgerät Größe:178cm
Ausführung Tiefkühl (TK)-Gerät:Nicht erforderlich bzw. steht woanders
Dunstabzugshaube:keine
Hochgebauter Backofen :ja
Geplante Heißgeräte:Dampfgarer ohne Wasseranschluß, Backofen
Hochgebauter Geschirrspüler :ja
Art des Kochfeldes:Induktion
Kochfeldbreite (ca. in cm):ca. 80
Sitzmöglichkeiten
Sitzmöglichkeit in der Küche / im Küchenbereich:Keine
Sitzmöglichkeit: Für wieviel Personen?:Für 8 Personen
Sitzmöglichkeit: Tisch - wenn gesonderter Tisch oder offene Küche:Wird nach Bedarf neu gekauft
Gewünschte oder vorhandene Tischgröße:200x100
Wofür soll der Sitzplatz in der Küche genutzt werden und wie häufig:Für uns selbst und Bewirtung von Besuch
Stauraumplanung
Was steht auf der Arbeitsplatte oder soll dort stehen?:Kaffeevollautomat, Thermomix
Welche weiteren Küchenmaschinen müssen in der Küche untergebracht werden:Wasserkocher, Mixer, Pürierstab, Eierkocher, Sonstiges (evtl. im Beitragstext benennen)
Was soll in der Küche außer den Standards untergebracht werden:N. a.
Welchen Stauraum gibt es sonst noch:Speisekammer, Hauswirtschaftsraum
Kochgewohnheiten
Was/wie wird gekocht? (Alltagsküche, Menüs, Snacks usw):Hausmannskost
Wie häufig wird gekocht:(fast) täglich 1x warm
Wird alleine gekocht? Oder auch gemeinsam? Mit und für Gäste?:hauptsächlich alleine oder zu zweit
Spülen und Müll
Spülenform:1 Becken mit Abtropffläche
Welche Mülltrennung soll in der Küche vorgehalten werden:Biomüll, Plastik, Alu, Restmüll
Sonstiges
Steht schon ein Küchenhersteller fest oder wird bevorzugt:derzeitige Planung: Dan
Steht schon ein Gerätehersteller fest oder wird bevorzugt:Geschirrspüler : Miele
Küchenstil:Grifflose Küche
Was stört an der bisherigen Küche und was soll die neue Küche unbedingt können? Warum?:N. a.
Preisvorstellung (Budget):20.000 (bis 25.000€)
Angehängte Dateien
Anhänge
-
sLindi.KPL3,6 KB · Aufrufe: 124
-
sLindi.POS5,8 KB · Aufrufe: 118
-
EG_08.4H.pdf51,2 KB · Aufrufe: 144
-
EG_08.4H.jpg149,8 KB · Aufrufe: 272 -
Kueche_Speis.jpg45,6 KB · Aufrufe: 275 -
Kueche_Speis.pdf17,9 KB · Aufrufe: 136
-
Küchenplan - Perspektive 1.jpg110 KB · Aufrufe: 245 -
Küchenplan - Grundriss.jpg87,7 KB · Aufrufe: 245 -
Küchenplan - Perspektive 2.jpg89,4 KB · Aufrufe: 241 -
Küchenplan - Perspektive 3.jpg97,1 KB · Aufrufe: 261
Zuletzt bearbeitet von einem Moderator:







