MultiiSaft
Mitglied
- Beiträge
- 68
- Wohnort
- Im Schwabenländle
Hallo an alle,
seit längerem lese ich schon eifrig mit hier im Forum und werde auch beim suchen in Google immer wieder hierher verlinkt.
Danke schon mal hier an dieser Stelle für die erstklassigen Informationen, die hier bereit liegen.
Da nun unsere Küchenplanung konkreter wird, habe ich mich nun hier angemeldet und bin auch gleich so frei und stelle meine bisherigen Überlegungen zur Diskussion und freue mich schon darauf, unsere Küche mit Euch allen gemeinsam zu planen.
Wir werden ein EFH bauen, Fertighaus, Holzständerbauweise. Geplanter Fertigstellungstermin ist Okt. 2012. Da das Ganze als Niedrigenergiehaus errichtet wird, ist eine kontrollierte Wohnraumlüftungsanlage von Nöten, was wiederum eine Umlufthaube bedingt.
Wir wünschen uns eine offene Küche, die kommunikativ ist und in der gemeinsames kochen Freude bereitet.
Als Ergänzung oder Kommentierung der Checkliste folgende:
- Anzahl Personen: i.M. 2, geplant dann mal 4
- Planänderungen möglich - die Gebäudehülle steht soweit fest, Innenwände oder auch Fenster oder Türen können geändert werden.
- Raumhöhe ist Rohbauhöhe, die endgültige Raumhöhe müsste ich erfragen
- Kühlschrank: wir schwanken noch zwischen Einbau, SbS oder Standgerät, Tendez Einbau
- Spüle: vermutlich 1,5 mti Ablauf, vermutlich Keramik
Ich versuche mich ein wenig an die Vorgaben des Planungsboardes zu halten:
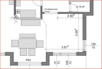
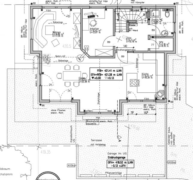
1. Grundriss des EFH anbei, Entréebereich ist im UG, über Treppe erreicht man die Diele des EG, von dort über Türe (vermutlich Türe + Seitenteil aus Glas, insg. 140cm, Anschlag noch nicht festgelegt) in den Küchen-Wohn-Bereich
2. vermaßter Küchengrundriss anbei, bitte als ca.-Maße verstehen, +/- 10 cm sind sicher möglich, habe den Grundriss selbst erstellt, auf Grundlage eines 1:100 Planes, die 1:20 Küchenpläne werden noch erstellt.
Elektro- und Wasseranschlüsse sind flexibel.
Küchen kann (muss aber nicht) bis max. an das "Erkereck" geplant werden.
Leider habe ich die Planung mit dem Alno -Tool nicht gem. der Maßgabe "immer mit derselben Ausrichtung" erstellt. Ich hoffe, es ist eindeutig so. Sollte es zu Problemen kommen, kann ich mir die Zeit auch nehmen, und stelle die Alno-Planung um.
3. Checkliste ist ausgefüllt.
4. Alno-Planungen anbei.
5. Folgende Geräte schweben uns im Moment vor, hier kann es aber Änderungen geben:
- Neff Backofen B96C43N0MK
- Neff Kochfeld T44T90N0 oder T44T97N0
- Neff Geschirrspüler S52M63X3EU
- Liebherr Kühl-Gefrier-Kombi ICBP 3166 PremiumPlus BioFresh
Über die DAH sind wir uns noch sehr unsicher. Einerseits wollen wir nat. einen größtmöglichen Effekt, andererseits sollte sie nicht, wenn es eine Insellösung mit Kochfeld gibt, auf Aufenhöhe zwischen Küche und Wohn-/Essbereich hängen. Eventuell ist auch eine Deckenhaube vorstellbar, allerdings sind halt auch die Kosten sehr hoch.
Wenn Mikrowelle , dann eine Einbaumirkowelle von Neff oder ein Dampfgarer von Neff.
Da nur 10 Dateianhänge pro Beitrag möglich sind, werde ich die weiteren in einem zweiten Beitrag anfügen.
Wir sind ganz am Beginn unserer Planungen, weshalb ich auch noch nicht auf Details (wie z.B. einheitliches Griffbild etc.) geachtet habe.
Wir schätzen den Abstand bei der Insellösung von knapp 90cm auf beiden Seiten als machbar aber sehr knapp bemessen ein.
Für uns wäre interessant, ob jemand ein völlig neuen Vorschlag hat, wie der Raum als Küche genutzt werden kann.
Jeder Kommentar zu unseren Vorschlägen ist gern gesehen.
Im Moment laufen Planungen in 2 Küchenstudios, von denen ich bis in einer Woche Vorschläge unterbreitet bekomme.
Zu mindestens einem weitern Küchenplaner möchte ich gehen.
Lack-Hochglanz-weiß ist die Vorstellung meiner Frau (und mir) momentan.
Fliesen werden voraussichtlich dunkel-grau, anthrazit.
Über die AP und Nischen sind wir uns noch nicht bewusst, was uns gefallen könnte.
So, ich hoffe, das Ganze ist nicht zu konfus und undeutlich und ihr konnten einen Eindruck gewinnen.
Da ich sehr unterschiedlich nur Zeit habe möchte ich mich gleich jetzt entschuldigen, wenn ich mal ein paar Tage nicht zum antworten kommen kann (dies sollte aber selten vorkommen).
Vielen Dank für alle Beiträge
MultiiSaft
Checkliste zur Küchenplanung von MultiiSaft
Anzahl Personen im Haushalt : 2
Davon Kinder? : keine
Körpergrössen aller Hauptbenutzer (wegen Arbeitshöhe ) in cm : 183 + 170
Art des Gebäudes? : Neu-/Umbau, Planänderungen möglich
Brüstungshöhe des Fensters (in cm) : 149
Fensterhöhe (in cm) : 73
Raumhöhe in cm: : 250
Heizung : Fussbodenheizung
Sanitäranschlüsse : vollkommen variabel
Ausführung Kühlgerät? : Integriert im Hochschrank
Kühlgerät Größe : noch unbekannt
Ausführung Tiefkühl (TK)-Gerät : Im Kühlschrank ab 3 Schubladen unten
Dunstabzugshaube? : Umluft
Hochgebauter Backofen ? : Wenn möglich
Hochgebauter Geschirrspüler ? : wenn möglich
Kochfeldart? : Induktion
Kochfeldbreite ca. (in cm)? : 80-90
Spülenform: : Noch nicht festgelegt
Weitere geplante Heißgeräte : Einbaumikrowelle, Dampfgarer ohne Wasseranschluß
Küchenstil? : modern
Sitzmöglichkeit in der Küche / im Küchenbereich als : Keine
Sitzmöglichkeit: Für wieviel Personen? : nein
Sitzmöglichkeit: Tisch - wenn gesonderter Tisch oder offene Küche : Keine
Gewünschte o. vorhandene Tischgröße : 180*100
Wofür soll der Sitzplatz in der Küche genutzt werden? Wie häufig? : kein Tisch in der Küche direkt, sondern im offenen Essbereich
Welche Arbeitshöhe ist angedacht (in cm)? : ca. 95
Was steht auf der Arbeitsplatte oder soll dort stehen? : Kaffeevollautomat, Messerblock, Küchenmaschine, Brotbehälter
Welche weiteren Küchenmaschinen müssen in der Küche untergebracht werden? : Wasserkocher, Toaster, Schneidemaschine (z. B. in Schublade), Handrührgerät, Mixer, Pürierstab, Eierkocher
Was soll in der Küche außer den Standards untergebracht werden? : Geschirr komplett (nichts in Ess-/Wohnzimmer)
Welchen Stauraum gibt es sonst noch? : Speisekammer, Keller
Was/wie wird gekocht? (Alltagsküche, Menüs, Snacks usw) : Alltagsküche
Wie häufig wird gekocht? : (fast) täglich 1x warm
Wird alleine gekocht? Oder auch gemeinsam? Mit und für Gäste? : alleine wie auch in Gemeinschaft
Was stört an der bisherigen Küche und was soll die neue Küche unbedingt können? Warum? : ausreichend Platzangebot zum Arbeiten wie Lagern/Aufbewahren
Preisvorstellung (Budget) : ca. 15.000 - 20.000,-
seit längerem lese ich schon eifrig mit hier im Forum und werde auch beim suchen in Google immer wieder hierher verlinkt.
Danke schon mal hier an dieser Stelle für die erstklassigen Informationen, die hier bereit liegen.
Da nun unsere Küchenplanung konkreter wird, habe ich mich nun hier angemeldet und bin auch gleich so frei und stelle meine bisherigen Überlegungen zur Diskussion und freue mich schon darauf, unsere Küche mit Euch allen gemeinsam zu planen.
Wir werden ein EFH bauen, Fertighaus, Holzständerbauweise. Geplanter Fertigstellungstermin ist Okt. 2012. Da das Ganze als Niedrigenergiehaus errichtet wird, ist eine kontrollierte Wohnraumlüftungsanlage von Nöten, was wiederum eine Umlufthaube bedingt.
Wir wünschen uns eine offene Küche, die kommunikativ ist und in der gemeinsames kochen Freude bereitet.
Als Ergänzung oder Kommentierung der Checkliste folgende:
- Anzahl Personen: i.M. 2, geplant dann mal 4
- Planänderungen möglich - die Gebäudehülle steht soweit fest, Innenwände oder auch Fenster oder Türen können geändert werden.
- Raumhöhe ist Rohbauhöhe, die endgültige Raumhöhe müsste ich erfragen
- Kühlschrank: wir schwanken noch zwischen Einbau, SbS oder Standgerät, Tendez Einbau
- Spüle: vermutlich 1,5 mti Ablauf, vermutlich Keramik
Ich versuche mich ein wenig an die Vorgaben des Planungsboardes zu halten:
1. Grundriss des EFH anbei, Entréebereich ist im UG, über Treppe erreicht man die Diele des EG, von dort über Türe (vermutlich Türe + Seitenteil aus Glas, insg. 140cm, Anschlag noch nicht festgelegt) in den Küchen-Wohn-Bereich
2. vermaßter Küchengrundriss anbei, bitte als ca.-Maße verstehen, +/- 10 cm sind sicher möglich, habe den Grundriss selbst erstellt, auf Grundlage eines 1:100 Planes, die 1:20 Küchenpläne werden noch erstellt.
Elektro- und Wasseranschlüsse sind flexibel.
Küchen kann (muss aber nicht) bis max. an das "Erkereck" geplant werden.
Leider habe ich die Planung mit dem Alno -Tool nicht gem. der Maßgabe "immer mit derselben Ausrichtung" erstellt. Ich hoffe, es ist eindeutig so. Sollte es zu Problemen kommen, kann ich mir die Zeit auch nehmen, und stelle die Alno-Planung um.
3. Checkliste ist ausgefüllt.
4. Alno-Planungen anbei.
5. Folgende Geräte schweben uns im Moment vor, hier kann es aber Änderungen geben:
- Neff Backofen B96C43N0MK
- Neff Kochfeld T44T90N0 oder T44T97N0
- Neff Geschirrspüler S52M63X3EU
- Liebherr Kühl-Gefrier-Kombi ICBP 3166 PremiumPlus BioFresh
Über die DAH sind wir uns noch sehr unsicher. Einerseits wollen wir nat. einen größtmöglichen Effekt, andererseits sollte sie nicht, wenn es eine Insellösung mit Kochfeld gibt, auf Aufenhöhe zwischen Küche und Wohn-/Essbereich hängen. Eventuell ist auch eine Deckenhaube vorstellbar, allerdings sind halt auch die Kosten sehr hoch.
Wenn Mikrowelle , dann eine Einbaumirkowelle von Neff oder ein Dampfgarer von Neff.
Da nur 10 Dateianhänge pro Beitrag möglich sind, werde ich die weiteren in einem zweiten Beitrag anfügen.
Wir sind ganz am Beginn unserer Planungen, weshalb ich auch noch nicht auf Details (wie z.B. einheitliches Griffbild etc.) geachtet habe.
Wir schätzen den Abstand bei der Insellösung von knapp 90cm auf beiden Seiten als machbar aber sehr knapp bemessen ein.
Für uns wäre interessant, ob jemand ein völlig neuen Vorschlag hat, wie der Raum als Küche genutzt werden kann.
Jeder Kommentar zu unseren Vorschlägen ist gern gesehen.
Im Moment laufen Planungen in 2 Küchenstudios, von denen ich bis in einer Woche Vorschläge unterbreitet bekomme.
Zu mindestens einem weitern Küchenplaner möchte ich gehen.
Lack-Hochglanz-weiß ist die Vorstellung meiner Frau (und mir) momentan.
Fliesen werden voraussichtlich dunkel-grau, anthrazit.
Über die AP und Nischen sind wir uns noch nicht bewusst, was uns gefallen könnte.
So, ich hoffe, das Ganze ist nicht zu konfus und undeutlich und ihr konnten einen Eindruck gewinnen.
Da ich sehr unterschiedlich nur Zeit habe möchte ich mich gleich jetzt entschuldigen, wenn ich mal ein paar Tage nicht zum antworten kommen kann (dies sollte aber selten vorkommen).
Vielen Dank für alle Beiträge
MultiiSaft
Checkliste zur Küchenplanung von MultiiSaft
Anzahl Personen im Haushalt : 2
Davon Kinder? : keine
Körpergrössen aller Hauptbenutzer (wegen Arbeitshöhe ) in cm : 183 + 170
Art des Gebäudes? : Neu-/Umbau, Planänderungen möglich
Brüstungshöhe des Fensters (in cm) : 149
Fensterhöhe (in cm) : 73
Raumhöhe in cm: : 250
Heizung : Fussbodenheizung
Sanitäranschlüsse : vollkommen variabel
Ausführung Kühlgerät? : Integriert im Hochschrank
Kühlgerät Größe : noch unbekannt
Ausführung Tiefkühl (TK)-Gerät : Im Kühlschrank ab 3 Schubladen unten
Dunstabzugshaube? : Umluft
Hochgebauter Backofen ? : Wenn möglich
Hochgebauter Geschirrspüler ? : wenn möglich
Kochfeldart? : Induktion
Kochfeldbreite ca. (in cm)? : 80-90
Spülenform: : Noch nicht festgelegt
Weitere geplante Heißgeräte : Einbaumikrowelle, Dampfgarer ohne Wasseranschluß
Küchenstil? : modern
Sitzmöglichkeit in der Küche / im Küchenbereich als : Keine
Sitzmöglichkeit: Für wieviel Personen? : nein
Sitzmöglichkeit: Tisch - wenn gesonderter Tisch oder offene Küche : Keine
Gewünschte o. vorhandene Tischgröße : 180*100
Wofür soll der Sitzplatz in der Küche genutzt werden? Wie häufig? : kein Tisch in der Küche direkt, sondern im offenen Essbereich
Welche Arbeitshöhe ist angedacht (in cm)? : ca. 95
Was steht auf der Arbeitsplatte oder soll dort stehen? : Kaffeevollautomat, Messerblock, Küchenmaschine, Brotbehälter
Welche weiteren Küchenmaschinen müssen in der Küche untergebracht werden? : Wasserkocher, Toaster, Schneidemaschine (z. B. in Schublade), Handrührgerät, Mixer, Pürierstab, Eierkocher
Was soll in der Küche außer den Standards untergebracht werden? : Geschirr komplett (nichts in Ess-/Wohnzimmer)
Welchen Stauraum gibt es sonst noch? : Speisekammer, Keller
Was/wie wird gekocht? (Alltagsküche, Menüs, Snacks usw) : Alltagsküche
Wie häufig wird gekocht? : (fast) täglich 1x warm
Wird alleine gekocht? Oder auch gemeinsam? Mit und für Gäste? : alleine wie auch in Gemeinschaft
Was stört an der bisherigen Küche und was soll die neue Küche unbedingt können? Warum? : ausreichend Platzangebot zum Arbeiten wie Lagern/Aufbewahren
Preisvorstellung (Budget) : ca. 15.000 - 20.000,-
Anhänge
-
EG Grundriß.jpg83,2 KB · Aufrufe: 429 -
ca Maße Küche.jpg59,8 KB · Aufrufe: 1.760 -
G-Küche_01.jpg27,5 KB · Aufrufe: 375 -
G-Küche_02.jpg34,3 KB · Aufrufe: 336 -
G-Küche_03.jpg34 KB · Aufrufe: 329 -
G-Küche_04.jpg35,4 KB · Aufrufe: 328 -
G-Küche_Grundriß.jpg21,6 KB · Aufrufe: 323 -
G-Küche.KPL4,1 KB · Aufrufe: 287
-
G-Küche.POS9 KB · Aufrufe: 249
Zuletzt bearbeitet von einem Moderator:
